384,941,700 Ft
990,000 €
- 365m²
- 6 Rooms



































Gyöngyszem az Ördögárokhoz közel
Olyan házat keres, amely építészetileg is szép, de nem hivalkodó, mindig divatos és korszerű marad, otthonos, intim, de mégis jól megközelíthető?
Jöjjön el, tekintse meg velem ezt a fantasztikus adottságú és panorámájú villát, nem fog csalódni.
(A bejáró nyél 209 nm, telek 1219, összesen 1428nm)
Jöjjön el, tekintse meg velem ezt a fantasztikus adottságú és panorámájú villát, nem fog csalódni.
(A bejáró nyél 209 nm, telek 1219, összesen 1428nm)
Registration Number
H403843
Property Details
Sales
for sale
Legal Status
used
Character
house
Construction Method
log house
Net Size
365 m²
Gross Size
430 m²
Plot Size
1,428 m²
Heating
Gas circulator
Ceiling Height
310 cm
Number of Levels Within the Property
3
Orientation
South
Condition
Excellent
Condition of Facade
Excellent
Basement
Independent
Neighborhood
quiet, green
Year of Construction
1992
Number of Bathrooms
3
Water
Available
Gas
Available
Electricity
Available
Sewer
Available
Rooms
pool area
88 m²
other room
11.5 m²
sauna
5.3 m²
other room
4.6 m²
washroom
4.1 m²
toilet
1.4 m²
warehouse
4.8 m²
warehouse
3 m²
terrace
8.5 m²
staircase
3.1 m²
living room
48.8 m²
kitchen
12.5 m²
utility room
13 m²
pantry
5.5 m²
bedroom
18 m²
wardrobe
3.8 m²
bathroom
11.9 m²
washroom
1.8 m²
toilet
1.4 m²
toilet
1.1 m²
terrace
12.5 m²
dining room
8.5 m²
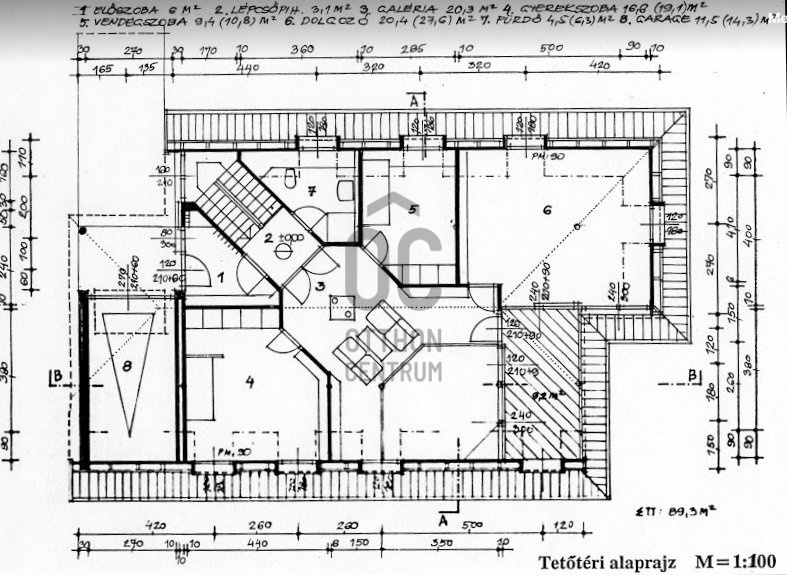
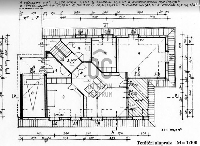
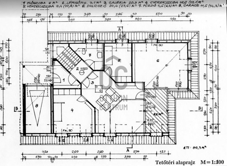
entryway
6 m²
staircase
3.1 m²
gallery
20.3 m²
bedroom
19.1 m²
bedroom
10.8 m²
study
27.6 m²
bathroom-toilet
6.3 m²
garage
14.3 m²

Helembai Dávid
Credit Expert