data_sheet.details.realestate.section.main.otthonstart_flag.label
For sale family house,
H506105
Budapest XIX. kerület, Kispest
125,500,000 Ft
321,000 €
- 220m²
- 8 Rooms
























Kispesten eladó családiház!
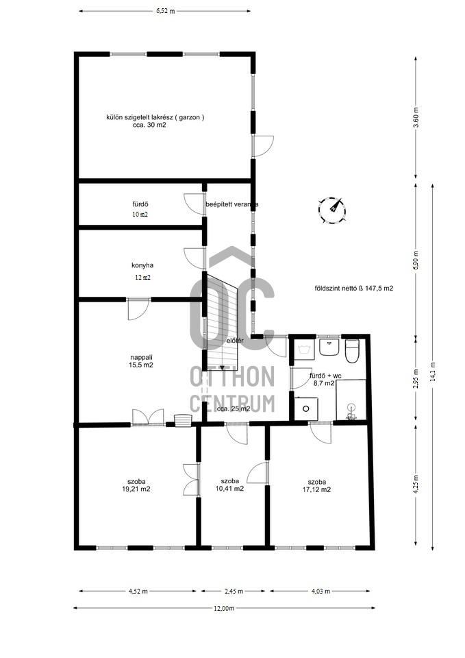
XIX. kerületben az Endresz György utcában eladó egy 535 m2-es telken lévő 1928-ban épült 1998-ban és 2005-ben átépített/felújított 220 m2 össz. hasznos területű 147 m2 alapterületű 8 szobás családiház. Az állapota a felújítások ellenére jelenleg felújítandó. A 98-as átépítés során a veranda beépítésre került. A tetőtér beépítéséhez a statikai szakvélemény szerint a feljáró kiépítéséhez a tetőszerkezet megerősítésre került. A tetőtér hőszigetelése kőzetgyapottal történt. A tetőtér beépítése fényképekkel dokumentált.
A fűtése az ingatlannak több fűtő rendszerrel történik. Van fatüzelésű többfunkciós épített tégla kályha. Van gáz konvektor fűtés. A fürdőszobában pedig egy plusz kandalló adja a meleget. A melegvizet villany boyler biztosítja.
2005-ben egy a ház mellett lévő raktár került bővítésre. 7 cm-es dryvitt szgeteléssel és lapostetővel alakítottak ki egy 30 m2-es önnálló garzon lakrészt.
A környék rendezett. Az itt lakók szépen karban tartják lakóházaikat.
A lakás megközelíthetősége kiváló a közeli Tulipán utcai 42-es villamos megállójának köszönhetően.
Ne hagyja ki ezt a páratlan lehetőséget, hogy egy frissen a piacra került, jól alakítható otthonra tegyen szert Pest egyik legdinamikusabban fejlődő részén!
Célunk, hogy ügyfeleink számára a legmagasabb színvonalú, személyre szabott lakáshitel-megoldásokat nyújtsuk, maximális kényelmet és biztonságot garantálva. Bankfüggetlen hitelcentrumunk szakértői az ország összes bankjának és hitelintézetének ajánlatait versenyeztetik, díjmentesen, hogy Ön a legkedvezőbb feltételekkel juthasson lakáshitelhez. Tapasztalt munkatársaink az Ön igényeihez igazodva, előre egyeztetett időpontban, akár munkaidőn túl is rendelkezésére állnak, hogy minden kérdésére megnyugtató választ adjanak és segítsék Önt a döntésben.
A fűtése az ingatlannak több fűtő rendszerrel történik. Van fatüzelésű többfunkciós épített tégla kályha. Van gáz konvektor fűtés. A fürdőszobában pedig egy plusz kandalló adja a meleget. A melegvizet villany boyler biztosítja.
2005-ben egy a ház mellett lévő raktár került bővítésre. 7 cm-es dryvitt szgeteléssel és lapostetővel alakítottak ki egy 30 m2-es önnálló garzon lakrészt.
A környék rendezett. Az itt lakók szépen karban tartják lakóházaikat.
A lakás megközelíthetősége kiváló a közeli Tulipán utcai 42-es villamos megállójának köszönhetően.
Ne hagyja ki ezt a páratlan lehetőséget, hogy egy frissen a piacra került, jól alakítható otthonra tegyen szert Pest egyik legdinamikusabban fejlődő részén!
Célunk, hogy ügyfeleink számára a legmagasabb színvonalú, személyre szabott lakáshitel-megoldásokat nyújtsuk, maximális kényelmet és biztonságot garantálva. Bankfüggetlen hitelcentrumunk szakértői az ország összes bankjának és hitelintézetének ajánlatait versenyeztetik, díjmentesen, hogy Ön a legkedvezőbb feltételekkel juthasson lakáshitelhez. Tapasztalt munkatársaink az Ön igényeihez igazodva, előre egyeztetett időpontban, akár munkaidőn túl is rendelkezésére állnak, hogy minden kérdésére megnyugtató választ adjanak és segítsék Önt a döntésben.
Registration Number
H506105
Property Details
Sales
for sale
Legal Status
used
Character
house
Construction Method
brick
Net Size
220 m²
Gross Size
250 m²
Plot Size
535 m²
Heating
gas convector
Ceiling Height
290 cm
Number of Levels Within the Property
2
Orientation
South-East
Condition
To be renovated
Condition of Facade
Average
Neighborhood
quiet, green
Year of Construction
1928
Number of Bathrooms
2
Water
Available
Gas
Available
Electricity
Available
Sewer
Available
Rooms
living room
15.5 m²
room
19.21 m²
room
10.41 m²
room
17.12 m²
bathroom-toilet
8.7 m²
bathroom
10 m²
kitchen
12 m²
veranda
25 m²
open-plan kitchen and living room
30 m²
corridor
13.25 m²
room
34 m²
room
14.95 m²
room
13.85 m²
room
15.5 m²

Pongó Miklós
Credit Expert