data_sheet.details.realestate.section.main.otthonstart_flag.label
For sale family house,
H482194
Lőrinci
24,900,000 Ft
64,000 €
- 170m²
- 4 Rooms



























Stílusos 4 szobás ház Lőrinci szívében - Heves vármegye
Kedveli a nagy tereket? Ezt látnia kell!
Lőrinci csendes utcájában ajánlom figyelmébe ezt a téglaházat.
Az épület felújítást igényel, méretéből adódóan, nagy családok számára lehet ideális választás.
A tetőtér nem került befejezésre, az alsó szintet használták, ahol korábban fodrászszalon működött.
Az épületben nincsen áram szolgáltatás.
A fűtés gázkonvektoros, korszerűsítése szükséges.
A tető fedése cserére szorul, a szerkezete ép.
Tudta?
Amennyiben babaváró kölcsönt és CSOK PLUSZ kamattámogatott hitelt vesz fel, akkor illeték mentességre is jogosult?
Támogatás és Hitelközvetítő Szakértőnk díjmentesen segít Önnek megtalálni a megfelelő megoldást!
További információkért várom hívását, minden nap 8-18 óráig.
Lőrinci csendes utcájában ajánlom figyelmébe ezt a téglaházat.
Az épület felújítást igényel, méretéből adódóan, nagy családok számára lehet ideális választás.
A tetőtér nem került befejezésre, az alsó szintet használták, ahol korábban fodrászszalon működött.
Az épületben nincsen áram szolgáltatás.
A fűtés gázkonvektoros, korszerűsítése szükséges.
A tető fedése cserére szorul, a szerkezete ép.
Tudta?
Amennyiben babaváró kölcsönt és CSOK PLUSZ kamattámogatott hitelt vesz fel, akkor illeték mentességre is jogosult?
Támogatás és Hitelközvetítő Szakértőnk díjmentesen segít Önnek megtalálni a megfelelő megoldást!
További információkért várom hívását, minden nap 8-18 óráig.
Registration Number
H482194
Property Details
Sales
for sale
Legal Status
used
Character
house
Construction Method
brick
Net Size
170 m²
Gross Size
200 m²
Plot Size
525 m²
Size of Terrace / Balcony
7 m²
Heating
gas convector
Ceiling Height
268 cm
Number of Levels Within the Property
1
Orientation
West
Condition
To be renovated
Condition of Facade
Average
Basement
Independent
Year of Construction
1981
Number of Bathrooms
1
Garage
Included in the price
Garage Spaces
1
Water
Available
Electricity
On the street
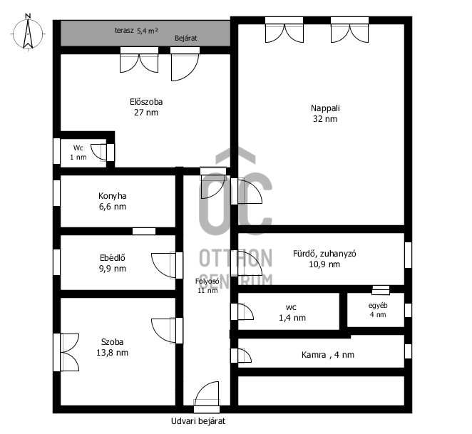
Rooms
entryway
27 m²
living room
32 m²
room
13.8 m²
kitchen
6.6 m²
dining room
10 m²
corridor
11 m²
bathroom
10.9 m²
toilet
1.4 m²
pantry
1.5 m²
room
15.6 m²
room
15.6 m²
living room
16 m²
storage
3 m²
toilet-washbasin
4 m²

Pampuk Rita
Credit Expert