data_sheet.details.realestate.section.main.otthonstart_flag.label
For sale family house,
H501108
Pilisborosjenő, Pilisborosjeno 1
89,900,000 Ft
230,000 €
- 100m²
- 5 Rooms



































Tranquility Close to Nature with the Comfort of the City – Two Separate Family Homes on One Plot!
A Unique Property for Sale in One of the Greenest and Most Peaceful Areas of Pilisborosjenő
This exceptional property combines the comfort of being close to the capital with the tranquility of a rural, nature-surrounded setting. Its outstanding location makes it a true rarity on the market.
The 218 BKV bus stop is just a 3-minute walk away, making everyday errands easy even without a car.
At the end of the garden, the gently flowing Határ-réti Stream adds a special charm and idyllic atmosphere, enhancing the livability and unique value of the property.
This property is an ideal choice for multigenerational families or for those seeking a comfortable yet separate co-living solution for parents and adult children.
It is also an excellent investment opportunity – the two separate buildings each have their own parcel number, making them perfectly suitable for rental purposes.
THE GARDEN
The 1,540 m² plot is flat, well-maintained, and sunny.
Parking is available for multiple vehicles.
It features a high-yield drilled well, perfect for irrigation.
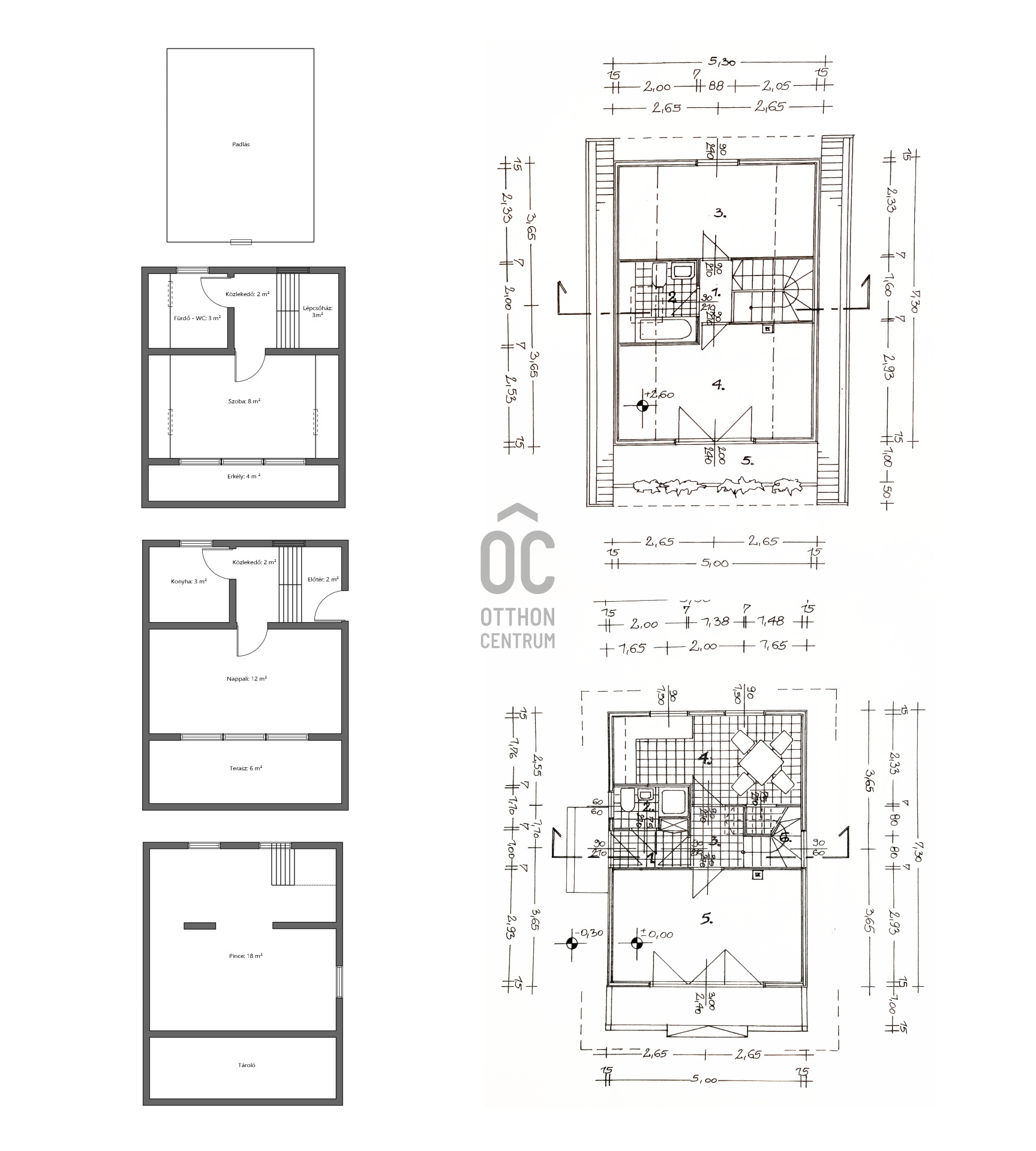
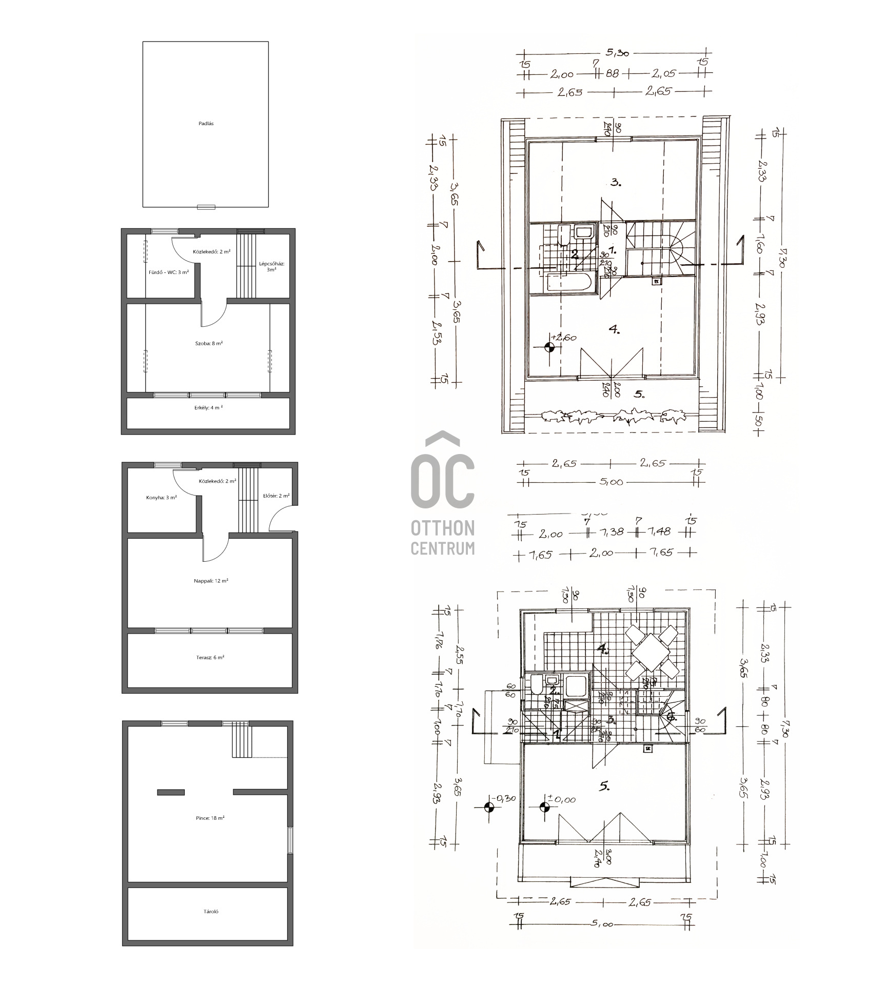
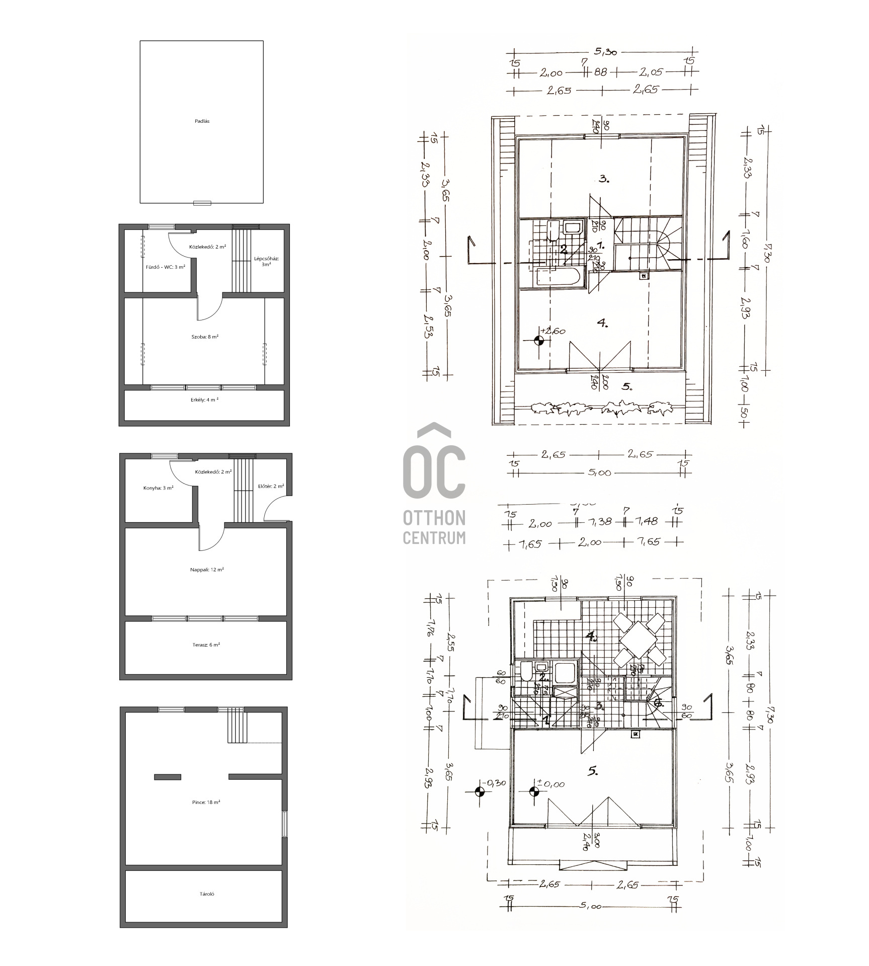
BRICK HOUSE
Built in 1985, southwest-facing.
2 rooms, 36 m² living area, plus an 18 m² dry, windowed basement, a 6 m² terrace, and an attic.
WOODEN HOUSE
Built in 1992, also southwest-facing.
3 rooms, 53 m² living area, plus a 5 m² terrace.
Equipped with 10 cm insulation.
This property is a perfect choice if you’d like to live together with your parents, if two families wish to live side by side yet separately, or if you plan to use one of the houses as a rental, guesthouse, or even an office.
Don’t miss this unique opportunity – feel free to call for a viewing!
This exceptional property combines the comfort of being close to the capital with the tranquility of a rural, nature-surrounded setting. Its outstanding location makes it a true rarity on the market.
The 218 BKV bus stop is just a 3-minute walk away, making everyday errands easy even without a car.
At the end of the garden, the gently flowing Határ-réti Stream adds a special charm and idyllic atmosphere, enhancing the livability and unique value of the property.
This property is an ideal choice for multigenerational families or for those seeking a comfortable yet separate co-living solution for parents and adult children.
It is also an excellent investment opportunity – the two separate buildings each have their own parcel number, making them perfectly suitable for rental purposes.
THE GARDEN
The 1,540 m² plot is flat, well-maintained, and sunny.
Parking is available for multiple vehicles.
It features a high-yield drilled well, perfect for irrigation.
BRICK HOUSE
Built in 1985, southwest-facing.
2 rooms, 36 m² living area, plus an 18 m² dry, windowed basement, a 6 m² terrace, and an attic.
WOODEN HOUSE
Built in 1992, also southwest-facing.
3 rooms, 53 m² living area, plus a 5 m² terrace.
Equipped with 10 cm insulation.
This property is a perfect choice if you’d like to live together with your parents, if two families wish to live side by side yet separately, or if you plan to use one of the houses as a rental, guesthouse, or even an office.
Don’t miss this unique opportunity – feel free to call for a viewing!
Registration Number
H501108
Property Details
Sales
for sale
Legal Status
used
Character
house
Construction Method
brick
Net Size
100 m²
Gross Size
100 m²
Plot Size
1,657 m²
Size of Terrace / Balcony
12 m²
Heating
Gas circulator
Ceiling Height
270 cm
Number of Levels Within the Property
2
Orientation
West
Condition
Good
Condition of Facade
Good
Basement
Independent
Year of Construction
1985
Number of Bathrooms
2
Water
Available
Gas
Available
Electricity
Available
Multi-Generational
yes
Storage
Independent
Distance to Waterfront
waterfront
Rooms
entryway
1.6 m²
staircase
1.6 m²
corridor
1.6 m²
living room
11.9 m²
kitchen
3.1 m²
terrace
6.2 m²
study
8.3 m²
corridor
1.6 m²
bathroom-toilet
2.1 m²
balcony
3.6 m²
entryway
2.2 m²
living room
14.7 m²
corridor
2.2 m²
open-plan kitchen and dining room
10.5 m²
staircase
2.48 m²
terrace
5 m²
corridor
1.41 m²
toilet
2.7 m²
bedroom
7 m²
bedroom
7.4 m²
balcony
3 m²