data_sheet.details.realestate.section.main.otthonstart_flag.label
For sale new construction semi-detached house,
DHZ034030
Kóka,
65,000,000 Ft
167,000 €
- 108m²
- 4 Rooms
Kókán Új építésű Ikerház Garázs kapcsolattal!
Megvételre kínálok Kókán minőségi kivitelezéssel készülő Ikerház felet.
UTCA FRONTI INGATLAN!
Az Ingatlan nagyon jó csendes helyen helyezkedik el,a busz megállótól 10 perc sétára,ami közvetlen a Sülysápi Vasútállomás érkezik.
Számos Referencia munkával állunk rendelkezésre.
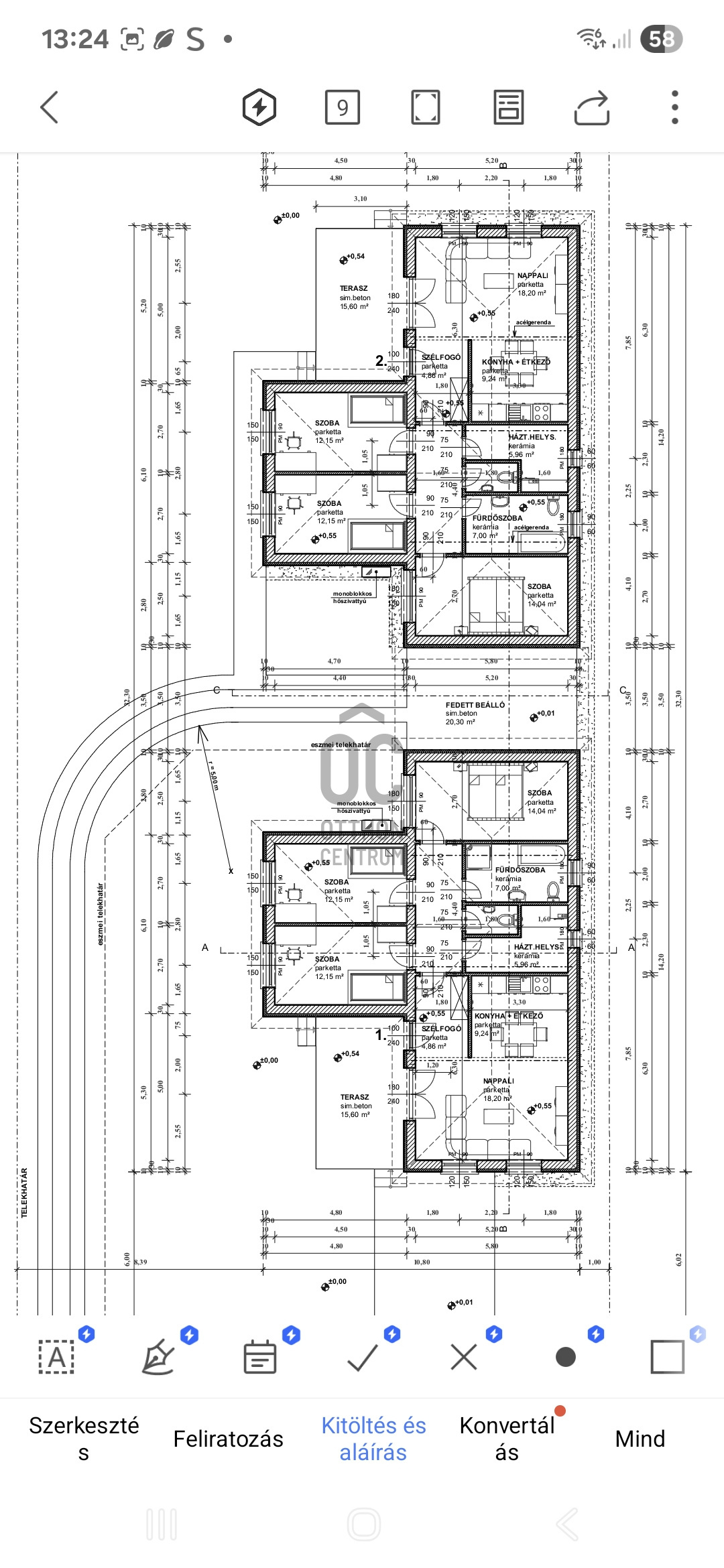
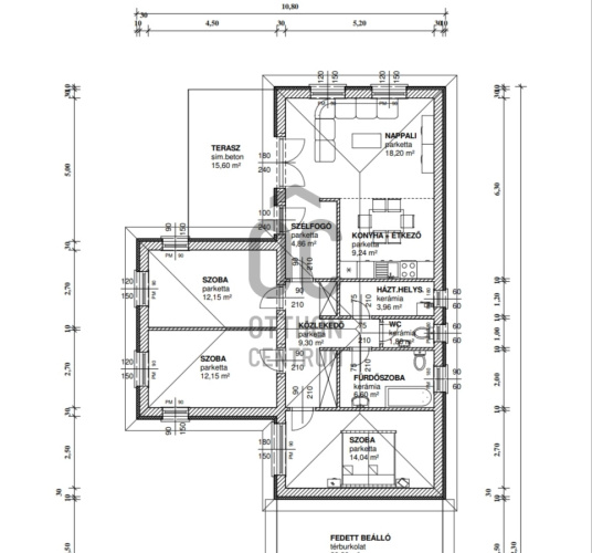
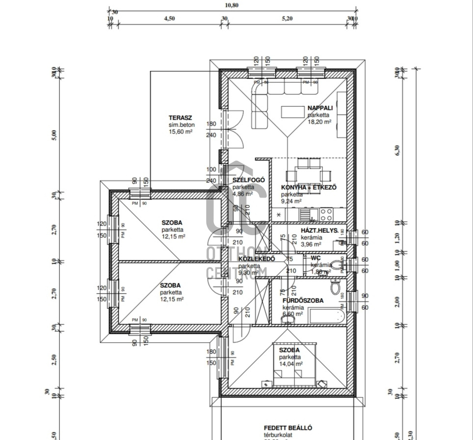
Az ingatlan felosztása:
- Szoba: 14,04 nm2
- Szoba: 12,15 nm2
- Szoba: 12,15 nm2
- Fürdőszoba: 6,6 nm2
- wc: 1,8 nm2
- Amerikai Konyha -Nappali : 27,44 nm2
- Szélfogó : 4,86 nm2
- Háztartási Helyiség : 3,96 nm2
- Közlekedő : 9,3 nm2
- Nyitott Terasz : 15,6 nm2
Az Ingatlan szerkezete B30-as Tégla 15 cm szigeteléssel.
A tető szerkezete fa födémes,20 cm kőzetgyapot szigeteléssel,plusz betoncserép fedéssel.
Az ingatlan teljes belső területe fűtéséről hőszivattyú gondoskodik,amely padlófűtéssel párosul.
700 nm2-es telek tartozik az ingatlanhoz,amely ideális mind a családi összejövetelek,grillezések és kikapcsolódás helyszíneként.
Klíma kiépítése lehetséges ezt a kivitelezővel kell előre egyeztetni.
Amely a vételárban benne van:
- Meleg burkolatok 3500,-
- Hideg burkolatok 4000,-
- Beltéri ajtók 30.000,-
- Csapok/db 15.000,-
- Kád: 40.000,-
- Mosdó 20.000,-
- Wc 20.000,-
- Terep rendezés.
Átadás várható ideje: 2026. első negyedév.
Várom megtisztelő hívását.Tekintsük meg együtt Álmai Otthonát!
Bank független hitel ügyintézővel is állok rendelkezésére.
Megvételre kínálok Kókán minőségi kivitelezéssel készülő Ikerház felet.
UTCA FRONTI INGATLAN!
Az Ingatlan nagyon jó csendes helyen helyezkedik el,a busz megállótól 10 perc sétára,ami közvetlen a Sülysápi Vasútállomás érkezik.
Számos Referencia munkával állunk rendelkezésre.
Az ingatlan felosztása:
- Szoba: 14,04 nm2
- Szoba: 12,15 nm2
- Szoba: 12,15 nm2
- Fürdőszoba: 6,6 nm2
- wc: 1,8 nm2
- Amerikai Konyha -Nappali : 27,44 nm2
- Szélfogó : 4,86 nm2
- Háztartási Helyiség : 3,96 nm2
- Közlekedő : 9,3 nm2
- Nyitott Terasz : 15,6 nm2
Az Ingatlan szerkezete B30-as Tégla 15 cm szigeteléssel.
A tető szerkezete fa födémes,20 cm kőzetgyapot szigeteléssel,plusz betoncserép fedéssel.
Az ingatlan teljes belső területe fűtéséről hőszivattyú gondoskodik,amely padlófűtéssel párosul.
700 nm2-es telek tartozik az ingatlanhoz,amely ideális mind a családi összejövetelek,grillezések és kikapcsolódás helyszíneként.
Klíma kiépítése lehetséges ezt a kivitelezővel kell előre egyeztetni.
Amely a vételárban benne van:
- Meleg burkolatok 3500,-
- Hideg burkolatok 4000,-
- Beltéri ajtók 30.000,-
- Csapok/db 15.000,-
- Kád: 40.000,-
- Mosdó 20.000,-
- Wc 20.000,-
- Terep rendezés.
Átadás várható ideje: 2026. első negyedév.
Várom megtisztelő hívását.Tekintsük meg együtt Álmai Otthonát!
Bank független hitel ügyintézővel is állok rendelkezésére.
Registration Number
DHZ034030
Property Details
Sales
for sale
Legal Status
new
Character
house
Construction Method
brick
Net Size
108 m²
Gross Size
108 m²
Plot Size
1,407 m²
Size of Terrace / Balcony
15.6 m²
Heating
other
Ceiling Height
285 cm
Number of Levels Within the Property
1
Orientation
South-East
Condition
Good
Condition of Facade
Good
Year of Construction
2026
Number of Bathrooms
1
Position
courtyard-facing
Water
Available
Electricity
Available
Sewer
Available
Rooms
room
12.15 m²
room
12.15 m²
room
14.04 m²
open-plan kitchen and living room
27.44 m²
entryway
4.86 m²
utility room
3.96 m²
corridor
9.3 m²
toilet
1.8 m²
terrace
15.6 m²
Pampuk Rita
Credit Expert