36 900 000 Ft
95 000 €
- 720m²














Szentendrén, csodálatos panorámás telek!
Gyönyörű panorámával rendelkező építési telek eladó!
Amit tudni érdemes:
- 720 nm
- 10 % beépítettségi lehetőség
- Építmény magassága 4,5 méter
- 30 méteres utcafrontal rendelkezik
- Víz telken belül, a többi közmű az utcában elérhető.
- Üh/1 építési övezetbe tartozik.
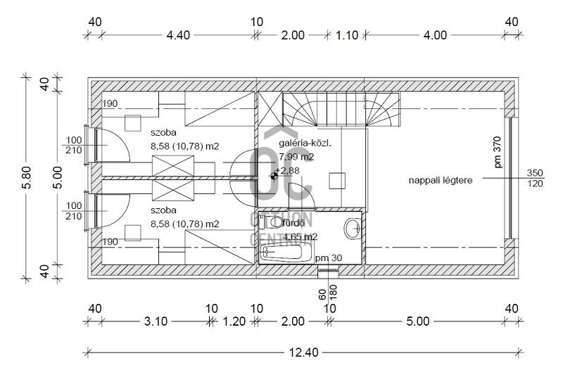
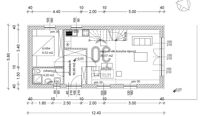
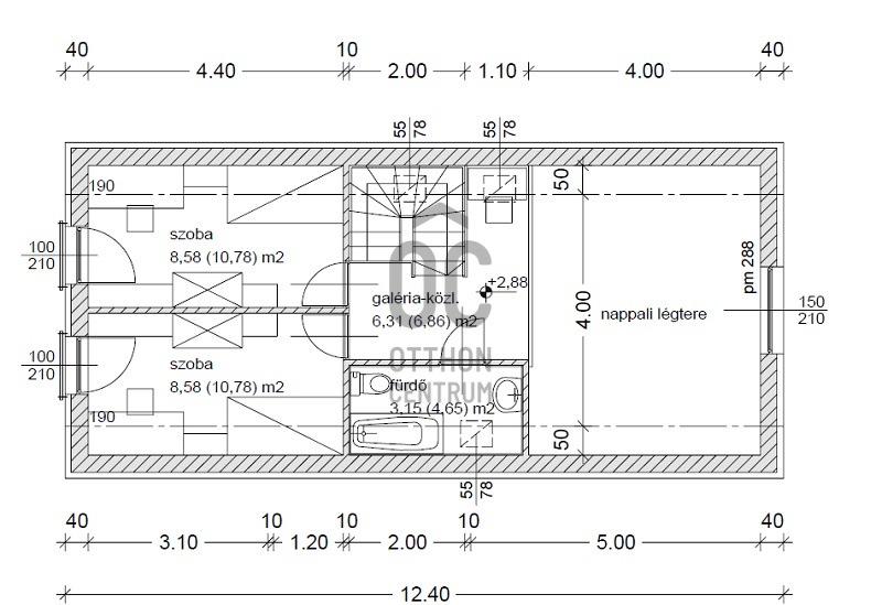
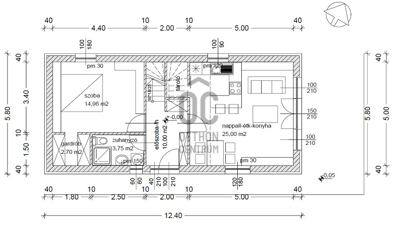
- A tervrajz is megvan, már csak engedélyeztetni kell.
Ha a leírtak és a látottak alapján felkeltettem az érdeklődését, megelőlegezett bizalmát előre is megköszönve, akár a hétvégén is várom szíves jelentkezését!
Amit tudni érdemes:
- 720 nm
- 10 % beépítettségi lehetőség
- Építmény magassága 4,5 méter
- 30 méteres utcafrontal rendelkezik
- Víz telken belül, a többi közmű az utcában elérhető.
- Üh/1 építési övezetbe tartozik.
- A tervrajz is megvan, már csak engedélyeztetni kell.
Ha a leírtak és a látottak alapján felkeltettem az érdeklődését, megelőlegezett bizalmát előre is megköszönve, akár a hétvégén is várom szíves jelentkezését!
Regisztrációs szám
T039921
Az ingatlan adatai
Értékesités
eladó
Jelleg
telek
Típus
Építési telek
Övezet
üdülőövezet
Telek méret
720 m²
Tájolás
Kelet
Környék
csendes, zöld
Víz
Van
Gáz
Utcán
Villany
Utcán
Csatorna
Utcán
Telek lejtés
0-10% között
Beépíthetőség
10%
Homlokzat magassága
4
Építhető ingatlan típusa
Családi ház

Bán Marianna
Hitelszakértő