51,000,000 Ft
130,000 €
- 849m²







Szentendrén eladó egy 849nm-es érvényes építési engedéllyel rendelkező telek!
A telek Tyúkosdűlő üdülőövezetében található sík területen. Víz, villany van bevezetve, gáz az utcában.Tájolásának köszönhetően körbe napozott.Sík, jól megközelíthető utcáról nyílik a telek, mely körbekerített, építkezésre előkészített állapotban van.
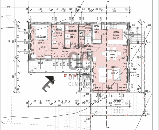
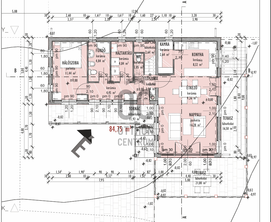
Üh/1-es övezetben található, ahol 10%-os beépíthetőség van, max. építménymagasság 4,5m.A telek vételárába egy 95nm-es ingatlan építésére vonatkozó érvényes építési engedély is beletartozik.Az építési engedély részleteivel kapcsolatban telefonon, személyesen szívesen adok tájékoztatást.
További kérdés esetén hívjon bátran a hét minden napján!
A telek Tyúkosdűlő üdülőövezetében található sík területen. Víz, villany van bevezetve, gáz az utcában.Tájolásának köszönhetően körbe napozott.Sík, jól megközelíthető utcáról nyílik a telek, mely körbekerített, építkezésre előkészített állapotban van.
Üh/1-es övezetben található, ahol 10%-os beépíthetőség van, max. építménymagasság 4,5m.A telek vételárába egy 95nm-es ingatlan építésére vonatkozó érvényes építési engedély is beletartozik.Az építési engedély részleteivel kapcsolatban telefonon, személyesen szívesen adok tájékoztatást.
További kérdés esetén hívjon bátran a hét minden napján!
Registration Number
DTK025462
Property Details
Sales
for sale
Legal Status
used
Character
plot
Type of Land
Developmental plot
Net Size
849 m²
Gross Size
849 m²
Plot Size
849 m²
Basement
values.realestate.pince.1
Gas
On the street
Connected to Garden
yes
Storage
Independent

Korcsog Melinda
Credit Expert