78,750,000 Ft
201,000 €
- 45m²
- 2 Rooms
- 3rd floor


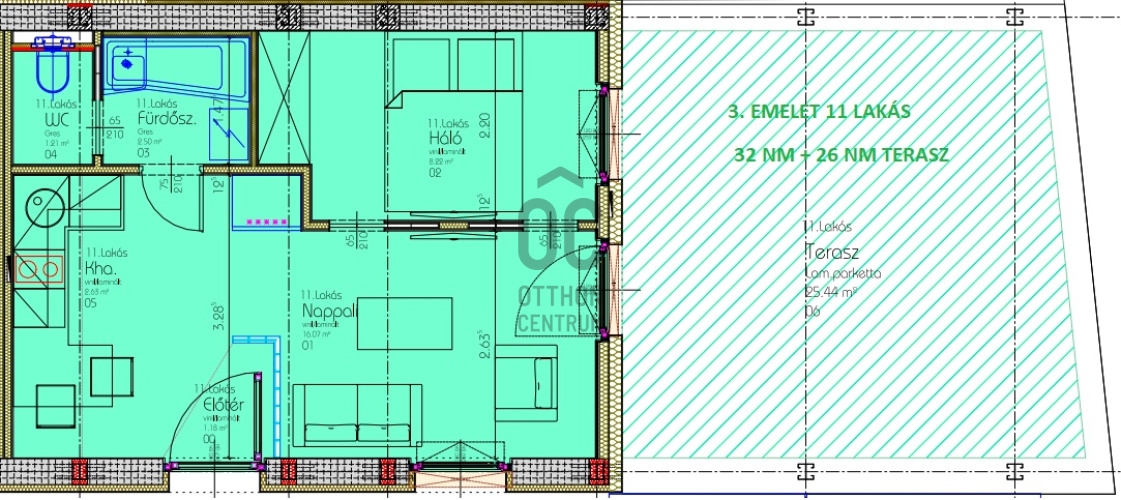
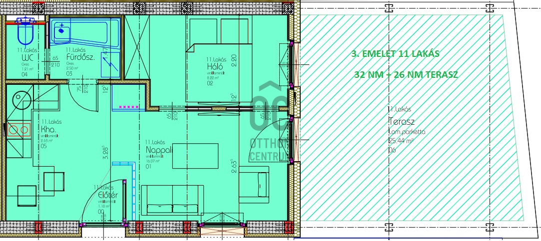
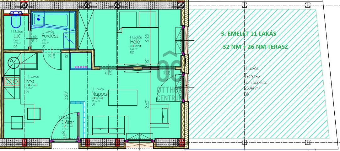
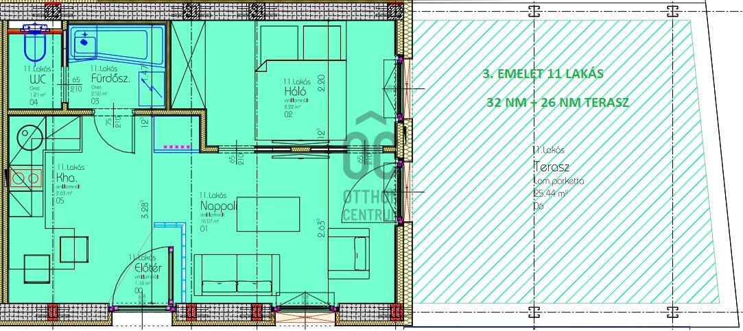
11. LAKÁS
III. emelet
2 szoba, 32 nm + 26 nm terasz
III. emelet
2 szoba, 32 nm + 26 nm terasz
Registration Number
P4589-1-01-03-011
Property Details
Sales
for sale
Legal Status
new
Character
apartment
Construction Method
ytong
Net Size
45 m²
Gross Size
62 m²
Size of Terrace / Balcony
30 m²
Heating
heat pump
Ceiling Height
270 cm
Orientation
North-West
Staircase Type
suspended corridor
Condition
Excellent
Condition of Facade
Excellent
Condition of Staircase
Excellent
Year of Construction
2022
Number of Bathrooms
1
Position
courtyard-facing
Water
Available
Electricity
Available
Sewer
Available
Elevator
available
Rooms
open-plan living and dining room
20 m²
bedroom
8 m²
values.realestate.szobatipus.49
30 m²
bathroom
3 m²
toilet
1 m²

Vitéz Kornél
Credit Expert