OTTHON CENTRUM
  • About Us
  • About Us
    • About Us
    • Analytic Division
  • Our Offices
  • Contact
    • Our Offices
  • Legal Information
    • Data Management Information
    • Announcements
    • Imprint
    • Financial Rules
    • Service Statement
    • Legal Statement
  • Manage Privacy
  • HU
Bauhaus illustration
Any
Any
City, District, Neighborhood
Miskolc
1 selected
-
Price in M Ft
m Ft
-
Price in e Ft
e Ft
-
Size m²
m²
-
Rooms count
pcs
Registration Number Projects Advanced Search
Legal Status
Any
realestate_type.hazTipus.label
Any
realestate_type.nyaraloTipus.label
Any
realestate_type.telekTipus.label
Any
realestate_type.garazsTipus.label
Any
realestate_type.lehetsegesFunkcio.label
Any
realestate_type.fejlesztesiCeluTipus.label
Any
Construction Method
Any
Heating
Any
Condition
Any
View
Any
Staircase Type
Any
Number of Bathrooms
Floor
Any
Any
Year of Construction
Where are you looking?
No Results
  • Budapest
  • Countryside

For rent apartment - Miskolc

1 property

for rent apartment

image
image
image
image
image
image
image
image
image
image
image
image
image
image
1/14
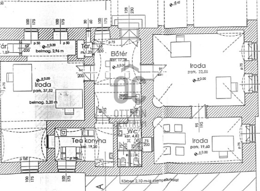
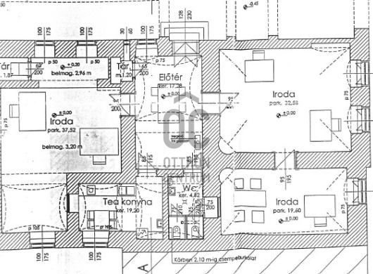
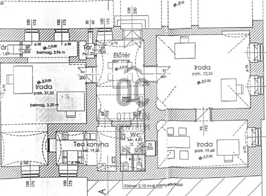
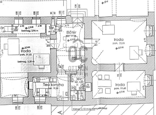
Miskolc
124m²
Belváros
3 room(s)
240e Ft 630 €
Ideális választás, ha irodájának, rendelőjének keres helyet a belvárosban vagy nagy lakást bérelne!

Miskolcon, a Városházától 25 méterre kiadó egy polgári jellegű, 124 m2-es alapterületű, utcára néző lakás hosszú távra. Jellemzői: - földszinti lakás - különleges boltíves kialakítású plafon, nagy belmagasság - 3 tágas szoba (37 és 33 m2-esek a legnagyobbak), előszoba, konyha, mosdó és tároló - irodának, rendelőnek tökéletes választás belső elrendezésének köszönhetően - lakás céljára is megfelelő - bútorozatlan - fa nyílászárók, új beltéri ajtók, festett falak, parketta és hidegburkolatok - egyedi fűtés gázkazánnal - vastag falaknak köszönhetően nyáron hűs, télen jól tartja a meleget - 32 m2-es pince tartozik hozzá, melynek bérlése külön megállapodás tárgya Két havi kaució szükséges és legalább egy éves bérlés! Egyedi lehetőség, egyedi ingatlan Miskolc központjában!

1 / 1 properties
  • Miskolc
  • for rent apartment in the area
  • Top for Sale
  • Top for Rent
  • for rent apartment 1
  • for rent commercial 6
  • for rent apartment Miskolc 1
  • for rent apartment Ózd 1
  • for sale apartment Abádszalók 2
  • for sale apartment Abony 1
  • for sale apartment Ajka 8
  • for sale apartment Albertirsa 2
  • for sale apartment Alsóörs 10
  • for sale apartment Alsópáhok 2
  • for sale apartment Aszód 1
  • for sale apartment Aszófő 5
  • for sale apartment Bácsalmás 1
  • for sale apartment Baja 4
  • for sale apartment Balatonakarattya 4
  • for sale apartment Balatonalmádi 3
  • for sale apartment Balatonboglár 9
  • for sale apartment Balatonfenyves 5
  • for sale apartment Balatonföldvár 11
  • for sale apartment Balatonfüred 17
  • for sale apartment Balatonfűzfő 4
  • for sale apartment Balatongyörök 1
  • for sale apartment Balatonlelle 9
  • for sale apartment Balatonmáriafürdő 2
  • for sale apartment Balatonszárszó 5
  • for sale apartment Balatonszemes 3
  • for sale apartment Balatonszepezd 2
  • for sale apartment Balatonudvari 1
  • for sale apartment Balmazújváros 11
  • for sale apartment Bátonyterenye 1
  • for sale apartment Bázakerettye 1
  • for sale apartment Berettyóújfalu 3
  • for sale apartment Berhida 1
  • for sale apartment Biatorbágy 2
  • for sale apartment Biharnagybajom 1
  • for sale apartment Bóly 2
  • for sale apartment Borsodnádasd 1
  • for sale apartment Budakeszi 6
  • for sale apartment Budaörs 9
  • for sale apartment Budapest I. kerület 62
  • for sale apartment Budapest II. kerület 138
  • for sale apartment Budapest II/A. kerület 7
  • for sale apartment Budapest III. kerület 132
  • for sale apartment Budapest IV. kerület 55
  • for sale apartment Budapest IX. kerület 105
  • for sale apartment Budapest V. kerület 194
  • for sale apartment Budapest VI. kerület 232
  • for sale apartment Budapest VII. kerület 218
  • for sale apartment Budapest VIII. kerület 188
  • for sale apartment Budapest X. kerület 48
  • for sale apartment Budapest XI. kerület 127
  • for sale apartment Budapest XII. kerület 70
  • for sale apartment Budapest XIII. kerület 366
  • for sale apartment Budapest XIV. kerület 115
  • for sale apartment Budapest XIX. kerület 28
  • for sale apartment Budapest XV. kerület 41
  • for sale apartment Budapest XVI. kerület 18
  • for sale apartment Budapest XVII. kerület 20
  • for sale apartment Budapest XVIII. kerület 39
  • for sale apartment Budapest XX. kerület 30
  • for sale apartment Budapest XXI. kerület 32
  • for sale apartment Budapest XXII. kerület 16
  • for sale apartment Budapest XXIII. kerület 10
  • for sale apartment Bük 3
  • for sale apartment Cegléd 29
  • for sale apartment Celldömölk 3
  • for sale apartment Csepreg 1
  • for sale apartment Cserkeszőlő 1
  • for sale apartment Cserszegtomaj 6
  • for sale apartment Csobánka 2
  • for sale apartment Csomád 1
  • for sale apartment Csopak 4
  • for sale apartment Csömör 2
  • for sale apartment Dabas 1
  • for sale apartment Debrecen 156
  • for sale apartment Diósd 1
  • for sale apartment Dorog 2
  • for sale apartment Dunaharaszti 2
  • for sale apartment Dunakeszi 11
  • for sale apartment Dunaújváros 10
  • for sale apartment Edelény 2
  • for sale apartment Eger 8
  • for sale apartment Ercsi 2
  • for sale apartment Érd 12
  • for sale apartment Esztergom 2
  • for sale apartment Etyek 1
  • for sale apartment Felsőszentiván 1
  • for sale apartment Fertőszentmiklós 4
  • for sale apartment Fonyód 14
  • for sale apartment Fót 4
  • for sale apartment Füzesabony 1
  • for sale apartment Galgamácsa 2
  • for sale apartment Gárdony 9
  • for sale apartment Gelse 1
  • for sale apartment Göd 5
  • for sale apartment Gödöllő 3
  • for sale apartment Gutorfölde 1
  • for sale apartment Gyál 2
  • for sale apartment Gyömrő 6
  • for sale apartment Gyöngyös 4
  • for sale apartment Gyöngyösoroszi 1
  • for sale apartment Győr 66
  • for sale apartment Győrladamér 1
  • for sale apartment Hajdúböszörmény 4
  • for sale apartment Hajdúhadház 1
  • for sale apartment Hajdúsámson 1
  • for sale apartment Hajdúszoboszló 21
  • for sale apartment Hajmáskér 1
  • for sale apartment Halásztelek 2
  • for sale apartment Harkány 9
  • for sale apartment Hatvan 1
  • for sale apartment Hegykő 1
  • for sale apartment Helvécia 1
  • for sale apartment Herceghalom 3
  • for sale apartment Herend 3
  • for sale apartment Hévíz 41
  • for sale apartment Hódmezővásárhely 2
  • for sale apartment Isaszeg 1
  • for sale apartment Jánosháza 1
  • for sale apartment Kalocsa 2
  • for sale apartment Kápolnásnyék 1
  • for sale apartment Kaposvár 37
  • for sale apartment Kazincbarcika 4
  • for sale apartment Kecskemét 26
  • for sale apartment Kehidakustány 4
  • for sale apartment Kemecse 1
  • for sale apartment Kerepes 2
  • for sale apartment Keszthely 33
  • for sale apartment Kistarcsa 2
  • for sale apartment Kisvárda 5
  • for sale apartment Komárom 2
  • for sale apartment Komló 10
  • for sale apartment Kozármisleny 1
  • for sale apartment Körmend 8
  • for sale apartment Kőröshegy 1
  • for sale apartment Kőszeg 10
  • for sale apartment Kőszegszerdahely 1
  • for sale apartment Kulcs 1
  • for sale apartment Lenti 1
  • for sale apartment Letenye 1
  • for sale apartment Lovászi 2
  • for sale apartment Makó 9
  • for sale apartment Marcali 1
  • for sale apartment Mezőhegyes 1
  • for sale apartment Mindszent 1
  • for sale apartment Miskolc 24
  • for sale apartment Mohács 11
  • for sale apartment Monor 2
  • for sale apartment Mór 1
  • for sale apartment Mosonmagyaróvár 3
  • for sale apartment Nagyatád 1
  • for sale apartment Nagybajcs 1
  • for sale apartment Nagycenk 1
  • for sale apartment Nagykanizsa 39
  • for sale apartment Nagykáta 1
  • for sale apartment Nagykovácsi 1
  • for sale apartment Nagykőrös 2
  • for sale apartment Nagyrada 1
  • for sale apartment Nagyszentjános 1
  • for sale apartment Nagytarcsa 1
  • for sale apartment Nemesbük 4
  • for sale apartment Nyáregyháza 2
  • for sale apartment Nyergesújfalu 3
  • for sale apartment Nyíregyháza 37
  • for sale apartment Oroszlány 1
  • for sale apartment Oszkó 1
  • for sale apartment Ózd 11
  • for sale apartment Paks 22
  • for sale apartment Pápa 11
  • for sale apartment Pécel 1
  • for sale apartment Pécs 106
  • for sale apartment Pécsvárad 1
  • for sale apartment Perbál 1
  • for sale apartment Pétfürdő 3
  • for sale apartment Piliscsaba 3
  • for sale apartment Pilisjászfalu 1
  • for sale apartment Pilisvörösvár 2
  • for sale apartment Polgárdi 5
  • for sale apartment Pomáz 3
  • for sale apartment Rétság 1
  • for sale apartment Salgótarján 1
  • for sale apartment Sárbogárd 9
  • for sale apartment Sárospatak 1
  • for sale apartment Sárvár 1
  • for sale apartment Sátoraljaújhely 1
  • for sale apartment Siklós 5
  • for sale apartment Simontornya 1
  • for sale apartment Siófok 76
  • for sale apartment Sitke 1
  • for sale apartment Solymár 1
  • for sale apartment Sopron 12
  • for sale apartment Szántód 4
  • for sale apartment Százhalombatta 4
  • for sale apartment Szeged 13
  • for sale apartment Székesfehérvár 37
  • for sale apartment Szekszárd 23
  • for sale apartment Szentendre 6
  • for sale apartment Szentgotthárd 1
  • for sale apartment Szigetcsép 1
  • for sale apartment Szigethalom 2
  • for sale apartment Szigetszentmiklós 14
  • for sale apartment Szigetvár 4
  • for sale apartment Szolnok 14
  • for sale apartment Szombathely 18
  • for sale apartment Tahitótfalu 1
  • for sale apartment Tamási 1
  • for sale apartment Tapolca 8
  • for sale apartment Tárnok 1
  • for sale apartment Tata 7
  • for sale apartment Tatabánya 16
  • for sale apartment Telki 1
  • for sale apartment Teskánd 2
  • for sale apartment Tét 1
  • for sale apartment Tiszafüred 5
  • for sale apartment Tófej 1
  • for sale apartment Tokodaltáró 1
  • for sale apartment Tolna 1
  • for sale apartment Törökbálint 4
  • for sale apartment Újlengyel 2
  • for sale apartment Úny 1
  • for sale apartment Üllő 3
  • for sale apartment Üröm 3
  • for sale apartment Vác 15
  • for sale apartment Vácrátót 1
  • for sale apartment Várpalota 5
  • for sale apartment Vásárosnamény 4
  • for sale apartment Vasvár 2
  • for sale apartment Vecsés 1
  • for sale apartment Velence 4
  • for sale apartment Veresegyház 3
  • for sale apartment Veszprém 17
  • for sale apartment Villány 1
  • for sale apartment Vonyarcvashegy 1
  • for sale apartment Záhony 1
  • for sale apartment Zákány 3
  • for sale apartment Zalacsány 3
  • for sale apartment Zalaegerszeg 31
  • for sale apartment Zalakaros 2
  • for sale apartment Zalaszentgrót 2
  • for sale apartment Zamárdi 6
  • for sale apartment Zirc 1
  • for sale apartment Zsámbék 1
  • for sale apartment Zsombó 1
  • for rent apartment Balatonfenyves 1
  • for rent apartment Ballószög 1
  • for rent apartment Budaörs 1
  • for rent apartment Budapest I. kerület 12
  • for rent apartment Budapest II. kerület 22
  • for rent apartment Budapest III. kerület 13
  • for rent apartment Budapest IV. kerület 1
  • for rent apartment Budapest IX. kerület 13
  • for rent apartment Budapest V. kerület 37
  • for rent apartment Budapest VI. kerület 47
  • for rent apartment Budapest VII. kerület 19
  • for rent apartment Budapest VIII. kerület 6
  • for rent apartment Budapest X. kerület 3
  • for rent apartment Budapest XI. kerület 16
  • for rent apartment Budapest XII. kerület 11
  • for rent apartment Budapest XIII. kerület 35
  • for rent apartment Budapest XIV. kerület 10
  • for rent apartment Budapest XIX. kerület 1
  • for rent apartment Budapest XV. kerület 1
  • for rent apartment Budapest XVI. kerület 2
  • for rent apartment Budapest XVIII. kerület 1
  • for rent apartment Budapest XX. kerület 2
  • for rent apartment Budapest XXII. kerület 2
  • for rent apartment Cegléd 5
  • for rent apartment Debrecen 39
  • for rent apartment Dunaújváros 2
  • for rent apartment Eger 1
  • for rent apartment Érd 1
  • for rent apartment Gárdony 1
  • for rent apartment Göd 4
  • for rent apartment Gyöngyös 1
  • for rent apartment Győr 1
  • for rent apartment Hajdúszoboszló 1
  • for rent apartment Hévíz 1
  • for rent apartment Kecskemét 2
  • for rent apartment Kőszegszerdahely 1
  • for rent apartment Miskolc 1
  • for rent apartment Nagykőrös 1
  • for rent apartment Nyíregyháza 6
  • for rent apartment Ózd 1
  • for rent apartment Paks 1
  • for rent apartment Pápa 2
  • for rent apartment Pécs 7
  • for rent apartment Siófok 3
  • for rent apartment Szeged 3
  • for rent apartment Székesfehérvár 2
  • for rent apartment Szekszárd 3
  • for rent apartment Szolnok 3
  • for rent apartment Tata 4
  • for rent apartment Tatabánya 3
  • for rent apartment Tolna 1
  • for rent apartment Tököl 1
  • for rent apartment Törökbálint 2
  • for rent apartment Zalaegerszeg 2

Contact

  1. Our Offices
  2. Customer Service:
    Home Center
    1023 Budapest,
    Lajos u. 28-32.
    +36 70 388 6000
    ugyfelszolgalat@oc.hu
  3. Press Contact:
    sajto@oc.hu

I Want to Buy

  1. Purchase
  2. Rent
  3. New Properties
  4. Apartments for Sale in Budapest

About Us

  1. About Us
  2. Analytic Division

Legal Information

  1. Data Management Information
  2. Imprint
  3. Financial Rules
  4. Service Statement
  5. Legal Statement
  1. Customer Service:
    Otthon Centrum
    1023 Budapest,
    Lajos u. 28-32.
    +36 70 388 6000
    ugyfelszolgalat@oc.hu
  2. Press Contact:
    sajto@oc.hu