data_sheet.details.realestate.section.main.otthonstart_flag.label
For sale apartment,
H455095
Budakeszi
91,900,000 Ft
237,000 €
- 174m²
- 4 Rooms
- ground floor











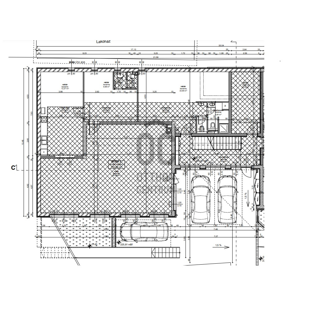
Budakeszi központban csak egy lépésre a kék busztól és boltoktól, eladó egy biztonságos zárt belső udvarból megközelíthető nettó 174 nm nagyságú lakás befejezés előtti állapotban. A lakás jelenleg egy nagyobb és egy kisebb lakóegységként üzeme, szerkezete megengedi, hogy a falakat is igény szerint helyezzük el saját igény szerint. A közművek duplán állnak rendelkezésre, mindenből kettő van. Az ingatlanhoz tartozik egy saját kert valamint három felszíni gépkocsi beálló.
Tulajdoni lap szerint tároló külön helyrajzi számon nyilvántartva.
További információért várom szíves hívását !
Tulajdoni lap szerint tároló külön helyrajzi számon nyilvántartva.
További információért várom szíves hívását !
Registration Number
H455095
Property Details
Sales
for sale
Legal Status
used
Character
apartment
Construction Method
brick
Net Size
174 m²
Gross Size
190 m²
Heating
Gas circulator
Ceiling Height
265 cm
Orientation
South-East
Staircase Type
enclosed staircase
Condition
Excellent
Condition of Facade
Excellent
Condition of Staircase
Excellent
Neighborhood
good transport, central
Year of Construction
2013
Number of Bathrooms
2
Position
courtyard-facing
Condominium Garden
yes
Water
Available
Gas
Available
Electricity
Available
Sewer
Available
Storage
Independent
Rooms
living room
82 m²
kitchen
17 m²
room
12 m²
bathroom-toilet
5 m²
room
10 m²
other room
22 m²
bathroom-toilet
6 m²
room
8 m²

Pfeffer Kinga
Credit Expert