189 900 000 Ft
489 000 €
- 210m²
- 7 szoba

































Family house customizable to your own taste in Budafok-Tétény
We offer for sale a 3-story family house waiting for renovation, located on the border of Budafok and Budatétény. The house was built in 1987 from 30 cm bricks and received 10 cm of polystyrene insulation a few years ago. Currently, it has two full living levels, as well as an attic and a ground floor garage-workshop-storage level. The heated garage can accommodate 1 larger car, but there is space for an additional 2-3 cars in the garden. There is also a laundry room and a boiler room located here, and the workshop has industrial electricity (400V). Each living level is 85 square meters, the attic is gross 49 square meters (net 27 square meters), and the lower basement level (garage-workshop-storage) is also 85 square meters. Heating is provided by a condensing gas boiler and radiators, and hot water is supplied by a gas boiler and hot water storage tank, as well as an electric boiler. The old metal-framed windows need to be replaced. The electrical wiring has not yet been changed. Lower level: terrace (12 square meters, with direct access to the garden), living room (with a new air conditioning unit and fireplace), dining room, kitchen, study, shower and toilet. From the dining room, there is another terrace (6 square meters) that overlooks the side garden. Upper level: 3 spacious (>15 square meters) rooms, bathroom-toilet. One of the rooms has a 9 square meter balcony, which is currently enclosed but can easily be converted back to an open one. The largest room also has a balcony. From this room, you can access the attic, which was built in 2006, along with the roof renovation. At that time, the roofing received 15 cm of insulation. Attic: 2 rooms, kitchen-antechamber, toilet with hand wash basin. One of the rooms is also air-conditioned. The attic area is in good condition compared to the rest of the house. At the back of the plot, there is a separate 30 square meter workshop/garage, with water and three-phase industrial electricity. The garden has several fruit trees, and large mulberry trees provide shade. In the front garden, there is a charming fish pond with goldfish and water lilies. It offers excellent opportunities for creating a garden pool, barbecue area, and gazebo. Public transportation is available in both directions, just 5 minutes away (Klauzál Street, Háros Street). Both the garden and the house provide numerous opportunities for you to realize your ideas, creating a new, beautiful, livable space for you and your family! If you have any questions or would like to schedule a personal viewing, please feel free to call. We support our buyer clients with free, independent mortgage advice to help them make the most favorable financing decisions. With our optional additional services – such as legal assistance, energy certificates, or electrical safety inspections – we provide comprehensive professional support at every step of the sales process.
Regisztrációs szám
H505026
Az ingatlan adatai
Értékesités
eladó
Jogi státusz
használt
Jelleg
ház
Építési mód
tégla
Méret
210 m²
Bruttó méret
290 m²
Telek méret
996 m²
Terasz / erkély mérete
27,5 m²
Kert méret
800 m²
Fűtés
Gáz cirkó
Belmagasság
270 cm
Lakáson belüli szintszám
2
Tájolás
Dél-nyugat
Állapot
Felújítandó
Homlokzat állapota
Jó
Pince
Önálló
Építés éve
1987
Fürdőszobák száma
2
Társaház kert
igen
Garázs
Benne van az árban
Garázs férőhely
2
Víz
Van
Gáz
Van
Villany
Van
Csatorna
Van
Többgenerációs
igen
Tároló
Önálló
Helyiségek
nappali
29.4 m²
ebédlő
19.5 m²
konyha
7.4 m²
szoba
10.6 m²
fürdőszoba-wc
2.2 m²
közlekedő
8.2 m²
szoba
15.6 m²
szoba
17.4 m²
szoba
26.3 m²
fürdőszoba-wc
12.1 m²
közlekedő
8 m²
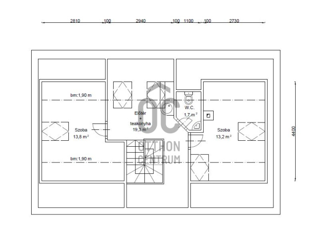
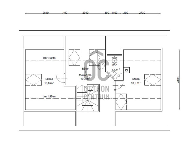
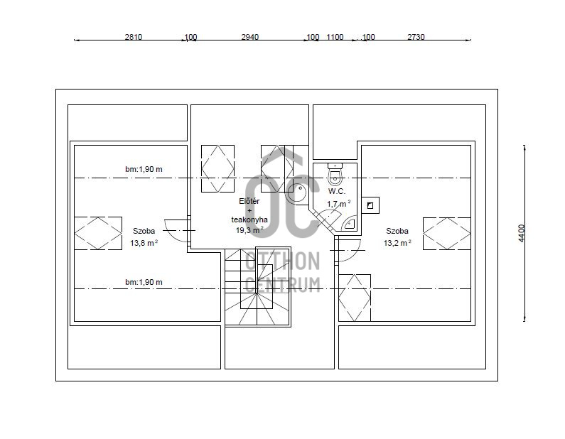
szoba
13.8 m²
szoba
13.2 m²
konyha-étkező
19.3 m²
wc
1.7 m²

Ruczek János
Hitelszakértő