OTTHON CENTRUM
  • About Us
  • About Us
    • About Us
    • Analytic Division
  • Our Offices
  • Contact
    • Our Offices
  • Legal Information
    • Data Management Information
    • Announcements
    • Imprint
    • Financial Rules
    • Service Statement
    • Legal Statement
  • Manage Privacy
  • HU
Bauhaus illustration
Any
Any
City, District, Neighborhood
Győrújfalu
1 selected
-
Price in M Ft
m Ft
-
Price in e Ft
e Ft
-
Size m²
m²
-
Rooms count
pcs
Registration Number Projects Advanced Search
Legal Status
Any
Type
Any
Type
Any
Type
Any
Type
Any
Function
Any
Type
Any
Construction Method
Any
Heating
Any
Condition
Any
View
Any
Staircase Type
Any
Number of Bathrooms
Floor
Any
Any
Year of Construction
Where are you looking?
No Results
  • Budapest
  • Countryside

For sale house - Győrújfalu

1 property

for sale new construction semi-detached house

image
image
image
image
image
image
image
image
image
data_sheet.details.realestate.section.main.otthonstart_flag.label
1/9
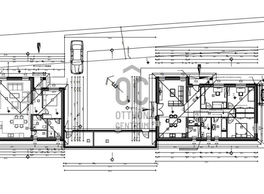
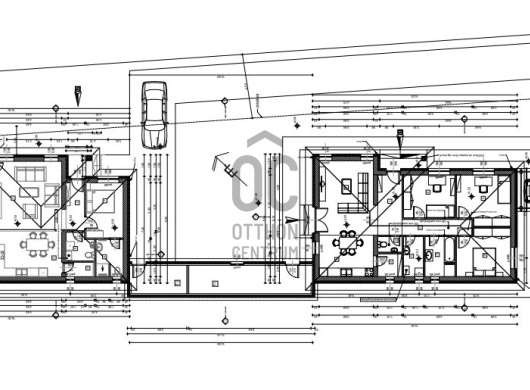
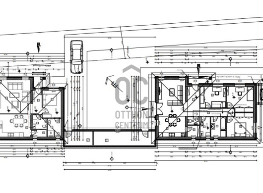
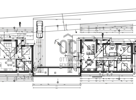
Győrújfalu
93,6m²
Győrújfalu
4 room(s)
94.9M Ft 266,000 €
A faluk Győre

Győr kertvárosában Győrújfalun eladó egy ikerház, amely a minőségi kivitelezésével és kiváló elrendezésével egy fiatalos otthont tud adni. A telekrész 517 nm, a ház pedig 93.66 nm. A két ingatlan külön álló, csak a tárolók kötik össze. Amerikai konyhás nappali, 3 szoba, fürdőszoba, kamra, külön Wc, háztartási helység, előtér és egy 16.98 nm-es tároló tartozik a házhoz. Műszaki tartalom: - 15 cm-es homlokzati szigetelés - 30-as falazóelem - 3 rétegű műanyag nyílászárok - A melegvíz ellátást és a fűtést kondenzációs kazán biztosítja padlófűtéssel -Hőszivattyús fűtés Hitelre van szüksége? Tudunk segíteni! Az Otthon Centrum az ország egyik legnagyobb és legmegbízhatóbb hitelközvetítőjeként, teljes körű és díjmentes hitel ügyintézéssel, biztosításkötéssel áll rendelkezésére! Kérje személyre szabott ajánlatunkat Kollégáinktól!

1 / 1 properties
  • Győrújfalu
  • for sale house in the area
  • Top for Sale
  • Top for Rent
  • for sale apartment 1
  • for sale house 1
  • for sale house Abda 3
  • for sale house Ásványráró 2
  • for sale house Bakonyszentlászló 6
  • for sale house Bodonhely 1
  • for sale house Bőny 1
  • for sale house Bősárkány 1
  • for sale house Csapod 1
  • for sale house Csorna 3
  • for sale house Dunaremete 1
  • for sale house Dunaszeg 2
  • for sale house Dunaszentpál 1
  • for sale house Felpéc 1
  • for sale house Gönyű 3
  • for sale house Gyarmat 1
  • for sale house Győr 69
  • for sale house Győrság 1
  • for sale house Győrszemere 1
  • for sale house Győrújbarát 18
  • for sale house Győrújfalu 1
  • for sale house Győrzámoly 5
  • for sale house Harka 3
  • for sale house Hegyeshalom 2
  • for sale house Hegykő 1
  • for sale house Hidegség 1
  • for sale house Kapuvár 2
  • for sale house Kópháza 1
  • for sale house Kunsziget 1
  • for sale house Levél 1
  • for sale house Mecsér 4
  • for sale house Mórichida 1
  • for sale house Mosonmagyaróvár 4
  • for sale house Mosonszolnok 1
  • for sale house Nagycenk 1
  • for sale house Nagyszentjános 1
  • for sale house Nyúl 4
  • for sale house Öttevény 4
  • for sale house Pannonhalma 1
  • for sale house Pázmándfalu 1
  • for sale house Pér 1
  • for sale house Rábacsécsény 1
  • for sale house Rábapatona 2
  • for sale house Rábapordány 2
  • for sale house Rábaszentmihály 1
  • for sale house Rábatamási 1
  • for sale house Románd 1
  • for sale house Sopron 11
  • for sale house Szerecseny 2
  • for sale house Tényő 1
  • for sale house Tét 3
  • for sale house Töltéstava 3
  • for sale house Vámosszabadi 3
  • for sale house Veszprémvarsány 1
  • for sale house Völcsej 1
  • for sale house Zsira 1
  • for sale house Aba 19
  • for sale house Abádszalók 8
  • for sale house Abaliget 1
  • for sale house Abasár 3
  • for sale house Abda 3
  • for sale house Abony 35
  • for sale house Ábrahámhegy 7
  • for sale house Ács 4
  • for sale house Acsa 1
  • for sale house Ácsteszér 1
  • for sale house Adács 1
  • for sale house Ádánd 7
  • for sale house Adásztevel 2
  • for sale house Ágasegyháza 1
  • for sale house Ajka 9
  • for sale house Akasztó 1
  • for sale house Alap 2
  • for sale house Alattyán 1
  • for sale house Albertirsa 17
  • for sale house Alcsútdoboz 2
  • for sale house Almásfüzitő 1
  • for sale house Álmosd 2
  • for sale house Alsónána 3
  • for sale house Alsónémedi 3
  • for sale house Alsónemesapáti 1
  • for sale house Alsóörs 3
  • for sale house Alsópáhok 6
  • for sale house Alsórajk 2
  • for sale house Alsószentiván 1
  • for sale house Alsóújlak 1
  • for sale house Anarcs 1
  • for sale house Annavölgy 1
  • for sale house Apaj 1
  • for sale house Aparhant 1
  • for sale house Apátfalva 2
  • for sale house Apátistvánfalva 1
  • for sale house Apátvarasd 1
  • for sale house Áporka 1
  • for sale house Apostag 1
  • for sale house Aranyosapáti 2
  • for sale house Aranyosgadány 1
  • for sale house Ártánd 1
  • for sale house Ásványráró 2
  • for sale house Aszaló 1
  • for sale house Aszód 2
  • for sale house Babarc 1
  • for sale house Bábolna 1
  • for sale house Babosdöbréte 1
  • for sale house Bácsalmás 3
  • for sale house Bácsbokod 5
  • for sale house Bácsborsód 1
  • for sale house Badacsonytomaj 13
  • for sale house Badacsonytördemic 1
  • for sale house Bag 8
  • for sale house Bagamér 4
  • for sale house Bagod 1
  • for sale house Baj 1
  • for sale house Baja 19
  • for sale house Bajánsenye 2
  • for sale house Bajna 2
  • for sale house Bajót 3
  • for sale house Bak 3
  • for sale house Bakonszeg 1
  • for sale house Bakonybél 3
  • for sale house Bakonycsernye 4
  • for sale house Bakonykúti 1
  • for sale house Bakonynána 1
  • for sale house Bakonyszentkirály 2
  • for sale house Bakonyszentlászló 6
  • for sale house Bakonyszücs 1
  • for sale house Bakonytamási 1
  • for sale house Baksa 2
  • for sale house Baktalórántháza 2
  • for sale house Balajt 2
  • for sale house Balassagyarmat 1
  • for sale house Balástya 1
  • for sale house Balatonakali 4
  • for sale house Balatonakarattya 2
  • for sale house Balatonalmádi 13
  • for sale house Balatonberény 4
  • for sale house Balatonboglár 19
  • for sale house Balatoncsicsó 2
  • for sale house Balatonederics 8
  • for sale house Balatonendréd 2
  • for sale house Balatonfenyves 5
  • for sale house Balatonfőkajár 1
  • for sale house Balatonföldvár 13
  • for sale house Balatonfüred 34
  • for sale house Balatonfűzfő 4
  • for sale house Balatongyörök 5
  • for sale house Balatonhenye 1
  • for sale house Balatonkenese 11
  • for sale house Balatonkeresztúr 6
  • for sale house Balatonlelle 22
  • for sale house Balatonmagyaród 1
  • for sale house Balatonmáriafürdő 5
  • for sale house Balatonőszöd 2
  • for sale house Balatonrendes 1
  • for sale house Balatonszabadi 8
  • for sale house Balatonszárszó 4
  • for sale house Balatonszemes 5
  • for sale house Balatonszentgyörgy 6
  • for sale house Balatonszepezd 3
  • for sale house Balatonudvari 5
  • for sale house Balatonvilágos 7
  • for sale house Balkány 2
  • for sale house Ballószög 3
  • for sale house Balmazújváros 5
  • for sale house Bálványos 1
  • for sale house Bana 1
  • for sale house Bánokszentgyörgy 3
  • for sale house Bár 1
  • for sale house Barabás 2
  • for sale house Baracska 3
  • for sale house Barcs 2
  • for sale house Bárdudvarnok 1
  • for sale house Barnag 2
  • for sale house Báta 1
  • for sale house Bátaapáti 1
  • for sale house Bátaszék 6
  • for sale house Bátmonostor 2
  • for sale house Bátonyterenye 4
  • for sale house Batyk 3
  • for sale house Bázakerettye 4
  • for sale house Becsehely 7
  • for sale house Becsvölgye 1
  • for sale house Bedegkér 1
  • for sale house Békéscsaba 1
  • for sale house Bekölce 1
  • for sale house Belezna 2
  • for sale house Beloiannisz 1
  • for sale house Belvárdgyula 3
  • for sale house Beregdaróc 2
  • for sale house Berekböszörmény 7
  • for sale house Berekfürdő 1
  • for sale house Beremend 3
  • for sale house Berettyóújfalu 13
  • for sale house Berhida 8
  • for sale house Berkenye 2
  • for sale house Berkesd 3
  • for sale house Berzence 6
  • for sale house Bezeréd 1
  • for sale house Biatorbágy 17
  • for sale house Bicsérd 1
  • for sale house Bicske 9
  • for sale house Bihardancsháza 2
  • for sale house Biharkeresztes 5
  • for sale house Biri 1
  • for sale house Birján 2
  • for sale house Bocfölde 3
  • for sale house Bócsa 3
  • for sale house Bocskaikert 16
  • for sale house Boda 2
  • for sale house Bodajk 4
  • for sale house Bodmér 1
  • for sale house Bodolyabér 1
  • for sale house Bodonhely 1
  • for sale house Bodony 2
  • for sale house Bodorfa 1
  • for sale house Bodrog 1
  • for sale house Bogács 1
  • for sale house Bogád 1
  • for sale house Bogyiszló 2
  • for sale house Boldogasszonyfa 1
  • for sale house Boldva 1
  • for sale house Bóly 4
  • for sale house Boncodfölde 3
  • for sale house Bonyhád 5
  • for sale house Borsfa 1
  • for sale house Borsodnádasd 2
  • for sale house Borsodszentgyörgy 1
  • for sale house Borzavár 1
  • for sale house Bő 3
  • for sale house Böde 1
  • for sale house Böhönye 3
  • for sale house Bölcske 2
  • for sale house Bőny 1
  • for sale house Börzönce 1
  • for sale house Bősárkány 1
  • for sale house Bőszénfa 1
  • for sale house Bucsuszentlászló 1
  • for sale house Budajenő 7
  • for sale house Budakalász 16
  • for sale house Budakeszi 18
  • for sale house Budaörs 36
  • for sale house Budapest I. kerület 1
  • for sale house Budapest II. kerület 23
  • for sale house Budapest II/A. kerület 61
  • for sale house Budapest III. kerület 76
  • for sale house Budapest IV. kerület 11
  • for sale house Budapest IX. kerület 1
  • for sale house Budapest VIII. kerület 3
  • for sale house Budapest X. kerület 18
  • for sale house Budapest XI. kerület 28
  • for sale house Budapest XII. kerület 23
  • for sale house Budapest XIII. kerület 6
  • for sale house Budapest XIV. kerület 32
  • for sale house Budapest XIX. kerület 24
  • for sale house Budapest XV. kerület 39
  • for sale house Budapest XVI. kerület 66
  • for sale house Budapest XVII. kerület 76
  • for sale house Budapest XVIII. kerület 98
  • for sale house Budapest XX. kerület 49
  • for sale house Budapest XXI. kerület 21
  • for sale house Budapest XXII. kerület 62
  • for sale house Budapest XXIII. kerület 26
  • for sale house Bugac 2
  • for sale house Bugyi 5
  • for sale house Buzsák 3
  • for sale house Bük 2
  • for sale house Bükkösd 4
  • for sale house Cák 1
  • for sale house Cece 3
  • for sale house Cegléd 48
  • for sale house Ceglédbercel 6
  • for sale house Celldömölk 5
  • for sale house Cibakháza 1
  • for sale house Csabdi 2
  • for sale house Csabrendek 1
  • for sale house Csákánydoroszló 1
  • for sale house Csákberény 3
  • for sale house Csákvár 3
  • for sale house Csanádpalota 4
  • for sale house Csány 4
  • for sale house Csapi 1
  • for sale house Csapod 1
  • for sale house Csávoly 2
  • for sale house Csécse 4
  • for sale house Csemő 7
  • for sale house Csempeszkopács 1
  • for sale house Csengőd 1
  • for sale house Csénye 1
  • for sale house Csép 1
  • for sale house Csépa 1
  • for sale house Cserdi 2
  • for sale house Cserkeszőlő 1
  • for sale house Cserkút 1
  • for sale house Cserszegtomaj 34
  • for sale house Csertő 1
  • for sale house Csesztreg 3
  • for sale house Csévharaszt 1
  • for sale house Csikóstőttős 1
  • for sale house Csipkerek 3
  • for sale house Csobánka 7
  • for sale house Csókakő 4
  • for sale house Csokonyavisonta 1
  • for sale house Csokvaomány 2
  • for sale house Csolnok 4
  • for sale house Csomád 6
  • for sale house Csopak 7
  • for sale house Csór 2
  • for sale house Csorna 3
  • for sale house Csót 2
  • for sale house Csögle 1
  • for sale house Csömödér 5
  • for sale house Csömör 17
  • for sale house Csörnyeföld 4
  • for sale house Csörög 5
  • for sale house Csősz 1
  • for sale house Csővár 1
  • for sale house Csurgó 8
  • for sale house Csurgónagymarton 1
  • for sale house Dabas 14
  • for sale house Dág 1
  • for sale house Dalmand 1
  • for sale house Dánszentmiklós 3
  • for sale house Dány 2
  • for sale house Daruszentmiklós 2
  • for sale house Dávod 4
  • for sale house Debrecen 338
  • for sale house Debrecen-Bánk fp. 1
  • for sale house Decs 2
  • for sale house Dég 4
  • for sale house Délegyháza 16
  • for sale house Demecser 3
  • for sale house Demjén 1
  • for sale house Derecske 5
  • for sale house Deszk 1
  • for sale house Detk 2
  • for sale house Dévaványa 1
  • for sale house Devecser 3
  • for sale house Diósd 27
  • for sale house Dióskál 2
  • for sale house Diósviszló 1
  • for sale house Dobri 2
  • for sale house Dombóvár 1
  • for sale house Dombrád 1
  • for sale house Domony 5
  • for sale house Domoszló 11
  • for sale house Dormánd 1
  • for sale house Dorog 7
  • for sale house Döbröce 1
  • for sale house Döge 3
  • for sale house Dömsöd 18
  • for sale house Dörgicse 1
  • for sale house Döröske 1
  • for sale house Drávasztára 1
  • for sale house Dunaalmás 1
  • for sale house Dunabogdány 8
  • for sale house Dunaharaszti 37
  • for sale house Dunakeszi 31
  • for sale house Dunapataj 2
  • for sale house Dunaremete 1
  • for sale house Dunaszeg 2
  • for sale house Dunaszekcső 3
  • for sale house Dunaszentgyörgy 5
  • for sale house Dunaszentpál 1
  • for sale house Dunaújváros 5
  • for sale house Dunavarsány 12
  • for sale house Dunavecse 4
  • for sale house Ebes 8
  • for sale house Ecséd 2
  • for sale house Ecseg 1
  • for sale house Ecser 2
  • for sale house Edelény 2
  • for sale house Eger 10
  • for sale house Egerág 1
  • for sale house Egeraracsa 1
  • for sale house Egerbakta 2
  • for sale house Egerbocs 2
  • for sale house Egercsehi 1
  • for sale house Egerszalók 1
  • for sale house Egervár 1
  • for sale house Egyek 25
  • for sale house Egyházaskesző 2
  • for sale house Enying 18
  • for sale house Eperjeske 1
  • for sale house Epöl 2
  • for sale house Ercsi 18
  • for sale house Érd 99
  • for sale house Erdőbénye 1
  • for sale house Erdőhorváti 1
  • for sale house Erdőkertes 15
  • for sale house Erdőkövesd 1
  • for sale house Erdősmecske 2
  • for sale house Érsekcsanád 2
  • for sale house Érsekvadkert 1
  • for sale house Eszteregnye 3
  • for sale house Esztergályhorváti 1
  • for sale house Esztergom 44
  • for sale house Etyek 9
  • for sale house Fácánkert 2
  • for sale house Fadd 5
  • for sale house Farmos 3
  • for sale house Fazekasboda 1
  • for sale house Fehérvárcsurgó 9
  • for sale house Felcsút 3
  • for sale house Feldebrő 1
  • for sale house Felpéc 1
  • for sale house Felsőcsatár 1
  • for sale house Felsőjánosfa 1
  • for sale house Felsőmarác 1
  • for sale house Felsőörs 4
  • for sale house Felsőrajk 1
  • for sale house Felsőszenterzsébet 1
  • for sale house Felsőszentiván 1
  • for sale house Felsőszentmárton 2
  • for sale house Felsőtárkány 1
  • for sale house Felsőzsolca 1
  • for sale house Fényeslitke 2
  • for sale house Ferencszállás 1
  • for sale house Fiad 1
  • for sale house Fityeház 3
  • for sale house Foktő 1
  • for sale house Fonó 1
  • for sale house Fonyód 8
  • for sale house Fót 30
  • for sale house Földes 1
  • for sale house Főnyed 1
  • for sale house Furta 1
  • for sale house Füle 3
  • for sale house Fülöp 1
  • for sale house Fülöpszállás 1
  • for sale house Füzérradvány 1
  • for sale house Füzesabony 2
  • for sale house Gáborjánháza 1
  • for sale house Gadány 1
  • for sale house Galambok 2
  • for sale house Galgaguta 1
  • for sale house Galgagyörk 1
  • for sale house Galgahévíz 4
  • for sale house Galgamácsa 3
  • for sale house Gamás 1
  • for sale house Ganna 3
  • for sale house Gara 7
  • for sale house Garabonc 4
  • for sale house Gárdony 18
  • for sale house Garé 1
  • for sale house Gasztony 1
  • for sale house Gávavencsellő 3
  • for sale house Géberjén 1
  • for sale house Gellénháza 3
  • for sale house Gelse 2
  • for sale house Gencsapáti 2
  • for sale house Geresdlak 4
  • for sale house Gerjen 2
  • for sale house Gersekarát 1
  • for sale house Geszteréd 1
  • for sale house Gomba 9
  • for sale house Gór 1
  • for sale house Göd 50
  • for sale house Gödöllő 18
  • for sale house Gödre 1
  • for sale house Gölle 1
  • for sale house Gönyű 3
  • for sale house Görbeháza 1
  • for sale house Görcsöny 4
  • for sale house Görcsönydoboka 2
  • for sale house Gutorfölde 3
  • for sale house Gyál 29
  • for sale house Gyarmat 1
  • for sale house Gyékényes 3
  • for sale house Gyenesdiás 25
  • for sale house Gyód 1
  • for sale house Gyömrő 22
  • for sale house Gyöngyös 24
  • for sale house Gyöngyöshalász 2
  • for sale house Gyöngyösoroszi 4
  • for sale house Gyöngyöspata 2
  • for sale house Gyöngyössolymos 6
  • for sale house Gyöngyöstarján 1
  • for sale house Gyönk 2
  • for sale house Győr 69
  • for sale house Györköny 1
  • for sale house Győrság 1
  • for sale house Győrszemere 1
  • for sale house Győrújbarát 18
  • for sale house Győrújfalu 1
  • for sale house Győrvár 2
  • for sale house Győrzámoly 5
  • for sale house Gyulakeszi 1
  • for sale house Gyúró 1
  • for sale house Gyüre 1
  • for sale house Hagyárosbörönd 1
  • for sale house Hahót 2
  • for sale house Hajdúbagos 1
  • for sale house Hajdúböszörmény 24
  • for sale house Hajdúdorog 4
  • for sale house Hajdúhadház 7
  • for sale house Hajdúnánás 3
  • for sale house Hajdúsámson 55
  • for sale house Hajdúszoboszló 21
  • for sale house Hajdúszovát 8
  • for sale house Halastó 1
  • for sale house Halásztelek 13
  • for sale house Halimba 2
  • for sale house Halmajugra 1
  • for sale house Halogy 2
  • for sale house Hangács 3
  • for sale house Harc 1
  • for sale house Harka 3
  • for sale house Harkány 7
  • for sale house Harsány 2
  • for sale house Hásságy 1
  • for sale house Hatvan 4
  • for sale house Hegyeshalom 2
  • for sale house Hegykő 1
  • for sale house Hegymagas 2
  • for sale house Hegyszentmárton 2
  • for sale house Helvécia 2
  • for sale house Herceghalom 3
  • for sale house Hercegszántó 3
  • for sale house Héreg 1
  • for sale house Herend 1
  • for sale house Hernád 9
  • for sale house Hét 1
  • for sale house Heves 2
  • for sale house Hévíz 41
  • for sale house Hidas 1
  • for sale house Hidegség 1
  • for sale house Hímesháza 4
  • for sale house Hobol 1
  • for sale house Hódmezővásárhely 2
  • for sale house Hollókő 2
  • for sale house Homokbödöge 1
  • for sale house Homokkomárom 1
  • for sale house Homokmégy 1
  • for sale house Homorúd 1
  • for sale house Hort 1
  • for sale house Horvátzsidány 1
  • for sale house Hosszúhetény 3
  • for sale house Hosszúpályi 6
  • for sale house Hosszúpereszteg 2
  • for sale house Hőgyész 4
  • for sale house Ibafa 1
  • for sale house Ibrány 2
  • for sale house Igal 2
  • for sale house Igar 2
  • for sale house Iharos 2
  • for sale house Ikervár 1
  • for sale house Iklad 1
  • for sale house Iklódbördőce 1
  • for sale house Ilk 2
  • for sale house Inárcs 3
  • for sale house Inke 2
  • for sale house Isaszeg 13
  • for sale house Istenmezeje 1
  • for sale house Iszkaszentgyörgy 2
  • for sale house Isztimér 2
  • for sale house Ivánc 2
  • for sale house Iváncsa 5
  • for sale house Ivándárda 2
  • for sale house Izsófalva 1
  • for sale house Jakabszállás 3
  • for sale house Jánd 4
  • for sale house Jánoshalma 1
  • for sale house Jánosháza 2
  • for sale house Járdánháza 1
  • for sale house Jármi 1
  • for sale house Jászalsószentgyörgy 1
  • for sale house Jászapáti 5
  • for sale house Jászárokszállás 1
  • for sale house Jászberény 18
  • for sale house Jászfelsőszentgyörgy 2
  • for sale house Jászfényszaru 4
  • for sale house Jászivány 1
  • for sale house Jászjákóhalma 1
  • for sale house Jászkarajenő 2
  • for sale house Jászkisér 1
  • for sale house Jászladány 1
  • for sale house Jéke 1
  • for sale house Jenő 1
  • for sale house Jobbágyi 3
  • for sale house Juta 1
  • for sale house Kaba 1
  • for sale house Kacorlak 1
  • for sale house Kadarkút 4
  • for sale house Kajászó 1
  • for sale house Kajdacs 1
  • for sale house Kakasd 2
  • for sale house Kakucs 6
  • for sale house Kalaznó 2
  • for sale house Káld 1
  • for sale house Kálló 4
  • for sale house Kálmáncsa 1
  • for sale house Kálócfa 1
  • for sale house Kalocsa 9
  • for sale house Káloz 3
  • for sale house Kám 1
  • for sale house Kánya 2
  • for sale house Kányavár 2
  • for sale house Kapolcs 1
  • for sale house Kápolnásnyék 4
  • for sale house Kaposgyarmat 1
  • for sale house Kaposkeresztúr 1
  • for sale house Kaposszerdahely 1
  • for sale house Kaposvár 22
  • for sale house Káptalantóti 2
  • for sale house Kapuvár 2
  • for sale house Karácsond 2
  • for sale house Karád 4
  • for sale house Karancskeszi 4
  • for sale house Karcag 4
  • for sale house Karmacs 1
  • for sale house Kartal 2
  • for sale house Kásád 2
  • for sale house Katafa 1
  • for sale house Káva 1
  • for sale house Kazincbarcika 2
  • for sale house Kecskéd 1
  • for sale house Kecskemét 52
  • for sale house Kehidakustány 10
  • for sale house Kék 1
  • for sale house Kékcse 1
  • for sale house Kékkút 1
  • for sale house Kelemér 1
  • for sale house Kemecse 3
  • for sale house Kemendollár 1
  • for sale house Kemeneshőgyész 1
  • for sale house Kemenesszentpéter 1
  • for sale house Keménfa 1
  • for sale house Kémes 1
  • for sale house Kenézlő 1
  • for sale house Kengyel 2
  • for sale house Kerekegyháza 3
  • for sale house Kereki 1
  • for sale house Kerepes 19
  • for sale house Kerkakutas 1
  • for sale house Kerkáskápolna 1
  • for sale house Kerta 2
  • for sale house Keszthely 37
  • for sale house Kesztölc 3
  • for sale house Kéthely 1
  • for sale house Kéty 1
  • for sale house Kilimán 2
  • for sale house Kincsesbánya 1
  • for sale house Királyszentistván 1
  • for sale house Kisapáti 3
  • for sale house Kisasszond 1
  • for sale house Kisbér 3
  • for sale house Kisberény 1
  • for sale house Kisbucsa 2
  • for sale house Kisfüzes 1
  • for sale house Kisgörbő 1
  • for sale house Kisherend 1
  • for sale house Kisigmánd 1
  • for sale house Kisjakabfalva 1
  • for sale house Kiskorpád 1
  • for sale house Kisköre 5
  • for sale house Kiskunfélegyháza 3
  • for sale house Kiskunlacháza 22
  • for sale house Kisláng 4
  • for sale house Kisléta 1
  • for sale house Kislippó 1
  • for sale house Kislőd 2
  • for sale house Kismaros 7
  • for sale house Kisnémedi 2
  • for sale house Kisoroszi 3
  • for sale house Kisrákos 1
  • for sale house Kisrécse 1
  • for sale house Kisszállás 1
  • for sale house Kisszentmárton 1
  • for sale house Kissziget 1
  • for sale house Kistapolca 1
  • for sale house Kistarcsa 18
  • for sale house Kistelek 2
  • for sale house Kistolmács 1
  • for sale house Kisvárda 11
  • for sale house Kisvarsány 2
  • for sale house Kiszombor 2
  • for sale house Kocs 2
  • for sale house Kocsér 4
  • for sale house Kocsola 1
  • for sale house Kóka 10
  • for sale house Komádi 5
  • for sale house Komárom 12
  • for sale house Komló 3
  • for sale house Komoró 2
  • for sale house Kondorfa 2
  • for sale house Konyár 3
  • for sale house Kópháza 1
  • for sale house Kosd 13
  • for sale house Kóspallag 1
  • for sale house Kótaj 2
  • for sale house Kozármisleny 6
  • for sale house Kökény 1
  • for sale house Kölesd 4
  • for sale house Kömlő 1
  • for sale house Körmend 9
  • for sale house Környe 3
  • for sale house Kőröshegy 6
  • for sale house Körösnagyharsány 1
  • for sale house Kőröstetétlen 1
  • for sale house Kőszárhegy 2
  • for sale house Kőszeg 14
  • for sale house Kőszegpaty 1
  • for sale house Kőszegszerdahely 2
  • for sale house Kötcse 2
  • for sale house Kővágóörs 6
  • for sale house Kővágótőttős 1
  • for sale house Köveskál 6
  • for sale house Kulcs 4
  • for sale house Kunbaja 1
  • for sale house Kunhegyes 4
  • for sale house Kunmadaras 8
  • for sale house Kunszentmárton 1
  • for sale house Kunsziget 1
  • for sale house Kurityán 1
  • for sale house Kutas 2
  • for sale house Külsővat 1
  • for sale house Lábatlan 4
  • for sale house Lad 1
  • for sale house Ládbesenyő 1
  • for sale house Lajoskomárom 9
  • for sale house Lajosmizse 7
  • for sale house Lakitelek 3
  • for sale house Lakócsa 2
  • for sale house Lánycsók 1
  • for sale house Látrány 1
  • for sale house Leányfalu 25
  • for sale house Lengyeltóti 10
  • for sale house Lenti 8
  • for sale house Lepsény 2
  • for sale house Lesencefalu 1
  • for sale house Lesenceistvánd 3
  • for sale house Lesencetomaj 2
  • for sale house Létavértes 7
  • for sale house Letenye 14
  • for sale house Levél 1
  • for sale house Levelek 1
  • for sale house Lispeszentadorján 1
  • for sale house Liszó 1
  • for sale house Litke 1
  • for sale house Lónya 3
  • for sale house Lovasberény 5
  • for sale house Lovászi 1
  • for sale house Lőrinci 2
  • for sale house Lövőpetri 1
  • for sale house Lukácsháza 1
  • for sale house Madaras 1
  • for sale house Maglód 19
  • for sale house Magyarbóly 1
  • for sale house Magyaregregy 1
  • for sale house Magyargencs 1
  • for sale house Magyarhertelend 1
  • for sale house Magyarmecske 1
  • for sale house Magyarnádalja 1
  • for sale house Magyarpolány 2
  • for sale house Majosháza 4
  • for sale house Majs 3
  • for sale house Makád 1
  • for sale house Maklár 1
  • for sale house Makó 9
  • for sale house Malomsok 1
  • for sale house Mályi 3
  • for sale house Mándok 2
  • for sale house Mánfa 2
  • for sale house Mány 2
  • for sale house Maráza 1
  • for sale house Marcali 23
  • for sale house Márianosztra 1
  • for sale house Markaz 3
  • for sale house Márkháza 1
  • for sale house Márkó 1
  • for sale house Márok 2
  • for sale house Márokpapi 1
  • for sale house Martinka 1
  • for sale house Martonfa 1
  • for sale house Martonvásár 4
  • for sale house Mátészalka 1
  • for sale house Mátraderecske 3
  • for sale house Mátraszentimre 3
  • for sale house Mátraszőlős 1
  • for sale house Mátraterenye 1
  • for sale house Mátraverebély 2
  • for sale house Matty 2
  • for sale house Mátyásdomb 1
  • for sale house Mátyus 1
  • for sale house Máza 1
  • for sale house Mecseknádasd 3
  • for sale house Mecsekpölöske 1
  • for sale house Mecsér 4
  • for sale house Medina 1
  • for sale house Meggyeskovácsi 2
  • for sale house Mélykút 3
  • for sale house Mencshely 1
  • for sale house Mende 1
  • for sale house Mernye 2
  • for sale house Mesztegnyő 3
  • for sale house Mezőcsát 2
  • for sale house Mezőfalva 3
  • for sale house Mezőkeresztes 1
  • for sale house Mezőkomárom 3
  • for sale house Mezőkövesd 2
  • for sale house Mezőladány 1
  • for sale house Mezőlak 1
  • for sale house Mezősas 3
  • for sale house Mezőszentgyörgy 1
  • for sale house Mezőszilas 3
  • for sale house Miháld 4
  • for sale house Mikepércs 19
  • for sale house Milota 1
  • for sale house Mindszentkálla 1
  • for sale house Misefa 1
  • for sale house Miske 1
  • for sale house Miskolc 26
  • for sale house Mocsa 3
  • for sale house Mogyoród 35
  • for sale house Moha 1
  • for sale house Mohács 19
  • for sale house Molnári 3
  • for sale house Monor 17
  • for sale house Monorierdő 6
  • for sale house Monostorapáti 4
  • for sale house Monostorpályi 1
  • for sale house Mór 3
  • for sale house Mórichida 1
  • for sale house Mosonmagyaróvár 4
  • for sale house Mosonszolnok 1
  • for sale house Mozsgó 2
  • for sale house Múcsony 1
  • for sale house Murakeresztúr 8
  • for sale house Nadap 1
  • for sale house Nádasd 1
  • for sale house Nádasdladány 3
  • for sale house Nádudvar 7
  • for sale house Nágocs 1
  • for sale house Nagyalásony 1
  • for sale house Nagyatád 5
  • for sale house Nagybakónak 1
  • for sale house Nagybaracska 10
  • for sale house Nagyberény 4
  • for sale house Nagyberki 1
  • for sale house Nagybörzsöny 1
  • for sale house Nagycenk 1
  • for sale house Nagycsécs 1
  • for sale house Nagycsepely 1
  • for sale house Nagydobos 2
  • for sale house Nagydorog 2
  • for sale house Nagyecsed 1
  • for sale house Nagyfüged 1
  • for sale house Nagygörbő 1
  • for sale house Nagyhalász 1
  • for sale house Nagyharsány 2
  • for sale house Nagyigmánd 2
  • for sale house Nagyiván 3
  • for sale house Nagykálló 5
  • for sale house Nagykanizsa 56
  • for sale house Nagykarácsony 1
  • for sale house Nagykáta 13
  • for sale house Nagykereki 2
  • for sale house Nagykovácsi 21
  • for sale house Nagykozár 3
  • for sale house Nagykölked 2
  • for sale house Nagykőrös 10
  • for sale house Nagykörű 1
  • for sale house Nagylók 2
  • for sale house Nagymaros 3
  • for sale house Nagynyárád 1
  • for sale house Nagypáli 3
  • for sale house Nagyrécse 1
  • for sale house Nagysáp 1
  • for sale house Nagyszentjános 1
  • for sale house Nagytarcsa 11
  • for sale house Nagytótfalu 1
  • for sale house Nagyvarsány 1
  • for sale house Nagyvázsony 1
  • for sale house Nagyvenyim 2
  • for sale house Napkor 2
  • for sale house Narda 1
  • for sale house Naszály 1
  • for sale house Négyes 1
  • for sale house Nemesapáti 2
  • for sale house Nemesbük 5
  • for sale house Nemesdéd 2
  • for sale house Nemesgulács 5
  • for sale house Nemeshany 1
  • for sale house Nemeskocs 1
  • for sale house Nemesnádudvar 2
  • for sale house Nemesrádó 1
  • for sale house Nemesszentandrás 3
  • for sale house Nemesvámos 1
  • for sale house Nemesvid 2
  • for sale house Nemesvita 1
  • for sale house Németkér 3
  • for sale house Neszmély 1
  • for sale house Nézsa 2
  • for sale house Nógrád 1
  • for sale house Noszlop 1
  • for sale house Nőtincs 5
  • for sale house Nyáregyháza 4
  • for sale house Nyárlőrinc 1
  • for sale house Nyársapát 6
  • for sale house Nyékládháza 1
  • for sale house Nyergesújfalu 4
  • for sale house Nyim 1
  • for sale house Nyírábrány 3
  • for sale house Nyíracsád 1
  • for sale house Nyirád 1
  • for sale house Nyíradony 5
  • for sale house Nyíregyháza 68
  • for sale house Nyírkarász 1
  • for sale house Nyírlövő 3
  • for sale house Nyírmada 1
  • for sale house Nyírmihálydi 1
  • for sale house Nyírpazony 1
  • for sale house Nyírtass 1
  • for sale house Nyírtelek 1
  • for sale house Nyírtura 2
  • for sale house Nyúl 4
  • for sale house Óbánya 1
  • for sale house Óbarok 1
  • for sale house Óbudavár 2
  • for sale house Ócsa 5
  • for sale house Ófalu 1
  • for sale house Olasz 2
  • for sale house Olaszfa 4
  • for sale house Ólmod 1
  • for sale house Onga 1
  • for sale house Ónod 1
  • for sale house Ópályi 2
  • for sale house Ordacsehi 3
  • for sale house Orfű 5
  • for sale house Orgovány 2
  • for sale house Ormosbánya 1
  • for sale house Orosháza 2
  • for sale house Orosztony 3
  • for sale house Ostoros 1
  • for sale house Oszkó 1
  • for sale house Osztopán 1
  • for sale house Ózd 12
  • for sale house Öcs 1
  • for sale house Ölbő 1
  • for sale house Őrbottyán 19
  • for sale house Öreglak 1
  • for sale house Őrimagyarósd 1
  • for sale house Őriszentpéter 4
  • for sale house Örkény 3
  • for sale house Ősagárd 1
  • for sale house Ősi 1
  • for sale house Öttevény 4
  • for sale house Ötvöskónyi 2
  • for sale house Pacsa 4
  • for sale house Páka 1
  • for sale house Pákozd 5
  • for sale house Paks 26
  • for sale house Pálfa 1
  • for sale house Pálfiszeg 1
  • for sale house Pálháza 2
  • for sale house Palkonya 2
  • for sale house Pálmonostora 1
  • for sale house Pálosvörösmart 3
  • for sale house Palotabozsok 2
  • for sale house Palotás 1
  • for sale house Paloznak 1
  • for sale house Pánd 4
  • for sale house Pankasz 1
  • for sale house Pannonhalma 1
  • for sale house Pap 4
  • for sale house Pápa 32
  • for sale house Pápakovácsi 1
  • for sale house Pápateszér 1
  • for sale house Papkeszi 1
  • for sale house Parád 4
  • for sale house Parádsasvár 3
  • for sale house Patca 1
  • for sale house Pátka 2
  • for sale house Páty 10
  • for sale house Pázmánd 2
  • for sale house Pázmándfalu 1
  • for sale house Pécel 27
  • for sale house Pécs 105
  • for sale house Pécsvárad 4
  • for sale house Pellérd 2
  • for sale house Penc 1
  • for sale house Pér 1
  • for sale house Perbál 1
  • for sale house Peresznye 1
  • for sale house Perkáta 3
  • for sale house Péteri 2
  • for sale house Pétfürdő 3
  • for sale house Petrivente 2
  • for sale house Pilis 16
  • for sale house Pilisborosjenő 14
  • for sale house Piliscsaba 16
  • for sale house Piliscsév 2
  • for sale house Pilismarót 1
  • for sale house Pilisszántó 1
  • for sale house Pilisszentiván 1
  • for sale house Pilisszentkereszt 6
  • for sale house Pilisszentlászló 4
  • for sale house Pilisvörösvár 2
  • for sale house Pinkamindszent 1
  • for sale house Pitvaros 2
  • for sale house Pócsmegyer 6
  • for sale house Pócspetri 1
  • for sale house Pogány 1
  • for sale house Pókaszepetk 1
  • for sale house Polgár 2
  • for sale house Polgárdi 5
  • for sale house Pomáz 23
  • for sale house Poroszló 18
  • for sale house Pórszombat 1
  • for sale house Porva 1
  • for sale house Potony 1
  • for sale house Pölöske 3
  • for sale house Pölöskefő 1
  • for sale house Pula 1
  • for sale house Pusztahencse 2
  • for sale house Pusztamagyaród 3
  • for sale house Pusztaszabolcs 3
  • for sale house Pusztaszentlászló 2
  • for sale house Pusztavám 1
  • for sale house Putnok 2
  • for sale house Püspökhatvan 1
  • for sale house Püspökladány 10
  • for sale house Rábacsécsény 1
  • for sale house Rábagyarmat 1
  • for sale house Rábahidvég 1
  • for sale house Rábapatona 2
  • for sale house Rábapordány 2
  • for sale house Rábaszentmihály 1
  • for sale house Rábatamási 1
  • for sale house Rácalmás 2
  • for sale house Ráckeresztúr 5
  • for sale house Ráckeve 31
  • for sale house Rád 2
  • for sale house Rakacaszend 1
  • for sale house Rakamaz 2
  • for sale house Rákócziújfalu 1
  • for sale house Raposka 1
  • for sale house Rásonysápberencs 2
  • for sale house Rátót 1
  • for sale house Recsk 1
  • for sale house Rém 1
  • for sale house Remeteszőlős 6
  • for sale house Répcelak 1
  • for sale house Resznek 1
  • for sale house Rétközberencs 1
  • for sale house Rétság 2
  • for sale house Révfülöp 5
  • for sale house Rezi 1
  • for sale house Rohod 1
  • for sale house Románd 1
  • for sale house Romonya 1
  • for sale house Rózsaszentmárton 1
  • for sale house Röszke 1
  • for sale house Ságvár 3
  • for sale house Sajóecseg 1
  • for sale house Sajógalgóc 1
  • for sale house Sajókaza 1
  • for sale house Sajólád 3
  • for sale house Sajópüspöki 1
  • for sale house Sajószentpéter 2
  • for sale house Sajóvámos 1
  • for sale house Salföld 1
  • for sale house Salgótarján 5
  • for sale house Salköveskút 1
  • for sale house Salomvár 1
  • for sale house Sand 2
  • for sale house Sáránd 5
  • for sale house Sárazsadány 1
  • for sale house Sárbogárd 13
  • for sale house Sárisáp 3
  • for sale house Sárkeresztes 1
  • for sale house Sárkeresztúr 1
  • for sale house Sármellék 2
  • for sale house Sárok 1
  • for sale house Sárosd 4
  • for sale house Sárospatak 2
  • for sale house Sárpilis 2
  • for sale house Sárszentágota 1
  • for sale house Sárszentlőrinc 3
  • for sale house Sárszentmihály 4
  • for sale house Sarud 5
  • for sale house Sárvár 6
  • for sale house Sásd 1
  • for sale house Sátoraljaújhely 5
  • for sale house Sátorhely 1
  • for sale house Sávoly 2
  • for sale house Sé 2
  • for sale house Segesd 3
  • for sale house Sellye 3
  • for sale house Seregélyes 3
  • for sale house Siklós 12
  • for sale house Siklósbodony 1
  • for sale house Simaság 1
  • for sale house Simonfa 1
  • for sale house Sióagárd 1
  • for sale house Siófok 133
  • for sale house Siójut 1
  • for sale house Sitke 1
  • for sale house Solt 2
  • for sale house Solymár 14
  • for sale house Som 2
  • for sale house Somberek 2
  • for sale house Somlójenő 1
  • for sale house Somlóvásárhely 3
  • for sale house Somogyaszaló 2
  • for sale house Somogycsicsó 1
  • for sale house Somogysámson 2
  • for sale house Somogysárd 1
  • for sale house Somogyszentpál 6
  • for sale house Somogyszob 5
  • for sale house Somogyvár 2
  • for sale house Soponya 2
  • for sale house Sopron 11
  • for sale house Sorkifalud 1
  • for sale house Sormás 3
  • for sale house Sorokpolány 1
  • for sale house Sóskút 11
  • for sale house Söjtör 2
  • for sale house Sukoró 7
  • for sale house Sumony 1
  • for sale house Súr 1
  • for sale house Surd 1
  • for sale house Sükösd 2
  • for sale house Sülysáp 17
  • for sale house Sümeg 5
  • for sale house Sümegprága 2
  • for sale house Süttő 3
  • for sale house Szabadbattyán 2
  • for sale house Szabadkígyós 1
  • for sale house Szabadszállás 1
  • for sale house Szabadszentkirály 1
  • for sale house Szabolcsbáka 1
  • for sale house Szabolcsveresmart 1
  • for sale house Szada 14
  • for sale house Szakály 1
  • for sale house Szakoly 2
  • for sale house Szalánta 2
  • for sale house Szalapa 2
  • for sale house Szálka 1
  • for sale house Szalkszentmárton 1
  • for sale house Szamosangyalos 1
  • for sale house Szamoskér 1
  • for sale house Szamossályi 1
  • for sale house Szántód 6
  • for sale house Szarvas 2
  • for sale house Szarvaskend 3
  • for sale house Szarvaskő 2
  • for sale house Szászvár 2
  • for sale house Szava 1
  • for sale house Százhalombatta 11
  • for sale house Szebény 1
  • for sale house Szécsény 3
  • for sale house Szedres 4
  • for sale house Szeged 12
  • for sale house Szegerdő 1
  • for sale house Székelyszabar 1
  • for sale house Székesfehérvár 55
  • for sale house Szekszárd 60
  • for sale house Szellő 1
  • for sale house Szendrő 3
  • for sale house Szenta 2
  • for sale house Szentantalfa 1
  • for sale house Szentbékkálla 1
  • for sale house Szentdomonkos 1
  • for sale house Szentendre 58
  • for sale house Szentes 1
  • for sale house Szentgál 1
  • for sale house Szentgáloskér 1
  • for sale house Szentgotthárd 5
  • for sale house Szentgyörgyvár 1
  • for sale house Szentgyörgyvölgy 4
  • for sale house Szentjakabfa 1
  • for sale house Szentkirály 1
  • for sale house Szentkirályszabadja 2
  • for sale house Szentliszló 2
  • for sale house Szentlőrinc 5
  • for sale house Szentlőrinckáta 1
  • for sale house Szentmártonkáta 2
  • for sale house Szentpéterúr 3
  • for sale house Szenyér 1
  • for sale house Szepetnek 5
  • for sale house Szerecseny 2
  • for sale house Szeremle 1
  • for sale house Szerencs 2
  • for sale house Szigetbecse 5
  • for sale house Szigetcsép 2
  • for sale house Szigethalom 14
  • for sale house Szigetmonostor 8
  • for sale house Szigetszentmárton 7
  • for sale house Szigetszentmiklós 38
  • for sale house Szigetújfalu 3
  • for sale house Szigliget 4
  • for sale house Szikszó 1
  • for sale house Szilágy 1
  • for sale house Szilaspogony 1
  • for sale house Szilvásvárad 3
  • for sale house Szin 1
  • for sale house Szob 2
  • for sale house Szokolya 1
  • for sale house Szolnok 16
  • for sale house Szombathely 30
  • for sale house Szomód 1
  • for sale house Szőce 2
  • for sale house Sződliget 7
  • for sale house Szőkedencs 1
  • for sale house Szőlősgyörök 6
  • for sale house Szulok 1
  • for sale house Szurdokpüspöki 2
  • for sale house Szűcsi 1
  • for sale house Szűr 1
  • for sale house Tab 3
  • for sale house Tabdi 1
  • for sale house Táborfalva 1
  • for sale house Tagyon 1
  • for sale house Tahitótfalu 22
  • for sale house Takácsi 2
  • for sale house Tákos 1
  • for sale house Taksony 11
  • for sale house Taliándörögd 3
  • for sale house Tamási 1
  • for sale house Tápióbicske 3
  • for sale house Tápióság 2
  • for sale house Tápiószecső 18
  • for sale house Tápiószele 15
  • for sale house Tápiószentmárton 15
  • for sale house Tápiószőlős 5
  • for sale house Táplánszentkereszt 2
  • for sale house Tapolca 20
  • for sale house Tar 2
  • for sale house Tarany 1
  • for sale house Tardos 4
  • for sale house Tarnaszentmária 1
  • for sale house Tárnok 9
  • for sale house Tarpa 2
  • for sale house Tass 1
  • for sale house Tata 16
  • for sale house Tatabánya 7
  • for sale house Tatárszentgyörgy 2
  • for sale house Téglás 10
  • for sale house Teleki 2
  • for sale house Telki 9
  • for sale house Tengelic 1
  • for sale house Tengőd 1
  • for sale house Tényő 1
  • for sale house Téseny 1
  • for sale house Teskánd 9
  • for sale house Tét 3
  • for sale house Tetétlen 1
  • for sale house Tibolddaróc 1
  • for sale house Tihany 6
  • for sale house Tilaj 2
  • for sale house Tinnye 1
  • for sale house Tiszaalpár 2
  • for sale house Tiszabábolna 3
  • for sale house Tiszabezdéd 3
  • for sale house Tiszacsege 14
  • for sale house Tiszaderzs 1
  • for sale house Tiszaföldvár 4
  • for sale house Tiszafüred 31
  • for sale house Tiszagyenda 1
  • for sale house Tiszaigar 1
  • for sale house Tiszajenő 1
  • for sale house Tiszakanyár 1
  • for sale house Tiszakerecseny 2
  • for sale house Tiszalök 1
  • for sale house Tiszalúc 1
  • for sale house Tiszanána 3
  • for sale house Tiszaörs 3
  • for sale house Tiszapüspöki 1
  • for sale house Tiszaroff 1
  • for sale house Tiszaszentimre 4
  • for sale house Tiszaszőlős 4
  • for sale house Tiszatenyő 3
  • for sale house Tiszaújváros 1
  • for sale house Tiszavalk 2
  • for sale house Tiszavasvári 3
  • for sale house Tiszavid 2
  • for sale house Tóalmás 7
  • for sale house Tófalu 1
  • for sale house Tófej 1
  • for sale house Tokaj 2
  • for sale house Tokod 4
  • for sale house Tokodaltáró 3
  • for sale house Tolna 12
  • for sale house Tolnanémedi 1
  • for sale house Tomor 2
  • for sale house Tordas 11
  • for sale house Tormásliget 1
  • for sale house Tornyiszentmiklós 2
  • for sale house Tornyospálca 2
  • for sale house Torony 1
  • for sale house Tótszentmárton 2
  • for sale house Tótszerdahely 5
  • for sale house Tótújfalu 1
  • for sale house Tótvázsony 1
  • for sale house Tököl 9
  • for sale house Töltéstava 3
  • for sale house Törökbálint 30
  • for sale house Törökszentmiklós 1
  • for sale house Törtel 16
  • for sale house Töttös 2
  • for sale house Tura 7
  • for sale house Túrony 1
  • for sale house Türje 6
  • for sale house Udvar 3
  • for sale house Ugod 2
  • for sale house Újfehértó 1
  • for sale house Újhartyán 1
  • for sale house Újlengyel 2
  • for sale house Újléta 2
  • for sale house Újpetre 1
  • for sale house Újszász 3
  • for sale house Újszilvás 6
  • for sale house Újudvar 2
  • for sale house Ukk 1
  • for sale house Úny 1
  • for sale house Uppony 1
  • for sale house Uraiújfalu 1
  • for sale house Úrhida 2
  • for sale house Úri 4
  • for sale house Üllés 1
  • for sale house Üllő 14
  • for sale house Üröm 15
  • for sale house Vác 31
  • for sale house Vácduka 1
  • for sale house Váchartyán 5
  • for sale house Váckisújfalu 2
  • for sale house Vácrátót 13
  • for sale house Vácszentlászló 2
  • for sale house Vaja 2
  • for sale house Vajszló 2
  • for sale house Vajta 1
  • for sale house Vál 2
  • for sale house Valkonya 1
  • for sale house Vállus 1
  • for sale house Vámospércs 6
  • for sale house Vámosszabadi 3
  • for sale house Váncsod 4
  • for sale house Vanyarc 1
  • for sale house Várdomb 1
  • for sale house Városföld 1
  • for sale house Városlőd 1
  • for sale house Várpalota 8
  • for sale house Várvölgy 1
  • for sale house Vasad 1
  • for sale house Vasalja 1
  • for sale house Vásárosnamény 12
  • for sale house Vaskeresztes 1
  • for sale house Vaskút 3
  • for sale house Vasszécseny 2
  • for sale house Vasszentmihály 1
  • for sale house Vasvár 7
  • for sale house Vászoly 2
  • for sale house Vecsés 18
  • for sale house Vékény 1
  • for sale house Velem 3
  • for sale house Velence 18
  • for sale house Velény 1
  • for sale house Véménd 2
  • for sale house Vép 1
  • for sale house Vereb 1
  • for sale house Veresegyház 18
  • for sale house Verőce 12
  • for sale house Verpelét 2
  • for sale house Verseg 16
  • for sale house Versend 2
  • for sale house Vértesacsa 2
  • for sale house Vértesszőlős 3
  • for sale house Vése 2
  • for sale house Veszprém 12
  • for sale house Veszprémfajsz 1
  • for sale house Veszprémvarsány 1
  • for sale house Vid 1
  • for sale house Vigántpetend 1
  • for sale house Villány 5
  • for sale house Villánykövesd 1
  • for sale house Vilonya 1
  • for sale house Vilyvitány 1
  • for sale house Visegrád 4
  • for sale house Visonta 1
  • for sale house Viszák 1
  • for sale house Visznek 1
  • for sale house Vízvár 2
  • for sale house Vokány 1
  • for sale house Vonyarcvashegy 16
  • for sale house Völcsej 1
  • for sale house Vönöck 1
  • for sale house Zajk 1
  • for sale house Zákány 2
  • for sale house Zákányfalu 2
  • for sale house Zalaapáti 1
  • for sale house Zalabaksa 1
  • for sale house Zalabér 3
  • for sale house Zalaboldogfa 1
  • for sale house Zalacsány 9
  • for sale house Zalacséb 2
  • for sale house Zalaegerszeg 73
  • for sale house Zalahaláp 2
  • for sale house Zalaháshágy 2
  • for sale house Zalakaros 12
  • for sale house Zalakomár 3
  • for sale house Zalalövő 9
  • for sale house Zalamerenye 2
  • for sale house Zalaszabar 4
  • for sale house Zalaszántó 3
  • for sale house Zalaszentgrót 17
  • for sale house Zalaszentiván 3
  • for sale house Zalaszentjakab 1
  • for sale house Zalaszentlőrinc 1
  • for sale house Zalaszentmihály 4
  • for sale house Zalatárnok 3
  • for sale house Zalavár 1
  • for sale house Zalavég 2
  • for sale house Zamárdi 15
  • for sale house Zámoly 3
  • for sale house Zánka 7
  • for sale house Zebegény 1
  • for sale house Zengővárkony 1
  • for sale house Zics 2
  • for sale house Zirc 2
  • for sale house Zomba 1
  • for sale house Zsáka 4
  • for sale house Zsámbék 12
  • for sale house Zsámbok 4
  • for sale house Zsira 1
  • for sale house Zsombó 1
  • for sale house Zsurk 1
  • for rent house Ballószög 1
  • for rent house Biatorbágy 1
  • for rent house Budapest II. kerület 1
  • for rent house Budapest II/A. kerület 3
  • for rent house Budapest III. kerület 4
  • for rent house Budapest XI. kerület 1
  • for rent house Budapest XII. kerület 4
  • for rent house Budapest XVI. kerület 2
  • for rent house Budapest XXII. kerület 3
  • for rent house Debrecen 11
  • for rent house Érd 2
  • for rent house Göd 3
  • for rent house Győr 1
  • for rent house Hajdúböszörmény 1
  • for rent house Hajdúszoboszló 2
  • for rent house Jakabszállás 1
  • for rent house Kecskemét 3
  • for rent house Komárom 1
  • for rent house Lajosmizse 1
  • for rent house Leányfalu 2
  • for rent house Németkér 1
  • for rent house Nyíregyháza 5
  • for rent house Paks 1
  • for rent house Pápa 1
  • for rent house Pécs 1
  • for rent house Polgár 1
  • for rent house Siófok 3
  • for rent house Solymár 1
  • for rent house Szada 1
  • for rent house Székesfehérvár 1
  • for rent house Szentendre 1
  • for rent house Tata 1
  • for rent house Üröm 2
  • for rent house Váchartyán 1
  • for rent house Veresegyház 1
  • for rent house Zalaegerszeg 2

Contact

  1. Our Offices
  2. Customer Service:
    Home Center
    1023 Budapest,
    Lajos u. 28-32.
    +36 70 388 6000
    ugyfelszolgalat@oc.hu
  3. Press Contact:
    sajto@oc.hu

I Want to Buy

  1. Purchase
  2. Rent
  3. New Properties
  4. Apartments for Sale in Budapest

About Us

  1. About Us
  2. Analytic Division

Legal Information

  1. Data Management Information
  2. Imprint
  3. Financial Rules
  4. Service Statement
  5. Legal Statement
  1. Customer Service:
    Otthon Centrum
    1023 Budapest,
    Lajos u. 28-32.
    +36 70 388 6000
    ugyfelszolgalat@oc.hu
  2. Press Contact:
    sajto@oc.hu