255 000 000 Ft
655 000 €
- 198m²
- 5 szoba
































Semi-Detached House for Sale in Vérhalom, District II, Budapest
In the prestigious 2nd district of Budapest, near the Pusztaszeri Roundabout and adjacent to Rózsakert Shopping Center, we offer for sale one half of a semi-detached house.
The other half is also available, offering a rare opportunity to purchase the entire property — ideal for use as a single-family villa, multi-unit residence, development plot, private clinic, or business headquarters.
✨ WELCOME HOME! ✨
Property Highlights:
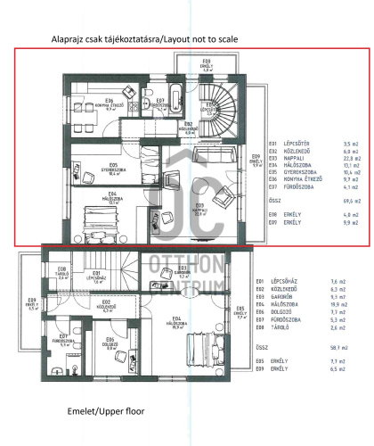
Plot size: 1,083 m² (approx. half for exclusive use)
Net floor area: 198 m²
Layout: 5 rooms, 2 bathrooms
Flexible usage: the house section can be used as 2 separate apartments
Extras: winter garden, balconies on both levels and sides
Parking & storage: 1 garage + additional storage
Development potential: up to 2 independent units can be created
Condition:
The property is livable, but in need of renovation to meet modern standards — providing the new owner with the opportunity to customize the home to their own vision and needs.
Location & Connectivity:
✔️ Prime location – only 100 meters from Rózsakert Shopping Center
✔️ Public transport within 50 meters: buses 11, 111, 91, 291, and night bus 931 – offering quick and easy access to the city
✔️ Schools, kindergartens, a high school, and a medical center all nearby
This property is a great opportunity for large families, investors, developers, or those seeking a business location in one of Buda’s most desirable residential areas.
For more information and to schedule a viewing, feel free to contact me!
Budapest, Buda, District II, Vérhalom, house for sale, semi-detached home, development opportunity, large plot, investment property, private clinic potential, great location, business use, family home
The other half is also available, offering a rare opportunity to purchase the entire property — ideal for use as a single-family villa, multi-unit residence, development plot, private clinic, or business headquarters.
✨ WELCOME HOME! ✨
Property Highlights:
Plot size: 1,083 m² (approx. half for exclusive use)
Net floor area: 198 m²
Layout: 5 rooms, 2 bathrooms
Flexible usage: the house section can be used as 2 separate apartments
Extras: winter garden, balconies on both levels and sides
Parking & storage: 1 garage + additional storage
Development potential: up to 2 independent units can be created
Condition:
The property is livable, but in need of renovation to meet modern standards — providing the new owner with the opportunity to customize the home to their own vision and needs.
Location & Connectivity:
✔️ Prime location – only 100 meters from Rózsakert Shopping Center
✔️ Public transport within 50 meters: buses 11, 111, 91, 291, and night bus 931 – offering quick and easy access to the city
✔️ Schools, kindergartens, a high school, and a medical center all nearby
This property is a great opportunity for large families, investors, developers, or those seeking a business location in one of Buda’s most desirable residential areas.
For more information and to schedule a viewing, feel free to contact me!
Budapest, Buda, District II, Vérhalom, house for sale, semi-detached home, development opportunity, large plot, investment property, private clinic potential, great location, business use, family home
Regisztrációs szám
H501752
Az ingatlan adatai
Értékesités
eladó
Jogi státusz
használt
Jelleg
ház
Építési mód
tégla
Méret
198 m²
Bruttó méret
222 m²
Telek méret
1 083 m²
Terasz / erkély mérete
23,8 m²
Fűtés
Gáz cirkó
Belmagasság
278 cm
Lakáson belüli szintszám
3
Tájolás
Dél-kelet
Állapot
Átlagos
Homlokzat állapota
Átlagos
Pince
Önálló
Környék
jó közlekedés, zöld, központi
Építés éve
1974
Fürdőszobák száma
3
Garázs
Benne van az árban
Garázs férőhely
1
Víz
Van
Gáz
Van
Villany
Van
Csatorna
Van
Helyiségek
nappali
24.1 m²
dolgozószoba
22.8 m²
konyha-étkező
7.7 m²
fürdőszoba-wc
3.6 m²
télikert
8.1 m²
erkély
9.9 m²
szoba
22.8 m²
szoba
13.1 m²
szoba
10.4 m²
erkély
9.9 m²
erkély
4 m²
háztartási helyiség
12.2 m²

Ruczek János
Hitelszakértő