data_sheet.details.realestate.section.main.otthonstart_flag.label
For sale new construction family house,
U0046220
Szigetbecse
79,900,000 Ft
204,000 €
- 98.8m²
- 5 Rooms










Szigetbecsén új építésű, önálló, nappali + 4 hálószobás családi ház ELADÓ!
A ház minimális rezsivel fenntartható, energetikai besorolása AA.
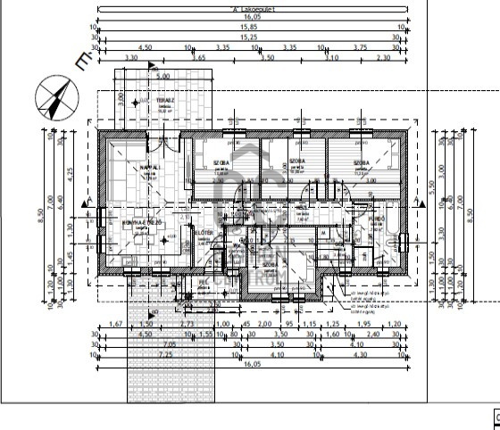
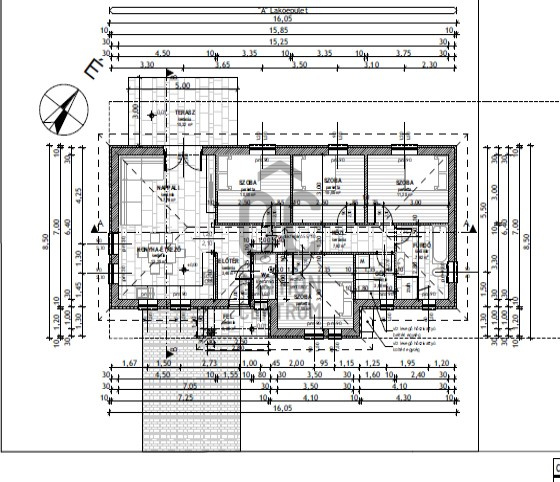
Élhető, praktikus terekkel, nettó 98,84 nm, bruttó 117,52 nm nagyságú, a telek méret 447 nm.
Főbb műszaki paraméterek:
-30-as N+F Porotherm tégla
-12 cm homlokzati szigetelés
-Födémszigetelés: 20cm nyitott cellás purhab szigetelés
- 3 rétegű műanyag nyílászárók redőnnyel, szúnyoghálóval, teraszon alumínium motoros redőnnyel felszereltek
-Hőszivattyú: Technik cool pro split levegő-víz hőszivattyú, 8kw, 1 fázisú, 230V padlófűtéssel, fan coil hűtéssel. Technik cool fan coil, magasoldalfali, kétcsöves kivitel, 4,7kw
-Burkolólap: 6.000ft/m2-ig választható a vételárban
-riasztó vezetékelve
-térkövezett járda
-térkövezett autóbeálló
Referencia házak megtekinthetők Bugyin, Ráckevén, Délegyházán is.
Megbízható kivitelező, sok referenciával, szép munkával, saját tőkével rendelkezik!
Az ingatlan céges kivitelezésben épül, így babaváró,CSOK hitel igénybe vehető, 5 % Áfa visszaigényléssel és 4 % illetékmentesen megvásárolható ingatlan.
Hitelben, Csok-ban ingyenes segítséget biztosítunk.
Várható átadás 2025.
További információért kérem keressen.
Élhető, praktikus terekkel, nettó 98,84 nm, bruttó 117,52 nm nagyságú, a telek méret 447 nm.
Főbb műszaki paraméterek:
-30-as N+F Porotherm tégla
-12 cm homlokzati szigetelés
-Födémszigetelés: 20cm nyitott cellás purhab szigetelés
- 3 rétegű műanyag nyílászárók redőnnyel, szúnyoghálóval, teraszon alumínium motoros redőnnyel felszereltek
-Hőszivattyú: Technik cool pro split levegő-víz hőszivattyú, 8kw, 1 fázisú, 230V padlófűtéssel, fan coil hűtéssel. Technik cool fan coil, magasoldalfali, kétcsöves kivitel, 4,7kw
-Burkolólap: 6.000ft/m2-ig választható a vételárban
-riasztó vezetékelve
-térkövezett járda
-térkövezett autóbeálló
Referencia házak megtekinthetők Bugyin, Ráckevén, Délegyházán is.
Megbízható kivitelező, sok referenciával, szép munkával, saját tőkével rendelkezik!
Az ingatlan céges kivitelezésben épül, így babaváró,CSOK hitel igénybe vehető, 5 % Áfa visszaigényléssel és 4 % illetékmentesen megvásárolható ingatlan.
Hitelben, Csok-ban ingyenes segítséget biztosítunk.
Várható átadás 2025.
További információért kérem keressen.
Registration Number
U0046220
Property Details
Sales
for sale
Legal Status
new
Character
house
Construction Method
brick
Net Size
98.8 m²
Gross Size
117.5 m²
Plot Size
447.3 m²
Size of Terrace / Balcony
15.3 m²
Heating
heat pump
Ceiling Height
269 cm
Orientation
South-West
Condition
Excellent
Condition of Facade
Excellent
Year of Construction
2024
Number of Bathrooms
1
Water
Available
Gas
On the street
Electricity
Available
Sewer
Available
Rooms
open-plan kitchen and living room
31.04 m²
room
11.55 m²
room
11.25 m²
room
10.05 m²
room
10.05 m²
bathroom
7.92 m²
laundry room
3.6 m²
corridor
7.92 m²
toilet
2 m²
entryway
3.46 m²
terrace
15.32 m²
other room
3.36 m²

Joó Krisztina
Credit Expert