data_sheet.details.realestate.section.main.otthonstart_flag.label
For sale new construction family house,
U0046222
Szigetbecse
84,900,000 Ft
226,000 €
- 91.4m²
- 5 Rooms
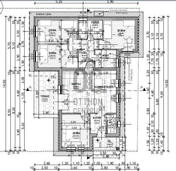
Szigetbecsén új építésű, önálló, nappali + 4 hálószobás családi ház ELADÓ!
A ház minimális rezsivel fenntartható, energetikai besorolása AA.
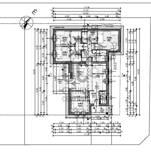
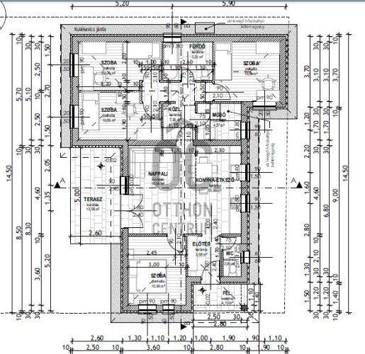
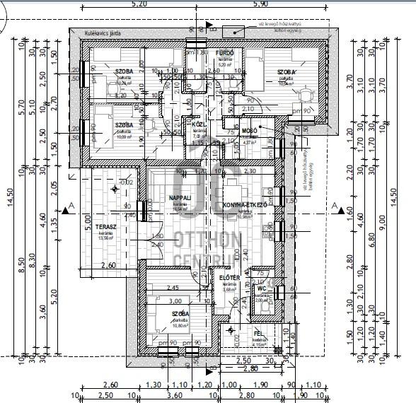
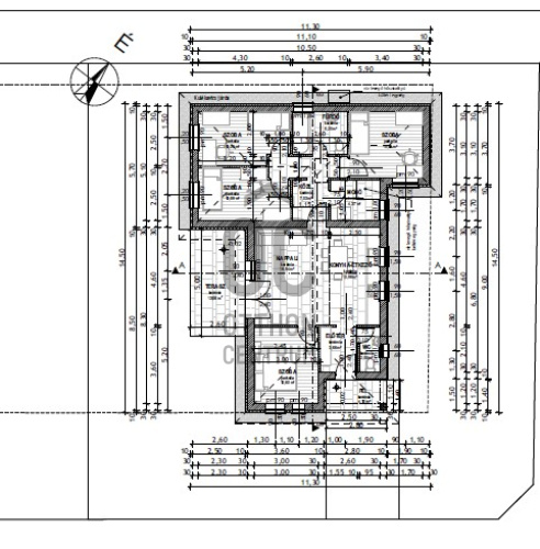
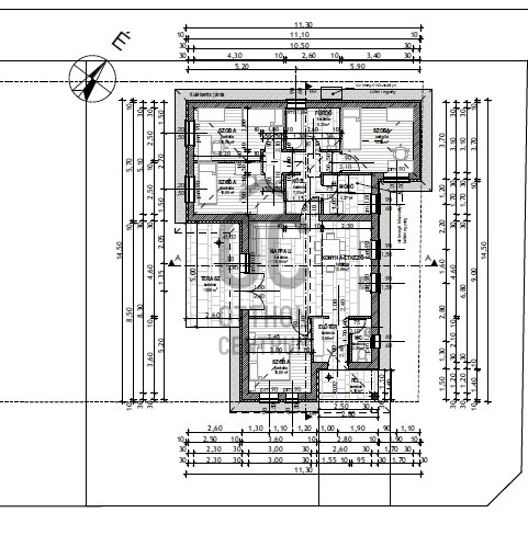
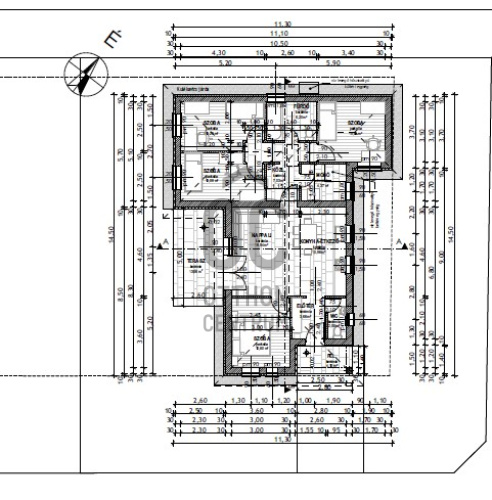
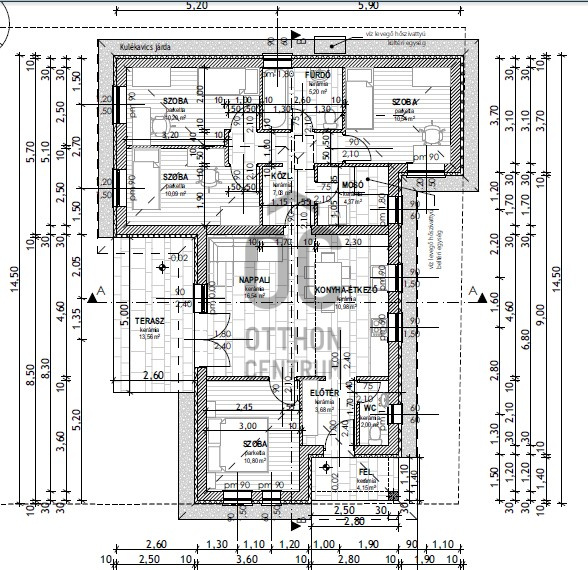
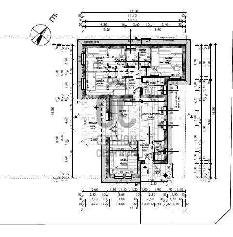
Élhető, praktikus terekkel, nettó 91,43 nm, bruttó 109,14 nm nagyságú, a telek méret 461 nm.
Főbb műszaki paraméterek:
-30-as N+F Porotherm tégla
-12 cm homlokzati szigetelés
-Födémszigetelés: 20cm nyitott cellás purhab szigetelés
- 3 rétegű műanyag nyílászárók redőnnyel, szúnyoghálóval, teraszon alumínium motoros redőnnyel felszereltek
-Hőszivattyú: Technik cool pro split levegő-víz hőszivattyú, 8kw, 1 fázisú, 230V padlófűtéssel, fan coil hűtéssel. Technik cool fan coil, magasoldalfali, kétcsöves kivitel, 4,7kw
-Burkolólap: 6.000ft/m2-ig választható a vételárban
-riasztó vezetékelve
-térkövezett járda
-térkövezett autóbeálló
Referencia házak megtekinthetők Bugyin, Ráckevén, Délegyházán is.
Megbízható kivitelező, sok referenciával, szép munkával, saját tőkével rendelkezik!
Az ingatlan céges kivitelezésben épül, így babaváró,CSOK hitel igénybe vehető, 5 % Áfa visszaigényléssel és 4 % illetékmentesen megvásárolható ingatlan.
Hitelben, Csok-ban ingyenes segítséget biztosítunk.
Várható átadás 2025-06 hó
További információért kérem keressen.
Élhető, praktikus terekkel, nettó 91,43 nm, bruttó 109,14 nm nagyságú, a telek méret 461 nm.
Főbb műszaki paraméterek:
-30-as N+F Porotherm tégla
-12 cm homlokzati szigetelés
-Födémszigetelés: 20cm nyitott cellás purhab szigetelés
- 3 rétegű műanyag nyílászárók redőnnyel, szúnyoghálóval, teraszon alumínium motoros redőnnyel felszereltek
-Hőszivattyú: Technik cool pro split levegő-víz hőszivattyú, 8kw, 1 fázisú, 230V padlófűtéssel, fan coil hűtéssel. Technik cool fan coil, magasoldalfali, kétcsöves kivitel, 4,7kw
-Burkolólap: 6.000ft/m2-ig választható a vételárban
-riasztó vezetékelve
-térkövezett járda
-térkövezett autóbeálló
Referencia házak megtekinthetők Bugyin, Ráckevén, Délegyházán is.
Megbízható kivitelező, sok referenciával, szép munkával, saját tőkével rendelkezik!
Az ingatlan céges kivitelezésben épül, így babaváró,CSOK hitel igénybe vehető, 5 % Áfa visszaigényléssel és 4 % illetékmentesen megvásárolható ingatlan.
Hitelben, Csok-ban ingyenes segítséget biztosítunk.
Várható átadás 2025-06 hó
További információért kérem keressen.
Registration Number
U0046222
Property Details
Sales
for sale
Legal Status
new
Character
house
Construction Method
brick
Net Size
91.4 m²
Gross Size
109.1 m²
Plot Size
462 m²
Heating
heat pump
Ceiling Height
268 cm
Orientation
South-West
Condition
Excellent
Condition of Facade
Excellent
Year of Construction
2024
Number of Bathrooms
1
Water
Available
Gas
On the street
Electricity
Available
Sewer
Available
Rooms
open-plan kitchen and living room
27.52 m²
room
10.8 m²
room
10.54 m²
room
10.2 m²
room
10.09 m²
bathroom
5.2 m²
corridor
7.03 m²
laundry room
4.37 m²
entryway
3.68 m²
toilet
2 m²
terrace
13.56 m²
other room
4.15 m²
Joó Krisztina
Credit Expert