140 290 000 Ft
364 000 €
- 89,7m²
- 4 szoba
- 2. emelet
KISFALUDY PROJEKT – ÚJ ÉPÍTÉSŰ TÁRSASHÁZI LAKÁSOK A IV. KERÜLETBEN
Budapest IV. kerületében, csendes kertvárosi környezetben valósul meg a Kisfaludy Projekt. egy modern, mindössze 4 lakásos társasház utcafronti üzlethelyiséggel.
A projekt különlegessége az alacsony lakásszám, az átgondolt alaprajzok és a korszerű, energiahatékony műszaki tartalom.
A lakások 30%-al leköthetők! A földszinti garzon, ÉRTÉKESÍTÉSRE került!
ÉPÜLET ELRENDEZÉSE
Földszint
•Garzonlakás (eladva) – előtér, nappali–konyha–étkező, fürdő
•Üzlethelyiség – iroda, raktár, mosdó kialakítással
1. emelet – 2 lakás
•Előtér
•Nappali–konyha–étkező
•2 hálószoba
•Fürdőszoba
•Külön WC
Ideális választás családok számára.
2. emelet – 1 lakás
•Előtér
•Közlekedő
•Nappali–konyha–étkező
•3hálószoba
•Fürdőszoba
•Külön WC
Tágas, kényelmes, jól szeparált életterek.
MŰSZAKI TARTALOM
Szerkezet
•60 cm széles sávalap
•25 cm Porotherm N+F vázkerámia falazóelem
•10 cm Porotherm válaszfalak
•Monolit vasbeton födém
•Bramac Tectura betoncserép fedés
Szigetelés
•Lábazat: 12 cm XPS
•Határoló falak: 15 cm kőzetgyapot
•Tetőszerkezet: 2x15 cm Rockwool
Nyílászárók
•3 rétegű műanyag nyílászárók a kiváló hő- és hangszigetelés érdekében
FŰTÉS / HŰTÉS / MELEGVÍZ
•Felső szinteken: egyedi hőszivattyús padlófűtés + mennyezeti hűtés
•Földszinten: hűtő-fűtő klíma okos bojler
•Használati meleg víz: hőszivattyúról működtetett meleg víz tároló
•Az albetétek egyedi fűtéssel és egyedi használati meleg víz-ellátással rendelkeznek
Energiahatékony, modern, gazdaságosan fenntartható megoldások.
LOKÁCIÓ
Csendes kertvárosi környezet, mégis minden karnyújtásnyira:
•Újpesti Piac – 3 perc
•Újpest-központ metróállomás (M3) – 5 perc
•Szakorvosi rendelő – 5 perc
•Egyetem – 10 perc
•Duna-part – 6 perc
II. emelet 4. lakás
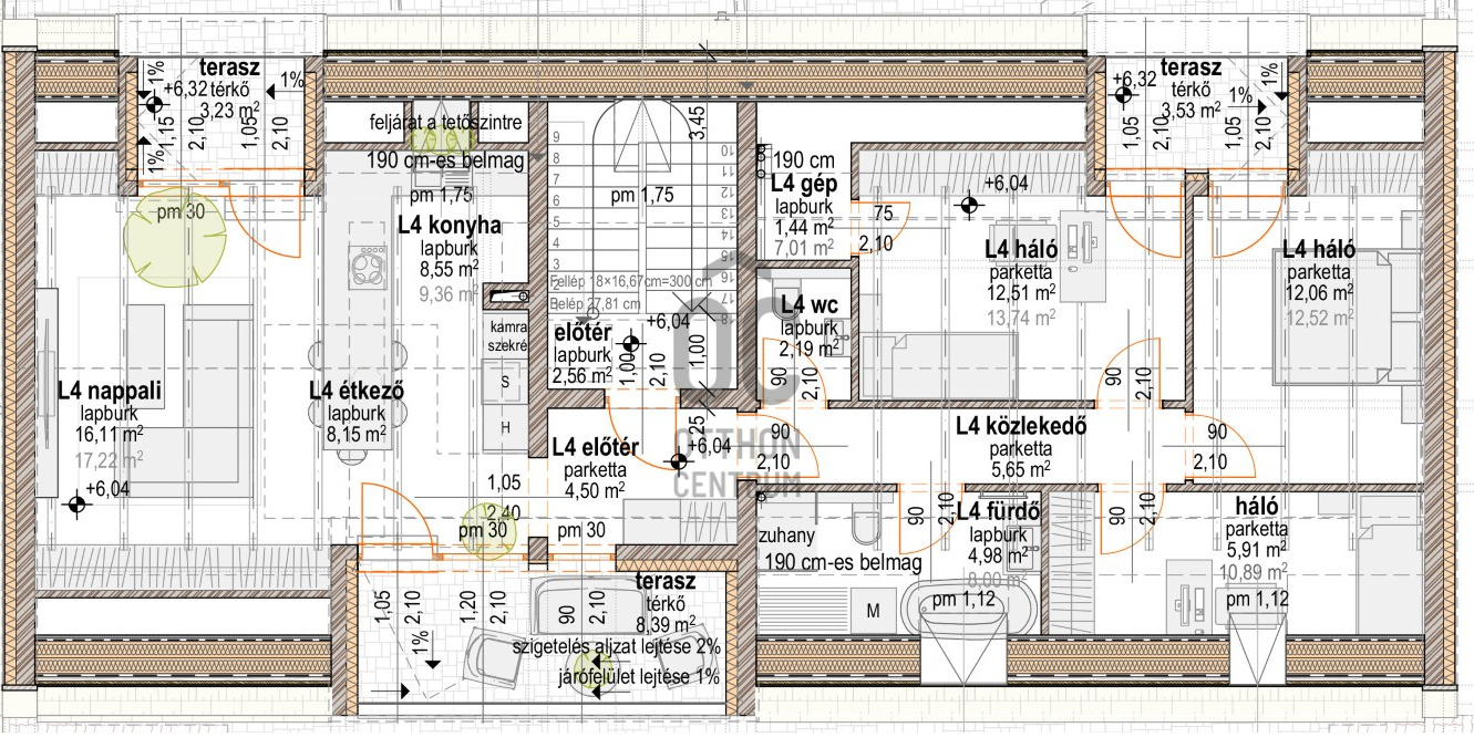
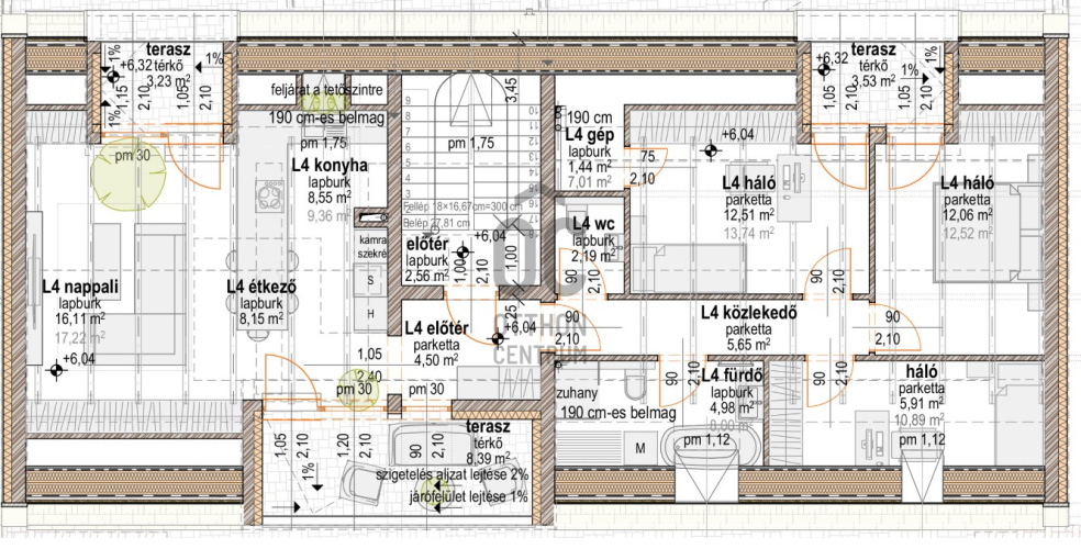
A projekt legnagyobb alapterületű lakása: nettó 89.74 bruttó 107.9 m2
3 hálószoba
Fürdőszoba
külön wc-kézmosó
Nappali
konyha-étkező
közlekedő
1 utcafronti terasz
2 hátsó terasz, mely a belső udvarra néz.
Fedett parkoló, elektromos autó töltés előkészítéssel 8M Ft.
Projekt bemutatóval és részletes műszaki tartalommal kapcsolatban várom megtisztelő hívását!
Kiváló infrastruktúra és közlekedés, nyugodt lakókörnyezetben.
Budapest IV. kerületében, csendes kertvárosi környezetben valósul meg a Kisfaludy Projekt. egy modern, mindössze 4 lakásos társasház utcafronti üzlethelyiséggel.
A projekt különlegessége az alacsony lakásszám, az átgondolt alaprajzok és a korszerű, energiahatékony műszaki tartalom.
A lakások 30%-al leköthetők! A földszinti garzon, ÉRTÉKESÍTÉSRE került!
ÉPÜLET ELRENDEZÉSE
Földszint
•Garzonlakás (eladva) – előtér, nappali–konyha–étkező, fürdő
•Üzlethelyiség – iroda, raktár, mosdó kialakítással
1. emelet – 2 lakás
•Előtér
•Nappali–konyha–étkező
•2 hálószoba
•Fürdőszoba
•Külön WC
Ideális választás családok számára.
2. emelet – 1 lakás
•Előtér
•Közlekedő
•Nappali–konyha–étkező
•3hálószoba
•Fürdőszoba
•Külön WC
Tágas, kényelmes, jól szeparált életterek.
MŰSZAKI TARTALOM
Szerkezet
•60 cm széles sávalap
•25 cm Porotherm N+F vázkerámia falazóelem
•10 cm Porotherm válaszfalak
•Monolit vasbeton födém
•Bramac Tectura betoncserép fedés
Szigetelés
•Lábazat: 12 cm XPS
•Határoló falak: 15 cm kőzetgyapot
•Tetőszerkezet: 2x15 cm Rockwool
Nyílászárók
•3 rétegű műanyag nyílászárók a kiváló hő- és hangszigetelés érdekében
FŰTÉS / HŰTÉS / MELEGVÍZ
•Felső szinteken: egyedi hőszivattyús padlófűtés + mennyezeti hűtés
•Földszinten: hűtő-fűtő klíma okos bojler
•Használati meleg víz: hőszivattyúról működtetett meleg víz tároló
•Az albetétek egyedi fűtéssel és egyedi használati meleg víz-ellátással rendelkeznek
Energiahatékony, modern, gazdaságosan fenntartható megoldások.
LOKÁCIÓ
Csendes kertvárosi környezet, mégis minden karnyújtásnyira:
•Újpesti Piac – 3 perc
•Újpest-központ metróállomás (M3) – 5 perc
•Szakorvosi rendelő – 5 perc
•Egyetem – 10 perc
•Duna-part – 6 perc
II. emelet 4. lakás
A projekt legnagyobb alapterületű lakása: nettó 89.74 bruttó 107.9 m2
3 hálószoba
Fürdőszoba
külön wc-kézmosó
Nappali
konyha-étkező
közlekedő
1 utcafronti terasz
2 hátsó terasz, mely a belső udvarra néz.
Fedett parkoló, elektromos autó töltés előkészítéssel 8M Ft.
Projekt bemutatóval és részletes műszaki tartalommal kapcsolatban várom megtisztelő hívását!
Kiváló infrastruktúra és közlekedés, nyugodt lakókörnyezetben.
Regisztrációs szám
U0049487
Az ingatlan adatai
Értékesités
eladó
Jogi státusz
új
Jelleg
lakás
Építési mód
tégla
Méret
89,7 m²
Bruttó méret
107,9 m²
Terasz / erkély mérete
8,3 m²
Fűtés
hőszivattyú (levegő-víz)
Belmagasság
270 cm
Tájolás
Dél-nyugat
Lépcsőház típusa
zárt lépcsőház
Állapot
Kiváló
Homlokzat állapota
Kiváló
Lépcsőház állapota
Kiváló
Építés éve
2026
Fürdőszobák száma
1
Fekvés
udvari
Fedett beállók száma
1
Víz
Van
Villany
Van
Csatorna
Van
Helyiségek
hálószoba
5.91 m²
hálószoba
12.06 m²
hálószoba
12.51 m²
fürdőszoba
4.98 m²
közlekedő
5.69 m²
wc-kézmosó
2.19 m²
előszoba
4.5 m²
konyha-étkező
17.7 m²
nappali
16.11 m²
terasz
3.23 m²
terasz
3.53 m²
terasz
8.39 m²
Joó Krisztina
Hitelszakértő