Elérhető Otthon Start hitellel
Eladó újépítésű ikerház,
U0049337
Dunavarsány
119 000 000 Ft
316 000 €
- 109m²
- 4 szoba
Újépítésű, modern ikerház Dunavarsány központjában – kiemelkedő műszaki tartalommal
Dunavarsány egyik legkedveltebb, központi részén kínáljuk megvételre ezt a kiváló elrendezésű, modern technológiával épülő ikerházat. Az ingatlan 340 m²-es saját telekkel rendelkezik, így tökéletes választás mindazoknak, akik új, energiatakarékos és hosszú távon fenntartható otthont keresnek.
A ház tervezésekor a praktikum és a kényelem volt a fő szempont: a földszinten található a közösségi élettér, míg az emelet a család privát zónája. A korszerű építési megoldásoknak és a minőségi anyaghasználatnak köszönhetően az otthon nemcsak esztétikus, hanem rendkívül energiatakarékos is.
Elrendezés és belső terek
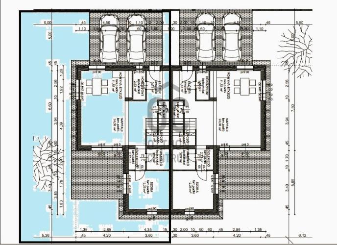
Földszint
-Tágas nappali, amely közvetlen kapcsolatban áll a kerttel és a terasszal
-Külön konyha-étkező rész
-1 kényelmes méretű hálószoba
-Modern kialakítású fürdőszoba
-Közlekedő és előtér
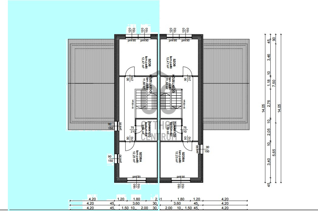
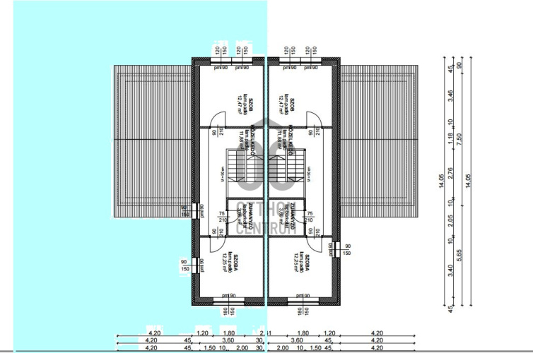
Emelet
-2 külön nyíló hálószoba
-Tágas fürdőszoba
-Előtér
Az elrendezés ideális családok számára, hiszen a földszinti háló vendégszobaként, dolgozóként vagy idősebb családtag számára is tökéletes.
Műszaki tartalom és építési megoldások
A ház magas minőségű, időtálló anyagokból épül:
30 N+F Porotherm tégla falazat
Vasbeton sávalap
10 cm Porotherm válaszfalak
5 légkamrás, 3 rétegű nyílászárók
15 cm homlokzati hőszigetelés
Terrán antracit cserépfedés
A korszerű gépészetnek köszönhetően az ingatlan rendkívül alacsony fenntartási költségekkel üzemeltethető:
Hőszivattyús fűtés és melegvíz-rendszer
Teljes házban padlófűtés
Hideg burkolatok választhatók 8.000 Ft/m²-ig
Meleg burkolatok választhatók 6.000 Ft/m²-ig
Extrák, amelyek tovább növelik az értéket
Burkolt terasz
3D kerítésrendszer elektromos tolókapuval
Riasztórendszer előkészítés
Elektromos redőny előkészítés
Térkövezett gépkocsibeálló
A telek mérete és kialakítása lehetővé teszi a kényelmes kertkapcsolatot, játszóteret, grillezőt vagy akár egy kisebb medence elhelyezését is.
Finanszírozás
Hitel, CSOK és Otthon Start támogatás igényelhető
Bankfüggetlen munkatársunk felveszi Önnel a kapcsolatot, hogy segítsen, a szolgáltatás ingyenes.
Hívjon a többi információért!
A ház tervezésekor a praktikum és a kényelem volt a fő szempont: a földszinten található a közösségi élettér, míg az emelet a család privát zónája. A korszerű építési megoldásoknak és a minőségi anyaghasználatnak köszönhetően az otthon nemcsak esztétikus, hanem rendkívül energiatakarékos is.
Elrendezés és belső terek
Földszint
-Tágas nappali, amely közvetlen kapcsolatban áll a kerttel és a terasszal
-Külön konyha-étkező rész
-1 kényelmes méretű hálószoba
-Modern kialakítású fürdőszoba
-Közlekedő és előtér
Emelet
-2 külön nyíló hálószoba
-Tágas fürdőszoba
-Előtér
Az elrendezés ideális családok számára, hiszen a földszinti háló vendégszobaként, dolgozóként vagy idősebb családtag számára is tökéletes.
Műszaki tartalom és építési megoldások
A ház magas minőségű, időtálló anyagokból épül:
30 N+F Porotherm tégla falazat
Vasbeton sávalap
10 cm Porotherm válaszfalak
5 légkamrás, 3 rétegű nyílászárók
15 cm homlokzati hőszigetelés
Terrán antracit cserépfedés
A korszerű gépészetnek köszönhetően az ingatlan rendkívül alacsony fenntartási költségekkel üzemeltethető:
Hőszivattyús fűtés és melegvíz-rendszer
Teljes házban padlófűtés
Hideg burkolatok választhatók 8.000 Ft/m²-ig
Meleg burkolatok választhatók 6.000 Ft/m²-ig
Extrák, amelyek tovább növelik az értéket
Burkolt terasz
3D kerítésrendszer elektromos tolókapuval
Riasztórendszer előkészítés
Elektromos redőny előkészítés
Térkövezett gépkocsibeálló
A telek mérete és kialakítása lehetővé teszi a kényelmes kertkapcsolatot, játszóteret, grillezőt vagy akár egy kisebb medence elhelyezését is.
Finanszírozás
Hitel, CSOK és Otthon Start támogatás igényelhető
Bankfüggetlen munkatársunk felveszi Önnel a kapcsolatot, hogy segítsen, a szolgáltatás ingyenes.
Hívjon a többi információért!
Regisztrációs szám
U0049337
Az ingatlan adatai
Értékesités
eladó
Jogi státusz
új
Jelleg
ház
Építési mód
tégla
Méret
109 m²
Bruttó méret
124 m²
Telek méret
679 m²
Fűtés
hőszivattyú
Belmagasság
270 cm
Lakáson belüli szintszám
1
Tájolás
Nyugat
Állapot
Kiváló
Homlokzat állapota
Kiváló
Környék
csendes, központi
Építés éve
2026
Fürdőszobák száma
2
Víz
Van
Gáz
Utcán
Villany
Van
Csatorna
Van
Helyiségek
nappali
24.08 m²
konyha-étkező
11.53 m²
háztartási helyiség
2.83 m²
előszoba
5.13 m²
közlekedő
2.77 m²
hálószoba
12.25 m²
fürdőszoba
3.69 m²
wc
1.89 m²
hálószoba
12.25 m²
hálószoba
12.47 m²
közlekedő
11.88 m²
fürdőszoba-wc
3.69 m²
terasz
20 m²
Joó Krisztina
Hitelszakértő