OTTHON CENTRUM
About Us
About Us
About Us
Analytic Division
Our Offices
Contact
Our Offices
Legal Information
Data Management Information
Announcements
Imprint
Financial Rules
Service Statement
Legal Statement
Manage Privacy
HU
Any
Any
For Sale
For Rent
Leasehold
Any
Any
apartment
house
vacation home
plot
garage
commercial
agricultural
developmental
City, District, Neighborhood
Budapest XI. kerület
1
selected
-
Price in M Ft
m Ft
-
Price in e Ft
e Ft
-
Size m²
m²
-
Rooms count
pcs
Search
Video Presentations
Search
Registration Number
Projects
Advanced Search
Exclusive Commission
Virtual Tour
Price Guaranteed
Bank Property
Legal Status
Any
Any
Used
New
Type
Any
Family house
Semi-detached house
Row house
House part
Farmhouse
Type
Any
Apartment
House
Type
Any
Building plot
Development plot
Type
Any
Individual
Garage hall
Function
Any
Retail
Hospitality unit
Stand-alone office building
Office
Office and shop
Office and warehouse
Showroom
Showroom and warehouse
Industrial hall or warehouse
Logistics center
Parking garage
Hotel
Guesthouse
Sports center
Healthcare center
Educational center
Agricultural site
Tenement house
Press house
Other
Type
Any
Entire building
Part of building
Construction Method
Any
Brick
Panel
Ytong
Lightweight Structure
Slipform
Prokoncept
Silicate
Bauxite Concrete
Aerated Concrete
Slag Block
Ceramic
Prefab House
Stone
Log House
Adobe
Mixed Masonry
Other
Heating
Any
none
Gas Circulator
Gas Convector
Tile Stove (Gas)
gas
Mixed Circulator
Tile Stove (Mixed)
Mixed Fan-Coil
Electric Circulator
Tile Stove (Electric)
Electric Fan-Coil
Electric Stove
Electric, Infrared
Coal Circulator
Tile Stove (Coal)
Coal Fan-Coil
Stove (Coal)
Individual District Heating
District Heating
Central Heating
Unmetered Central Heating
Renewable
Other
Gas Boiler
Mixed Fuel Boiler
Heat Pump
Heat Pump (Air-Air)
Heat Pump (Air-Water)
Heat Pump Fan-Coil
Heat Pump Underfloor Heating
Condition
Any
To Be Demolished
To Be Renovated
Average
Good
Excellent
View
Any
Street View
Courtyard View
Garden View
Staircase Type
Any
Corridor
Enclosed Staircase
Suspended Corridor
None
Number of Bathrooms
Floor
Any
-5th floor
-4th floor
-3rd floor
-2nd floor
-1st floor
basement
sub-basement
semi-basement
ground floor
raised ground floor
mezzanine
1st floor
2nd floor
3rd floor
4th floor
5th floor
6th floor
7th floor
8th floor
9th floor
10th floor
11th floor
12th floor
13th floor
14th floor
15th floor
16th floor
17th floor
18th floor
19th floor
20th floor
Any
-5th floor
-4th floor
-3rd floor
-2nd floor
-1st floor
basement
sub-basement
semi-basement
ground floor
raised ground floor
mezzanine
1st floor
2nd floor
3rd floor
4th floor
5th floor
6th floor
7th floor
8th floor
9th floor
10th floor
11th floor
12th floor
13th floor
14th floor
15th floor
16th floor
17th floor
18th floor
19th floor
20th floor
Registration Number
Year of Construction
Description
Otthon Start loan
Close
Search
Where are you looking?
No Results
Remove All
Budapest
Countryside
Budapest I. kerület
Budapest II. kerület
Budapest II/A. kerület
Budapest III. kerület
Budapest IV. kerület
Budapest V. kerület
Budapest VI. kerület
Budapest VII. kerület
Budapest VIII. kerület
Budapest IX. kerület
Budapest X. kerület
Budapest XI. kerület
Budapest XII. kerület
Budapest XIII. kerület
Budapest XIV. kerület
Budapest XV. kerület
Budapest XVI. kerület
Budapest XVII. kerület
Budapest XVIII. kerület
Budapest XIX. kerület
Budapest XX. kerület
Budapest XXI. kerület
Budapest XXII. kerület
Budapest XXIII. kerület
Budapest
budai oldal
pesti oldal
budai agglomeráció
pesti agglomeráció
Bács-Kiskun vármegye
Baranya vármegye
Békés vármegye
Borsod-Abaúj-Zemplén vármegye
Csongrád-Csanád vármegye
Fejér vármegye
Győr-Moson-Sopron vármegye
Hajdú-Bihar vármegye
Heves vármegye
Jász-Nagykun-Szolnok vármegye
Komárom-Esztergom vármegye
Nógrád vármegye
Pest vármegye
Somogy vármegye
Szabolcs-Szatmár-Bereg vármegye
Tolna vármegye
Vas vármegye
Veszprém vármegye
Zala vármegye
Baja
Békéscsaba
Debrecen
Dunaújváros
Eger
Esztergom
Érd
Győr
Hódmezővásárhely
Miskolc
Nagykanizsa
Nyíregyháza
Pécs
Salgótarján
Sopron
Szeged
Székesfehérvár
Szekszárd
Szolnok
Szombathely
Tatabánya
Veszprém
Zalaegerszeg
Balaton északi part
Balaton déli part
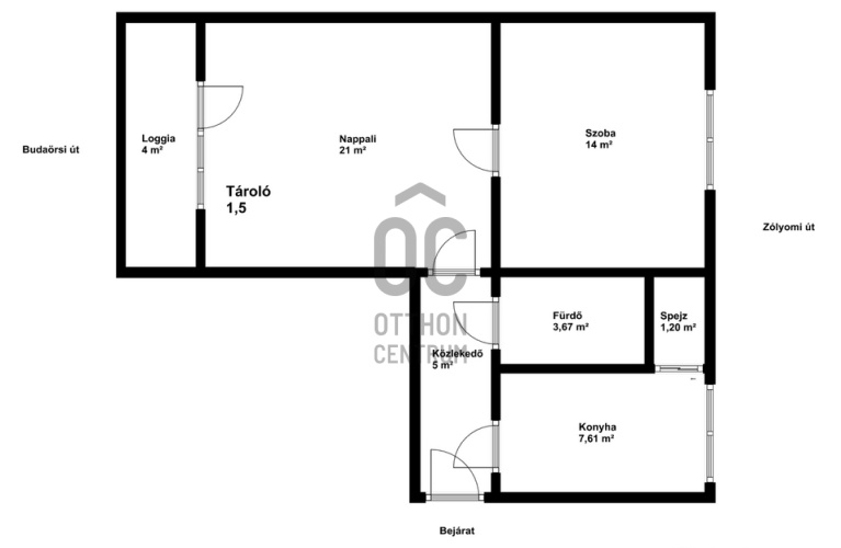
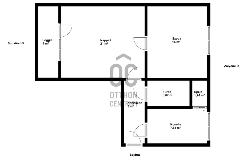
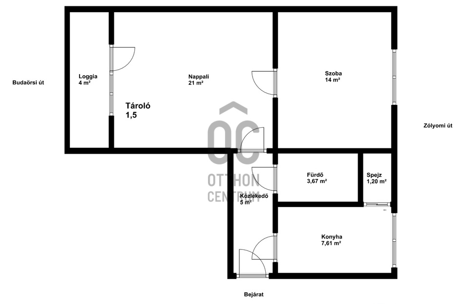
For sale apartment - Budapest XI. kerület
130 property
Relevance
Price Ascending
Price Descending
Size Ascending
Size Descending
Price per Sqm Ascending
Price per Sqm Descending
Modify Search
for sale panel apartment
Back
Next
1/10
for sale apartment
Back
Next
data_sheet.details.realestate.section.main.otthonstart_flag.label
1/31
for sale panel apartment
Back
Next
data_sheet.details.realestate.section.main.otthonstart_flag.label
1/13
for sale apartment
Back
Next
1/18
for sale apartment
Back
Next
1/11
for sale apartment
Back
Next
1/11
for sale apartment
Back
Next
1/18
for sale apartment
Back
Next
1/14
for sale panel apartment
Back
Next
1/25
for sale panel apartment
Back
Next
data_sheet.details.realestate.section.main.otthonstart_flag.label
1/15
for sale apartment
Back
Next
1/12
for sale panel apartment
Back
Next
1/14
Modify Search
Load More
Loading...
12
/ 130 properties
Budapest XI. kerület
for sale apartment in the area
Top for Sale
Top for Rent
for sale apartment
130
for sale house
28
for sale plot
11
for sale garage
4
for sale commercial
10
for sale developmental
4
for sale apartment Budapest I. kerület
69
for sale apartment Budapest II. kerület
136
for sale apartment Budapest II/A. kerület
10
for sale apartment Budapest III. kerület
161
for sale apartment Budapest IV. kerület
73
for sale apartment Budapest IX. kerület
124
for sale apartment Budapest V. kerület
229
for sale apartment Budapest VI. kerület
250
for sale apartment Budapest VII. kerület
253
for sale apartment Budapest VIII. kerület
203
for sale apartment Budapest X. kerület
64
for sale apartment Budapest XI. kerület
130
for sale apartment Budapest XII. kerület
101
for sale apartment Budapest XIII. kerület
405
for sale apartment Budapest XIV. kerület
151
for sale apartment Budapest XIX. kerület
44
for sale apartment Budapest XV. kerület
58
for sale apartment Budapest XVI. kerület
19
for sale apartment Budapest XVII. kerület
27
for sale apartment Budapest XVIII. kerület
33
for sale apartment Budapest XX. kerület
36
for sale apartment Budapest XXI. kerület
45
for sale apartment Budapest XXII. kerület
18
for sale apartment Budapest XXIII. kerület
12
for sale apartment
Abádszalók
2
for sale apartment
Abony
3
for sale apartment
Ajka
7
for sale apartment
Albertirsa
1
for sale apartment
Almásfüzitő
1
for sale apartment
Alsóörs
11
for sale apartment
Alsópáhok
2
for sale apartment
Aszófő
5
for sale apartment
Bácsalmás
1
for sale apartment
Badacsonytomaj
1
for sale apartment
Baja
3
for sale apartment
Balatonakarattya
3
for sale apartment
Balatonalmádi
8
for sale apartment
Balatonboglár
9
for sale apartment
Balatonfenyves
3
for sale apartment
Balatonföldvár
16
for sale apartment
Balatonfüred
21
for sale apartment
Balatonfűzfő
2
for sale apartment
Balatongyörök
1
for sale apartment
Balatonlelle
12
for sale apartment
Balatonmáriafürdő
1
for sale apartment
Balatonőszöd
1
for sale apartment
Balatonszárszó
6
for sale apartment
Balatonszemes
3
for sale apartment
Balatonszepezd
1
for sale apartment
Balatonudvari
2
for sale apartment
Ballószög
3
for sale apartment
Balmazújváros
9
for sale apartment
Barcs
1
for sale apartment
Bátonyterenye
1
for sale apartment
Bázakerettye
1
for sale apartment
Berettyóújfalu
2
for sale apartment
Berhida
2
for sale apartment
Biatorbágy
2
for sale apartment
Bicske
1
for sale apartment
Biharnagybajom
1
for sale apartment
Budakalász
1
for sale apartment
Budakeszi
7
for sale apartment
Budaörs
8
for sale apartment
Budapest I. kerület
69
for sale apartment
Budapest II. kerület
136
for sale apartment
Budapest II/A. kerület
10
for sale apartment
Budapest III. kerület
161
for sale apartment
Budapest IV. kerület
73
for sale apartment
Budapest IX. kerület
124
for sale apartment
Budapest V. kerület
229
for sale apartment
Budapest VI. kerület
250
for sale apartment
Budapest VII. kerület
253
for sale apartment
Budapest VIII. kerület
203
for sale apartment
Budapest X. kerület
64
for sale apartment
Budapest XI. kerület
130
for sale apartment
Budapest XII. kerület
101
for sale apartment
Budapest XIII. kerület
405
for sale apartment
Budapest XIV. kerület
151
for sale apartment
Budapest XIX. kerület
44
for sale apartment
Budapest XV. kerület
58
for sale apartment
Budapest XVI. kerület
19
for sale apartment
Budapest XVII. kerület
27
for sale apartment
Budapest XVIII. kerület
33
for sale apartment
Budapest XX. kerület
36
for sale apartment
Budapest XXI. kerület
45
for sale apartment
Budapest XXII. kerület
18
for sale apartment
Budapest XXIII. kerület
12
for sale apartment
Bugyi
1
for sale apartment
Bük
2
for sale apartment
Cegléd
39
for sale apartment
Celldömölk
4
for sale apartment
Csepreg
1
for sale apartment
Cserszegtomaj
3
for sale apartment
Csobánka
2
for sale apartment
Csopak
2
for sale apartment
Csorna
1
for sale apartment
Csömör
1
for sale apartment
Csurgó
1
for sale apartment
Dabas
2
for sale apartment
Debrecen
178
for sale apartment
Devecser
1
for sale apartment
Diósd
4
for sale apartment
Dorog
3
for sale apartment
Dunaalmás
1
for sale apartment
Dunaharaszti
4
for sale apartment
Dunakeszi
16
for sale apartment
Dunaújváros
12
for sale apartment
Dunavarsány
1
for sale apartment
Edelény
3
for sale apartment
Eger
8
for sale apartment
Ercsi
2
for sale apartment
Érd
20
for sale apartment
Erdőkertes
1
for sale apartment
Etyek
1
for sale apartment
Felsőszentiván
1
for sale apartment
Fertőszentmiklós
5
for sale apartment
Fonyód
14
for sale apartment
Fót
7
for sale apartment
Gárdony
8
for sale apartment
Gelse
1
for sale apartment
Göd
3
for sale apartment
Gödöllő
2
for sale apartment
Gutorfölde
1
for sale apartment
Gyál
3
for sale apartment
Gyömrő
4
for sale apartment
Gyöngyös
11
for sale apartment
Gyöngyössolymos
1
for sale apartment
Győr
81
for sale apartment
Győrladamér
1
for sale apartment
Győrújfalu
1
for sale apartment
Hajdúböszörmény
6
for sale apartment
Hajdúsámson
1
for sale apartment
Hajdúszoboszló
26
for sale apartment
Halásztelek
4
for sale apartment
Harkány
15
for sale apartment
Hatvan
2
for sale apartment
Helvécia
1
for sale apartment
Herceghalom
3
for sale apartment
Hévíz
36
for sale apartment
Hódmezővásárhely
4
for sale apartment
Ikrény
1
for sale apartment
Iregszemcse
1
for sale apartment
Jánosháza
1
for sale apartment
Jászberény
1
for sale apartment
Jobbágyi
2
for sale apartment
Kalocsa
2
for sale apartment
Kápolnásnyék
3
for sale apartment
Kaposvár
11
for sale apartment
Karcag
1
for sale apartment
Kazincbarcika
3
for sale apartment
Kecskemét
39
for sale apartment
Kehidakustány
4
for sale apartment
Kerepes
1
for sale apartment
Keszthely
29
for sale apartment
Kiskunlacháza
1
for sale apartment
Kistarcsa
2
for sale apartment
Kisvárda
6
for sale apartment
Komárom
1
for sale apartment
Komló
9
for sale apartment
Körmend
5
for sale apartment
Kőröshegy
2
for sale apartment
Kőszeg
17
for sale apartment
Kőszegszerdahely
1
for sale apartment
Kővágószőlős
1
for sale apartment
Kulcs
1
for sale apartment
Lábatlan
1
for sale apartment
Lenti
1
for sale apartment
Letenye
2
for sale apartment
Lovászi
2
for sale apartment
Makó
7
for sale apartment
Marcali
3
for sale apartment
Mezőhegyes
1
for sale apartment
Mindszent
1
for sale apartment
Miskolc
29
for sale apartment
Mogyoród
2
for sale apartment
Mohács
7
for sale apartment
Monor
6
for sale apartment
Mór
1
for sale apartment
Mosonmagyaróvár
5
for sale apartment
Nagyatád
1
for sale apartment
Nagykanizsa
50
for sale apartment
Nagykáta
2
for sale apartment
Nagykőrös
1
for sale apartment
Nagymaros
1
for sale apartment
Nagytarcsa
2
for sale apartment
Nemesbük
4
for sale apartment
Nyergesújfalu
3
for sale apartment
Nyíregyháza
39
for sale apartment
Ócsa
1
for sale apartment
Oroszlány
2
for sale apartment
Oszkó
2
for sale apartment
Ózd
5
for sale apartment
Paks
23
for sale apartment
Pápa
7
for sale apartment
Páty
1
for sale apartment
Pécel
2
for sale apartment
Pécs
130
for sale apartment
Perbál
1
for sale apartment
Pétfürdő
2
for sale apartment
Pilis
1
for sale apartment
Piliscsaba
3
for sale apartment
Pilisjászfalu
1
for sale apartment
Pilisvörösvár
1
for sale apartment
Polgárdi
4
for sale apartment
Pomáz
1
for sale apartment
Ráckeve
3
for sale apartment
Sajóbábony
3
for sale apartment
Salgótarján
4
for sale apartment
Sárbogárd
7
for sale apartment
Sárospatak
1
for sale apartment
Sárvár
1
for sale apartment
Sátoraljaújhely
1
for sale apartment
Siklós
4
for sale apartment
Simontornya
2
for sale apartment
Siófok
91
for sale apartment
Solymár
2
for sale apartment
Sopron
21
for sale apartment
Szántód
3
for sale apartment
Százhalombatta
5
for sale apartment
Szeged
20
for sale apartment
Székesfehérvár
40
for sale apartment
Szekszárd
34
for sale apartment
Szentendre
7
for sale apartment
Szentes
1
for sale apartment
Szentgotthárd
2
for sale apartment
Szigethalom
1
for sale apartment
Szigetmonostor
4
for sale apartment
Szigetszentmiklós
9
for sale apartment
Szigetvár
2
for sale apartment
Szolnok
13
for sale apartment
Szombathely
32
for sale apartment
Tahitótfalu
1
for sale apartment
Tamási
1
for sale apartment
Tapolca
16
for sale apartment
Tárnok
1
for sale apartment
Tata
9
for sale apartment
Tatabánya
15
for sale apartment
Teskánd
2
for sale apartment
Tihany
1
for sale apartment
Tiszafüred
4
for sale apartment
Tiszavasvári
1
for sale apartment
Tófej
1
for sale apartment
Tokod
2
for sale apartment
Tokodaltáró
1
for sale apartment
Tolna
1
for sale apartment
Törökbálint
6
for sale apartment
Újlengyel
3
for sale apartment
Úny
1
for sale apartment
Üllő
3
for sale apartment
Üröm
1
for sale apartment
Vác
19
for sale apartment
Vácrátót
1
for sale apartment
Vámosszabadi
1
for sale apartment
Várpalota
4
for sale apartment
Vásárosnamény
4
for sale apartment
Vasvár
5
for sale apartment
Vecsés
1
for sale apartment
Velence
1
for sale apartment
Veresegyház
3
for sale apartment
Veszprém
15
for sale apartment
Visegrád
1
for sale apartment
Vonyarcvashegy
1
for sale apartment
Záhony
2
for sale apartment
Zákány
4
for sale apartment
Zalacsány
4
for sale apartment
Zalaegerszeg
28
for sale apartment
Zalakaros
2
for sale apartment
Zalaszentgrót
2
for sale apartment
Zamárdi
6
for sale apartment
Zirc
1
for sale apartment
Zsámbék
1
for rent apartment
Budapest I. kerület
14
for rent apartment
Budapest II. kerület
21
for rent apartment
Budapest III. kerület
10
for rent apartment
Budapest IV. kerület
1
for rent apartment
Budapest IX. kerület
14
for rent apartment
Budapest V. kerület
39
for rent apartment
Budapest VI. kerület
52
for rent apartment
Budapest VII. kerület
17
for rent apartment
Budapest VIII. kerület
9
for rent apartment
Budapest XI. kerület
15
for rent apartment
Budapest XII. kerület
9
for rent apartment
Budapest XIII. kerület
30
for rent apartment
Budapest XIV. kerület
5
for rent apartment
Budapest XIX. kerület
1
for rent apartment
Budapest XV. kerület
1
for rent apartment
Budapest XVII. kerület
1
for rent apartment
Budapest XXII. kerület
1
for rent apartment
Cegléd
4
for rent apartment
Debrecen
39
for rent apartment
Dunaújváros
2
for rent apartment
Érd
1
for rent apartment
Göd
1
for rent apartment
Gyöngyös
1
for rent apartment
Győr
1
for rent apartment
Hajdúszoboszló
1
for rent apartment
Hévíz
1
for rent apartment
Kecskemét
6
for rent apartment
Keszthely
2
for rent apartment
Kőszegszerdahely
1
for rent apartment
Miskolc
4
for rent apartment
Nagykőrös
1
for rent apartment
Nyíregyháza
2
for rent apartment
Paks
2
for rent apartment
Pápa
3
for rent apartment
Pécs
6
for rent apartment
Piliscsaba
1
for rent apartment
Siófok
1
for rent apartment
Sopron
1
for rent apartment
Székesfehérvár
3
for rent apartment
Szekszárd
5
for rent apartment
Szentendre
1
for rent apartment
Szigetszentmiklós
1
for rent apartment
Szolnok
3
for rent apartment
Tata
1
for rent apartment
Tatabánya
1
for rent apartment
Tolna
1
for rent apartment
Vác
1
for rent apartment
Zalaegerszeg
2