data_sheet.details.realestate.section.main.otthonstart_flag.label
For sale family house,
H510521
Budakalász
56,900,000 Ft
149,000 €
- 47.5m²
- 2 Rooms
Budakalász központjában - kis ház, nagy lehetőség!
Budakalász történelmi központjában kínáljuk megvételre ezt a különálló, teljesen önálló kis házat, amely tökéletes választás lehet irodának, mini otthonnak, rendelőnek vagy kiadható lakrésznek.
A ház saját bejárattal rendelkezik, intim előkerten át közelíthető meg, így a használata teljes mértékben szeparált, saját autó beálló tartozik hozzá.
Főbb jellemzők:
- Önálló épület, külön helyrajzi lehetőséggel
- Gázfűtés + padlófűtés – gyors, hatékony, kedvező üzemeltetés
- Rendezett, falusias hangulatú utcafront
- Világos, jól használható helyiségek
- Kiváló infrastruktúra: minden pár percen belül gyalogosan
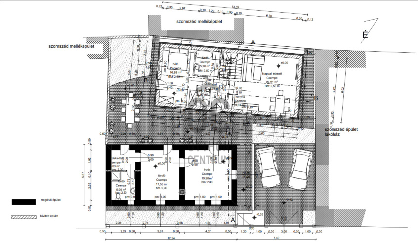
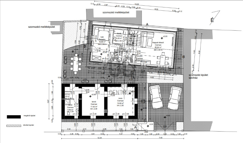
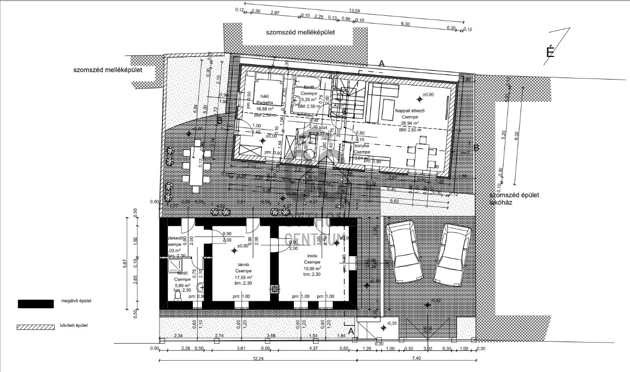
Helyiségek
- Iroda / nappali
- Tároló (külön helyiségként is használható)
- Fürdőszoba
- Közlekedő
Összes hasznos alapterület: ~47,55 m²
Kinek ideális?
- vállalkozóknak, ügyvédeknek, tanácsadóknak → kiváló irodahelyszín
- befektetőknek → könnyen kiadható
- pároknak, egyedülállóknak → alacsony fenntartási költségek
- rendelőnek vagy szolgáltató térnek
Budakalász központi része nem véletlenül ennyire keresett: pár perces sétával elérhető üzletek, óvoda, iskola, buszmegálló, orvosi rendelő, parkok és a Duna-part is.
A környék biztonságos és barátságos, tökéletes választás annak, aki értékeli a kisvárosi hangulatot a főváros közelségével.
Ez az ingatlan gyorsan elkelő kategória – kis méret, alacsony fenntartás, tökéletes elhelyezkedés. Ha szeretné megtekinteni vagy kérdése van, hívjon most, amíg még elérhető!
#BudakalászÚjépítésű #PrémiumIngatlan #KözpontiElhelyezkedés #MinőségiKivitelezés #ModernOtthon #EladóIngatlan #OCambyViktóriaÉberl
A ház saját bejárattal rendelkezik, intim előkerten át közelíthető meg, így a használata teljes mértékben szeparált, saját autó beálló tartozik hozzá.
Főbb jellemzők:
- Önálló épület, külön helyrajzi lehetőséggel
- Gázfűtés + padlófűtés – gyors, hatékony, kedvező üzemeltetés
- Rendezett, falusias hangulatú utcafront
- Világos, jól használható helyiségek
- Kiváló infrastruktúra: minden pár percen belül gyalogosan
Helyiségek
- Iroda / nappali
- Tároló (külön helyiségként is használható)
- Fürdőszoba
- Közlekedő
Összes hasznos alapterület: ~47,55 m²
Kinek ideális?
- vállalkozóknak, ügyvédeknek, tanácsadóknak → kiváló irodahelyszín
- befektetőknek → könnyen kiadható
- pároknak, egyedülállóknak → alacsony fenntartási költségek
- rendelőnek vagy szolgáltató térnek
Budakalász központi része nem véletlenül ennyire keresett: pár perces sétával elérhető üzletek, óvoda, iskola, buszmegálló, orvosi rendelő, parkok és a Duna-part is.
A környék biztonságos és barátságos, tökéletes választás annak, aki értékeli a kisvárosi hangulatot a főváros közelségével.
Ez az ingatlan gyorsan elkelő kategória – kis méret, alacsony fenntartás, tökéletes elhelyezkedés. Ha szeretné megtekinteni vagy kérdése van, hívjon most, amíg még elérhető!
#BudakalászÚjépítésű #PrémiumIngatlan #KözpontiElhelyezkedés #MinőségiKivitelezés #ModernOtthon #EladóIngatlan #OCambyViktóriaÉberl
Registration Number
H510521
Property Details
Sales
for sale
Legal Status
used
Character
house
Construction Method
mixed masonry
Net Size
47.5 m²
Gross Size
50 m²
Plot Size
138 m²
Heating
Gas circulator
Ceiling Height
235 cm
Orientation
East
View
city view, Other
Condition
Excellent
Condition of Facade
Excellent
Neighborhood
good transport, central
Year of Construction
1900
Number of Bathrooms
1
Water
Available
Gas
Available
Electricity
Available
Sewer
Available
Distance to Waterfront
more than 500 meters
Rooms
office
19.98 m²
storage
17.55 m²
corridor
4.03 m²
bathroom-toilet
5.99 m²
Korcsog Melinda
Credit Expert