165,000,000 Ft
424,000 €
- 117m²
- 3 Rooms
- 3rd floor






































Where History Meets Modern Elegance
A home filled with feelings, stories, and intimate moments.
An apartment that defies convention – and that’s exactly what makes it so special, unique, and captivating.
Everyone who enters feels as though they’ve stepped into a work of art.
Welcome home!
SHORT SUMMARY
In Budapest’s 7th district, at Klauzál Square 11, we present for sale a 127 sqm (officially measured at 117 sqm) luxury apartment overlooking the park, facing south–southwest, located on the top floor of a well-maintained historic building (without an elevator).
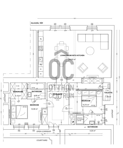
One of the apartment’s main highlights is its nearly 55 sqm open-plan living area with a modern kitchen, bathed in natural light, boasting high ceilings and a distinctive atmosphere.
A WORK OF ART ABOVE THE CITY
The apartment has undergone a complete, carefully designed renovation, blending modern comfort and elegance while preserving the building’s classic character.
Its top-floor location ensures peace and privacy, while the view over the renovated park is a rare gem in the heart of downtown Budapest.
The spacious entrance hall welcomes guests with built-in storage and leads to the apartment’s central space: the living–dining–kitchen area, where minimalist design, natural light, and premium materials come together in perfect harmony.
The kitchen is equipped with Neff appliances, complemented by a home cinema system and designer lighting, all reflecting the highest attention to detail and quality.
TWO BEDROOM SUITES – PRIVATE SPACES, MAXIMUM COMFORT
The apartment features two well-separated bedroom suites:
-The master bedroom includes a private bathroom with a shower, a built-in infrared sauna, and custom storage.
-The second bedroom offers a bathroom with a jacuzzi tub and a spacious walk-in closet, allowing both suites to function independently alongside the shared living area.
EQUIPMENT AND TECHNOLOGY
Every detail of the apartment represents top quality:
- Premium materials and finishes
- Air conditioning in every room
- Motorized shutters in the bedrooms
- Underfloor heating for cozy winter comfort
- Modern alarm system for enhanced security
- Furnishing by Minotti – available upon separate agreement
THE BUILDING
The apartment is located on the top floor of a historic bourgeois building dating back to the late 1890s.
The building is well-kept, clean, and financially stable, with ongoing maintenance funded by healthy reserves.
The monthly common cost is 45,750 HUF, and all utilities (water, gas, electricity) are individually metered.
Thanks to energy-efficient solutions and modern engineering, maintenance costs are low.
Parking is available on the street, with discounted residential permits, and several garage rental options are available nearby.
LOCATION
Why invest or move here?
- Situated in one of Budapest’s most vibrant neighborhoods, Klauzál Square lies in the heart of the historic Jewish Quarter
- Lively urban atmosphere with cozy cafés, artisan bistros, ruin bars, and restaurants waiting to be explored
- Only 500 meters from Andrássy Avenue, one of Budapest’s most beautiful boulevards, home to elegant boutiques, cafés, galleries, and the Hungarian State Opera House
- The Klauzál Market Hall is right next door – offering fresh produce, local vendors, and a true community vibe
- Excellent public transport connections: tram lines 4–6, metro lines M2 and M3, and several bus and trolley routes ensure easy access to all parts of the city
- Everyday amenities within arm’s reach: shops, pharmacies, banks, gyms, hairdressers, and beauty salons
- Surrounded by culture – Hungarian Jewish Museum, Dohány Street Synagogue, Madách Theatre, and the Opera House are all within walking distance
- Leisure options abound – Gozsdu Courtyard, Deák Square, and Király Street’s nightlife district are nearby
- Closest shopping centers: Aréna Mall and Westend City Center, just a few stops away
For more information, feel free to contact me – I look forward to your call!
An apartment that defies convention – and that’s exactly what makes it so special, unique, and captivating.
Everyone who enters feels as though they’ve stepped into a work of art.
Welcome home!
SHORT SUMMARY
In Budapest’s 7th district, at Klauzál Square 11, we present for sale a 127 sqm (officially measured at 117 sqm) luxury apartment overlooking the park, facing south–southwest, located on the top floor of a well-maintained historic building (without an elevator).
One of the apartment’s main highlights is its nearly 55 sqm open-plan living area with a modern kitchen, bathed in natural light, boasting high ceilings and a distinctive atmosphere.
A WORK OF ART ABOVE THE CITY
The apartment has undergone a complete, carefully designed renovation, blending modern comfort and elegance while preserving the building’s classic character.
Its top-floor location ensures peace and privacy, while the view over the renovated park is a rare gem in the heart of downtown Budapest.
The spacious entrance hall welcomes guests with built-in storage and leads to the apartment’s central space: the living–dining–kitchen area, where minimalist design, natural light, and premium materials come together in perfect harmony.
The kitchen is equipped with Neff appliances, complemented by a home cinema system and designer lighting, all reflecting the highest attention to detail and quality.
TWO BEDROOM SUITES – PRIVATE SPACES, MAXIMUM COMFORT
The apartment features two well-separated bedroom suites:
-The master bedroom includes a private bathroom with a shower, a built-in infrared sauna, and custom storage.
-The second bedroom offers a bathroom with a jacuzzi tub and a spacious walk-in closet, allowing both suites to function independently alongside the shared living area.
EQUIPMENT AND TECHNOLOGY
Every detail of the apartment represents top quality:
- Premium materials and finishes
- Air conditioning in every room
- Motorized shutters in the bedrooms
- Underfloor heating for cozy winter comfort
- Modern alarm system for enhanced security
- Furnishing by Minotti – available upon separate agreement
THE BUILDING
The apartment is located on the top floor of a historic bourgeois building dating back to the late 1890s.
The building is well-kept, clean, and financially stable, with ongoing maintenance funded by healthy reserves.
The monthly common cost is 45,750 HUF, and all utilities (water, gas, electricity) are individually metered.
Thanks to energy-efficient solutions and modern engineering, maintenance costs are low.
Parking is available on the street, with discounted residential permits, and several garage rental options are available nearby.
LOCATION
Why invest or move here?
- Situated in one of Budapest’s most vibrant neighborhoods, Klauzál Square lies in the heart of the historic Jewish Quarter
- Lively urban atmosphere with cozy cafés, artisan bistros, ruin bars, and restaurants waiting to be explored
- Only 500 meters from Andrássy Avenue, one of Budapest’s most beautiful boulevards, home to elegant boutiques, cafés, galleries, and the Hungarian State Opera House
- The Klauzál Market Hall is right next door – offering fresh produce, local vendors, and a true community vibe
- Excellent public transport connections: tram lines 4–6, metro lines M2 and M3, and several bus and trolley routes ensure easy access to all parts of the city
- Everyday amenities within arm’s reach: shops, pharmacies, banks, gyms, hairdressers, and beauty salons
- Surrounded by culture – Hungarian Jewish Museum, Dohány Street Synagogue, Madách Theatre, and the Opera House are all within walking distance
- Leisure options abound – Gozsdu Courtyard, Deák Square, and Király Street’s nightlife district are nearby
- Closest shopping centers: Aréna Mall and Westend City Center, just a few stops away
For more information, feel free to contact me – I look forward to your call!
Registration Number
H508391
Property Details
Sales
for sale
Legal Status
used
Character
apartment
Construction Method
brick
Net Size
117 m²
Gross Size
117 m²
Heating
Gas circulator
Ceiling Height
330 cm
Number of Levels Within the Property
1
Orientation
South-West
View
Green view
Staircase Type
enclosed staircase
Condition
Excellent
Condition of Facade
Average
Condition of Staircase
Average
Neighborhood
good transport, green
Year of Construction
1897
Number of Bathrooms
2
Position
street-facing
Common Costs
45750
Water
Available
Gas
Available
Electricity
Available
Sewer
Available
Rooms
open-plan kitchen and living room
54.5 m²
bedroom
13 m²
wardrobe
4.1 m²
bathroom-toilet
4.6 m²
bedroom
15.7 m²
bathroom
4 m²
washroom
1.95 m²
corridor
15.15 m²

Ruczek János
Credit Expert