Eladó újépítésű lakás, U0047738
Budapest XIII. kerület, Angyalföld

105 900 000 Ft

276 000 €

  • 56,6m²
  • 3 szoba
  • 6. emelet
Kiemelt megbízás

Nagy teraszos napfényes

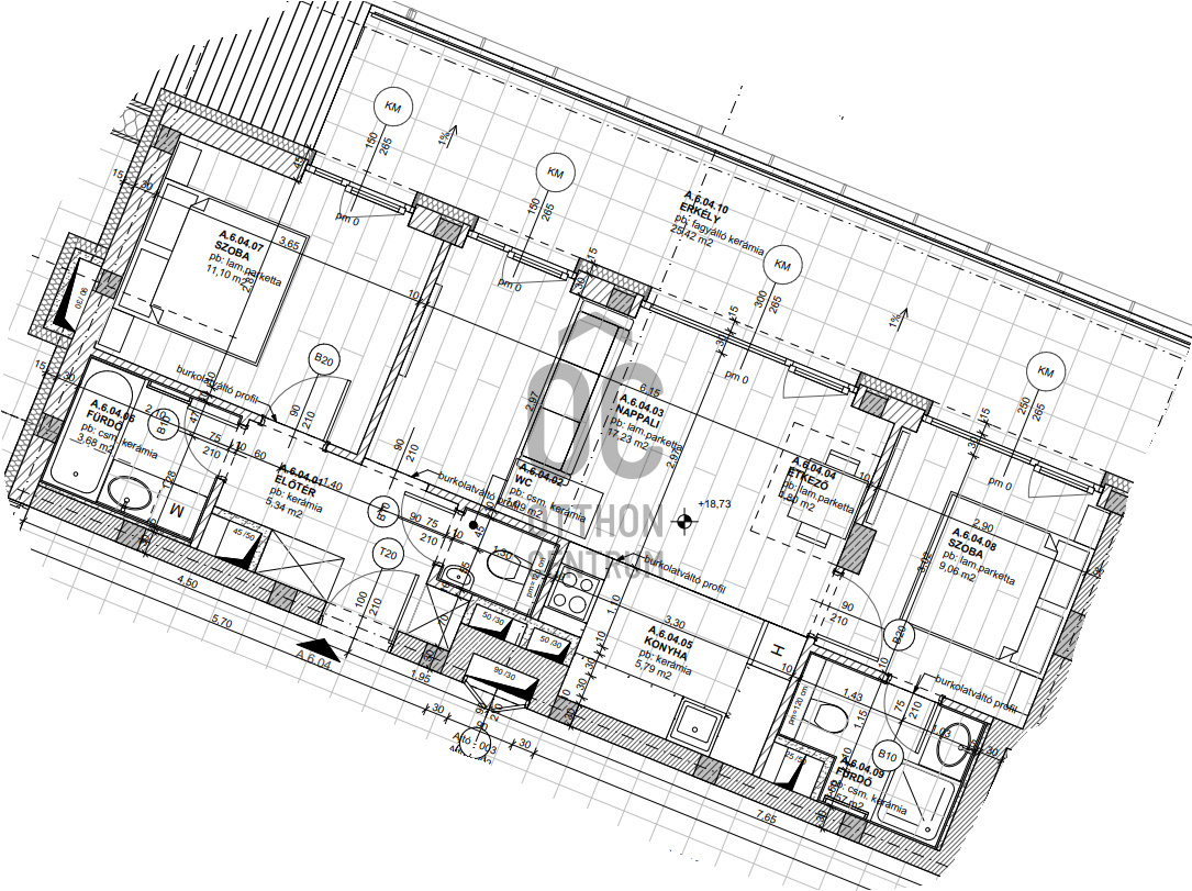
XIII., Kartács utcába új építésű társasház 6. emeletén első lakóját keresi egy 3 szobás nagy teraszos lakás!
A rengeteg üvegfelületnek köszönhetően a lakás nagyon világos, mindkét hálószobához külön fürdő tartozik.
A lakás ez év decemberében költözhető, a burkolatok, belső nyílászárók, szaniterek még kiválaszthatóak!
Garázs és tároló vásárolható!

Regisztrációs szám

U0047738

Az ingatlan adatai

Értékesités
eladó
Jogi státusz
új
Jelleg
lakás
Építési mód
tégla
Méret
56,6 m²
Bruttó méret
68,1 m²
Terasz / erkély mérete
22,9 m²
Fűtés
hőszivattyú
Belmagasság
260 cm
Tájolás
Észak-kelet
Lépcsőház típusa
zárt lépcsőház
Állapot
Kiváló
Homlokzat állapota
Kiváló
Lépcsőház állapota
Kiváló
Építés éve
2025
Fürdőszobák száma
2
Fekvés
utcai
Garázs
Külön vásárolható
Víz
Van
Villany
Van
Csatorna
Van
Lift
van

Helyiségek

nappali-konyha
25 m²
hálószoba
11.1 m²
hálószoba
9.06 m²
előszoba
5.32 m²
terasz
22.96 m²
Németh István
Németh István

Hitelszakértő

Irodánk kínálatából - XIII. kerület - Viza utca

for sale commercial property

Index image
18

for sale family house

Index image
22

for sale apartment

Index image
data_sheet.details.realestate.section.main.otthonstart_flag.label
13

for sale apartment

Index image
21

for sale panel apartment

Index image
data_sheet.details.realestate.section.main.otthonstart_flag.label
12