data_sheet.details.realestate.section.main.otthonstart_flag.label
For sale family house,
H493345
Szőkedencs
28,900,000 Ft
74,000 €
- 76m²
- 3 Rooms

































Vidéki báj Zalakaros és a Balaton közelében: 3 szobás parasztház keresi új gazdáját Szőkedencsen
Somogy megyében, az M7 autópálya közvetlen közelében, Szőkedencs csendes és nyugodt környezetében kínálunk 3 szobás parasztházat eladásra, amely ideális választás lehet minden korosztály számára, akik szeretnék élvezni a vidéki élet nyugalmát és szépségeit.
az ingatlan főbb jellemzői:
- kiváló megközelíthetőség
- csendes, természetközeli fekvés
- belterület
Ingatlan nyilvántartás szerint: kivett lakóház, udvar, gazdasági épület
- 1950-es években épült döntő többségben tégla épület
- földszintes, hangulatos parasztház látszó gerendákkal
- 76 nm alapterület
- fa nyílászárók
- cseréptető
- a fűtés 2 gázkonvektorral és cserépkályhával biztosított
- meleg víz ellátása villanybojlerrel történik
- a fürdőszoba 2010-ben került kialakításra
- a konyha kb 2 éve újult meg
- kémény 3 éve lett újra rakva
- jelen állapotában is egész évben lakható
- az épület felújítást igényel, leendő tulajdonosa saját ízlése szerint alakíthatja ki otthonát
- 2.158 nm a telek nagysága
- körbe kerített
- vezetékes villany, víz, gáz bevezetve, szennyvíz elvezetése zárt emésztőben történik
- az udvarban található egykori tégla istálló további bővülésre ad lehetőséget (32nm)
- a melléképület tetőzete felújításra került
- a kert bőséges teret kínál a szabadidős tevékenységekhez, kertészkedéshez vagy akár egy kis gyümölcsös kialakításához
- a telek hátsó részében akácos található
- hátsó útról is könnyen megközelíthető
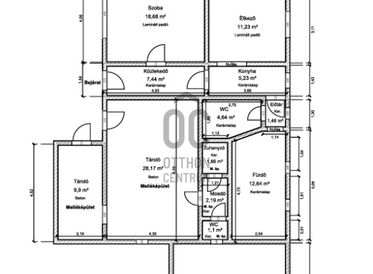
az épület elosztása:
- a lakóházban 3 különálló szoba található ( 2 háló és 1 nappali)
- fürdőszoba/ WC
- konyha/étkező
- nagy méretű kamra, padlásfeljáróval
A környék kiváló adottságokkal rendelkezik, Szőkedencs egy csendes, barátságos 260 fős kistelepülés, ahol a természet közelsége és a friss levegő garantálja a nyugalmat. A település biztonságos, és az itt élők közössége összetartó. A közlekedés is kedvező, hiszen a közeli városok, mint például Keszthely, Marcali, Nagykanizsa kb 20 percen belül megközelíthetők autóval és tömegközlekedéssel is. Zalakaros gyógyfürdő 15 kilométerre található. A legközelebbi vasútállomás Zalakomárban elérhető. A közeli boltok, orvosi rendelő, könyvár, 2 templom és egyéb szolgáltatások pedig megkönnyítik a mindennapi életet. A Kis-Balaton közelében a falu nevezetessége a temetőben található közel 700 éves hársfa.
Ez az ingatlan nem csupán egy régmúltú ház, hanem egy lehetőség arra, hogy egy olyan otthonra találjon, ahol a nyugalom és a természet közelsége élvezhető.
Ha Ön is szeretne többet megtudni erről az ajánlatról, várjuk hívást!
Az adatok tájékoztató jellegűek.
az ingatlan főbb jellemzői:
- kiváló megközelíthetőség
- csendes, természetközeli fekvés
- belterület
Ingatlan nyilvántartás szerint: kivett lakóház, udvar, gazdasági épület
- 1950-es években épült döntő többségben tégla épület
- földszintes, hangulatos parasztház látszó gerendákkal
- 76 nm alapterület
- fa nyílászárók
- cseréptető
- a fűtés 2 gázkonvektorral és cserépkályhával biztosított
- meleg víz ellátása villanybojlerrel történik
- a fürdőszoba 2010-ben került kialakításra
- a konyha kb 2 éve újult meg
- kémény 3 éve lett újra rakva
- jelen állapotában is egész évben lakható
- az épület felújítást igényel, leendő tulajdonosa saját ízlése szerint alakíthatja ki otthonát
- 2.158 nm a telek nagysága
- körbe kerített
- vezetékes villany, víz, gáz bevezetve, szennyvíz elvezetése zárt emésztőben történik
- az udvarban található egykori tégla istálló további bővülésre ad lehetőséget (32nm)
- a melléképület tetőzete felújításra került
- a kert bőséges teret kínál a szabadidős tevékenységekhez, kertészkedéshez vagy akár egy kis gyümölcsös kialakításához
- a telek hátsó részében akácos található
- hátsó útról is könnyen megközelíthető
az épület elosztása:
- a lakóházban 3 különálló szoba található ( 2 háló és 1 nappali)
- fürdőszoba/ WC
- konyha/étkező
- nagy méretű kamra, padlásfeljáróval
A környék kiváló adottságokkal rendelkezik, Szőkedencs egy csendes, barátságos 260 fős kistelepülés, ahol a természet közelsége és a friss levegő garantálja a nyugalmat. A település biztonságos, és az itt élők közössége összetartó. A közlekedés is kedvező, hiszen a közeli városok, mint például Keszthely, Marcali, Nagykanizsa kb 20 percen belül megközelíthetők autóval és tömegközlekedéssel is. Zalakaros gyógyfürdő 15 kilométerre található. A legközelebbi vasútállomás Zalakomárban elérhető. A közeli boltok, orvosi rendelő, könyvár, 2 templom és egyéb szolgáltatások pedig megkönnyítik a mindennapi életet. A Kis-Balaton közelében a falu nevezetessége a temetőben található közel 700 éves hársfa.
Ez az ingatlan nem csupán egy régmúltú ház, hanem egy lehetőség arra, hogy egy olyan otthonra találjon, ahol a nyugalom és a természet közelsége élvezhető.
Ha Ön is szeretne többet megtudni erről az ajánlatról, várjuk hívást!
Az adatok tájékoztató jellegűek.
Registration Number
H493345
Property Details
Sales
for sale
Legal Status
used
Character
house
Construction Method
brick
Net Size
76 m²
Gross Size
76 m²
Plot Size
2,158 m²
Heating
gas convector
Ceiling Height
260 cm
Orientation
South-West
View
Green view
Condition
Average
Condition of Facade
Average
Neighborhood
quiet, good transport, green
Year of Construction
1950
Number of Bathrooms
1
Water
Available
Gas
Available
Electricity
Available
Storage
Independent
Rooms
open-plan kitchen and dining room
1 m²
pantry
1 m²
bathroom-toilet
1 m²
living room
1 m²
room
1 m²
room
1 m²
other
1 m²

Edve János
Credit Expert