data_sheet.details.realestate.section.main.otthonstart_flag.label
For sale family house,
H480087
Velem
85,000,000 Ft
217,000 €
- 98.9m²
- 3 Rooms















Kőház a velemi villasoron
Kőszeghegyalja csodás településén, Velemben áll ez az 1940-es években épített különleges kőház.
Egyedi megjelenése abban rejlik, hogy kizárólag helyi kőből készítették. A völgy oldalában megbúvó 2230 nm-es telket árnyat adó fák (szelídgesztenye, dió) teszik romantikus hangulatúvá.
Az alagsorban garázs és egy egykori borospince kap helyet. A lakótérhez kőlépcső vezet fel. A 70-es években kibővített épület 99 nm alapterülettel várja új tulajdonosát. A fűtésről gáz központi fűtés - radiátoros hőleadással- gondoskodik. A vidéki hangulatot pedig egy ülőpados cserépkályha szolgálja. Tágas közlekedőből nyílnak a helyiségek: 3 szoba, konyha, kamra és fürdő-WC. A nappaliból erkély vezet a szabadba, ahol nyáron gyönyörű zöld panoráma, télen pedig a Szent Vid kápolna látképe fogad.
A privát szféra biztosított, a szomszédos nyaralók távol esnek. Első látásra bele lehet szeretni ebbe a különleges hangulatú, Velem rejtett szegletében fekvő kőházba, amely azonnal birtokba vehető.
A Kőszegi-hegység lábánál, idilli természeti környezetben Velem egész évben turisztikai célpont, természeti és kulturális központ, klimatikus gyógyhely, az Írott-kő Natúrpark része. A hagyományos Velemi Gesztenyeünnep ezreket vonz az ősz folyamán.
Hitelre van szüksége?
Az Otthon Centrum az ország egyik legnagyobb és legmegbízhatóbb hitelközvetítőjeként, teljes körű és díjmentes hitel ügyintézéssel, biztosításkötéssel áll rendelkezésére! Kérje személyre szabott ajánlatunkat Kollégáinktól!
Válassza ki az Önnek legmegfelelőbbet!
Egyedi megjelenése abban rejlik, hogy kizárólag helyi kőből készítették. A völgy oldalában megbúvó 2230 nm-es telket árnyat adó fák (szelídgesztenye, dió) teszik romantikus hangulatúvá.
Az alagsorban garázs és egy egykori borospince kap helyet. A lakótérhez kőlépcső vezet fel. A 70-es években kibővített épület 99 nm alapterülettel várja új tulajdonosát. A fűtésről gáz központi fűtés - radiátoros hőleadással- gondoskodik. A vidéki hangulatot pedig egy ülőpados cserépkályha szolgálja. Tágas közlekedőből nyílnak a helyiségek: 3 szoba, konyha, kamra és fürdő-WC. A nappaliból erkély vezet a szabadba, ahol nyáron gyönyörű zöld panoráma, télen pedig a Szent Vid kápolna látképe fogad.
A privát szféra biztosított, a szomszédos nyaralók távol esnek. Első látásra bele lehet szeretni ebbe a különleges hangulatú, Velem rejtett szegletében fekvő kőházba, amely azonnal birtokba vehető.
A Kőszegi-hegység lábánál, idilli természeti környezetben Velem egész évben turisztikai célpont, természeti és kulturális központ, klimatikus gyógyhely, az Írott-kő Natúrpark része. A hagyományos Velemi Gesztenyeünnep ezreket vonz az ősz folyamán.
Hitelre van szüksége?
Az Otthon Centrum az ország egyik legnagyobb és legmegbízhatóbb hitelközvetítőjeként, teljes körű és díjmentes hitel ügyintézéssel, biztosításkötéssel áll rendelkezésére! Kérje személyre szabott ajánlatunkat Kollégáinktól!
Válassza ki az Önnek legmegfelelőbbet!
Registration Number
H480087
Property Details
Sales
for sale
Legal Status
used
Character
house
Construction Method
brick
Net Size
98.9 m²
Gross Size
140 m²
Plot Size
2,300 m²
Heating
Gas circulator
Ceiling Height
260 cm
Number of Levels Within the Property
1
Orientation
North-West
View
Green view
Condition
Average
Condition of Facade
Average
Basement
Independent
Neighborhood
green
Year of Construction
1940
Number of Bathrooms
1
Garage
Included in the price
Garage Spaces
1
Water
Available
Gas
Available
Electricity
Available
Sewer
Available
Storage
Independent
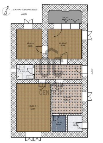
Rooms
entryway
12 m²
room
12.6 m²
room
17.53 m²
room
26.33 m²
kitchen
14.92 m²
pantry
3.7 m²
bathroom-toilet
3.93 m²
storage
4.19 m²
terrace
7.56 m²

Csejtey Krisztina
Credit Expert