230 000 000 Ft
593 000 €
- 270m²
- 8 szoba
Egy otthon, ami minden részletében rólad szól.
Találd meg OTTHONOD!
Egy hely, ahol minden részlet rólad szól.
Ez az ingatlan nemcsak szép, hanem átgondolt, praktikus, és minden részletében otthonos.
Egy panorámás ház, amit szeretettel építettek, igényesen karbantartottak, és ahol a természet közelsége találkozik a kényelemmel.
Ha eleged van a város zajából, de nem akarsz lemondani a kényelmes mindennapokról, akkor ez a ház neked való!
________________________________________
Főbb adatok:
•Helyszín: Solymár, Pest vármegye
•Telek: 562 m²
•Bruttó alapterület: 316,93 m² + kb. 30 m² padlás
•Zöldfelület: 325 m² (kb. 61%)
•Építés éve: 2001
•Szerkezet: 38-as Porotherm tégla, vasbeton födém
•Tető: prémium minőségű cserép
•Fűtés: gáz cirkó + hűtő-fűtő klíma mindkét szinten
•Szintek száma: 3
•Garázs: kétállásos (40 m²), közvetlen bejárattal a házba
________________________________________
Részletes leírás:
Az ingatlan 2001-ben saját részre, kiemelten gondos kivitelezéssel épült. A ház körbe 15 cm grafitos szigetelést, új homlokzatfestést és 2017-ben modern műanyag nyílászárókat kapott alumínium redőnyökkel. A padlás szigetelt és 2018-ban tárolóként kialakítva.
Belső felújítások:
•2018: új laminált padló az emeleten, teljesen megújult fürdő és WC
•2024: új IKEA konyha beépített gépekkel, vízálló laminált parketta a nappaliban
•Új padló a lenti szobában is
A ház folyamatosan karbantartott, újszerű állapotban van, beköltözésre kész.
________________________________________
Elrendezés:
Emelet:
•3 szoba (mindegyikhez saját gardrób és erkély)
•1 félszoba
•Fürdő, külön WC, folyosó
Alsó szint:
•Amerikai konyhás nappali (teraszkapcsolattal)
•Spájz, fürdő (kád + zuhany), külön WC
•1 szoba
Szuterén:
•2 szoba és egy jelenleg tornateremként használt helyiség
•Mosókonyha, fürdő, WC, raktár
•Külön lakás is kialakítható ebből a szintből
Garázs:
Duplaállásos, 40 m²-es, a terasz alatt, közvetlen bejárattal a házba. A garázs előtt térkövezett rész, több autó is kényelmesen elfér, és a zsákutcás kialakítás miatt, csendes környék.
________________________________________
Környezet és panoráma:
A ház zsákutcában található, csak az jár erre, aki itt lakik – nyugodt, családias környék, barátságos szomszédokkal.
Örök panoráma nyílik a Les-hegyre, a környék már teljesen beépült, így ez a kilátás garantáltan megmarad.
A kert kényelmes méretű, ahol van lehetőség pihenni, kertészkedni vagy játszani.
A 40 m²-es terasz 2018-ban új burkolatot kapott, kőhatású lapokkal – innen is panorámás kilátás nyílik, tökéletes hely egy reggeli kávéhoz vagy esti borozáshoz.
________________________________________
Közlekedés és elhelyezkedés:
Az utca végéből indul a kék busz, így a tömegközlekedés kiváló, de autóval is pár perc alatt elérhető a főút vagy az M0.
A környék elragadó, nyugodt, és minden megtalálható a közelben: boltok, óvoda, iskola, túra- és bicikliutak, éttermek.
________________________________________
Ez a ház tényleg otthon – szeretettel épült, folyamatosan karbantartott, és most új tulajdonosát várja.
Ha egy olyan helyet keresel, ahol a modern kényelem és a természet közelsége tökéletes harmóniában van,
LE NE MARADJ! Győződj meg személyesen – keress bátran!
Egy hely, ahol minden részlet rólad szól.
Ez az ingatlan nemcsak szép, hanem átgondolt, praktikus, és minden részletében otthonos.
Egy panorámás ház, amit szeretettel építettek, igényesen karbantartottak, és ahol a természet közelsége találkozik a kényelemmel.
Ha eleged van a város zajából, de nem akarsz lemondani a kényelmes mindennapokról, akkor ez a ház neked való!
________________________________________
Főbb adatok:
•Helyszín: Solymár, Pest vármegye
•Telek: 562 m²
•Bruttó alapterület: 316,93 m² + kb. 30 m² padlás
•Zöldfelület: 325 m² (kb. 61%)
•Építés éve: 2001
•Szerkezet: 38-as Porotherm tégla, vasbeton födém
•Tető: prémium minőségű cserép
•Fűtés: gáz cirkó + hűtő-fűtő klíma mindkét szinten
•Szintek száma: 3
•Garázs: kétállásos (40 m²), közvetlen bejárattal a házba
________________________________________
Részletes leírás:
Az ingatlan 2001-ben saját részre, kiemelten gondos kivitelezéssel épült. A ház körbe 15 cm grafitos szigetelést, új homlokzatfestést és 2017-ben modern műanyag nyílászárókat kapott alumínium redőnyökkel. A padlás szigetelt és 2018-ban tárolóként kialakítva.
Belső felújítások:
•2018: új laminált padló az emeleten, teljesen megújult fürdő és WC
•2024: új IKEA konyha beépített gépekkel, vízálló laminált parketta a nappaliban
•Új padló a lenti szobában is
A ház folyamatosan karbantartott, újszerű állapotban van, beköltözésre kész.
________________________________________
Elrendezés:
Emelet:
•3 szoba (mindegyikhez saját gardrób és erkély)
•1 félszoba
•Fürdő, külön WC, folyosó
Alsó szint:
•Amerikai konyhás nappali (teraszkapcsolattal)
•Spájz, fürdő (kád + zuhany), külön WC
•1 szoba
Szuterén:
•2 szoba és egy jelenleg tornateremként használt helyiség
•Mosókonyha, fürdő, WC, raktár
•Külön lakás is kialakítható ebből a szintből
Garázs:
Duplaállásos, 40 m²-es, a terasz alatt, közvetlen bejárattal a házba. A garázs előtt térkövezett rész, több autó is kényelmesen elfér, és a zsákutcás kialakítás miatt, csendes környék.
________________________________________
Környezet és panoráma:
A ház zsákutcában található, csak az jár erre, aki itt lakik – nyugodt, családias környék, barátságos szomszédokkal.
Örök panoráma nyílik a Les-hegyre, a környék már teljesen beépült, így ez a kilátás garantáltan megmarad.
A kert kényelmes méretű, ahol van lehetőség pihenni, kertészkedni vagy játszani.
A 40 m²-es terasz 2018-ban új burkolatot kapott, kőhatású lapokkal – innen is panorámás kilátás nyílik, tökéletes hely egy reggeli kávéhoz vagy esti borozáshoz.
________________________________________
Közlekedés és elhelyezkedés:
Az utca végéből indul a kék busz, így a tömegközlekedés kiváló, de autóval is pár perc alatt elérhető a főút vagy az M0.
A környék elragadó, nyugodt, és minden megtalálható a közelben: boltok, óvoda, iskola, túra- és bicikliutak, éttermek.
________________________________________
Ez a ház tényleg otthon – szeretettel épült, folyamatosan karbantartott, és most új tulajdonosát várja.
Ha egy olyan helyet keresel, ahol a modern kényelem és a természet közelsége tökéletes harmóniában van,
LE NE MARADJ! Győződj meg személyesen – keress bátran!
Regisztrációs szám
H508633
Az ingatlan adatai
Értékesités
eladó
Jogi státusz
használt
Jelleg
ház
Építési mód
tégla
Méret
270 m²
Bruttó méret
286 m²
Telek méret
562 m²
Terasz / erkély mérete
44,7 m²
Kert méret
325 m²
Fűtés
Gáz cirkó
Belmagasság
270 cm
Lakáson belüli szintszám
3
Tájolás
Dél-kelet
Panoráma
Zöldre néző panoráma
Állapot
Jó
Homlokzat állapota
Jó
Környék
csendes
Építés éve
2001
Fürdőszobák száma
3
Társaház kert
igen
Garázs
Benne van az árban
Garázs férőhely
2
Víz
Van
Gáz
Van
Villany
Van
Csatorna
Van
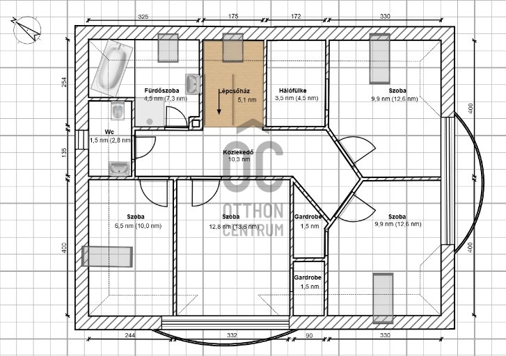
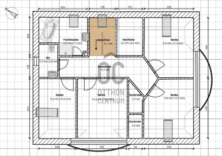
Helyiségek
előszoba
4.2 m²
szoba
10.3 m²
gardrób
2.7 m²
fürdőszoba
8.8 m²
wc-kézmosó
1.4 m²
tároló
1.9 m²
közlekedő
5.5 m²
nappali-konyha
41.9 m²
lépcsőház
5.1 m²
fürdőszoba
4.5 m²
wc-kézmosó
1.5 m²
szoba
6.6 m²
szoba
12.8 m²
gardrób
1.5 m²
szoba
9.9 m²
gardrób
1.5 m²
szoba
14.4 m²
közlekedő
10.3 m²
lépcsőház
5.1 m²
háztartási helyiség
8.8 m²
szauna
3.3 m²
wc-kézmosó
1.6 m²
fürdőszoba-wc
3.7 m²
dolgozószoba
11.3 m²
közlekedő
8.5 m²
tároló
2.2 m²
lépcsőház
2.3 m²
szoba
11.3 m²
konditerem
27 m²
garázs
38.1 m²