295 000 000 Ft
752 000 €
- 136,8m²
- 4 szoba
- 1. emelet





































Budagyöngye vonzáskörzetében, igényesen felújított, energiatakarékos okosotthon!
II. kerület Szépilona városrészen, kétlakásos társasház emeleti zárószintjén kínálunk megvételre egy 136.87 négyzetméter lakóterületű +29.87 nm lodzsa + 72.96 négyzetméter területű alagsori garázs és tárolót. A tulajdoni lapon 162 négyzetméter szerepel.
Az ingatlanhoz saját 504 négyzetméter területű kert tartozik.
A két lakás minden tekintetben egymástól teljesen szeparált, a kert is elválasztott, az ingatlanok külön kapun közelíthetőek meg.
Az épület alapjait a hatvanas években rakták le, ekkor egy földszintes házat alakítottak ki, majd a nyolcvanas években került ráépítésre egy emelet, mely ingatlan a jelenlegi hirdetés tárgyát képezi.
Az ingatlan két részletben kapott teljes felújítást:
1. 2015- ben
- a 40 cm-es külső falra 10 cm-es grafitos EPS szigetelés, a lapostetőre bitumenes lemezfedés került, valamint itt kapott helyet a 6KW-os (tovább bővíthető) napelem.
- az alagsori rész is teljes felújításra került, 2 állásos garázs, tárolók, és fürdő kapott helyet.
2. 2021- ben
- teljeskörűen felújítottot gépészet, padlófűtés + fan-coil hűtés-fűtés Mitsubishi hőszivattyúval, H tarifával, 6kW napelem a tetőn Fronius inverterrel (10KW napelemre méretezve, szaldó engedéllyel, tároló csatlakoztatási lehetőséggel).
- új 3 rétegű nyílászárók kerültek beépítésre, elektromos redőnyökkel, szúnyoghálóval.
- teljesen automatizált Loxone alapú okosotthon vezérlés, - központi porszívó
- minőségi burkolatok,
- kéménymentes kandalló,
- rejtett, LED-es hangulatvilágítás,
- egyedi beépített bútor,
- teljesen felszerelt, gépesített konyha.
A lakás elosztása:
- nappali amerikai konyha és étkező 56,2 nm
- gardrób 3.8 nm
- közlekedő 8.17nm
- 3 szoba 13.59, 13 és 12.85 nm
- 2 fürdő 6.69, 3.63 nm
- előtér 16.32 nm
- 2 lodzsa 21,82 és 8.05 nm
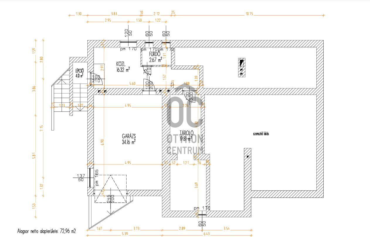
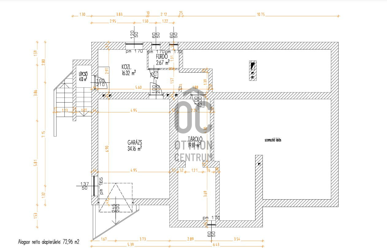
Az alagsor elosztása
- alagsori fürdő 2.67 nm
- 2 alagsori tároló 19.81 és 16.32 nm
- garázs 34.16 nm 2 gépkocsi tárolására
Az ingatlant kamera rendszer és riasztó védi.
Fűtését padlófűtés + fan-coil hűtő-fűtő hőszivattyú rendszer biztosítja, így nyújt egyforma a hőmérsékletet évszaktól függetlenül alacsony fenntartási költség mellett.
Az 504 négyzetméter területű sík kert rendezett, ősfás.
A környék jó infrastruktúrával ellátott. tömegközlekedés, óvoda, iskola a közelben, valamint pár percre található a Budagyöngye bevásárlóközpont.
Ha ez a kellemes hangulatú, praktikus elrendezésű, egyedi otthon felkeltette az érdeklődését, kérem keressen az elérhetőségeimen.
II. kerület Szépilona városrészen, kétlakásos társasház emeleti zárószintjén kínálunk megvételre egy 136.87 négyzetméter lakóterületű +29.87 nm lodzsa + 72.96 négyzetméter területű alagsori garázs és tárolót. A tulajdoni lapon 162 négyzetméter szerepel.
Az ingatlanhoz saját 504 négyzetméter területű kert tartozik.
A két lakás minden tekintetben egymástól teljesen szeparált, a kert is elválasztott, az ingatlanok külön kapun közelíthetőek meg.
Az épület alapjait a hatvanas években rakták le, ekkor egy földszintes házat alakítottak ki, majd a nyolcvanas években került ráépítésre egy emelet, mely ingatlan a jelenlegi hirdetés tárgyát képezi.
Az ingatlan két részletben kapott teljes felújítást:
1. 2015- ben
- a 40 cm-es külső falra 10 cm-es grafitos EPS szigetelés, a lapostetőre bitumenes lemezfedés került, valamint itt kapott helyet a 6KW-os (tovább bővíthető) napelem.
- az alagsori rész is teljes felújításra került, 2 állásos garázs, tárolók, és fürdő kapott helyet.
2. 2021- ben
- teljeskörűen felújítottot gépészet, padlófűtés + fan-coil hűtés-fűtés Mitsubishi hőszivattyúval, H tarifával, 6kW napelem a tetőn Fronius inverterrel (10KW napelemre méretezve, szaldó engedéllyel, tároló csatlakoztatási lehetőséggel).
- új 3 rétegű nyílászárók kerültek beépítésre, elektromos redőnyökkel, szúnyoghálóval.
- teljesen automatizált Loxone alapú okosotthon vezérlés, - központi porszívó
- minőségi burkolatok,
- kéménymentes kandalló,
- rejtett, LED-es hangulatvilágítás,
- egyedi beépített bútor,
- teljesen felszerelt, gépesített konyha.
A lakás elosztása:
- nappali amerikai konyha és étkező 56,2 nm
- gardrób 3.8 nm
- közlekedő 8.17nm
- 3 szoba 13.59, 13 és 12.85 nm
- 2 fürdő 6.69, 3.63 nm
- előtér 16.32 nm
- 2 lodzsa 21,82 és 8.05 nm
Az alagsor elosztása
- alagsori fürdő 2.67 nm
- 2 alagsori tároló 19.81 és 16.32 nm
- garázs 34.16 nm 2 gépkocsi tárolására
Az ingatlant kamera rendszer és riasztó védi.
Fűtését padlófűtés + fan-coil hűtő-fűtő hőszivattyú rendszer biztosítja, így nyújt egyforma a hőmérsékletet évszaktól függetlenül alacsony fenntartási költség mellett.
Az 504 négyzetméter területű sík kert rendezett, ősfás.
A környék jó infrastruktúrával ellátott. tömegközlekedés, óvoda, iskola a közelben, valamint pár percre található a Budagyöngye bevásárlóközpont.
Ha ez a kellemes hangulatú, praktikus elrendezésű, egyedi otthon felkeltette az érdeklődését, kérem keressen az elérhetőségeimen.
Regisztrációs szám
DLK065601
Az ingatlan adatai
Értékesités
eladó
Jogi státusz
használt
Jelleg
lakás
Építési mód
tégla
Méret
136,8 m²
Bruttó méret
136,8 m²
Fűtés
egyéb
Belmagasság
270 cm
Tájolás
Dél
Lépcsőház típusa
zárt lépcsőház
Állapot
Kiváló
Homlokzat állapota
Kiváló
Építés éve
1980
Fürdőszobák száma
2
Fekvés
udvari
Kertkapcsolatos
igen
Helyiségek
loggia
21.8 m²
nappali-konyha
56.2 m²
szoba
13.05 m²
szoba
13.59 m²
szoba
12.85 m²
gardrób
3.8 m²
loggia
8.05 m²
közlekedő
8.17 m²
fürdőszoba-wc
6.69 m²
fürdőszoba-wc
3.63 m²