Elérhető Otthon Start hitellel
Eladó családi ház,
H506386
Leányfalu, Kilátók útja
128 000 000 Ft
327 000 €
- 127m²
- 4 szoba
































Eladó ez a bájos és modern családi ház Leányfalun!
Amennyiben a képek, az ingatlan adatai felkeltették érdeklődését, akkor várom szeretettel egy megtekintésre.
Még néhány fontos információ előtte:
- A fűtést gázcirkó biztosítja, amit 2016-ban helyeztek el. Hatékony és gazdaságos megoldást kínál a hidegebb hónapokban is.
- A ház téglaépítésű és 10 cm szigetelést kapott melynek köszönhetően az otthon melege és hangulata minden évszakban megmarad.
- A belső felújítás 2020-ban kezdődött és a mai napig szépítik és fejlesztik a házat jelenlegi tulajdonosai
Mit is jelent ez:
- villany, fűtés, víz, csatorna, azaz minden fel lett újítva
- az áram esetében: van éjszakai áram, 3*16 Amper, elektromos autó töltési lehetőség teljeskörűen kialakítva
- az összes burkolat új színt és hangulatot adott a háznak.
- kialakításra került az elektromos kapu
- az okosotthon rendszer ami kiterjed mindenre. Fűtés, redőnyök, kapu, kamera, fűnyíró, stb.
- a megújult gyönyörű kert öntözőrendszert kapott
Adottságok, lokáció:
- A ház közel 500 nm-es kertje remek helyszínt biztosít a kertészkedésre vagy akár egy kellemes nyári esti baráti összejövetel helyszinéül.
- Fontos, hogy a fák, a kerítés pedig megadja azt az intimitást amit elvárunk egy háztól.
- A garászba 1 autó a fedett beállóra 2 autó is kényelmesen elfér
- A ház melletti kb 40 nm-es melléképület akár külön is használható tárolásra vagy egy különálló lakrészre.
- És ha lesétálunk a patakpartjához a saját kertünkből akkor egy 4 nm-es borospincét is tudunk használni.
Rengeteget tudnék még mondani róla, de javaslom jöjjön és nézze meg velem együtt!
Még néhány fontos információ előtte:
- A fűtést gázcirkó biztosítja, amit 2016-ban helyeztek el. Hatékony és gazdaságos megoldást kínál a hidegebb hónapokban is.
- A ház téglaépítésű és 10 cm szigetelést kapott melynek köszönhetően az otthon melege és hangulata minden évszakban megmarad.
- A belső felújítás 2020-ban kezdődött és a mai napig szépítik és fejlesztik a házat jelenlegi tulajdonosai
Mit is jelent ez:
- villany, fűtés, víz, csatorna, azaz minden fel lett újítva
- az áram esetében: van éjszakai áram, 3*16 Amper, elektromos autó töltési lehetőség teljeskörűen kialakítva
- az összes burkolat új színt és hangulatot adott a háznak.
- kialakításra került az elektromos kapu
- az okosotthon rendszer ami kiterjed mindenre. Fűtés, redőnyök, kapu, kamera, fűnyíró, stb.
- a megújult gyönyörű kert öntözőrendszert kapott
Adottságok, lokáció:
- A ház közel 500 nm-es kertje remek helyszínt biztosít a kertészkedésre vagy akár egy kellemes nyári esti baráti összejövetel helyszinéül.
- Fontos, hogy a fák, a kerítés pedig megadja azt az intimitást amit elvárunk egy háztól.
- A garászba 1 autó a fedett beállóra 2 autó is kényelmesen elfér
- A ház melletti kb 40 nm-es melléképület akár külön is használható tárolásra vagy egy különálló lakrészre.
- És ha lesétálunk a patakpartjához a saját kertünkből akkor egy 4 nm-es borospincét is tudunk használni.
Rengeteget tudnék még mondani róla, de javaslom jöjjön és nézze meg velem együtt!
Regisztrációs szám
H506386
Az ingatlan adatai
Értékesités
eladó
Jogi státusz
használt
Jelleg
ház
Építési mód
tégla
Méret
127 m²
Bruttó méret
127 m²
Telek méret
568 m²
Terasz / erkély mérete
7,6 m²
Fűtés
Gáz cirkó
Belmagasság
240 cm
Lakáson belüli szintszám
3
Tájolás
Dél-kelet
Állapot
Kiváló
Homlokzat állapota
Kiváló
Építés éve
1986
Fürdőszobák száma
1
Garázs
Benne van az árban
Garázs férőhely
1
Fedett beállók száma
2
Víz
Van
Gáz
Van
Villany
Van
Csatorna
Van
Tároló
Önálló
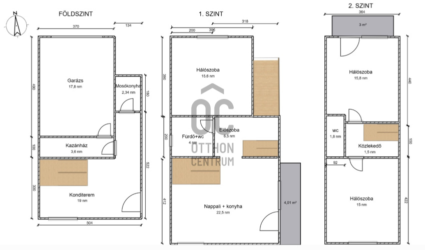
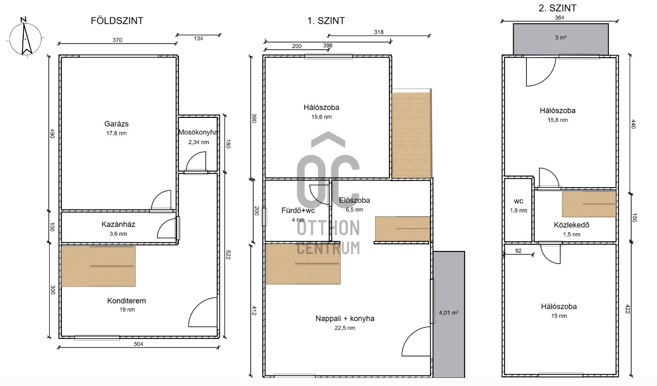
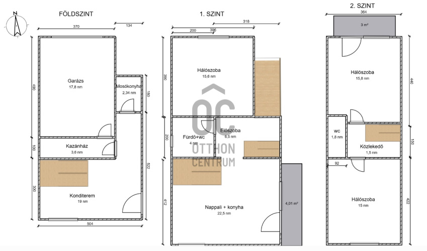
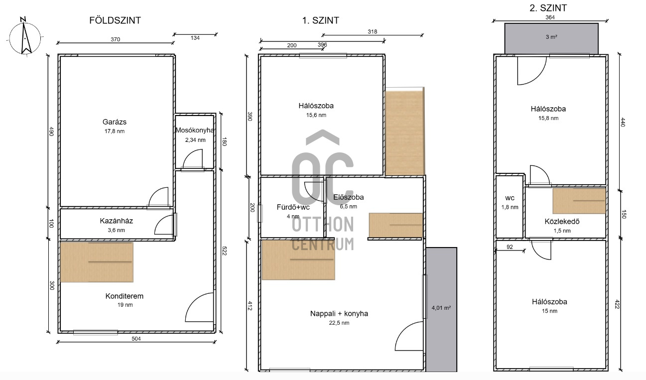
Helyiségek
nappali-konyha
22.5 m²
közlekedő
6.5 m²
szoba
15.6 m²
fürdőszoba-wc
4 m²
terasz
4 m²
hálószoba
15.8 m²
hálószoba
15 m²
közlekedő
1.5 m²
wc
1.8 m²
erkély
3.6 m²
garázs
17.8 m²
kazánház
3.6 m²
mosókonyha
2.34 m²
egyéb helyiség
19 m²
borospince
3 m²
tároló
40 m²
borospince
4 m²