289,000,000 Ft
738,000 €
- 460m²
ÜZLETI LEHETŐSÉG A VILLAMOSMEGÁLLÓBAN!
EGYEDÜLÁLLÓ LEHETŐSÉG BEFEKTETŐK SZÁMÁRA!
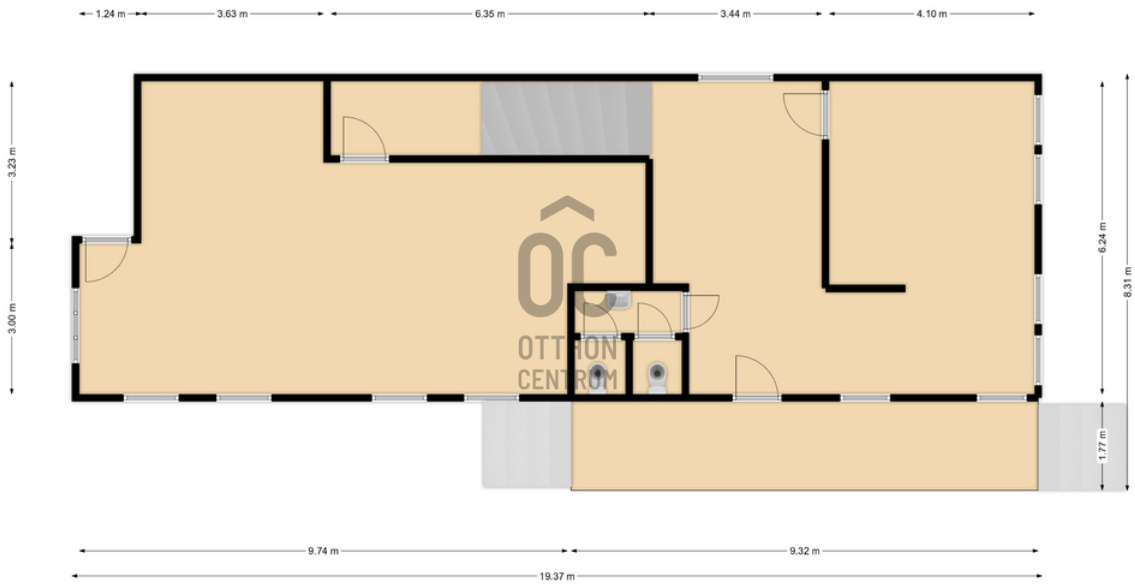
Budapest 15. kerületében, Rákospalotán kínálunk eladásra egy 400 nm alapterületű, üzleti célú ingatlant, amely ideális választás lehet IRODÁNAK, BEMUTATÓTEREMNEK vagy ÜZLETHELYISÉGNEK.
A 3 SZINT ÉS SZUTERÉN kimondottan alkalmas és jogilag is megfelelő 8 LAKÁSOS TÁRSASHÁZ KIALAKÍTÁSÁRA.
Az ingatlan egy 1500 NM-ES TELKEN helyezkedik el, amely bővítési lehetőségeket kínál, így a jövőbeni fejlesztési tervek megvalósítására is alkalmas.
Az ingatlan jelenlegi ÁLLAPOTA JÓ.
Fűtése gáz cirkó rendszerrel megoldott, amely biztosítja a kényelmes és gazdaságos fűtést a hidegebb hónapokban is.
Az épülethez tartozik egy 16 nm-es terasz és egy 7 nm-es erkély, amelyek lehetőséget adnak a szabadban való pihenésre vagy a vendégek fogadására.
A panoráma, amely az ingatlanból nyílik, kellemes és inspiráló környezetet teremt a munkavégzéshez, ugyanis egyik ablakból sem látni be az ingatlanba, TELJESEN PRIVÁT ÉRZÉS.
A környék ELLÁTOTTSÁGA KIVÁLÓ, a Pólus Centertől néhány percre van, így a mindennapi élet kényelmesen megoldható.
Az ingatlan KÖZLEKEDÉSI CSOMÓPONT KÖZELÉBEN helyezkedik el, ami kitűnő közlekedést biztosít a város különböző részeire az itt dolgozóknak, vagy ha átalakítjuk társasházzá, akkor a lakások értékesítése esetén is komoly érv.
Rákospalota CSENDES, BIZTONSÁGOS környezete ideális választás lehet azok számára, akik egy NYUGODT, de mégis jól elérhető helyszínen szeretnék elhelyezni üzleti tevékenységüket.
A környék folyamatosan fejlődik, ami további lehetőségeket kínál a befektetők számára, hiszen a jövőbeni értéknövekedés szempontjából kedvező adottságokkal rendelkezik.
Az ingatlan befektetési lehetőségei széles spektrumot ölelnek fel, így akár új funkciók kialakítására is van lehetőség.
Az ingatlan adottságai és lokációja miatt ideális választás lehet a jövőbeli üzleti tervei megvalósításához.
Amennyiben további kérdései lennének, vagy szeretné személyesen is megtekinteni az ingatlant, hívjon bizalommal!
Budapest 15. kerületében, Rákospalotán kínálunk eladásra egy 400 nm alapterületű, üzleti célú ingatlant, amely ideális választás lehet IRODÁNAK, BEMUTATÓTEREMNEK vagy ÜZLETHELYISÉGNEK.
A 3 SZINT ÉS SZUTERÉN kimondottan alkalmas és jogilag is megfelelő 8 LAKÁSOS TÁRSASHÁZ KIALAKÍTÁSÁRA.
Az ingatlan egy 1500 NM-ES TELKEN helyezkedik el, amely bővítési lehetőségeket kínál, így a jövőbeni fejlesztési tervek megvalósítására is alkalmas.
Az ingatlan jelenlegi ÁLLAPOTA JÓ.
Fűtése gáz cirkó rendszerrel megoldott, amely biztosítja a kényelmes és gazdaságos fűtést a hidegebb hónapokban is.
Az épülethez tartozik egy 16 nm-es terasz és egy 7 nm-es erkély, amelyek lehetőséget adnak a szabadban való pihenésre vagy a vendégek fogadására.
A panoráma, amely az ingatlanból nyílik, kellemes és inspiráló környezetet teremt a munkavégzéshez, ugyanis egyik ablakból sem látni be az ingatlanba, TELJESEN PRIVÁT ÉRZÉS.
A környék ELLÁTOTTSÁGA KIVÁLÓ, a Pólus Centertől néhány percre van, így a mindennapi élet kényelmesen megoldható.
Az ingatlan KÖZLEKEDÉSI CSOMÓPONT KÖZELÉBEN helyezkedik el, ami kitűnő közlekedést biztosít a város különböző részeire az itt dolgozóknak, vagy ha átalakítjuk társasházzá, akkor a lakások értékesítése esetén is komoly érv.
Rákospalota CSENDES, BIZTONSÁGOS környezete ideális választás lehet azok számára, akik egy NYUGODT, de mégis jól elérhető helyszínen szeretnék elhelyezni üzleti tevékenységüket.
A környék folyamatosan fejlődik, ami további lehetőségeket kínál a befektetők számára, hiszen a jövőbeni értéknövekedés szempontjából kedvező adottságokkal rendelkezik.
Az ingatlan befektetési lehetőségei széles spektrumot ölelnek fel, így akár új funkciók kialakítására is van lehetőség.
Az ingatlan adottságai és lokációja miatt ideális választás lehet a jövőbeli üzleti tervei megvalósításához.
Amennyiben további kérdései lennének, vagy szeretné személyesen is megtekinteni az ingatlant, hívjon bizalommal!
Registration Number
UZ019499
Property Details
Sales
for sale
Legal Status
used
Character
commercial
Type of Business Property
entire building
Construction Method
brick
Net Size
460 m²
Plot Size
1,500 m²
Size of Terrace / Balcony
23 m²
Above-Ground Net Size
468 m²
Garden Size
1,500 m²
Heating
Gas circulator
Ceiling Height
263 cm
Number of Levels Within the Property
4
View
city view
Condition
Good
Condition of Facade
Excellent
Condominium Garden
yes
Water
Available
Gas
Available
Electricity
Available
Sewer
Available
Possible Functions
retail, logistics center, guesthouse, hostel, educational center
Visibility
Easily visible from busy main road
Accessibility
Entrance from busy main road
Utilization
vacant
Czene Enikő Éva
Credit Expert