200,000,000 Ft
559,000 €
- 185m²
- 4 Rooms
Prémium minőségű családi ház Fót szívében
IDÉN NYÁROM MÁR BEKÖLTÖZHET álmai otthonába Fóton! Mi megálmodtuk, Ön akár már idén élvezheti az igazi luxust!
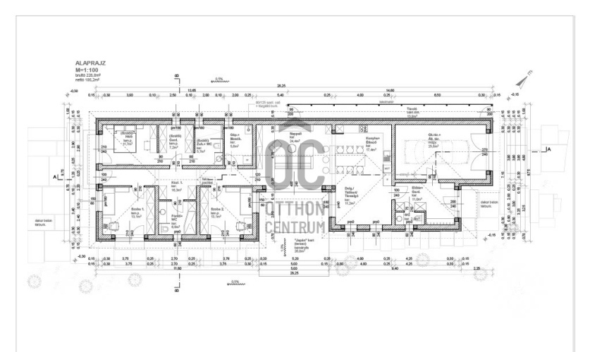
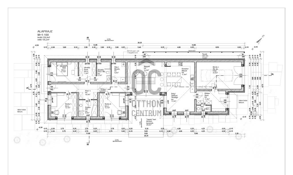
Kiváló lokáció! FÓT KÖZPONTJÁBAN, mégis nyugodt, csendes, kertvárosias utcában, egy nagy méretű, 811 m2-es telken épül ez a minden igényt kielégítő családi ház!
A nettó 185 m2-es házban minden megtalálható, amire egy család vágyhat:
- HATALMAS KÖZÖS TÉR: 53 m2-en amerikai konyhás nappali, étkező, dolgozó-pihenő sarok.
- a nappalihoz szervesen kapcsolódó JAPÁN KERT igazán egyedi hangulatot ad az ingatlannak
- 12 m2-es szülő háló, saját gardrób és fürdőszobával, TERASZ kapcsolattal
- 2 NAGY MÉRETŰ hálószoba a gyerekeknek, vagy vendégszobának
- egy KÁDAS, egy ZUHANYZÓS fürdőszoba + egy vendégmosdó
- külön háztartási helyiség
- fűtött, burkolt garázs elektromos gépkocsi TÖLTÉSI LEHETŐSÉGGEL
- nagy terasz
- igény esetén 6x4 méteres fedett, fűtött MEDENCE a kertben (ára 20 millió forint)
MAGAS MŰSZAKI TARTALOM:
- tégla falazat 15 cm-es hőszigeteléssel
- minőségi külső-belső nyílászárók
- minőségi burkolatok, szaniterek
- padlófűtés az összes helyiségben, gazdaságon minőségi hűtő-fűtő klímák, 6 KW NAPELEMRENDSZER
- elektromos - távirányítós redőnyök, szúnyogháló
- elektromos autó töltési lehetőség a garázsban
- térkövezés, kerítés, elektromos kapu
A részletes műszaki tartalmat kérje kollégánktól!
Egyedi igények készültségi fok függvényében megvalósíthatók!
Refenrenciával rendelkező, megbízható kivitelező! Referenciamunkák megtekinthetők!
Rugalmas fizetési ütemezés!
Hitelt, állami támogatást igénybevevő ügyfeleket is szívesen fogadunk, ingyenes bankfüggetlen tanácsadással!
FIGYELEM! A projekt folyamatosan készült. A hirdetésben szereplő képeknél előrehaladottabb készültséggel fog találkozni!
Ne maradjon le erről a kiváló lehetőségről! Jöjjön és nézze meg még ma!
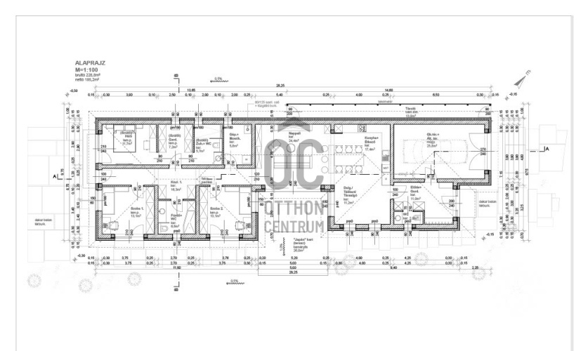
Kiváló lokáció! FÓT KÖZPONTJÁBAN, mégis nyugodt, csendes, kertvárosias utcában, egy nagy méretű, 811 m2-es telken épül ez a minden igényt kielégítő családi ház!
A nettó 185 m2-es házban minden megtalálható, amire egy család vágyhat:
- HATALMAS KÖZÖS TÉR: 53 m2-en amerikai konyhás nappali, étkező, dolgozó-pihenő sarok.
- a nappalihoz szervesen kapcsolódó JAPÁN KERT igazán egyedi hangulatot ad az ingatlannak
- 12 m2-es szülő háló, saját gardrób és fürdőszobával, TERASZ kapcsolattal
- 2 NAGY MÉRETŰ hálószoba a gyerekeknek, vagy vendégszobának
- egy KÁDAS, egy ZUHANYZÓS fürdőszoba + egy vendégmosdó
- külön háztartási helyiség
- fűtött, burkolt garázs elektromos gépkocsi TÖLTÉSI LEHETŐSÉGGEL
- nagy terasz
- igény esetén 6x4 méteres fedett, fűtött MEDENCE a kertben (ára 20 millió forint)
MAGAS MŰSZAKI TARTALOM:
- tégla falazat 15 cm-es hőszigeteléssel
- minőségi külső-belső nyílászárók
- minőségi burkolatok, szaniterek
- padlófűtés az összes helyiségben, gazdaságon minőségi hűtő-fűtő klímák, 6 KW NAPELEMRENDSZER
- elektromos - távirányítós redőnyök, szúnyogháló
- elektromos autó töltési lehetőség a garázsban
- térkövezés, kerítés, elektromos kapu
A részletes műszaki tartalmat kérje kollégánktól!
Egyedi igények készültségi fok függvényében megvalósíthatók!
Refenrenciával rendelkező, megbízható kivitelező! Referenciamunkák megtekinthetők!
Rugalmas fizetési ütemezés!
Hitelt, állami támogatást igénybevevő ügyfeleket is szívesen fogadunk, ingyenes bankfüggetlen tanácsadással!
FIGYELEM! A projekt folyamatosan készült. A hirdetésben szereplő képeknél előrehaladottabb készültséggel fog találkozni!
Ne maradjon le erről a kiváló lehetőségről! Jöjjön és nézze meg még ma!
Registration Number
U0049401
Property Details
Sales
for sale
Legal Status
new
Character
house
Construction Method
brick
Net Size
185 m²
Gross Size
193 m²
Plot Size
811 m²
Size of Terrace / Balcony
8 m²
Heating
Gas circulator
Ceiling Height
270 cm
Orientation
South-West
Condition
Excellent
Condition of Facade
Excellent
Neighborhood
quiet, good transport, central
Year of Construction
2026
Number of Bathrooms
1
Garage
Included in the price
Garage Spaces
1
Water
Available
Gas
Available
Electricity
Available
Sewer
Available
Rooms
open-plan kitchen and living room
24.4 m²
bedroom
11.7 m²
bedroom
13.1 m²
bedroom
13.1 m²
bathroom-toilet
5.7 m²
bathroom-toilet
6.6 m²
toilet
2 m²
utility room
5.8 m²
terrace
8 m²
winter garden
26 m²
garage
25.8 m²
wardrobe
7.2 m²
open-plan kitchen and dining room
17.4 m²
study
11 m²
Czene Enikő Éva
Credit Expert