169,900,000 Ft
434,000 €
- 83m²
- 4 Rooms
- ground floor
Eladó egy kivételes adottságú, teljes körűen felújított lakás Budapest XIII. kerületének egyik legkedveltebb utcájában Újlipótváros szívében, a Hollán Ernő utcában.
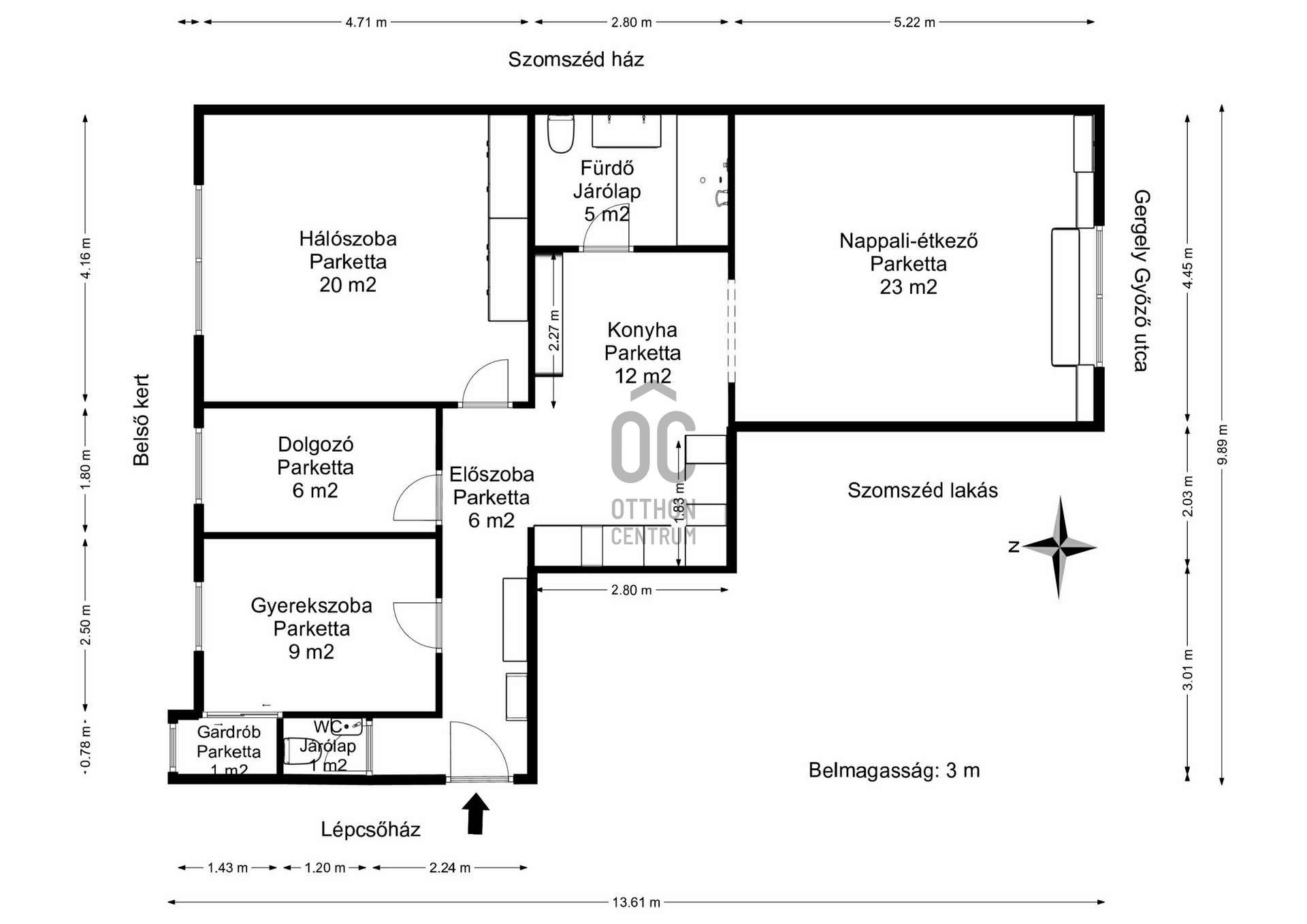
A 83 m²-es ingatlan egy rendezett társasház magasföldszintjén helyezkedik el, nyugodt, zöld környezetben, mégis pár perc sétára a környék pezsgő városi életétől.
A lakás praktikus és jól átgondolt elrendezésű: tágas nappali étkezővel, konyha, két külön nyíló hálószoba, egy külön dolgozószoba, valamint egy kádas fürdőszoba WC-vel és egy külön vendég WC biztosítja a kényelmes mindennapokat akár család, akár otthoni munkavégzés esetén is.
A nappali ablakai egy csendes, parkosított sétálóutcára néznek, míg a hálószobák a ház belső, zöld kertjére tekintenek – ennek köszönhetően a lakás rendkívül nyugodt és zajmentes.
Az ingatlan teljes körű felújításon esett át:
-új elektromos hálózat és vízvezetékek,
-új belső ajtók,
-hőszigetelt üvegezésű, felújított külső nyílászárók,
-minőségi burkolatok minden helyiségben,
-2 db hűtő-fűtő klíma
-új radiátorok (a lakásban távfűtés biztosítja a meleget)
A modern, gépesített konyha és a nagy méretű beépített szekrények (különösen a hálószobában, valamint a gyerekszobából nyíló gardrób) kényelmes, jól szervezhető életteret biztosítanak.
A vételár tartalmazza a beépített és gépesített (indukciós főzőlap és sütő, elszívó, mosogatógép és hűtő-fagyasztó) konyhabútort, a beépített gardróbszekrényt, a nappaliban beépített könyvespolcokat olvasópaddal. A többi berendezési tárgy és dekoráció megbeszélés tárgyát képezik. Ezáltal a lakás akár azonnal költözhető.
A környék kiváló infrastruktúrával rendelkezik: közelben üzletek, kávézók, éttermek, iskolák, óvodák, valamint kiváló tömegközlekedési kapcsolatok találhatók. A Duna-part és a Szent István park pár perc sétával elérhető.
Ár: 169,9 millió Ft
Ez az ingatlan ideális választás családoknak, pároknak, illetve azoknak, akik egy csendes, mégis központi elhelyezkedésű, prémium minőségű otthont keresnek Budapest egyik legkedveltebb városrészében.
További információkért és megtekintési szándékkal kapcsolatban várom hívását!
A 83 m²-es ingatlan egy rendezett társasház magasföldszintjén helyezkedik el, nyugodt, zöld környezetben, mégis pár perc sétára a környék pezsgő városi életétől.
A lakás praktikus és jól átgondolt elrendezésű: tágas nappali étkezővel, konyha, két külön nyíló hálószoba, egy külön dolgozószoba, valamint egy kádas fürdőszoba WC-vel és egy külön vendég WC biztosítja a kényelmes mindennapokat akár család, akár otthoni munkavégzés esetén is.
A nappali ablakai egy csendes, parkosított sétálóutcára néznek, míg a hálószobák a ház belső, zöld kertjére tekintenek – ennek köszönhetően a lakás rendkívül nyugodt és zajmentes.
Az ingatlan teljes körű felújításon esett át:
-új elektromos hálózat és vízvezetékek,
-új belső ajtók,
-hőszigetelt üvegezésű, felújított külső nyílászárók,
-minőségi burkolatok minden helyiségben,
-2 db hűtő-fűtő klíma
-új radiátorok (a lakásban távfűtés biztosítja a meleget)
A modern, gépesített konyha és a nagy méretű beépített szekrények (különösen a hálószobában, valamint a gyerekszobából nyíló gardrób) kényelmes, jól szervezhető életteret biztosítanak.
A vételár tartalmazza a beépített és gépesített (indukciós főzőlap és sütő, elszívó, mosogatógép és hűtő-fagyasztó) konyhabútort, a beépített gardróbszekrényt, a nappaliban beépített könyvespolcokat olvasópaddal. A többi berendezési tárgy és dekoráció megbeszélés tárgyát képezik. Ezáltal a lakás akár azonnal költözhető.
A környék kiváló infrastruktúrával rendelkezik: közelben üzletek, kávézók, éttermek, iskolák, óvodák, valamint kiváló tömegközlekedési kapcsolatok találhatók. A Duna-part és a Szent István park pár perc sétával elérhető.
Ár: 169,9 millió Ft
Ez az ingatlan ideális választás családoknak, pároknak, illetve azoknak, akik egy csendes, mégis központi elhelyezkedésű, prémium minőségű otthont keresnek Budapest egyik legkedveltebb városrészében.
További információkért és megtekintési szándékkal kapcsolatban várom hívását!
Registration Number
H514076
Property Details
Sales
for sale
Legal Status
used
Character
apartment
Construction Method
brick
Net Size
83 m²
Gross Size
83 m²
Heating
individual district heating
Ceiling Height
300 cm
Orientation
South
Staircase Type
enclosed staircase
Condition
Excellent
Condition of Facade
Good
Condition of Staircase
Good
Basement
Shared
Neighborhood
good transport, central
Year of Construction
1930
Number of Bathrooms
1
Position
street-facing
Common Costs
43
Water
Available
Electricity
Available
Sewer
Available
Elevator
available
Storage
Shared
Rooms
entryway
6 m²
kitchen
12 m²
open-plan living and dining room
23 m²
bedroom
20 m²
study
6 m²
bedroom
9 m²
wardrobe
1 m²
bathroom-toilet
5 m²
toilet-washbasin
1 m²
Czene Enikő Éva
Credit Expert