280,000,000 Ft
783,000 €
- 382m²
- 1st floor
Teljes emeleti iroda 382 m²-en Budán, a Margit híd közelében – bérbe adott, kiváló befektetési lehetőség!
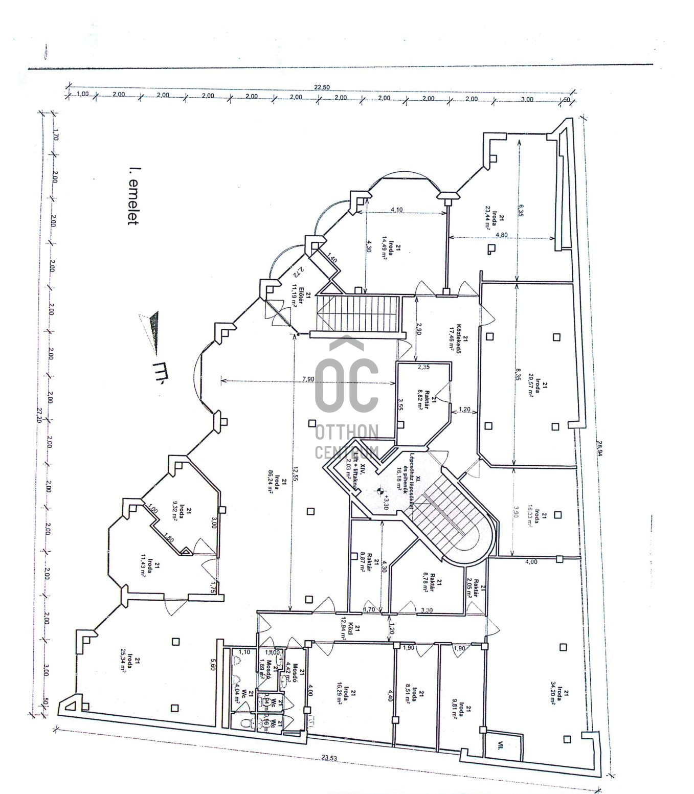
Eladásra kínálunk egy önálló, első emeleti, közvetlen utcai bejárattal rendelkező ingatlant, amely jelenleg is stabilan bérbe adott, így azonnali bevételt biztosít befektetője számára.
Az ingatlan központi eleme egy közel 80 m²-es, többfunkciós tér, amely ideális tanfolyamok, továbbképzések és előadások lebonyolítására. Ezt a központi helyiséget körben irodák és kiszolgáló egységek veszik körül, amelyek részben belső udvarra, részben utcafrontra néznek. A kiszolgáló funkciók között megtalálható a konyha, mosdók, tároló és szerverszoba is.
Az épület korszerű, pillérvázas szerkezete lehetővé teszi a belső terek rugalmas, igény szerinti átalakítását, amely különösen értékes szempont hosszú távú hasznosítás vagy újrapozicionálás esetén. A nagy ablakfelületek bőséges természetes fényt biztosítanak, míg a háromrétegű üvegezés kiváló hő- és hangszigetelést garantál. A fűtésről kondenzációs gázkazán gondoskodik, az utcafronti helyiségek klimatizáltak. Az ingatlan önálló mérőórákkal felszerelt, továbbá kaputelefon és központi riasztórendszer is kiépítésre került. A helyiségekben több munkaállomás kiszolgálására alkalmas informatikai hálózat áll rendelkezésre.
A lokáció kiemelkedő: kiváló tömegközlekedési kapcsolatokkal rendelkezik, több buszjárat (86, 160, 260) és a 4-es, 6-os villamos néhány lépésre elérhető. Két villamosmegállónyira található a Mammut Bevásárlóközpont és a Millenáris Park, míg a Margit híd és a Duna-part kényelmes sétatávolságban vannak. Parkolás a környező utcákban biztosított.
Az ingatlan sokoldalúan hasznosítható: ideális cégközpontnak, ügyfélközpontnak, irodának, oktatási központnak vagy bemutatóteremnek, akár jelentős ügyfélforgalom mellett is. A jelenlegi bérlő hosszú távon is maradna, ami tovább növeli a befektetés biztonságát. A vételár nettó, az ÁFA külön fizetendő.
Amennyiben értékálló, hosszú távon is jól hasznosítható ingatlanba kíván befektetni, vagy vállalkozása számára keres új, reprezentatív helyszínt, ez a lehetőség kiemelt figyelmet érdemel. További információért várjuk megtisztelő megkeresését! Az energetikai tanúsítvány készítése folyamatban van, amint rendelkezésre áll, úgy azzal a hirdetés frissítésre kerül.
Az ingatlan központi eleme egy közel 80 m²-es, többfunkciós tér, amely ideális tanfolyamok, továbbképzések és előadások lebonyolítására. Ezt a központi helyiséget körben irodák és kiszolgáló egységek veszik körül, amelyek részben belső udvarra, részben utcafrontra néznek. A kiszolgáló funkciók között megtalálható a konyha, mosdók, tároló és szerverszoba is.
Az épület korszerű, pillérvázas szerkezete lehetővé teszi a belső terek rugalmas, igény szerinti átalakítását, amely különösen értékes szempont hosszú távú hasznosítás vagy újrapozicionálás esetén. A nagy ablakfelületek bőséges természetes fényt biztosítanak, míg a háromrétegű üvegezés kiváló hő- és hangszigetelést garantál. A fűtésről kondenzációs gázkazán gondoskodik, az utcafronti helyiségek klimatizáltak. Az ingatlan önálló mérőórákkal felszerelt, továbbá kaputelefon és központi riasztórendszer is kiépítésre került. A helyiségekben több munkaállomás kiszolgálására alkalmas informatikai hálózat áll rendelkezésre.
A lokáció kiemelkedő: kiváló tömegközlekedési kapcsolatokkal rendelkezik, több buszjárat (86, 160, 260) és a 4-es, 6-os villamos néhány lépésre elérhető. Két villamosmegállónyira található a Mammut Bevásárlóközpont és a Millenáris Park, míg a Margit híd és a Duna-part kényelmes sétatávolságban vannak. Parkolás a környező utcákban biztosított.
Az ingatlan sokoldalúan hasznosítható: ideális cégközpontnak, ügyfélközpontnak, irodának, oktatási központnak vagy bemutatóteremnek, akár jelentős ügyfélforgalom mellett is. A jelenlegi bérlő hosszú távon is maradna, ami tovább növeli a befektetés biztonságát. A vételár nettó, az ÁFA külön fizetendő.
Amennyiben értékálló, hosszú távon is jól hasznosítható ingatlanba kíván befektetni, vagy vállalkozása számára keres új, reprezentatív helyszínt, ez a lehetőség kiemelt figyelmet érdemel. További információért várjuk megtisztelő megkeresését! Az energetikai tanúsítvány készítése folyamatban van, amint rendelkezésre áll, úgy azzal a hirdetés frissítésre kerül.
Registration Number
UZ015983
Property Details
Sales
for sale
Legal Status
used
Character
commercial
Type of Business Property
part of building
Construction Method
brick
Net Size
382 m²
Above-Ground Net Size
382 m²
Ceiling Height
300 cm
View
city view
Condition
Good
Condition of Facade
Good
Condition of Staircase
Good
Year of Construction
1990
Common Costs
52096
Water
Available
Gas
Available
Electricity
Available
Sewer
Available
Elevator
available
Distance to Waterfront
200 meters
Possible Functions
office, showroom, healthcare center, educational center
Visibility
Easily visible on a high foot traffic street
Accessibility
Entrance from high foot traffic street
Utilization
rented out
Monthly Rental Fee
700000
Ruczek János
Credit Expert