159,900,000 Ft
415,000 €
- 106m²
- 3 Rooms
- 1st floor
In the heart of Újbuda, a spacious apartment with 3 rooms and a hall, featuring good attributes, is for sale!
In the vicinity of Gárdonyi Square, a 106 m², well-distributed brick apartment on the first floor of a building with an elevator is looking for a new owner in the heart of District XI.
If you want to establish your new home in a location with good infrastructure and transportation, you must definitely check out this property!
NEIGHBORHOOD and TRANSPORTATION:
- District XI, Lágymányos, in the vicinity of Allee, Móricz Zsigmond Square, and Gárdonyi Square.
- The central part of one of Budapest's most popular and youthful districts.
- An area with excellent infrastructure and transportation, very favored by university students.
- The property is a 5-minute walk from the ELTE Lágymányos Campus, several buildings of BME, and the Infopark.
- Kindergarten and school, pharmacy, medical office, and bank are also accessible within a few minutes.
- For those who enjoy hustle and bustle, there are plenty of restaurants, entertainment venues, and hospitality places available.
- Everything necessary for everyday life is reachable within a 5-minute walk from the apartment.
- Allee Shopping Center and Újbuda Center are a 5-minute distance away.
- The stops for trams 4-6 and 19-41 are 2 minutes away, and the M4 metro and bus stops are a 5-minute walk, making the city center easily accessible.
BUILDING:
- A 7-story, 20-apartment brick building built in the 1930s with an elevator.
- A charming condominium with well-maintained exterior and interior facades.
- The building includes a well-kept shared inner garden.
- Technically well-maintained, with a cared-for staircase.
APARTMENT:
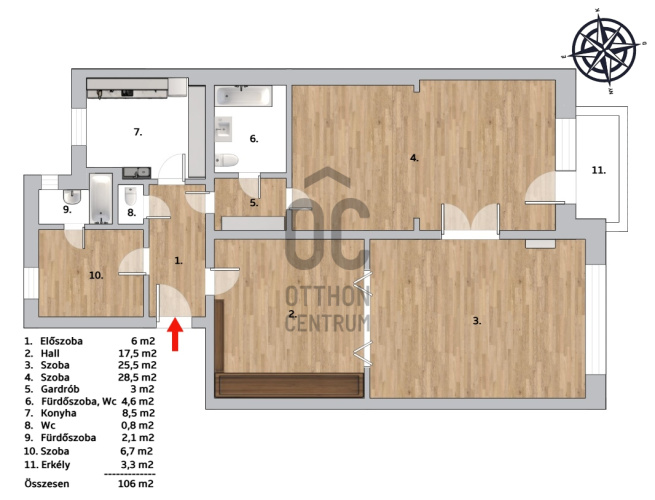
- A 106 m², 3-room + hall, bright, well-distributed, average condition bourgeois property on the first floor.
- Layout: entrance hall, hall, kitchen, living room, 2 bedrooms, 2 bathrooms (one with a toilet), a corridor (which also serves as a wardrobe), and a separate toilet.
- The living room and the adjacent room face south, and the apartment has large windows and bright spaces.
- The double-glazed wooden windows are in condition appropriate for their age, and street noise is not heard at all when the windows are closed.
- Ceiling height is 290 cm, beautifully reflecting bourgeois style features.
- The entrance hall, rooms, and hall have wooden parquet flooring, while the wet areas are tiled.
- The apartment receives heating and hot water from district heating, with radiators equipped with meters for heat distribution.
- Electricity and gas consumption are billed based on individual measurements.
- The common cost is HUF 24,000/month, which includes unlimited water consumption; maintenance costs are favorable.
- The property is free of any legal disputes, encumbrances, and claims, and can be occupied immediately.
THE PROPERTY CAN BE VIEWED:
- In person - Online with a personal appointment WE HELP WITH FINANCING QUESTIONS:
- Our bank-independent credit center will competitively evaluate offers from all banks and financial institutions free of charge.
- All you need to do is talk to our colleague and then choose the most suitable long-term financing option from the evaluated offers.
- Our experts, with 20 years of professional experience, are waiting for you with consumer-friendly mortgage loans tailored to individual needs.
- Appointments can be arranged even after normal working hours.
If you have any questions or would like to schedule a viewing, I look forward to your call!
If you want to establish your new home in a location with good infrastructure and transportation, you must definitely check out this property!
NEIGHBORHOOD and TRANSPORTATION:
- District XI, Lágymányos, in the vicinity of Allee, Móricz Zsigmond Square, and Gárdonyi Square.
- The central part of one of Budapest's most popular and youthful districts.
- An area with excellent infrastructure and transportation, very favored by university students.
- The property is a 5-minute walk from the ELTE Lágymányos Campus, several buildings of BME, and the Infopark.
- Kindergarten and school, pharmacy, medical office, and bank are also accessible within a few minutes.
- For those who enjoy hustle and bustle, there are plenty of restaurants, entertainment venues, and hospitality places available.
- Everything necessary for everyday life is reachable within a 5-minute walk from the apartment.
- Allee Shopping Center and Újbuda Center are a 5-minute distance away.
- The stops for trams 4-6 and 19-41 are 2 minutes away, and the M4 metro and bus stops are a 5-minute walk, making the city center easily accessible.
BUILDING:
- A 7-story, 20-apartment brick building built in the 1930s with an elevator.
- A charming condominium with well-maintained exterior and interior facades.
- The building includes a well-kept shared inner garden.
- Technically well-maintained, with a cared-for staircase.
APARTMENT:
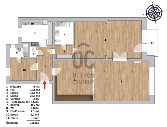
- A 106 m², 3-room + hall, bright, well-distributed, average condition bourgeois property on the first floor.
- Layout: entrance hall, hall, kitchen, living room, 2 bedrooms, 2 bathrooms (one with a toilet), a corridor (which also serves as a wardrobe), and a separate toilet.
- The living room and the adjacent room face south, and the apartment has large windows and bright spaces.
- The double-glazed wooden windows are in condition appropriate for their age, and street noise is not heard at all when the windows are closed.
- Ceiling height is 290 cm, beautifully reflecting bourgeois style features.
- The entrance hall, rooms, and hall have wooden parquet flooring, while the wet areas are tiled.
- The apartment receives heating and hot water from district heating, with radiators equipped with meters for heat distribution.
- Electricity and gas consumption are billed based on individual measurements.
- The common cost is HUF 24,000/month, which includes unlimited water consumption; maintenance costs are favorable.
- The property is free of any legal disputes, encumbrances, and claims, and can be occupied immediately.
THE PROPERTY CAN BE VIEWED:
- In person - Online with a personal appointment WE HELP WITH FINANCING QUESTIONS:
- Our bank-independent credit center will competitively evaluate offers from all banks and financial institutions free of charge.
- All you need to do is talk to our colleague and then choose the most suitable long-term financing option from the evaluated offers.
- Our experts, with 20 years of professional experience, are waiting for you with consumer-friendly mortgage loans tailored to individual needs.
- Appointments can be arranged even after normal working hours.
If you have any questions or would like to schedule a viewing, I look forward to your call!
Registration Number
H512233
Property Details
Sales
for sale
Legal Status
used
Character
apartment
Construction Method
brick
Net Size
106 m²
Gross Size
107.5 m²
Size of Terrace / Balcony
3 m²
Heating
individual district heating
Ceiling Height
290 cm
Number of Levels Within the Property
1
Orientation
South
Staircase Type
enclosed staircase
Condition
Average
Condition of Facade
Good
Condition of Staircase
Good
Neighborhood
quiet, good transport, central
Year of Construction
1930
Number of Bathrooms
2
Position
street-facing
Common Costs
24000
Water
Available
Electricity
Available
Sewer
Available
Elevator
available
Distance to Waterfront
more than 500 meters
Rooms
entryway
6 m²
hall
17.5 m²
room
25.5 m²
room
28.5 m²
wardrobe
3 m²
bathroom-toilet
4.6 m²
kitchen
8.5 m²
toilet
0.8 m²
bathroom
2.1 m²
room
6.7 m²
balcony
3.3 m²
Medovarszki Andrea
Credit Expert