Elérhető Otthon Start hitellel
Eladó újépítésű ikerház,
U0049189
Dunaharaszti
146 000 000 Ft
386 000 €
- 158m²
- 5 szoba
Dunaharaszti Alsóváros részén nappali + 4 hálószobás ikerház ELADÓ!
Autóbeálló kapcsolatos nettó 136 nm alapterületű+ 22 nm (garázs)+20 nm-es autó beállóval épülő földszintes, utcafronti ikerház kerül most értékesítésre 510 m2-es hozzá tartozó telekrésszel.
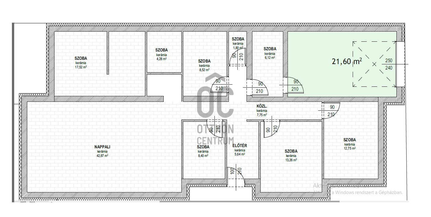
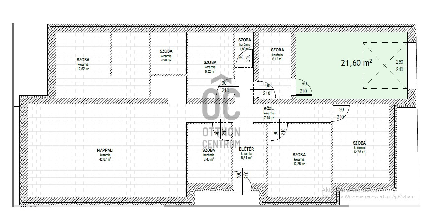
Az ingatlan 4 hálószobával, amerikai konyhás nappalival, két fürdőszobával, terasszal, van tervezve, azonban ez még módosítható, mert a kivitelezést a szerződéskötés után kezdi el a kivitelező, az alaprajzok tájékoztató, ötletadó jellegűek, így teljes mértékben a saját igényei szerint történhet meg az ingatlan kialakítása.
Csendes kertvárosi környezet, saját helyrajzi számmal rendelkező ikerház, amely pergolás autóbeállóval kapcsolódik a másik ingatlannal.
Főbb paraméterek:
- amerikai konyhás nappali + 4 hálószoba
- nettó: 158 m2, 400 m2 telek
- 30-as kerámia főfalak, 10 cm ytong válaszfal
- főfal 15 cm EPS, aljzatban 12 cm, födémen 25 cm szigetelés
- kondenzációs gázkazán/hőszivattyú/ klíma berendezés,
- földszinten padlófűtés, szobákban lapradiátorok
- 3 KW-os napelem rendszer,
- 3 rétegű 6 légkamrás műanyag nyílászárókkal redőnnyel, szúnyoghálóval
- riasztórendszer, kaputelefon előkészítés
- járda az épület körül, kocsibeálló a telken és az utcán 10x20 cm viacolorral
Várható átadás: szerződéskötéstől számított 8 hónap.
Kiváló elhelyezkedés:
- Budapest gyorsan elérhető
- Liszt Ferenc Repülőtér: 20 perc
- M0 autópálya: 3 perc
- M5 autópálya: kb. 15 km
További információért, kérem keressen!
Az ingatlan 4 hálószobával, amerikai konyhás nappalival, két fürdőszobával, terasszal, van tervezve, azonban ez még módosítható, mert a kivitelezést a szerződéskötés után kezdi el a kivitelező, az alaprajzok tájékoztató, ötletadó jellegűek, így teljes mértékben a saját igényei szerint történhet meg az ingatlan kialakítása.
Csendes kertvárosi környezet, saját helyrajzi számmal rendelkező ikerház, amely pergolás autóbeállóval kapcsolódik a másik ingatlannal.
Főbb paraméterek:
- amerikai konyhás nappali + 4 hálószoba
- nettó: 158 m2, 400 m2 telek
- 30-as kerámia főfalak, 10 cm ytong válaszfal
- főfal 15 cm EPS, aljzatban 12 cm, födémen 25 cm szigetelés
- kondenzációs gázkazán/hőszivattyú/ klíma berendezés,
- földszinten padlófűtés, szobákban lapradiátorok
- 3 KW-os napelem rendszer,
- 3 rétegű 6 légkamrás műanyag nyílászárókkal redőnnyel, szúnyoghálóval
- riasztórendszer, kaputelefon előkészítés
- járda az épület körül, kocsibeálló a telken és az utcán 10x20 cm viacolorral
Várható átadás: szerződéskötéstől számított 8 hónap.
Kiváló elhelyezkedés:
- Budapest gyorsan elérhető
- Liszt Ferenc Repülőtér: 20 perc
- M0 autópálya: 3 perc
- M5 autópálya: kb. 15 km
További információért, kérem keressen!
Regisztrációs szám
U0049189
Az ingatlan adatai
Értékesités
eladó
Jogi státusz
új
Jelleg
ház
Építési mód
tégla
Méret
158 m²
Bruttó méret
178 m²
Telek méret
402 m²
Fűtés
Gáz cirkó
Belmagasság
270 cm
Tájolás
Dél-kelet
Állapot
Kiváló
Homlokzat állapota
Kiváló
Környék
jó közlekedés
Építés éve
2026
Fürdőszobák száma
2
Garázs férőhely
1
Víz
Van
Gáz
Van
Villany
Van
Csatorna
Van
Helyiségek
nappali-konyha
42.87 m²
szoba
17.52 m²
szoba
13.28 m²
szoba
12.75 m²
szoba
8.52 m²
egyéb helyiség
8.4 m²
egyéb helyiség
4.28 m²
egyéb helyiség
1.8 m²
egyéb helyiség
6.12 m²
előszoba
5.84 m²
közlekedő
7.75 m²
garázs
21.6 m²
Joó Krisztina
Hitelszakértő