Elérhető Otthon Start hitellel
Eladó újépítésű ikerház,
U0049340
Dunavarsány
119 000 000 Ft
317 000 €
- 109m²
- 4 szoba
Dunavarsány központi részén eladó ikerház
Dunavarsányon újépítésű ikerház
Ház
✅️téglaépítésű
✅️2 szintes 3 hálószobás, 2 fürdőszobás
✅️földszinten 1 háló, nappali, konyha-étkező és fürdőszoba
✅️emeleten 2 háló, fürdőszoba és előszoba
✅️telek 340 nm saját telek
Műszaki Paraméterek:
✅️30Nf Porotherm tégla
✅️vasbeton sávalap
✅️10cm porotherm válaszfal
✅️5 légkamrás 3 rétegű nyílászárok
✅️15cm homlokzati hőszigetelés
✅️Terrán antracit cserépfedés
✅️Hőszivattyús meleg víz és fűtésrendszer, padlófűtéssel
✅️Hidegburkolatok választhatók 8000ft nm
✅️Melegburkolatok választhatók 6000ft nm
Extrák
✅️burkolt terasz
✅️3D kerítés rendszer, elektromos tolókapuval
✅️riasztórendszer előkészítés
✅️elektromos redőny előkészítés
✅️térkövezett gépkocsibeálló
Hitel, CSOK, Otthon Start igényelhető.
Várható átadás: 2027. április vége
25 % önerővel szükséges a szerződéskötéshez
Hívjon bizalommal!
Ház
✅️téglaépítésű
✅️2 szintes 3 hálószobás, 2 fürdőszobás
✅️földszinten 1 háló, nappali, konyha-étkező és fürdőszoba
✅️emeleten 2 háló, fürdőszoba és előszoba
✅️telek 340 nm saját telek
Műszaki Paraméterek:
✅️30Nf Porotherm tégla
✅️vasbeton sávalap
✅️10cm porotherm válaszfal
✅️5 légkamrás 3 rétegű nyílászárok
✅️15cm homlokzati hőszigetelés
✅️Terrán antracit cserépfedés
✅️Hőszivattyús meleg víz és fűtésrendszer, padlófűtéssel
✅️Hidegburkolatok választhatók 8000ft nm
✅️Melegburkolatok választhatók 6000ft nm
Extrák
✅️burkolt terasz
✅️3D kerítés rendszer, elektromos tolókapuval
✅️riasztórendszer előkészítés
✅️elektromos redőny előkészítés
✅️térkövezett gépkocsibeálló
Hitel, CSOK, Otthon Start igényelhető.
Várható átadás: 2027. április vége
25 % önerővel szükséges a szerződéskötéshez
Hívjon bizalommal!
Regisztrációs szám
U0049340
Az ingatlan adatai
Értékesités
eladó
Jogi státusz
új
Jelleg
ház
Építési mód
tégla
Méret
109 m²
Bruttó méret
124 m²
Telek méret
679 m²
Terasz / erkély mérete
20 m²
Fűtés
hőszivattyú
Belmagasság
270 cm
Lakáson belüli szintszám
2
Tájolás
Nyugat
Állapot
Kiváló
Homlokzat állapota
Kiváló
Környék
csendes, jó közlekedés, központi
Építés éve
2026
Fürdőszobák száma
2
Víz
Van
Gáz
Utcán
Villany
Van
Csatorna
Van
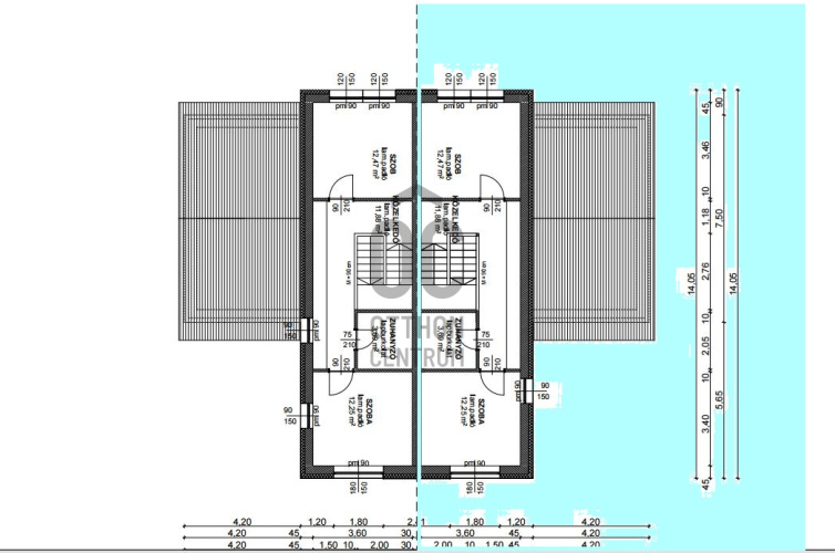
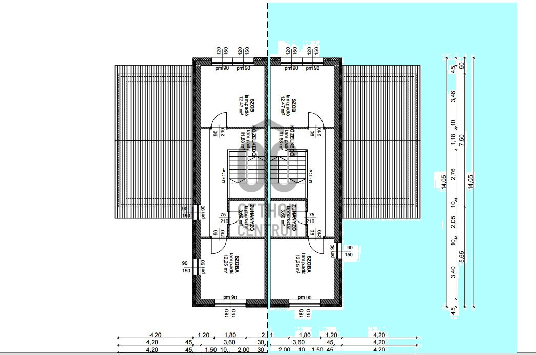
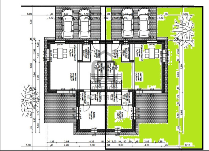
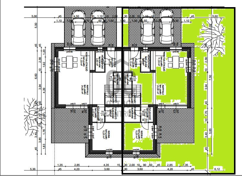
Helyiségek
nappali
24.08 m²
hálószoba
12.25 m²
konyha-étkező
11.53 m²
előszoba
5.13 m²
fürdőszoba
3.69 m²
wc
1.89 m²
közlekedő
2.77 m²
hálószoba
12.47 m²
hálószoba
12.25 m²
közlekedő
11.88 m²
fürdőszoba-wc
3.69 m²
Joó Krisztina
Hitelszakértő