For sale plot, DTK078047
Örkény,

19,900,000 Ft

53,000 €

  • 7,837m²
Exclusive Contract

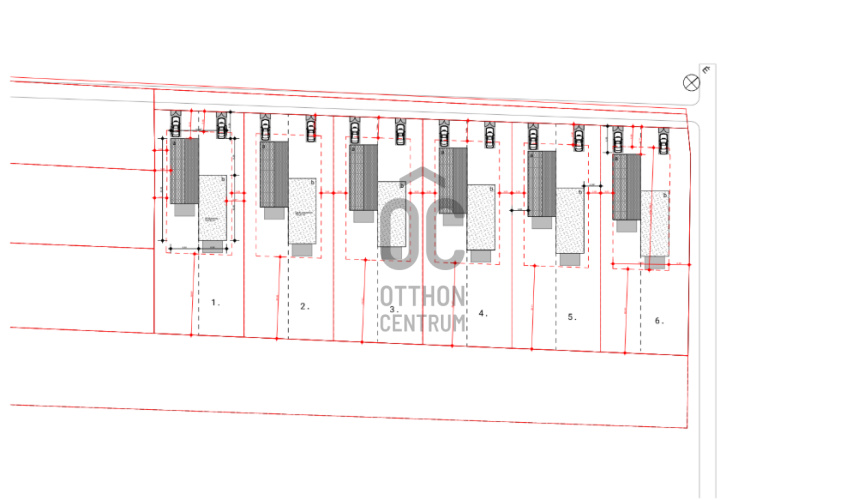
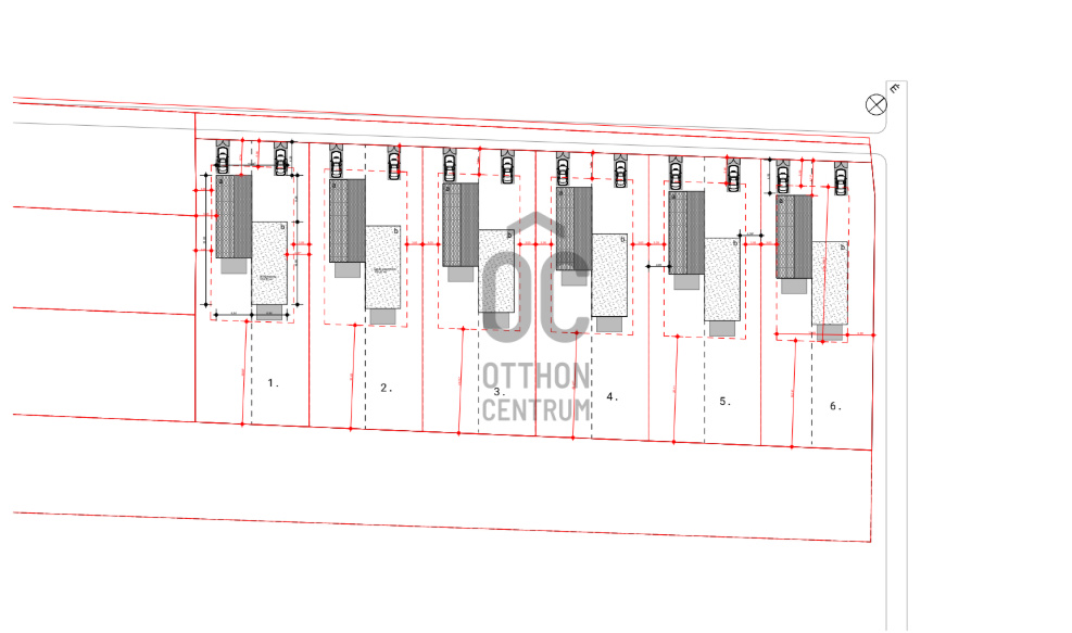
Eladó építési telek Örkényen Meglévő tervekkel, 12 lakás építésére alkalmas!
Örkény dinamikusan fejlődő, újonnan kiépülő részén kínálom megvételre ezt a 7837 m²-es építési telket, amely kiváló lehetőséget biztosít beruházóknak és építkezni vágyóknak.

A telek LF-2 besorolású, 30%-os beépíthetőséggel rendelkezik, és összesen hat ebből öt 1213 m²-es és egy 1214 m²-es  részre osztható.

Minden egyes telekre egy épület építhető, amelyben két lakás alakítható ki, így összesen 12 lakás megépítésére nyílik lehetőség. Ideális választás lakópark kialakítására vagy társasházépítésre!

Ha felkeltettem érdeklődését, keressen bizalommal a hét bármely napján!

Registration Number

DTK078047

Property Details

Sales
for sale
Legal Status
used
Character
plot
Type of Land
Developmental plot
Net Size
7,837 m²
Gross Size
7,837 m²
Plot Size
7,837 m²
Basement
values.realestate.pince.1
Water
On the street
Gas
On the street
Electricity
On the street
Sewer
On the street
Connected to Garden
yes
Storage
Independent

 

Joó Krisztina
Joó Krisztina

Credit Expert

From Our Office Listings - Dunaharaszti - Soroksári út

for sale semi-detached house

Index image
data_sheet.details.realestate.section.main.otthonstart_flag.label
26

for sale new construction semi-detached house

Index image
data_sheet.details.realestate.section.main.otthonstart_flag.label
8

for sale apartment

Index image
14

for sale family house

Index image
39

for sale new construction family house

Index image
data_sheet.details.realestate.section.main.otthonstart_flag.label
3

for sale family house

Index image
data_sheet.details.realestate.section.main.otthonstart_flag.label
30