319,990,000 Ft
846,000 €
- 511m²
Sokoldalúan hasznosítható üzleti ingatlan Kispesten
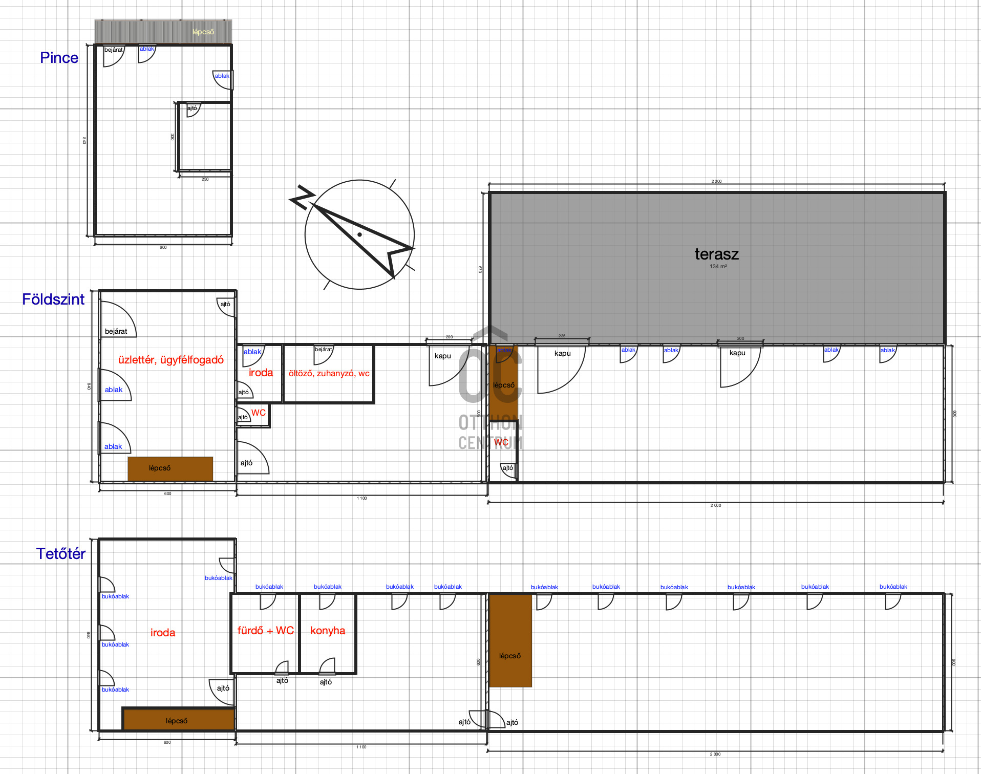
Kispest frekventált részén eladó egy sokoldalúan hasznosítható üzleti ingatlan, jó megközelíthetőséggel, utcafronti elhelyezkedéssel. A 545 m²-es telken egy 238 m² alapterületű, háromszintes (pince + földszint + tetőtér), jelenleg is üzletként és raktárként funkcionáló épület valamint egy 134m²-es terasz található.
A födszinten egy utcafronti üzlettér, egy kisméretű irodai szoba, egy dolgozói öltöző zuhanyzókkal, illetve két nagy alapterületű műhely/raktár kapott helyet, több bejárattal és kapuval.
A félnyeregtetős, 3,5 m csúcsmagasságú beépített tetőtéren egy nagyobb irodai helyiség, egy fürdőszoba, egy konyha, illetve üzemi funkciókra alkalmas tér található.
Az épület alatt egy 2,5 m belmagasságú pince biztosít extra raktározási lehetőséget.
A 134 m²-es terasz (fedett udvari rész) alkalmas pakolásra, tárolásra vagy kültéri munkavégzésre.
Az aszfaltozott udvarnak köszönhetően az ingatlan alkalmas kisebb méretű teherautók fogadására és rakodására is.
Ideális lehet:
• kereskedelmi tevékenységre
• bemutatóterem + műhely kombinációra
• szerviznek, üzemnek
• központi irodának raktárral
• webáruházas logisztikai bázisnak
• oktatóközpontnak
• egészségügyi központnak
• sportközpontnak
Jó lokáció, rugalmasan alakítható terek, komplex üzleti működésre optimalizált kialakítás.
• Beépíthetőség: 60% maximális beépíthetőség.
• Szintterületi mutató: Maximum 1,9 m²/m².
• Maximális építménymagasság: 10,5 m.
A födszinten egy utcafronti üzlettér, egy kisméretű irodai szoba, egy dolgozói öltöző zuhanyzókkal, illetve két nagy alapterületű műhely/raktár kapott helyet, több bejárattal és kapuval.
A félnyeregtetős, 3,5 m csúcsmagasságú beépített tetőtéren egy nagyobb irodai helyiség, egy fürdőszoba, egy konyha, illetve üzemi funkciókra alkalmas tér található.
Az épület alatt egy 2,5 m belmagasságú pince biztosít extra raktározási lehetőséget.
A 134 m²-es terasz (fedett udvari rész) alkalmas pakolásra, tárolásra vagy kültéri munkavégzésre.
Az aszfaltozott udvarnak köszönhetően az ingatlan alkalmas kisebb méretű teherautók fogadására és rakodására is.
Ideális lehet:
• kereskedelmi tevékenységre
• bemutatóterem + műhely kombinációra
• szerviznek, üzemnek
• központi irodának raktárral
• webáruházas logisztikai bázisnak
• oktatóközpontnak
• egészségügyi központnak
• sportközpontnak
Jó lokáció, rugalmasan alakítható terek, komplex üzleti működésre optimalizált kialakítás.
• Beépíthetőség: 60% maximális beépíthetőség.
• Szintterületi mutató: Maximum 1,9 m²/m².
• Maximális építménymagasság: 10,5 m.
Registration Number
UZ019425
Property Details
Sales
for sale
Legal Status
used
Character
commercial
Type of Business Property
entire building
Construction Method
brick
Net Size
511 m²
Plot Size
545 m²
Size of Terrace / Balcony
134 m²
Above-Ground Net Size
236 m²
Ceiling Height
280 cm
Number of Levels Within the Property
2
View
city view
Condition
Good
Condition of Facade
Good
Year of Construction
2001
Water
Available
Gas
Available
Electricity
Available
Sewer
Available
Possible Functions
retail, hospitality unit, values.realestate.lehetsegesFunkcio.1024, guesthouse, hostel, sports center, healthcare center, educational center, agricultural site, rental building, other
Visibility
Easily visible from busy main road
Accessibility
Entrance from busy main road
Utilization
owner-occupied
Zaracsi Szilvia
Credit Expert