Elérhető Otthon Start hitellel
Eladó panel lakás,
H513474
Budapest XVII. kerület, Rákoskeresztúr
67 900 000 Ft
180 000 €
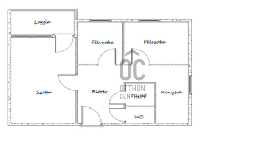
- 51m²
- 3 szoba
- 2. emelet
Eladóvá vált egy 51nm-es, háromszobás panellakás Rákoskeresztúron!
De miért pont ezt válaszd?
+ kiváló elosztású, második emeleti lakás, alapvetően nem kell hozzányúlni
+ a villanyhálózat, a burkolatok, a nyílászáró jó állapotúak
+ 4nm-es erkéllyel, hűtő-fűtő klímával felszerelt ingatlan
+ 1/1es tulajdon, tehermentes
+ közelben: gyógyszertár, orvosi rendelő, élelmiszerbolt, Keresztúri úti bevásárlópark
Amennyiben felkeltettem érdeklődésedet, várom hívásodat!
De miért pont ezt válaszd?
+ kiváló elosztású, második emeleti lakás, alapvetően nem kell hozzányúlni
+ a villanyhálózat, a burkolatok, a nyílászáró jó állapotúak
+ 4nm-es erkéllyel, hűtő-fűtő klímával felszerelt ingatlan
+ 1/1es tulajdon, tehermentes
+ közelben: gyógyszertár, orvosi rendelő, élelmiszerbolt, Keresztúri úti bevásárlópark
Amennyiben felkeltettem érdeklődésedet, várom hívásodat!
Regisztrációs szám
H513474
Az ingatlan adatai
Értékesités
eladó
Jogi státusz
használt
Jelleg
lakás
Építési mód
panel
Méret
51 m²
Bruttó méret
55 m²
Terasz / erkély mérete
4 m²
Fűtés
távfűtés
Belmagasság
275 cm
Tájolás
Észak-kelet
Lépcsőház típusa
zárt lépcsőház
Állapot
Jó
Homlokzat állapota
Átlagos
Lépcsőház állapota
Átlagos
Környék
csendes, jó közlekedés, központi
Építés éve
1980
Fürdőszobák száma
1
Fekvés
utcai
Közös költség
12000
Víz
Van
Gáz
Van
Villany
Van
Csatorna
Van
Lift
van
Helyiségek
nappali
18 m²
szoba
9 m²
szoba
7 m²
fürdőszoba
3.5 m²
wc
1 m²
konyha
5 m²
közlekedő
5 m²
Zaracsi Szilvia
Hitelszakértő