76,808,030 Ft
199,000 €
- 70m²
- 3 Rooms
Leugrana a strandra? Lépjen egy nagyot!
Ábrahámhegyen, a Balaton partjától mindössze 50 méterre, a strand bejáratától 30 méternyire eladó, ez a saroktelki, csodás kis nyaraló!
Fantasztikus elhelyezkedése révén igazi álomotthon a nyári tartózkodásra!
A kert 600 nm-es, amely üdülőterületi elhelyezkedése révén 20%-ban beépíthető.
Egész évben gondozott, az utca felé magasan, élő zölddel keretezett, így a kertbe senki nem lát be. Kis kapu nyílik a strand felé, így a lehető legkényelmesebb a lejutás a partra, gyalogosan mintegy 3 perc alatt a vízben úszhatunk.
Jelenleg az épület egy 1985-ben, kő alapra telepített, könnyűszerkezetes típusház, amelynek hatalmas déli terasza és egy fedett, így beépíthető része is van.
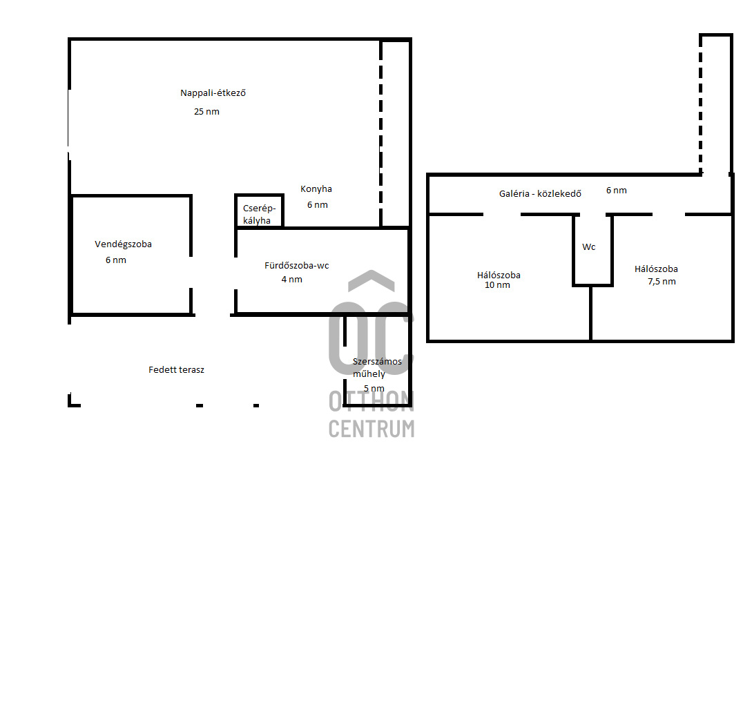
A ház jelenlegi felosztásában 42 nm alapterületű, plusz 28 nm-es beépített tetőtérrel rendelkezik. Ezen felül a terasz és egy kis műhely még 16,5 nm.
A földszinten nagy, egylégterű nappali-étkező-konyha van, a terasz felé dupla teraszajtóval egybenyitható a kinti térrel. Vendégszoba és fürdőszoba található még itt, a nappaliban pedig egy csodás cserépkályha, amely a téli időszak alatt is befűti a házat.
Az emelet galériás kialakítású, egy nagyobb és egy kisebb hálószoba van itt, plusz wc, a szobákban mosdók és gardrób van.
Bájos, otthonos hangulatú, nagyon szeretett és jól karbantartott ingatlan, amely idén is friss külső festést kapott a fa felületeken.
Családi okokból kerül eladásra, a tulajdonos a vételárat euróban várja.
Fantasztikus elhelyezkedése révén igazi álomotthon a nyári tartózkodásra!
A kert 600 nm-es, amely üdülőterületi elhelyezkedése révén 20%-ban beépíthető.
Egész évben gondozott, az utca felé magasan, élő zölddel keretezett, így a kertbe senki nem lát be. Kis kapu nyílik a strand felé, így a lehető legkényelmesebb a lejutás a partra, gyalogosan mintegy 3 perc alatt a vízben úszhatunk.
Jelenleg az épület egy 1985-ben, kő alapra telepített, könnyűszerkezetes típusház, amelynek hatalmas déli terasza és egy fedett, így beépíthető része is van.
A ház jelenlegi felosztásában 42 nm alapterületű, plusz 28 nm-es beépített tetőtérrel rendelkezik. Ezen felül a terasz és egy kis műhely még 16,5 nm.
A földszinten nagy, egylégterű nappali-étkező-konyha van, a terasz felé dupla teraszajtóval egybenyitható a kinti térrel. Vendégszoba és fürdőszoba található még itt, a nappaliban pedig egy csodás cserépkályha, amely a téli időszak alatt is befűti a házat.
Az emelet galériás kialakítású, egy nagyobb és egy kisebb hálószoba van itt, plusz wc, a szobákban mosdók és gardrób van.
Bájos, otthonos hangulatú, nagyon szeretett és jól karbantartott ingatlan, amely idén is friss külső festést kapott a fa felületeken.
Családi okokból kerül eladásra, a tulajdonos a vételárat euróban várja.
Registration Number
NY013023
Property Details
Sales
for sale
Legal Status
used
Character
vacation home
Type of Vacation Home
house
Construction Method
lightweight
Net Size
70 m²
Gross Size
70 m²
Plot Size
598 m²
Heating
tile stove (mixed)
Ceiling Height
260 cm
Number of Levels Within the Property
2
Orientation
South
View
Green view
Condition
Good
Condition of Facade
Good
Neighborhood
green, central
Year of Construction
1980
Number of Bathrooms
1
Water
Available
Electricity
Available
Sewer
Available
Distance to Waterfront
waterfront
Rooms
living room
25 m²
study
6 m²
bedroom
10 m²
bedroom
7.5 m²
Edve János
Credit Expert