190,000,000 Ft
492,000 €
- 336m²
- 6 Rooms
- 1st floor
XVIII. KERÜLET BÓKAY-KERT SZÍVÉBEN!
Három generációs felújított ingatlan a 18. kerületben a Bókaytelepen!
XVIII. kerület közkedvelt részén a Bókay kert szomszédságában eladó egy otthonos, hangulatos, társasházi lakás.
Kiemelném a lakás külön helyrajzi számmal és külön mérőórákkal, külön bejárattal, kertrésszel rendelkezik, jogilag rendezett, hitelezhető.
Az ingatlanhoz tartozó saját kert: 626 nm.
A vételárrészét képezi:
- az emeleti lakás, mely nettó: 143 nm,
- a 43 nm es tetőtéri lakrész,
- 106 nm es szuterén szint, garázzsal, mely külső és belső lépcsőtéren egyaránt megközelíthető.
- a teleken található 44 nm-es kis épületrész.
Az ingatlanok bruttó alapterülete 336 nm, a hasznos alapterület 230 nm.
Az épület 2000-ben épült. A jelenleg is zajló felújítási munkák várhatóan 2025. évben illetve 2026. év első negyedévében érnek véget.
MŰSZAKI TARTALOM:
- a fűtést és a meleg vizet kondenzációs kazán biztosítja.
- az épület 15 cm szigeteléssel ellátott ,
- a nyílászárók műanyag típusúak, redőnnyel és szúnyoghálóval ellátva,
- az első emeleten és a tetőtéren kondenzációs kazán biztosítja a fűtést és a meleg vizet, valamint egy napkollektor is üzemel,
- a villanyvezeték rézcsővel kiépített,
- a vízvezetékek cseréje megtörtént,
- minden helyiség felújított,
- a tető zsindellyel borított,
- lakás belmagassága: 2,6 m,
- a térburkolatok kövesek,
- a lakásokban a szobák parkettásak, a közlekedő helyiségek és a vizesblokkok járólaposak,
- az utcafronton több autó parkolására van lehetőség.
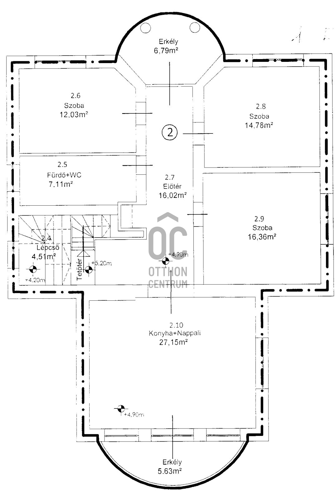
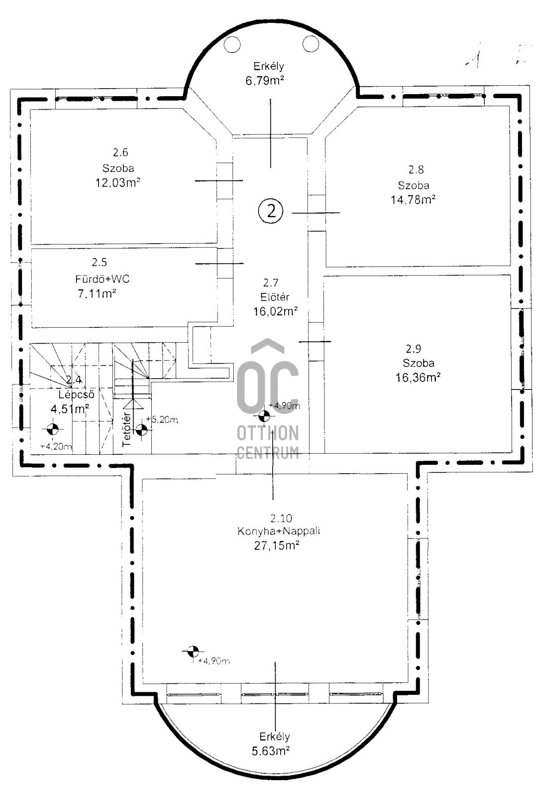
Az első emeleten a nyugati tájolású 27 nm-es amerikai konyhás nappalin kívül, a három szoba került kialakításra, az első lakószoba 16 nm-es, a második, 15 nm-es a harmadik 12 nm-es melyből kettő keleti és egy déli tájolású.
A zuhanyzós fürdőszoba WC-vel együtt nyugati fekvésű, illetve külön kialakításra került egy WC helyiség is. A közlekedő igen tágas, a szobák önállóan nyílnak (egyik sem zsákszoba!).
Az emeleti részen két terasz is található, egyik keleti (kisebb és utcafronti), a másik nyugati tájolású (nagyobb és kertre néző), mindkettő kényelmes elrendezésű.
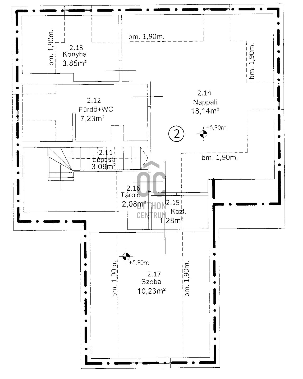
A tetőtérben található két nagyobb és egy kisebb helyiség, melyben, konyha is kialakításra kerül.. A tetőtérben kialakításra került egy zuhanyzós fürdőszoba WC-vel együtt.
A telek végében egy 44 nm-es épület található. az ingatlan 1 szoba plusz amerikai konyhás nappaliból, kis előtérből és zuhanyzós fürdő WC helységből áll.
A konyhabútor kivitelezése mindegyik lakrészben az új tulajdonos feladata!
A családi otthon tájolását tekintve előnyös, mert ablakai mind a négy égtájra nyílnak, ezáltal világos és hangulatos az épület.
A lakás teher-, per-, jog- és igénymentes, hitelezhető.
Aki ismeri ezt a környéket pontosan tudja, hogy csendes, kertvárosias, fás utcák alkotják, adott a nyugalom, mégis kiváló a közlekedése jellemzi, minden, ami a minden napokhoz szükséges percek alatt elérhető.
Az ingatlanhoz séta közelben több üzlet (Lidl Spar, Aldi, DM, stb.) és általános iskola, óvoda és bölcsőde, illetve rendelőintézet valamint buszmegálló található. Bármely busszal az M3-as metróvonal 10 perc alatt elérhető. Az M0 autóút negyedórán belül elérhető.
A három lakrész méretét tekintve, alkalmas több generáció összeköltözésére, vállalkozás üzemeltetésére.
Amennyiben felkeltette érdeklődését, és úgy érzi, hogy a hirdetéssel rátalált ideális otthonára, további információért és megtekintéssel kapcsolatban keressen bizalommal!
Jöjjön el és tekintse meg leendő otthonát, várom megtisztelő hívását!
Három generációs felújított ingatlan a 18. kerületben a Bókaytelepen!
XVIII. kerület közkedvelt részén a Bókay kert szomszédságában eladó egy otthonos, hangulatos, társasházi lakás.
Kiemelném a lakás külön helyrajzi számmal és külön mérőórákkal, külön bejárattal, kertrésszel rendelkezik, jogilag rendezett, hitelezhető.
Az ingatlanhoz tartozó saját kert: 626 nm.
A vételárrészét képezi:
- az emeleti lakás, mely nettó: 143 nm,
- a 43 nm es tetőtéri lakrész,
- 106 nm es szuterén szint, garázzsal, mely külső és belső lépcsőtéren egyaránt megközelíthető.
- a teleken található 44 nm-es kis épületrész.
Az ingatlanok bruttó alapterülete 336 nm, a hasznos alapterület 230 nm.
Az épület 2000-ben épült. A jelenleg is zajló felújítási munkák várhatóan 2025. évben illetve 2026. év első negyedévében érnek véget.
MŰSZAKI TARTALOM:
- a fűtést és a meleg vizet kondenzációs kazán biztosítja.
- az épület 15 cm szigeteléssel ellátott ,
- a nyílászárók műanyag típusúak, redőnnyel és szúnyoghálóval ellátva,
- az első emeleten és a tetőtéren kondenzációs kazán biztosítja a fűtést és a meleg vizet, valamint egy napkollektor is üzemel,
- a villanyvezeték rézcsővel kiépített,
- a vízvezetékek cseréje megtörtént,
- minden helyiség felújított,
- a tető zsindellyel borított,
- lakás belmagassága: 2,6 m,
- a térburkolatok kövesek,
- a lakásokban a szobák parkettásak, a közlekedő helyiségek és a vizesblokkok járólaposak,
- az utcafronton több autó parkolására van lehetőség.
Az első emeleten a nyugati tájolású 27 nm-es amerikai konyhás nappalin kívül, a három szoba került kialakításra, az első lakószoba 16 nm-es, a második, 15 nm-es a harmadik 12 nm-es melyből kettő keleti és egy déli tájolású.
A zuhanyzós fürdőszoba WC-vel együtt nyugati fekvésű, illetve külön kialakításra került egy WC helyiség is. A közlekedő igen tágas, a szobák önállóan nyílnak (egyik sem zsákszoba!).
Az emeleti részen két terasz is található, egyik keleti (kisebb és utcafronti), a másik nyugati tájolású (nagyobb és kertre néző), mindkettő kényelmes elrendezésű.
A tetőtérben található két nagyobb és egy kisebb helyiség, melyben, konyha is kialakításra kerül.. A tetőtérben kialakításra került egy zuhanyzós fürdőszoba WC-vel együtt.
A telek végében egy 44 nm-es épület található. az ingatlan 1 szoba plusz amerikai konyhás nappaliból, kis előtérből és zuhanyzós fürdő WC helységből áll.
A konyhabútor kivitelezése mindegyik lakrészben az új tulajdonos feladata!
A családi otthon tájolását tekintve előnyös, mert ablakai mind a négy égtájra nyílnak, ezáltal világos és hangulatos az épület.
A lakás teher-, per-, jog- és igénymentes, hitelezhető.
Aki ismeri ezt a környéket pontosan tudja, hogy csendes, kertvárosias, fás utcák alkotják, adott a nyugalom, mégis kiváló a közlekedése jellemzi, minden, ami a minden napokhoz szükséges percek alatt elérhető.
Az ingatlanhoz séta közelben több üzlet (Lidl Spar, Aldi, DM, stb.) és általános iskola, óvoda és bölcsőde, illetve rendelőintézet valamint buszmegálló található. Bármely busszal az M3-as metróvonal 10 perc alatt elérhető. Az M0 autóút negyedórán belül elérhető.
A három lakrész méretét tekintve, alkalmas több generáció összeköltözésére, vállalkozás üzemeltetésére.
Amennyiben felkeltette érdeklődését, és úgy érzi, hogy a hirdetéssel rátalált ideális otthonára, további információért és megtekintéssel kapcsolatban keressen bizalommal!
Jöjjön el és tekintse meg leendő otthonát, várom megtisztelő hívását!
Registration Number
DLK026935
Property Details
Sales
for sale
Legal Status
used
Character
apartment
Construction Method
brick
Net Size
336 m²
Gross Size
336 m²
Heating
Gas circulator
Ceiling Height
260 cm
Number of Levels Within the Property
3
Orientation
East
Condition
Excellent
Condition of Facade
Excellent
Basement
values.realestate.pince.1
Year of Construction
2000
Number of Bathrooms
2
Position
courtyard-facing
Rooms
cellar
106 m²
open-plan kitchen and living room
27.15 m²
balcony
5.63 m²
corridor
16.02 m²
room
16.36 m²
room
14.78 m²
room
12.03 m²
balcony
6.79 m²
bathroom-toilet
7.1 m²
staircase
4.5 m²
staircase
3.09 m²
living room
18.14 m²
kitchen
3.85 m²
room
10.23 m²
bathroom-toilet
7.23 m²
corridor
1.28 m²
other
44 m²