26 900 000 Ft
71 000 €
- 1 108m²
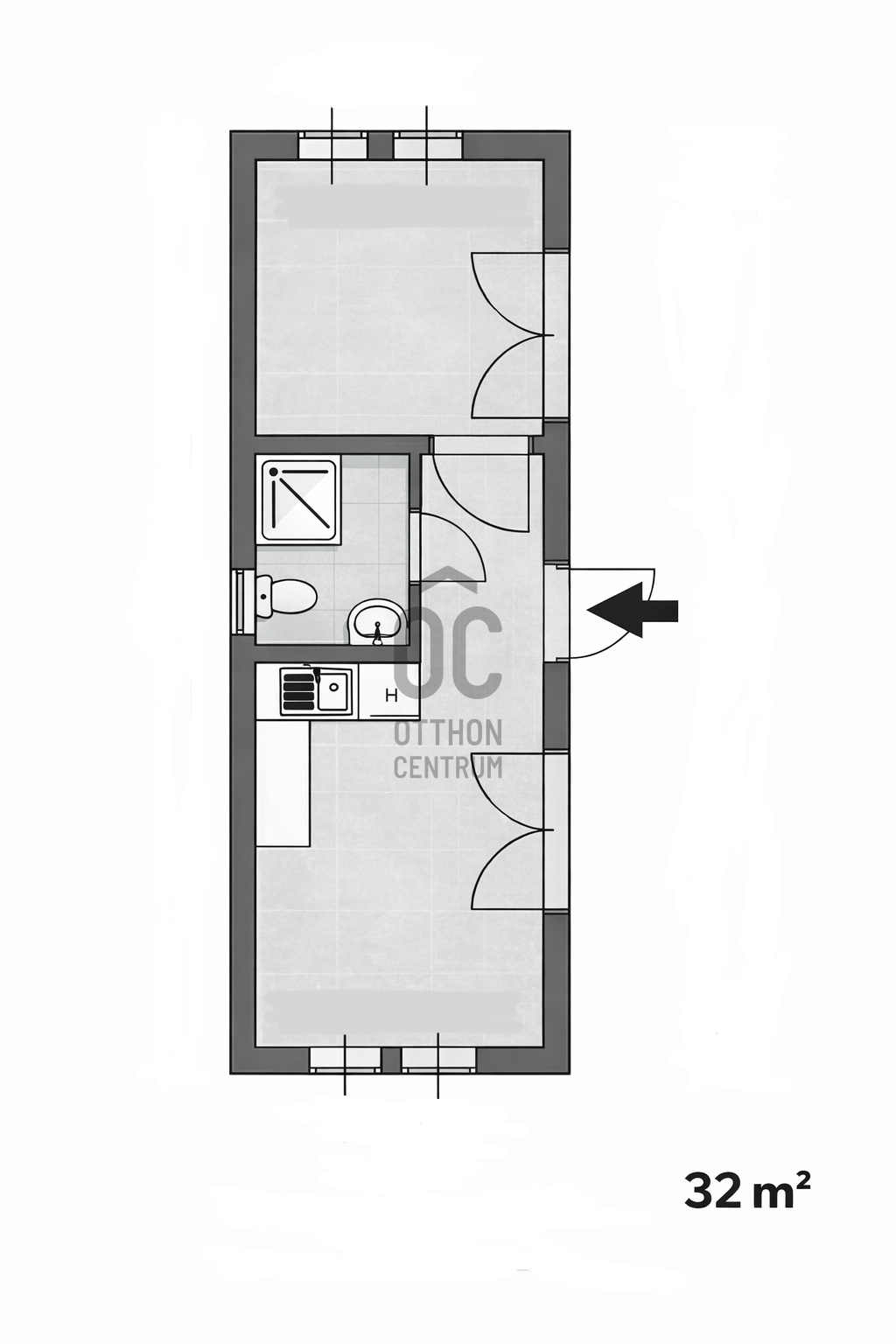
1108 m²-es telek - mobilházzal – Hajdúsámson-Martinka, Vincellér utca
Eladó Hajdúsámson-Martinka csendes, nyugodt részén, a Vincellér utcában egy 1108 m²-es telek modern, kulcsrakész 32 m²-es mobilházzal.
Ez nem egy zsúfolt lakóparki megoldás – itt tér van, nyugalom van, lehetőség van.
Telek
1108 m² önálló terület
Fúrt kút
Villany bekötve
3 m³ esővízgyűjtő
5 m³ zárt szennyvíztároló
Övezet: Lf-5 (falusias lakóövezet)
Beépíthetőség: 30%
Maximális épületmagasság: kb. 4 m
Az épület – egész éves használatra alkalmas.
Masszív favázas szerkezet, komoly hőszigeteléssel:
15 cm padlószigetelés
20 cm födémszigetelés
Polisztirol + ásványgyapot falrendszer
3 rétegű nyílászárók
Antracit korcolt lemeztető
Fa homlokzat
Nem hétvégi kunyhó, hanem lakható, jól szigetelt otthon.
80 literes Ariston bojler
Klíma
Prémium burkolatok
Teljes fürdőszoba 90×90 zuhanykabinnal
Kompakt ház, nagy telek, csendes környezet.
Lakhatásra, befektetésre vagy hétvégi birtoknak is kiváló választás.
#hajdúsámson #martinka #vincellérutca #mobilház #kulcsrakész #1108m2 #befektetés #csendeskörnyék #sajáttelek #modernotthon #értékálló #kislakásnagytelek #ingatlan
#eladóingatlan
Ez nem egy zsúfolt lakóparki megoldás – itt tér van, nyugalom van, lehetőség van.
Telek
1108 m² önálló terület
Fúrt kút
Villany bekötve
3 m³ esővízgyűjtő
5 m³ zárt szennyvíztároló
Övezet: Lf-5 (falusias lakóövezet)
Beépíthetőség: 30%
Maximális épületmagasság: kb. 4 m
Az épület – egész éves használatra alkalmas.
Masszív favázas szerkezet, komoly hőszigeteléssel:
15 cm padlószigetelés
20 cm födémszigetelés
Polisztirol + ásványgyapot falrendszer
3 rétegű nyílászárók
Antracit korcolt lemeztető
Fa homlokzat
Nem hétvégi kunyhó, hanem lakható, jól szigetelt otthon.
80 literes Ariston bojler
Klíma
Prémium burkolatok
Teljes fürdőszoba 90×90 zuhanykabinnal
Kompakt ház, nagy telek, csendes környezet.
Lakhatásra, befektetésre vagy hétvégi birtoknak is kiváló választás.
#hajdúsámson #martinka #vincellérutca #mobilház #kulcsrakész #1108m2 #befektetés #csendeskörnyék #sajáttelek #modernotthon #értékálló #kislakásnagytelek #ingatlan
#eladóingatlan
Regisztrációs szám
T041309
Az ingatlan adatai
Értékesités
eladó
Jelleg
telek
Típus
Építési telek
Övezet
lakóövezet
Telek méret
1 108 m²
Tájolás
Dél-nyugat
Víz
Utcán
Gáz
Utcán
Villany
Van
Csatorna
Utcán
Telek lejtés
sík
Beépíthetőség
30%
Homlokzat magassága
4
Plébán László
Hitelszakértő