EXKLUZÍV ÚJ ÉPÍTÉSŰ LAKÁSOK DEBRECEN BELVÁROSÁBAN
Prémium életminőség | Időtálló érték | Bevezető ár: 1.399.000 Ft/m²
ELŐÉRTÉKESÍTÉS ALATT EXTRA NM-ÁR KEDVEZMÉNYEKKEL MÁRCIUS 1 -ig.
Standard felszereltségű lakásokra-hitelmentes konstrukció esetén, GOLD fizetési konstrukcióval ! 1.324.000 Ft/nm
Debrecen belvárosának közvetlen közelében, kisvárosias eleganciával övezett környezetben valósul meg a Társasház, ahol a modern városi luxus és a nyugodt, kifinomult életstílus találkozik.
A saroktelken elhelyezkedő épület elhelyezkedése kivételes: könnyű városi hozzáférés, mégis nyugodt, rendezett környezet – ideális választás azok számára, akik nem kötnek kompromisszumot.
Prémium lakáskoncepció
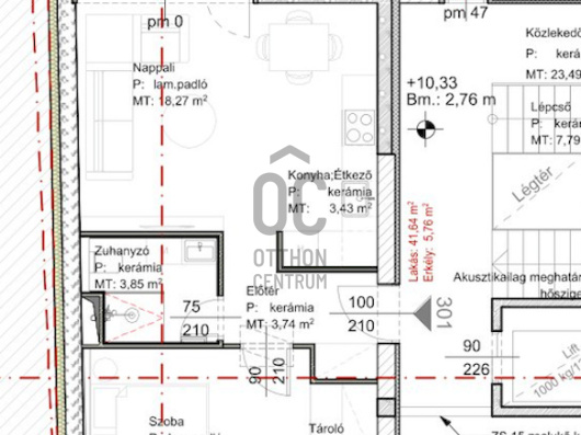
•Garzon, nappali + 1 és nappali + 2 szobás lakások
•Erkélyes és loggiás kialakítás
•Lakásméretek: 43–66 m²
•Földszinti lakások exkluzív, kizárólagos kertkapcsolattal, a hirdetési ár nem tartalmazza a zöldterület árát ( 50.000 Ft/m2)
Letisztult alaprajzok, kiváló térérzet, természetes fény – minden részlet az élhető luxust szolgálja.
Belső kert – privát városi nyugalom
A társasház belső udvara kertépítészeti terv alapján kialakított, parkosított pihenőkertként és közösségi térként funkcionál, ahol a zöld környezet diszkrét hátteret ad a mindennapi feltöltődéshez.
Diszkrét parkolási megoldások
•Pinceszinten kialakított, korszerű mélygarázs
•Saját teremgarázs parkolóhely vásárolható: 10.900.000 Ft
Felszini parkóló vásárlási lehetőség elektromos autó töltő kialakitással!
Magas műszaki tartalom – valódi prémium
•Hővisszanyerős gépészeti rendszer
•Padlófűtés minden lakásban
•Fan-coil hűtés a maximális komfortért
•POROTHERM X-Therm Rapid falazat, 15 cm hőszigeteléssel
•Egyedi gyártású, háromrétegű üvegezésű nyílászárók
•Távirányítású, elektromos alumínium redőnyök rejtett tokban
•Prémium szaniterek: RAVAK, HANSGROHE
•Falba épített WC-tartályok
•8 személyes, akadálymentes, átmenő lift a pinceszinttől a III. emeletig
Személyre szabható luxus
•3 felszereltségi szint: Standard | Médium | Prémium
•Többféle fizetési konstrukció, melyekkel exkluzív kedvezmények érhetők el
Ez nem csupán egy lakás, hanem egy életstílus.
Ideális választás azoknak, akik hosszú távon értékálló otthont vagy prémium befektetést keresnek Debrecen egyik legjobb lokációjában.
Részletes információ, elérhető lakások és alaprajzok érdeklődés esetén.
Prémium életminőség | Időtálló érték | Bevezető ár: 1.399.000 Ft/m²
ELŐÉRTÉKESÍTÉS ALATT EXTRA NM-ÁR KEDVEZMÉNYEKKEL MÁRCIUS 1 -ig.
Standard felszereltségű lakásokra-hitelmentes konstrukció esetén, GOLD fizetési konstrukcióval ! 1.324.000 Ft/nm
Debrecen belvárosának közvetlen közelében, kisvárosias eleganciával övezett környezetben valósul meg a Társasház, ahol a modern városi luxus és a nyugodt, kifinomult életstílus találkozik.
A saroktelken elhelyezkedő épület elhelyezkedése kivételes: könnyű városi hozzáférés, mégis nyugodt, rendezett környezet – ideális választás azok számára, akik nem kötnek kompromisszumot.
Prémium lakáskoncepció
•Garzon, nappali + 1 és nappali + 2 szobás lakások
•Erkélyes és loggiás kialakítás
•Lakásméretek: 43–66 m²
•Földszinti lakások exkluzív, kizárólagos kertkapcsolattal, a hirdetési ár nem tartalmazza a zöldterület árát ( 50.000 Ft/m2)
Letisztult alaprajzok, kiváló térérzet, természetes fény – minden részlet az élhető luxust szolgálja.
Belső kert – privát városi nyugalom
A társasház belső udvara kertépítészeti terv alapján kialakított, parkosított pihenőkertként és közösségi térként funkcionál, ahol a zöld környezet diszkrét hátteret ad a mindennapi feltöltődéshez.
Diszkrét parkolási megoldások
•Pinceszinten kialakított, korszerű mélygarázs
•Saját teremgarázs parkolóhely vásárolható: 10.900.000 Ft
Felszini parkóló vásárlási lehetőség elektromos autó töltő kialakitással!
Magas műszaki tartalom – valódi prémium
•Hővisszanyerős gépészeti rendszer
•Padlófűtés minden lakásban
•Fan-coil hűtés a maximális komfortért
•POROTHERM X-Therm Rapid falazat, 15 cm hőszigeteléssel
•Egyedi gyártású, háromrétegű üvegezésű nyílászárók
•Távirányítású, elektromos alumínium redőnyök rejtett tokban
•Prémium szaniterek: RAVAK, HANSGROHE
•Falba épített WC-tartályok
•8 személyes, akadálymentes, átmenő lift a pinceszinttől a III. emeletig
Személyre szabható luxus
•3 felszereltségi szint: Standard | Médium | Prémium
•Többféle fizetési konstrukció, melyekkel exkluzív kedvezmények érhetők el
Ez nem csupán egy lakás, hanem egy életstílus.
Ideális választás azoknak, akik hosszú távon értékálló otthont vagy prémium befektetést keresnek Debrecen egyik legjobb lokációjában.
Részletes információ, elérhető lakások és alaprajzok érdeklődés esetén.