Elérhető Otthon Start hitellel
Eladó újépítésű sorház,
U0049375
Hajdúsámson
60 000 000 Ft
159 000 €
- 75m²
- 3 szoba
Új építésű sorház Hajdúsámson központjának közelében
Debrecen vonzáskörzetében, Hajdúsámson központjának közelében új építésű
sorházak épülnek.
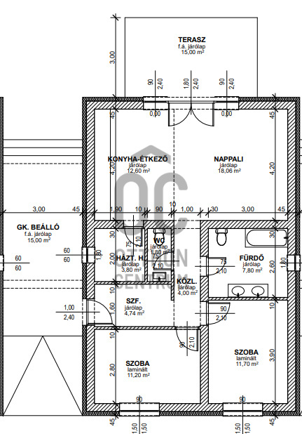
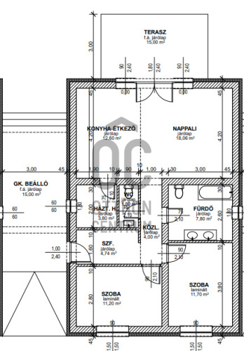
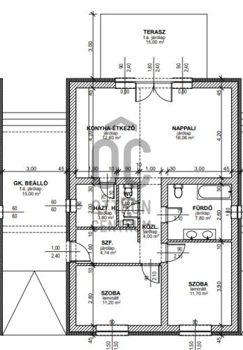
Az épület nettó 75 nm alapterületű, nappali+ 2 hálószoba.
A kiváló tervevezésnek köszönhetően a lakóegységek egy fedett gépkocsi beállóval érintkeznek,
így a lakótereknek nincs közös fala. Minden ingatlanhoz önálló utcafronttal rendelkező,
lekeríthető telekrész tartozik.
Főbb jellemzők:
- POROTHERM 30-as tégla falazat
- 15 cm homlokzati hőszigetelés
- cserép tetőhéjazat
- 3 rétegű üvegezésű műanyag ablakok
- gáz cirkó fűtés, padlófűtésen keresztül
- 2 db hűtő-fűtő klíma
- választható burkolatok és szaniterek
A műszaki tartalom irodánkban rendelkezésre áll.
Hitel, támogatott hitel igénybe vehető.
sorházak épülnek.
Az épület nettó 75 nm alapterületű, nappali+ 2 hálószoba.
A kiváló tervevezésnek köszönhetően a lakóegységek egy fedett gépkocsi beállóval érintkeznek,
így a lakótereknek nincs közös fala. Minden ingatlanhoz önálló utcafronttal rendelkező,
lekeríthető telekrész tartozik.
Főbb jellemzők:
- POROTHERM 30-as tégla falazat
- 15 cm homlokzati hőszigetelés
- cserép tetőhéjazat
- 3 rétegű üvegezésű műanyag ablakok
- gáz cirkó fűtés, padlófűtésen keresztül
- 2 db hűtő-fűtő klíma
- választható burkolatok és szaniterek
A műszaki tartalom irodánkban rendelkezésre áll.
Hitel, támogatott hitel igénybe vehető.
Regisztrációs szám
U0049375
Az ingatlan adatai
Értékesités
eladó
Jogi státusz
új
Jelleg
ház
Építési mód
tégla
Méret
75 m²
Bruttó méret
90 m²
Telek méret
374 m²
Terasz / erkély mérete
15 m²
Kert méret
300 m²
Fűtés
Gáz cirkó
Belmagasság
270 cm
Tájolás
Nyugat
Állapot
Kiváló
Homlokzat állapota
Kiváló
Környék
csendes, zöld
Építés éve
2026
Fürdőszobák száma
1
Társaház kert
igen
Víz
Van
Gáz
Van
Villany
Van
Csatorna
Van
Helyiségek
nappali
18 m²
konyha-étkező
12 m²
szoba
11 m²
szoba
12 m²
fürdőszoba
7 m²
terasz
15 m²
Plébán László
Hitelszakértő