117 000 000 Ft
301 000 €
- 75m²
- 3 szoba
- földszint


Újépítésű Prémium Lakások a Balaton északi partján, Alsóörsön
Balaton északi partjának kedvelt üdülőhelyén kínálunk eladásra újépítésű, prémium lakásokat.
A település kiváló infrastruktúrával, rendezett stranddal és kikötővel rendelkezik. A lakások mindössze néhány perc sétára találhatók a Balaton-parttól.
A két épületből álló, összesen 26 lakásos exkluzív projekt modern építészeti és műszaki megoldásokkal készült, garantálva a hosszú távú értékállóságot és az alacsony fenntartási költségeket.
Jelenleg már csak pár lakás érhető el!
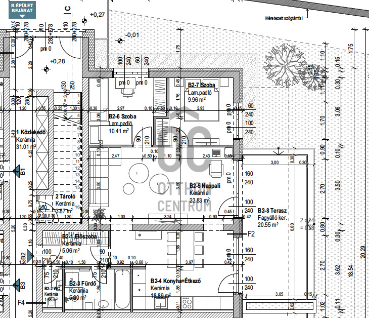
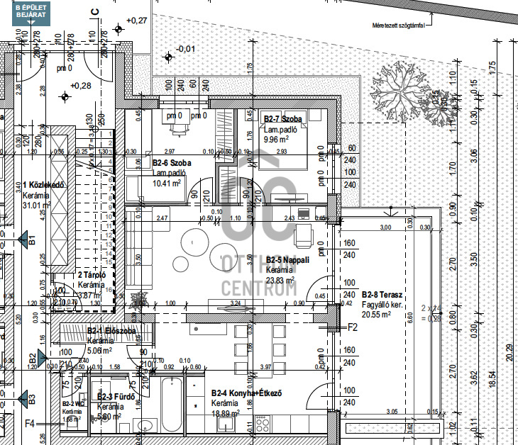
A B.L2 lakás a B épület földszintjén helyezkedik el, belső udvari kertkapcsolattal és 73 m² saját zöldterülettel rendelkezik. Alapterülete 75,43 m² + 20,55 m² terasz. Kulcsrakész ára: 114 400 000 Ft.
Kiemelkedő műszaki tartalom:
- Energiahatékony építés, prémium minőségű anyagokkal;
- 30 cm-es tégla falazat + 20 cm külső hőszigetelés;
- Műanyag-aluminium nyílászárók, háromrétegű üvegezéssel, elektromos redőnyökkel és szúnyoghálóval;
- Hőszivattyús központi fűtés egyedi mérőkkel;
- Padlófűtés és hűtő-fűtő FANCOIL rendszer minden lakásban;
- Kaputelefon, riasztó és TV/internet kiépítés;
- Minden lakás erkéllyel, vagy terasszal rendelkezik.
Opcionálisan vásárolható:
Tároló: 3 900 000 Ft - 4.200.000 Ft
Kültéri parkoló: 2.900.000 Ft
Az ingatlan jogilag rendezett, az albetétesítés megtörtént.
További információért keressen minket bizalommal!
Egyedi igényekre szabott lakás hitelekkel állunk rendelkezésére. Bankfüggetlen hitelcentrumunk az országban elérhető összes bank és hitelintézet ajánlatát versenyezteti az Ön számára díjmentesen. Munkatársaink nagy szakmai tapasztalattal várják Önt az előre egyeztetett időpontban akár a normál munkaidő után is.
A település kiváló infrastruktúrával, rendezett stranddal és kikötővel rendelkezik. A lakások mindössze néhány perc sétára találhatók a Balaton-parttól.
A két épületből álló, összesen 26 lakásos exkluzív projekt modern építészeti és műszaki megoldásokkal készült, garantálva a hosszú távú értékállóságot és az alacsony fenntartási költségeket.
Jelenleg már csak pár lakás érhető el!
A B.L2 lakás a B épület földszintjén helyezkedik el, belső udvari kertkapcsolattal és 73 m² saját zöldterülettel rendelkezik. Alapterülete 75,43 m² + 20,55 m² terasz. Kulcsrakész ára: 114 400 000 Ft.
Kiemelkedő műszaki tartalom:
- Energiahatékony építés, prémium minőségű anyagokkal;
- 30 cm-es tégla falazat + 20 cm külső hőszigetelés;
- Műanyag-aluminium nyílászárók, háromrétegű üvegezéssel, elektromos redőnyökkel és szúnyoghálóval;
- Hőszivattyús központi fűtés egyedi mérőkkel;
- Padlófűtés és hűtő-fűtő FANCOIL rendszer minden lakásban;
- Kaputelefon, riasztó és TV/internet kiépítés;
- Minden lakás erkéllyel, vagy terasszal rendelkezik.
Opcionálisan vásárolható:
Tároló: 3 900 000 Ft - 4.200.000 Ft
Kültéri parkoló: 2.900.000 Ft
Az ingatlan jogilag rendezett, az albetétesítés megtörtént.
További információért keressen minket bizalommal!
Egyedi igényekre szabott lakás hitelekkel állunk rendelkezésére. Bankfüggetlen hitelcentrumunk az országban elérhető összes bank és hitelintézet ajánlatát versenyezteti az Ön számára díjmentesen. Munkatársaink nagy szakmai tapasztalattal várják Önt az előre egyeztetett időpontban akár a normál munkaidő után is.
Regisztrációs szám
P4636-2-0B-FZ-002
Az ingatlan adatai
Értékesités
eladó
Jogi státusz
új
Jelleg
lakás
Építési mód
tégla
Méret
75 m²
Bruttó méret
96 m²
Terasz / erkély mérete
21 m²
Fűtés
elektromos fan-coil
Belmagasság
270 cm
Tájolás
Észak-kelet
Panoráma
Zöldre néző panoráma
Lépcsőház típusa
zárt lépcsőház
Állapot
Kiváló
Homlokzat állapota
Kiváló
Lépcsőház állapota
Kiváló
Építés éve
2024
Fürdőszobák száma
1
Fekvés
udvari
Víz
Van
Gáz
Van
Villany
Van
Csatorna
Van
Tároló
Külön vásárolható
Vízpart távolsága
200 méterre
Helyiségek
szoba
10 m²
nappali
24 m²
szoba
10 m²
konyha-étkező
12 m²
fürdőszoba
6 m²
wc
2 m²
előszoba
5 m²

Kőrösi Róbert
Hitelszakértő