45 900 000 Ft
122 000 €
- 18m²
- 1 szoba
- 2. emelet
FELÚJÍTOTT GALÉRIÁS GARZON AZ ASTORIÁNÁL
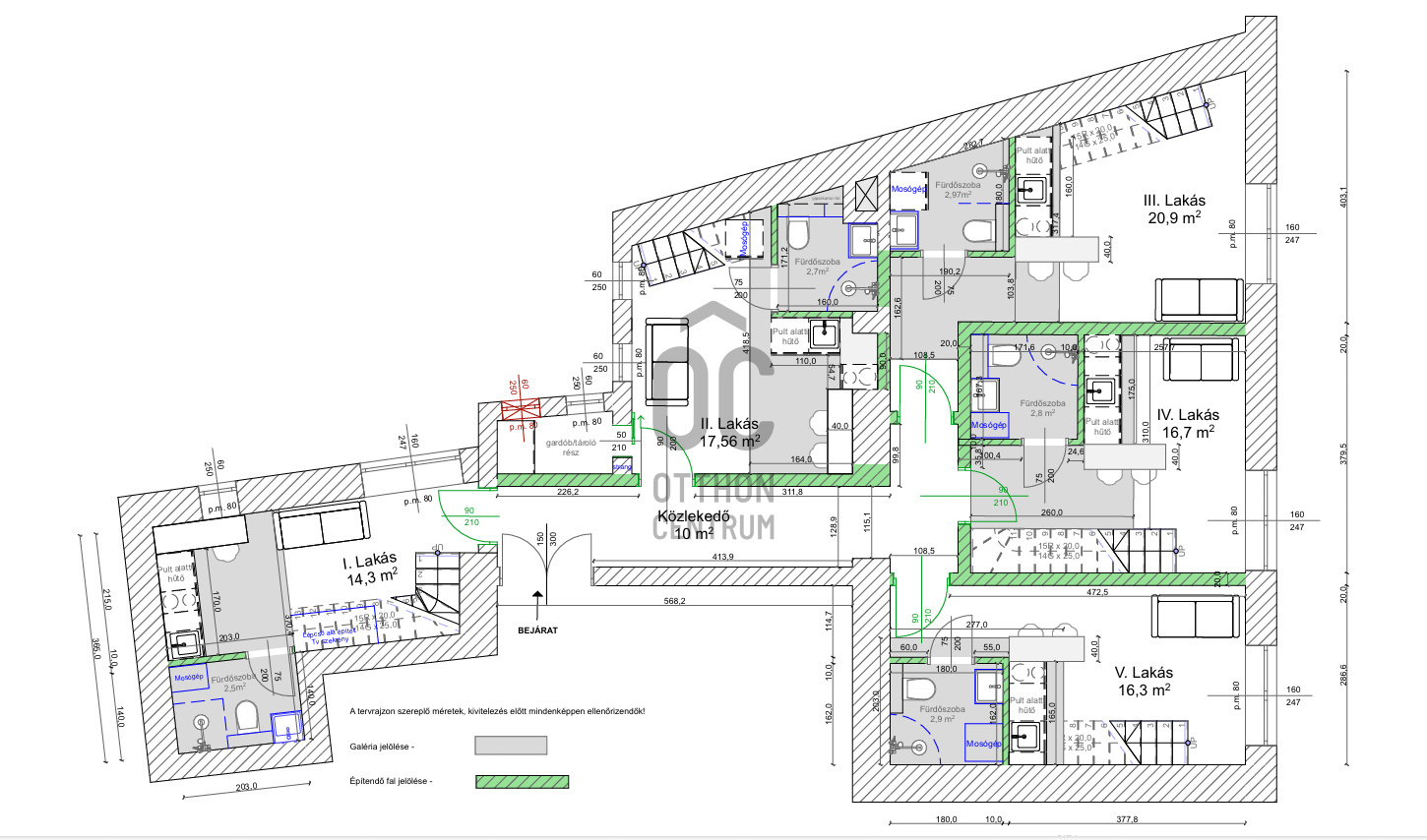
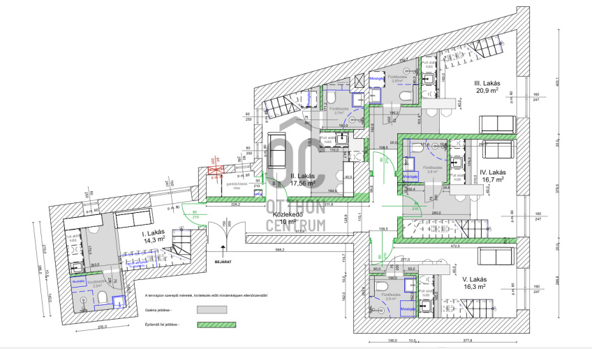
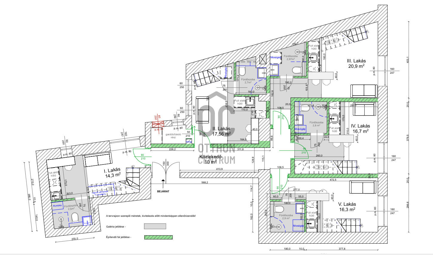
Budapest VII. kerületében, Belső_Erzsébetvárosban a Zsinagóga közvetlen közelében, rendezett házban eladó egy 2. emeleti 96 m2-es lakás, melyet ót önálló lakássá osztottak. Jelen hirdetés tárgya az 3-as számú, 23 m2-es egység 8 m2-es galériával.
Az utolsó simítások vannak csak hátra a teljes körű felújításból, aminek köszönhetően szó szerint mindent kicserélnek, csak a határoló- és teherhordó falak maradnak.
A beruházó sokadik hasonló projektje az itteni, a közelben számos referenciát tudok mutatni.
A lakások magas műszaki tartalommal, modern, fiatalos dizájnnal kerülnek átadásra. Az ár részét képezik a hűtő-fűtő klímák, a konyhabútor beépített gépészettel (főzőlap, sütő, mikró, elszívó), az összes lámpatest és rejtett hangulatvilágítás.
Az ingatlant saját részre és befektetőknek is ajánlom, hiszen tömegközlekedéssel nagyjából minden elérhető negyed órán belül, fenntartása nagyon kedvező, így könnyen kiadható.
Az ingatlanhoz ügyvédi használati megosztás készült, az ügyvédi költséget az eladó vállalja.
Jelen projekt lakásai:
1-es: 16,3 m2-es, 1 szobás + galériás (5,5 m2), udvari nézet, ELADVA!
2-es: 20 m2-es, 1 szobás + galériás (8 m2), udvari nézet, 42,9 mFt
3-as: 23 m2-es, 1 szobás + galériás (8 m2), utcai nézet, ELADVA!
4-es: 19 m2-es, 1 szobás + galériás (8 m2), utcai nézet, 45,9 mFt
5-ös: 18 m2-es, 1 szobás + galériás (6 m2), utcai nézet, 45,9 mFt
FIGYELEM! A jelenlegi képek látványtervek, friss, aktuális képek hamarosan!
A belmagasság 340 cm, így a galéria hasznos belmagassága kb. 130 cm lesz.
A közös költség nagyon kedvező, mindössze 330 Ft / m2.
1/1 tulajdonos, per-, teher- és igénymentes, azonnal költözhető.
Egyedi igényekre szabott lakás- és/vagy vállalkozói hitelekkel állunk rendelkezésére. Bankfüggetlen hitelcentrumunk az országban elérhető összes bank és hitelintézet ajánlatát versenyezteti az Ön számára díjmentesen. Munkatársaink nagy szakmai tapasztalattal várják Önt az előre egyeztetett időpontban akár a normál munkaidő után is.
Bővebb információért és a megtekintéssel kapcsolatban hívjon bizalommal akár hétvégén is!
Az utolsó simítások vannak csak hátra a teljes körű felújításból, aminek köszönhetően szó szerint mindent kicserélnek, csak a határoló- és teherhordó falak maradnak.
A beruházó sokadik hasonló projektje az itteni, a közelben számos referenciát tudok mutatni.
A lakások magas műszaki tartalommal, modern, fiatalos dizájnnal kerülnek átadásra. Az ár részét képezik a hűtő-fűtő klímák, a konyhabútor beépített gépészettel (főzőlap, sütő, mikró, elszívó), az összes lámpatest és rejtett hangulatvilágítás.
Az ingatlant saját részre és befektetőknek is ajánlom, hiszen tömegközlekedéssel nagyjából minden elérhető negyed órán belül, fenntartása nagyon kedvező, így könnyen kiadható.
Az ingatlanhoz ügyvédi használati megosztás készült, az ügyvédi költséget az eladó vállalja.
Jelen projekt lakásai:
1-es: 16,3 m2-es, 1 szobás + galériás (5,5 m2), udvari nézet, ELADVA!
2-es: 20 m2-es, 1 szobás + galériás (8 m2), udvari nézet, 42,9 mFt
3-as: 23 m2-es, 1 szobás + galériás (8 m2), utcai nézet, ELADVA!
4-es: 19 m2-es, 1 szobás + galériás (8 m2), utcai nézet, 45,9 mFt
5-ös: 18 m2-es, 1 szobás + galériás (6 m2), utcai nézet, 45,9 mFt
FIGYELEM! A jelenlegi képek látványtervek, friss, aktuális képek hamarosan!
A belmagasság 340 cm, így a galéria hasznos belmagassága kb. 130 cm lesz.
A közös költség nagyon kedvező, mindössze 330 Ft / m2.
1/1 tulajdonos, per-, teher- és igénymentes, azonnal költözhető.
Egyedi igényekre szabott lakás- és/vagy vállalkozói hitelekkel állunk rendelkezésére. Bankfüggetlen hitelcentrumunk az országban elérhető összes bank és hitelintézet ajánlatát versenyezteti az Ön számára díjmentesen. Munkatársaink nagy szakmai tapasztalattal várják Önt az előre egyeztetett időpontban akár a normál munkaidő után is.
Bővebb információért és a megtekintéssel kapcsolatban hívjon bizalommal akár hétvégén is!
Regisztrációs szám
H513917
Az ingatlan adatai
Értékesités
eladó
Jogi státusz
használt
Jelleg
lakás
Építési mód
tégla
Méret
18 m²
Bruttó méret
18 m²
Fűtés
elektromos fan-coil
Belmagasság
340 cm
Tájolás
Észak
Lépcsőház típusa
függőfolyosó
Állapot
Kiváló
Homlokzat állapota
Jó
Lépcsőház állapota
Jó
Környék
jó közlekedés, központi
Építés éve
1900
Fürdőszobák száma
1
Fekvés
utcai
Közös költség
5940
Víz
Van
Villany
Van
Csatorna
Van
Helyiségek
nappali-konyha
16 m²
fürdőszoba-wc
3 m²
galéria
8 m²
közlekedő
2 m²
előszoba
2 m²
Kőrösi Róbert
Hitelszakértő