51 000 000 Ft
136 000 €
- 24m²
- 2 szoba
- magasföldszint
FELÚJÍTOTT N+1 BELSŐ-ERZSÉBETVÁROSBAN
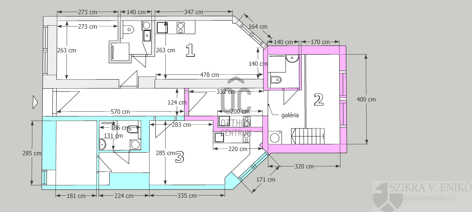
Budapest VII. kerületében, Belső_Erzsébetvárosban a Klauzál térnél, rendezett házban eladó egy magasföldszinti, 71 m2-es lakás, melyet három önálló lakássá osztottak. Jelen hirdetés tárgya az 1-es számú, 24 m2-es egység.
Az utolsó simítások vannak csak hátra a teljes körű felújításból, aminek köszönhetően szó szerint mindent kicserélnek, csak a határoló- és teherhordó falak maradnak.
A beruházó sokadik hasonló projektje az itteni, a közelben számos referenciát tudok mutatni.
A lakások magas műszaki tartalommal, modern, fiatalos dizájnnal kerülnek átadásra. Az ár részét képezik a hűtő-fűtő klímák, a konyhabútor beépített gépészettel (főzőlap, sütő, mikró, elszívó), az összes lámpatest és rejtett hangulatvilágítás.
Az ingatlant saját részre és befektetőknek is ajánlom, hiszen tömegközlekedéssel nagyjából minden elérhető negyed órán belül, fenntartása nagyon kedvező, így könnyen kiadható.
Az ingatlanhoz ügyvédi használati megosztás készült, az ügyvédi költséget az eladó vállalja.
Jelen projekt lakásai:
1 db 26 m2-es, nappali + 1 szobás, udvari nézet, 51 mFt
1 db 21 m2-es, 1 szobás + galériás (6m2), utcai nézet, 44,9 mFt
1 db 24 m2-es, nappali + 1 szobás, utcai nézet, 51 mFt
Egyben (145,9 mFt-ért) és lakásonként is megvásárolható.
A belmagasság 340 cm, így a galéria hasznos belmagassága kb. 130 cm lesz.
A közös költség nagyon kedvező, mindössze 350 Ft / m2.
1/1 tulajdonos, per-, teher- és igénymentes, azonnal költözhető.
Egyedi igényekre szabott lakás- és/vagy vállalkozói hitelekkel állunk rendelkezésére. Bankfüggetlen hitelcentrumunk az országban elérhető összes bank és hitelintézet ajánlatát versenyezteti az Ön számára díjmentesen. Munkatársaink nagy szakmai tapasztalattal várják Önt az előre egyeztetett időpontban akár a normál munkaidő után is.
Bővebb információért és a megtekintéssel kapcsolatban hívjon bizalommal akár hétvégén is!
Az utolsó simítások vannak csak hátra a teljes körű felújításból, aminek köszönhetően szó szerint mindent kicserélnek, csak a határoló- és teherhordó falak maradnak.
A beruházó sokadik hasonló projektje az itteni, a közelben számos referenciát tudok mutatni.
A lakások magas műszaki tartalommal, modern, fiatalos dizájnnal kerülnek átadásra. Az ár részét képezik a hűtő-fűtő klímák, a konyhabútor beépített gépészettel (főzőlap, sütő, mikró, elszívó), az összes lámpatest és rejtett hangulatvilágítás.
Az ingatlant saját részre és befektetőknek is ajánlom, hiszen tömegközlekedéssel nagyjából minden elérhető negyed órán belül, fenntartása nagyon kedvező, így könnyen kiadható.
Az ingatlanhoz ügyvédi használati megosztás készült, az ügyvédi költséget az eladó vállalja.
Jelen projekt lakásai:
1 db 26 m2-es, nappali + 1 szobás, udvari nézet, 51 mFt
1 db 21 m2-es, 1 szobás + galériás (6m2), utcai nézet, 44,9 mFt
1 db 24 m2-es, nappali + 1 szobás, utcai nézet, 51 mFt
Egyben (145,9 mFt-ért) és lakásonként is megvásárolható.
A belmagasság 340 cm, így a galéria hasznos belmagassága kb. 130 cm lesz.
A közös költség nagyon kedvező, mindössze 350 Ft / m2.
1/1 tulajdonos, per-, teher- és igénymentes, azonnal költözhető.
Egyedi igényekre szabott lakás- és/vagy vállalkozói hitelekkel állunk rendelkezésére. Bankfüggetlen hitelcentrumunk az országban elérhető összes bank és hitelintézet ajánlatát versenyezteti az Ön számára díjmentesen. Munkatársaink nagy szakmai tapasztalattal várják Önt az előre egyeztetett időpontban akár a normál munkaidő után is.
Bővebb információért és a megtekintéssel kapcsolatban hívjon bizalommal akár hétvégén is!
Regisztrációs szám
H513770
Az ingatlan adatai
Értékesités
eladó
Jogi státusz
használt
Jelleg
lakás
Építési mód
tégla
Méret
24 m²
Bruttó méret
24 m²
Fűtés
elektromos fan-coil
Belmagasság
340 cm
Tájolás
Dél-kelet
Lépcsőház típusa
függőfolyosó
Állapot
Kiváló
Homlokzat állapota
Jó
Lépcsőház állapota
Jó
Környék
csendes, jó közlekedés, központi
Építés éve
1900
Fürdőszobák száma
1
Fekvés
utcai
Közös költség
8400
Víz
Van
Villany
Van
Csatorna
Van
Lift
van
Helyiségek
nappali-konyha
13 m²
szoba
5.5 m²
fürdőszoba-wc
2.5 m²
Kőrösi Róbert
Hitelszakértő