Elérhető Otthon Start hitellel
Eladó családi ház,
H512011
Törökbálint
81 900 000 Ft
216 000 €
- 160m²
- 4 szoba
Classic home in the middle of Törökbálint
In the heart of Törökbálint, in a family-friendly neighborhood, we offer for sale this renovatable house with a floor area of 160 square meters, which provides an ideal home for families.
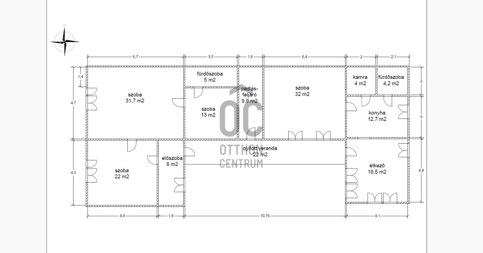
The property, situated on a 900 square meter plot, has expansion possibilities, making it easily adaptable to future needs. The property features two easily connectable living areas, making the house suitable for multi-generational living. The house includes a 22 square meter open veranda, which is excellent for hosting family and friends gatherings.
The large garden offers opportunities for outdoor relaxation, children's play, and living with pets. The neighborhood has excellent amenities, and due to its central location, shopping options, healthcare facilities, educational institutions, and central administrative offices are within walking distance. The excellent transportation options allow us to reach the Budapest Etele Square transport hub in a maximum of 20 minutes, regardless of traffic conditions. The friendly neighborhood creates an ideal environment for families with children. The advantages of Törökbálint's popular area cannot be overstated. Nearby green spaces and parks offer the opportunity to enjoy the closeness to nature, whether it's for a family picnic or a peaceful walk.
Discover the unparalleled opportunities of the Csok Plus program, the Otthon Start (fixed, 3% interest), and the unique market interest loans from Otthon Centrum! We are at our clients' disposal with comprehensive loan and legal advice and processing. Just point to the property, and we will take care of the rest!
I am available for any further questions by phone (the number does not accept SMS), email, and of course, in person!
The property, situated on a 900 square meter plot, has expansion possibilities, making it easily adaptable to future needs. The property features two easily connectable living areas, making the house suitable for multi-generational living. The house includes a 22 square meter open veranda, which is excellent for hosting family and friends gatherings.
The large garden offers opportunities for outdoor relaxation, children's play, and living with pets. The neighborhood has excellent amenities, and due to its central location, shopping options, healthcare facilities, educational institutions, and central administrative offices are within walking distance. The excellent transportation options allow us to reach the Budapest Etele Square transport hub in a maximum of 20 minutes, regardless of traffic conditions. The friendly neighborhood creates an ideal environment for families with children. The advantages of Törökbálint's popular area cannot be overstated. Nearby green spaces and parks offer the opportunity to enjoy the closeness to nature, whether it's for a family picnic or a peaceful walk.
Discover the unparalleled opportunities of the Csok Plus program, the Otthon Start (fixed, 3% interest), and the unique market interest loans from Otthon Centrum! We are at our clients' disposal with comprehensive loan and legal advice and processing. Just point to the property, and we will take care of the rest!
I am available for any further questions by phone (the number does not accept SMS), email, and of course, in person!
Regisztrációs szám
H512011
Az ingatlan adatai
Értékesités
eladó
Jogi státusz
használt
Jelleg
ház
Építési mód
kő
Méret
160 m²
Bruttó méret
175 m²
Telek méret
900 m²
Terasz / erkély mérete
22 m²
Fűtés
Gáz cirkó
Belmagasság
300 cm
Tájolás
Nyugat
Panoráma
Egyéb
Állapot
Felújítandó
Homlokzat állapota
Átlagos
Pince
Önálló
Környék
csendes, jó közlekedés, zöld, központi
Építés éve
1950
Fürdőszobák száma
2
Garázs
Benne van az árban
Garázs férőhely
2
Víz
Van
Gáz
Van
Villany
Van
Csatorna
Van
Többgenerációs
igen
Tároló
Önálló
Helyiségek
szoba
32 m²
szoba
32 m²
szoba
22 m²
szoba
13 m²
előszoba
8 m²
fürdőszoba-wc
5 m²
fürdőszoba-wc
5 m²
konyha
13 m²
ebédlő
20 m²
kamra
4 m²
közlekedő
10 m²