226 800 000 Ft
598 000 €
- 126,2m²
- 4 szoba
- 1. emelet
Prémium minőségű újépítésű lakások Péterhegyen modern építészet, zöldtetők, kivételes terek
Budapest XI. kerületének egyik legkedveltebb, csendes és zöldövezeti részén, Péterhegyen épül ez a magas műszaki tartalommal rendelkező, elegáns négylakásos társasház.
A projekt azok számára készült, akik a modern építészetet, az időtálló szerkezeteket és a nagyvonalú, napfényes tereket keresik nyugodt környezetben, mégis remek közlekedéssel és infrastruktúrával.
A 2026 IV. negyedévben átadásra kerülő épületben 3 különböző lakástípus érhető el, melyek közül mindenki megtalálja az élethelyzetéhez és igényeihez leginkább illőt.
A társasház építészeti megjelenését a modern, letisztult formák és a zöldtetők eleganciája határozza meg.
A szerkezet minden eleme a hosszú távú stabilitást és energiahatékonyságot szolgálja:
Szerkezet és szigetelés
- Monolit vasbeton alapok
- Porotherm 30 K téglafalak
- Monolit vasbeton födémek
- Zöldtető és titáncink lemez héjalás
- Homlokzati hőszigetelés: 5 cm grafitos EPS + Heraklith
- Erkélyek: hő- és hanghídmegszakított vb. szerkezet, csúszásmentes kerámiaburkolattal
- Nyílászárók: 3 rétegű üveg, hőhídmentes redőnytokkal
Gépészet és komfort
- Központi levegővíz hőszivattyú fűtésre és hűtésre
- HMV ellátás: hőszivattyúról
- Padlófűtés + igény szerint kiegészítő fűtés a fürdőkben
- Modern PVC/KG-PVC csatornarendszer
- Mindhárom lakásban prémium szaniterek
Elektromos rendszer
- Háromfázis lakásonként, bővíthető kapacitás
- Automata, távvezérlésű kapuk
- Kaputelefon távnyitó funkcióval
- Legrand Valena szerelvénycsalád
- Teljes értékű villámvédelem
- Belsőépítészeti alapfelszereltség
A kivitelezés része a minőségi burkolat- és szanitercsomag, amely igény szerint módosítható:
- Laminált parketta: 6 000 Ft/m²
- Hideg burkolatok: 6 000 Ft/m²
- Prémium beltéri ajtók
- Fürdőszobai felszerelések (kád, zuhany, mosdók, WC-k)
A társasház nyugodt, kertvárosias utcában épül, ahol a természet és a nagyváros előnyei egyensúlyban vannak:
- Gyors közlekedés az M1-M7-M0 csomópont felé
- Kelenföldi pályaudvar és metró pár perc alatt elérhető
- Iskolák, óvodák, bevásárlóközpontok a közelben
- Rendezett, családias lakókörnyezet, sok zöldterület
A környék ideális mindazok számára, akik csendes, biztonságos, értékálló helyszínt keresnek Budapest egyik legjobb budai kerületében.
Miért különleges ez a projekt?
*Zöldtetős, magas műszaki tartalmú épület
*Kizárólag 4 lakás exkluzív, csendes lakóközösség
*Energiatakarékos, modern gépészeti rendszer
*Ideális elrendezések 3-4 szobával
*Nagy erkélyek, teraszok, penthouse jellegű tetőkert
*Tágas garázs és praktikus tárolók
*Tökéletes lokáció a XI. kerületben
Budapest XI. kerületének egyik legkedveltebb, csendes és zöldövezeti részén, Péterhegyen épül ez a magas műszaki tartalommal rendelkező, elegáns négylakásos társasház.
A projekt azok számára készült, akik a modern építészetet, az időtálló szerkezeteket és a nagyvonalú, napfényes tereket keresik nyugodt környezetben, mégis remek közlekedéssel és infrastruktúrával.
A 2026 IV. negyedévben átadásra kerülő épületben 3 különböző lakástípus érhető el, melyek közül mindenki megtalálja az élethelyzetéhez és igényeihez leginkább illőt.
A társasház építészeti megjelenését a modern, letisztult formák és a zöldtetők eleganciája határozza meg.
A szerkezet minden eleme a hosszú távú stabilitást és energiahatékonyságot szolgálja:
Szerkezet és szigetelés
- Monolit vasbeton alapok
- Porotherm 30 K téglafalak
- Monolit vasbeton födémek
- Zöldtető és titáncink lemez héjalás
- Homlokzati hőszigetelés: 5 cm grafitos EPS + Heraklith
- Erkélyek: hő- és hanghídmegszakított vb. szerkezet, csúszásmentes kerámiaburkolattal
- Nyílászárók: 3 rétegű üveg, hőhídmentes redőnytokkal
Gépészet és komfort
- Központi levegővíz hőszivattyú fűtésre és hűtésre
- HMV ellátás: hőszivattyúról
- Padlófűtés + igény szerint kiegészítő fűtés a fürdőkben
- Modern PVC/KG-PVC csatornarendszer
- Mindhárom lakásban prémium szaniterek
Elektromos rendszer
- Háromfázis lakásonként, bővíthető kapacitás
- Automata, távvezérlésű kapuk
- Kaputelefon távnyitó funkcióval
- Legrand Valena szerelvénycsalád
- Teljes értékű villámvédelem
- Belsőépítészeti alapfelszereltség
A kivitelezés része a minőségi burkolat- és szanitercsomag, amely igény szerint módosítható:
- Laminált parketta: 6 000 Ft/m²
- Hideg burkolatok: 6 000 Ft/m²
- Prémium beltéri ajtók
- Fürdőszobai felszerelések (kád, zuhany, mosdók, WC-k)
A társasház nyugodt, kertvárosias utcában épül, ahol a természet és a nagyváros előnyei egyensúlyban vannak:
- Gyors közlekedés az M1-M7-M0 csomópont felé
- Kelenföldi pályaudvar és metró pár perc alatt elérhető
- Iskolák, óvodák, bevásárlóközpontok a közelben
- Rendezett, családias lakókörnyezet, sok zöldterület
A környék ideális mindazok számára, akik csendes, biztonságos, értékálló helyszínt keresnek Budapest egyik legjobb budai kerületében.
Miért különleges ez a projekt?
*Zöldtetős, magas műszaki tartalmú épület
*Kizárólag 4 lakás exkluzív, csendes lakóközösség
*Energiatakarékos, modern gépészeti rendszer
*Ideális elrendezések 3-4 szobával
*Nagy erkélyek, teraszok, penthouse jellegű tetőkert
*Tágas garázs és praktikus tárolók
*Tökéletes lokáció a XI. kerületben
Regisztrációs szám
DLK088304
Az ingatlan adatai
Értékesités
eladó
Jogi státusz
új
Jelleg
lakás
Építési mód
tégla
Méret
126,2 m²
Bruttó méret
126,2 m²
Fűtés
egyéb
Belmagasság
267 cm
Lakáson belüli szintszám
1
Tájolás
Észak-kelet
Lépcsőház típusa
zárt lépcsőház
Állapot
Jó
Homlokzat állapota
Jó
Építés éve
2026
Fürdőszobák száma
1
Fekvés
udvari
Kertkapcsolatos
igen
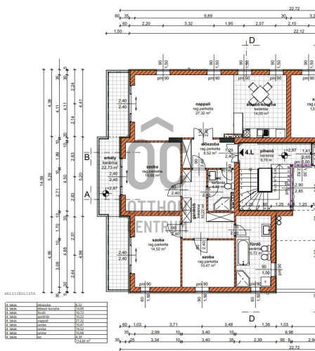
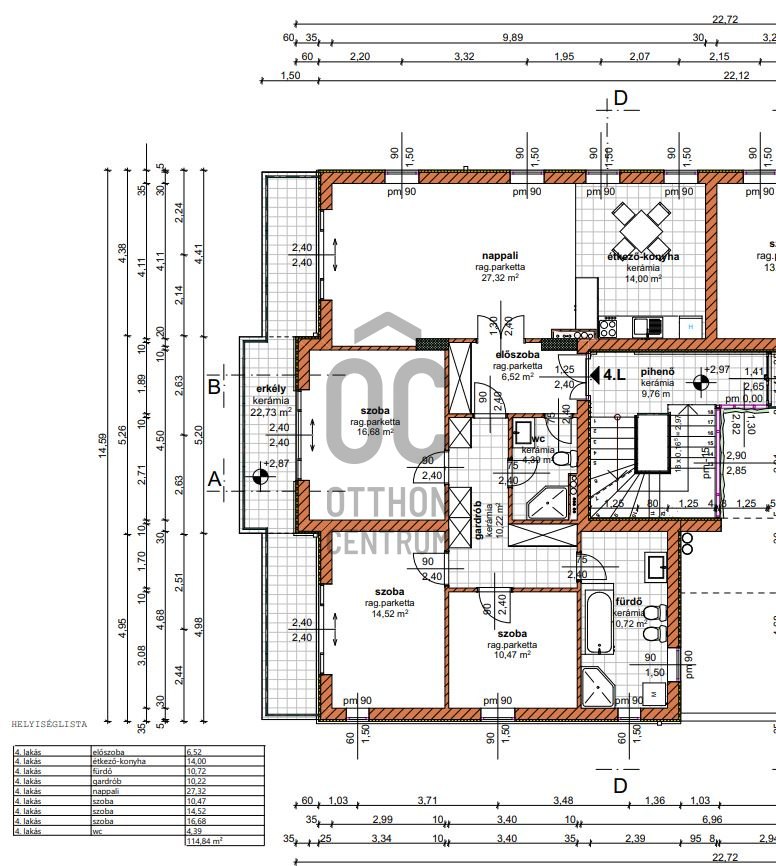
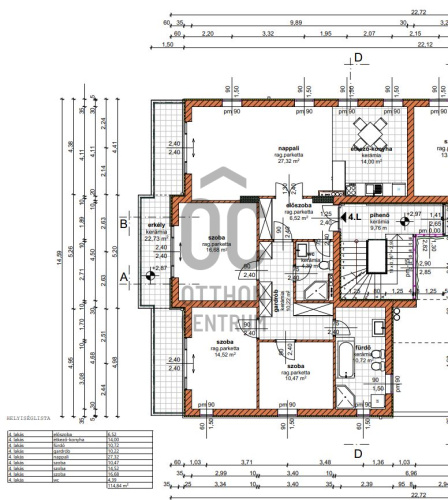
Helyiségek
előszoba
6.52 m²
konyha-étkező
14 m²
fürdőszoba-wc
10.72 m²
gardrób
10.22 m²
nappali
27.32 m²
szoba
10.47 m²
szoba
14.52 m²
szoba
16.68 m²
wc
4.39 m²
erkély
22.73 m²