Elérhető Otthon Start hitellel
Eladó lakás,
H510006
Budapest XXII. kerület, Nagytétény
62 900 000 Ft
168 000 €
- 55m²
- 2 szoba
- 2. emelet
Világos, jó elrendezésű lakás remek lehetőségekkel!
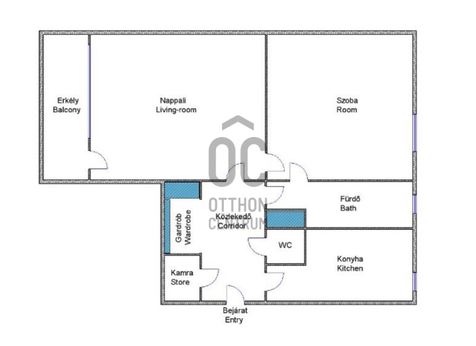
Eladásra kínálunk Nagytétényben egy 55 m²-es, erkélyes lakást, jó elrendezéssel és kedvező adottságokkal.
A ház rendezett, karbantartott, közepes állapotú, a lépcsőház tiszta.
Az erkély a nappaliból nyílik, tökéletes hely egy kávéhoz vagy pihenéshez. Nagyon jó adottságú, igény szerint könnyen otthonossá alakítható.
A lakás világos, jól tagolt, jó szerkezeti alapokkal rendelkező ingatlan, amely állapotából adódóan kiváló lehetőséget kínál az új tulajdonosnak, hogy saját ízlése szerint modern, otthonos életteret alakítson ki.
A nappali északnyugati, a hálószoba délkeleti tájolású, így a lakás egész nap természetes fényben fürdik.
A tágas, kádas fürdőszoba két bejárattal is megközelíthető (az előszobából és a hálóból), ami kényelmes és praktikus megoldás, a WC külön helyiségben van. A helyiségekhez látványtervek is készültek, amelyek segítenek könnyen elképzelni az új otthon leendő hangulatát és kialakítását.
Az ablakok korszerű műanyag nyílászárók, a fűtés konvektoros, a közös költség mindössze 15.900 Ft, és a lakáshoz közös tároló is tartozik.
Közlekedés szempontjából is kedvező elhelyezkedésű:
33, 133E és 973-as buszjáratok, valamint a Barosstelep és Kastélypark vasútállomások a közelben.
A parkolás ingyenes.
Az ingatlan per- és tehermentes, megfelel az Otthon Start feltételeinek, és hosszú távú kiadásra is kiváló befektetési lehetőséget kínál.
Eladásra kínálunk Nagytétényben egy 55 m²-es, erkélyes lakást, jó elrendezéssel és kedvező adottságokkal.
A ház rendezett, karbantartott, közepes állapotú, a lépcsőház tiszta.
Az erkély a nappaliból nyílik, tökéletes hely egy kávéhoz vagy pihenéshez. Nagyon jó adottságú, igény szerint könnyen otthonossá alakítható.
A lakás világos, jól tagolt, jó szerkezeti alapokkal rendelkező ingatlan, amely állapotából adódóan kiváló lehetőséget kínál az új tulajdonosnak, hogy saját ízlése szerint modern, otthonos életteret alakítson ki.
A nappali északnyugati, a hálószoba délkeleti tájolású, így a lakás egész nap természetes fényben fürdik.
A tágas, kádas fürdőszoba két bejárattal is megközelíthető (az előszobából és a hálóból), ami kényelmes és praktikus megoldás, a WC külön helyiségben van. A helyiségekhez látványtervek is készültek, amelyek segítenek könnyen elképzelni az új otthon leendő hangulatát és kialakítását.
Az ablakok korszerű műanyag nyílászárók, a fűtés konvektoros, a közös költség mindössze 15.900 Ft, és a lakáshoz közös tároló is tartozik.
Közlekedés szempontjából is kedvező elhelyezkedésű:
33, 133E és 973-as buszjáratok, valamint a Barosstelep és Kastélypark vasútállomások a közelben.
A parkolás ingyenes.
Az ingatlan per- és tehermentes, megfelel az Otthon Start feltételeinek, és hosszú távú kiadásra is kiváló befektetési lehetőséget kínál.
Regisztrációs szám
H510006
Az ingatlan adatai
Értékesités
eladó
Jogi státusz
használt
Jelleg
lakás
Építési mód
csúsztatott zsalus
Méret
55 m²
Bruttó méret
55 m²
Terasz / erkély mérete
4 m²
Fűtés
gázkonvektor
Belmagasság
270 cm
Tájolás
Dél-kelet
Lépcsőház típusa
zárt lépcsőház
Állapot
Átlagos
Homlokzat állapota
Átlagos
Lépcsőház állapota
Átlagos
Környék
jó közlekedés
Építés éve
1978
Fürdőszobák száma
1
Fekvés
utcai
Közös költség
15899
Víz
Van
Gáz
Van
Villany
Van
Csatorna
Van
Tároló
Közös
Vízpart távolsága
több mint 500 méterre
Helyiségek
nappali
21 m²
hálószoba
12.5 m²
előszoba
5 m²
fürdőszoba
5 m²
wc
1 m²
konyha
7 m²
erkély
4 m²
kamra
1 m²
Pongó Miklós
Hitelszakértő