299 000 000 Ft
779 000 €
- 289,5m²
- 4 szoba
In Diósdliget, this LUXURY FAMILY HOUSE is waiting for you in the Árpádház Residential Park!
In Diósdliget, a truly special LUXURY family home awaits its new owner in the Árpádház residential park!
Architecturally unique solutions, a clean design, and spacious, bright areas characterize this home built in 2019, featuring large glass surfaces that provide a stunning panorama for the comfort of its new owner. It is an ideal choice for those who desire a modern and luxurious home. This family house is not just a place to live; it represents a lifestyle where the proximity of the city meets the harmony of nature.
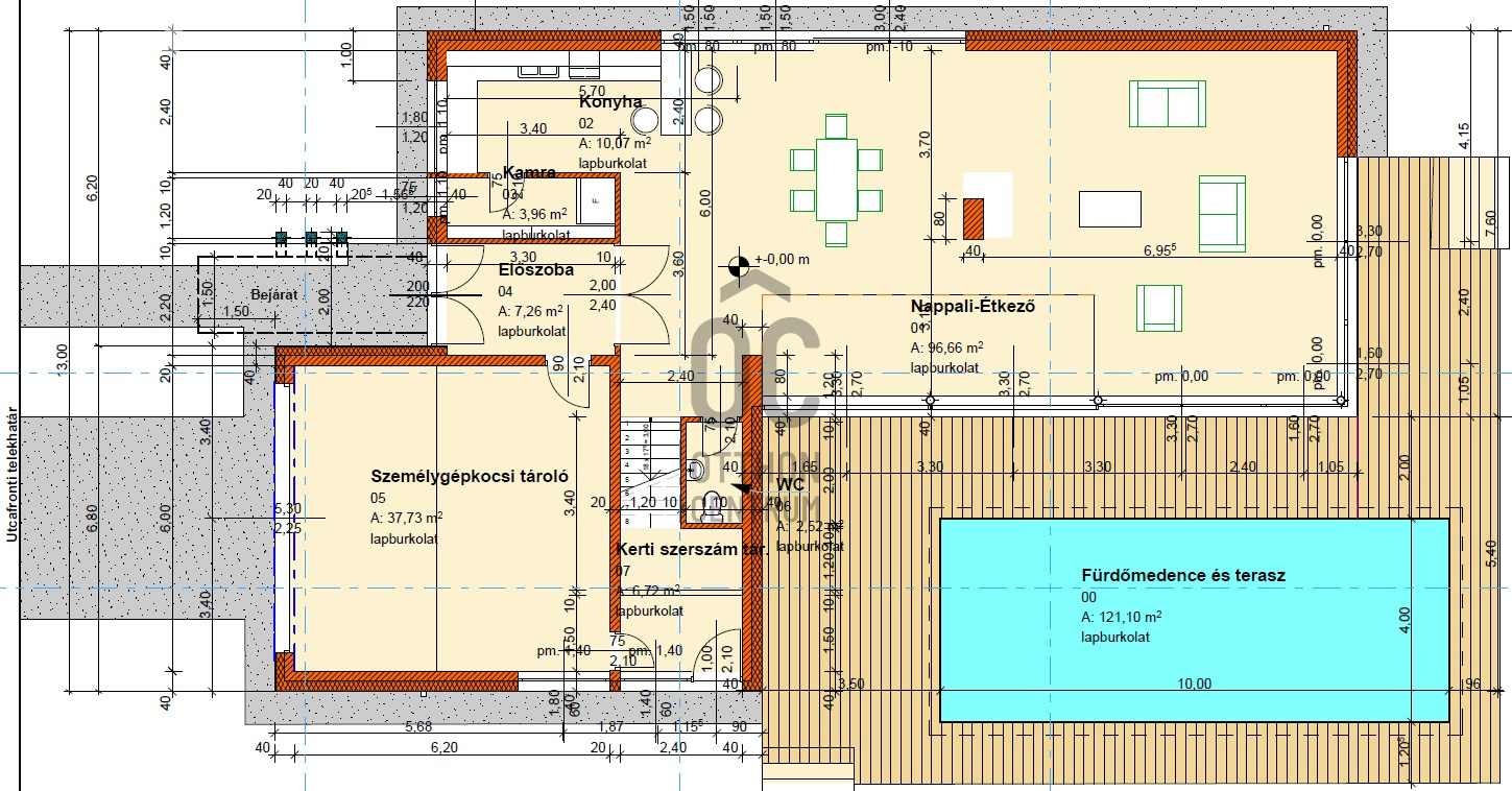
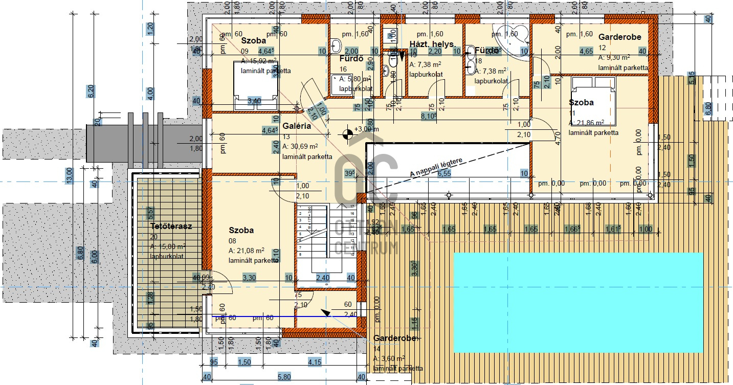
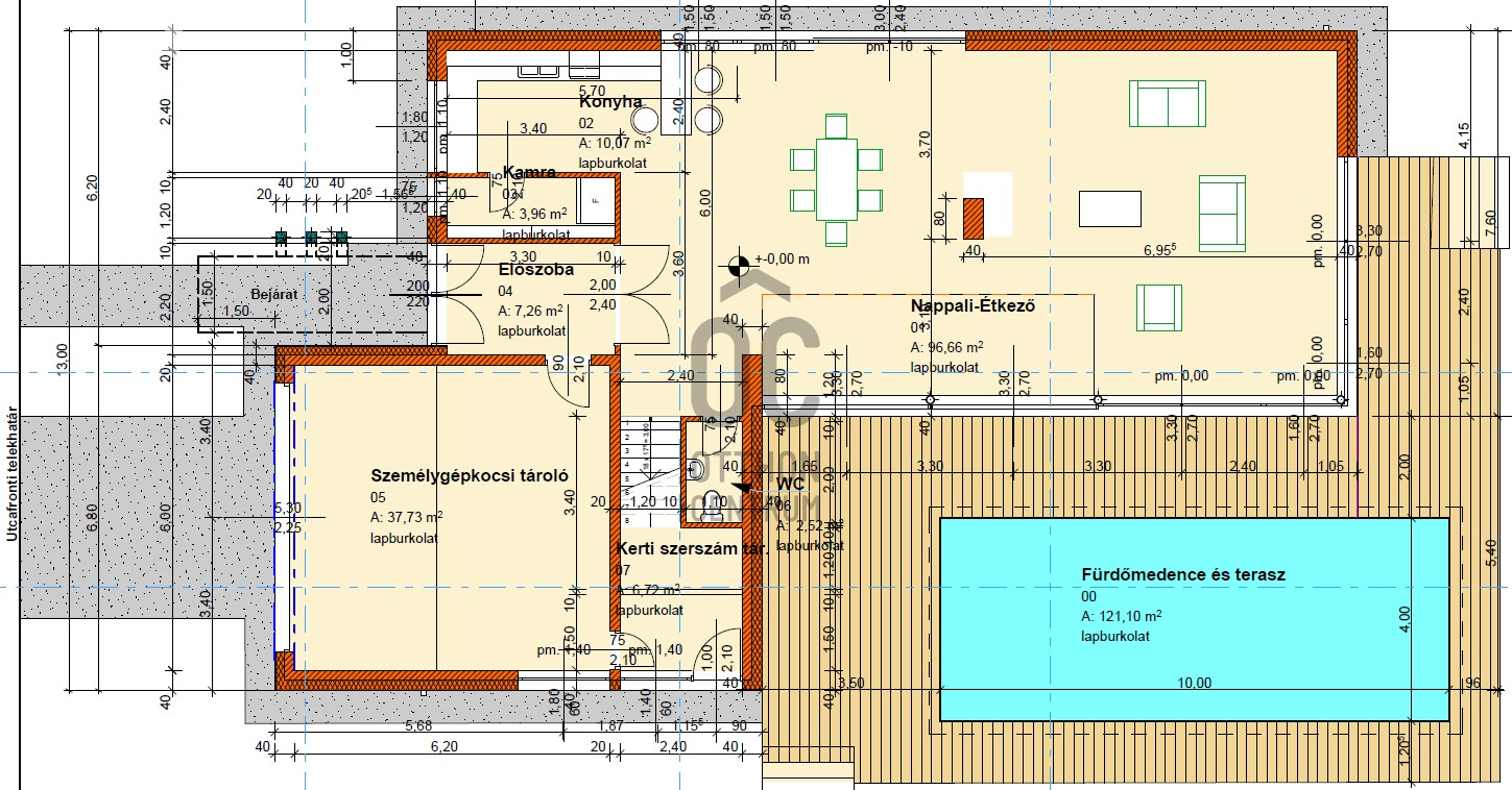
The property spans two levels with a floor area of 290 square meters, while the plot size is 973 square meters, offering an extraordinary panorama. This provides ample space for family life and relaxation.
The house includes four spacious rooms and two bathrooms for comfort, ensuring that family members always have enough space for their daily routines. The 15.8 square meter terrace attached to one of the rooms is the perfect spot for enjoying morning coffee or hosting friends, with a wonderful view of the surrounding landscape.
The property is in excellent condition, featuring modern heating and cooling solutions, including air conditioning that ensures a pleasant temperature in any season. Additionally, the house includes two garage spaces, providing secure storage for vehicles.
Technical specifications:
- 20 cm graphite exterior thermal insulation
- Monolithic reinforced concrete ceiling
– spacious, continuous interior spaces
- Premium, 83 mm, passive house-certified, triple-glazed, soft-metal coated windows
- Security window fittings, lift-slide door to the ground floor terrace
- Premium quality Bramac roof tiles - Electric underfloor heating, individually controllable, integrable into a smart home system
- Air-conditioned rooms
- Premium, modern, fully equipped kitchen (with Electrolux appliances, pantry connection)
- AA+ energy rating
- Alarm and external camera system, controllable via an app
- Video intercom
- Landscaped garden with an automatic irrigation system
- Electric garden and garage gate, garage door for a two-car garage measuring 5.4 meters wide
- TV and internet outlets in every room
- Lighting: energy-efficient LED panels, as well as adjustable color and brightness LED mold lighting
- 1×40A + 2×25A current strength
The neighborhood is safe and quiet, providing an ideal environment for young adults who appreciate the benefits of a peaceful lifestyle while still being close to the city. Diósd has excellent transportation options, making the capital easily accessible by car and public transport. The M0, M1, and M7 highways are just minutes away, allowing for easy access to downtown Budapest. The shopping centers of Budaörs and Törökbálint are also reachable within minutes, as is the Campona Shopping Center.
In addition to shopping opportunities, schools and kindergartens are nearby, and a bus stop can be reached within a few minutes' walk, making this house an ideal choice for those seeking the tranquility of suburban life while being close to the capital.
This property is not just a new residence but an opportunity to become part of a community where young adults can actively participate in local life.
The real estate market is changing dynamically, and this exceptional offer will not remain available for long. If you feel that this house could be your new home, do not hesitate to reach out with your questions or to schedule a viewing at any time during the week!
Architecturally unique solutions, a clean design, and spacious, bright areas characterize this home built in 2019, featuring large glass surfaces that provide a stunning panorama for the comfort of its new owner. It is an ideal choice for those who desire a modern and luxurious home. This family house is not just a place to live; it represents a lifestyle where the proximity of the city meets the harmony of nature.
The property spans two levels with a floor area of 290 square meters, while the plot size is 973 square meters, offering an extraordinary panorama. This provides ample space for family life and relaxation.
The house includes four spacious rooms and two bathrooms for comfort, ensuring that family members always have enough space for their daily routines. The 15.8 square meter terrace attached to one of the rooms is the perfect spot for enjoying morning coffee or hosting friends, with a wonderful view of the surrounding landscape.
The property is in excellent condition, featuring modern heating and cooling solutions, including air conditioning that ensures a pleasant temperature in any season. Additionally, the house includes two garage spaces, providing secure storage for vehicles.
Technical specifications:
- 20 cm graphite exterior thermal insulation
- Monolithic reinforced concrete ceiling
– spacious, continuous interior spaces
- Premium, 83 mm, passive house-certified, triple-glazed, soft-metal coated windows
- Security window fittings, lift-slide door to the ground floor terrace
- Premium quality Bramac roof tiles - Electric underfloor heating, individually controllable, integrable into a smart home system
- Air-conditioned rooms
- Premium, modern, fully equipped kitchen (with Electrolux appliances, pantry connection)
- AA+ energy rating
- Alarm and external camera system, controllable via an app
- Video intercom
- Landscaped garden with an automatic irrigation system
- Electric garden and garage gate, garage door for a two-car garage measuring 5.4 meters wide
- TV and internet outlets in every room
- Lighting: energy-efficient LED panels, as well as adjustable color and brightness LED mold lighting
- 1×40A + 2×25A current strength
The neighborhood is safe and quiet, providing an ideal environment for young adults who appreciate the benefits of a peaceful lifestyle while still being close to the city. Diósd has excellent transportation options, making the capital easily accessible by car and public transport. The M0, M1, and M7 highways are just minutes away, allowing for easy access to downtown Budapest. The shopping centers of Budaörs and Törökbálint are also reachable within minutes, as is the Campona Shopping Center.
In addition to shopping opportunities, schools and kindergartens are nearby, and a bus stop can be reached within a few minutes' walk, making this house an ideal choice for those seeking the tranquility of suburban life while being close to the capital.
This property is not just a new residence but an opportunity to become part of a community where young adults can actively participate in local life.
The real estate market is changing dynamically, and this exceptional offer will not remain available for long. If you feel that this house could be your new home, do not hesitate to reach out with your questions or to schedule a viewing at any time during the week!
Regisztrációs szám
H509997
Az ingatlan adatai
Értékesités
eladó
Jogi státusz
használt
Jelleg
ház
Építési mód
tégla
Méret
289,5 m²
Bruttó méret
320 m²
Telek méret
973 m²
Terasz / erkély mérete
15,8 m²
Fűtés
egyéb
Belmagasság
258 cm
Lakáson belüli szintszám
2
Tájolás
Dél-nyugat
Panoráma
városi panoráma
Állapot
Kiváló
Homlokzat állapota
Kiváló
Környék
csendes
Építés éve
2019
Fürdőszobák száma
2
Garázs
Benne van az árban
Garázs férőhely
2
Víz
Van
Gáz
Utcán
Villany
Van
Csatorna
Van
Tároló
Önálló
Helyiségek
nappali-étkező
96.66 m²
konyha
10.07 m²
előszoba
7.26 m²
wc
2.52 m²
kamra
3.96 m²
garázs
37.73 m²
kamra
6.72 m²
galéria
30.96 m²
szoba
21.86 m²
szoba
21.08 m²
szoba
15.92 m²
fürdőszoba-wc
7.38 m²
fürdőszoba
5.8 m²
mosókonyha
7.38 m²
tetőterasz
15.8 m²
Horváth Eleonóra
Hitelszakértő