Elérhető Otthon Start hitellel
Eladó újépítésű ikerház,
H510918
Budapest X. kerület, Újhegy
145 000 000 Ft
383 000 €
- 122m²
- 4 szoba
Modern, újépítésű kétszintes ikerház Budapest X. kerületének egyik legkedveltebb környékén!
Exkluzív lehetőség azok számára, akik minőségi, XXI. századi otthont keresnek a belvároshoz közel, mégis egy nyugodt, családias környezetben.
A csendes mellékutcában elhelyezkedő, prémium műszaki tartalommal rendelkező ikerház minden igényt kielégít – a modern életstílus jegyében.
Kiemelkedő adottságok és átgondolt tervezés
Az ingatlan a legmodernebb műszaki elvárások szerint készül, kiváló minőségű anyagok és prémium gépészeti megoldások alkalmazásával. A telek adottságai maximálisan kihasználásra kerültek, így egy esztétikus, funkcionális és hosszú távon értékálló családi otthon születik.
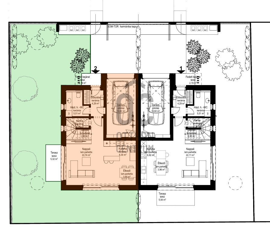
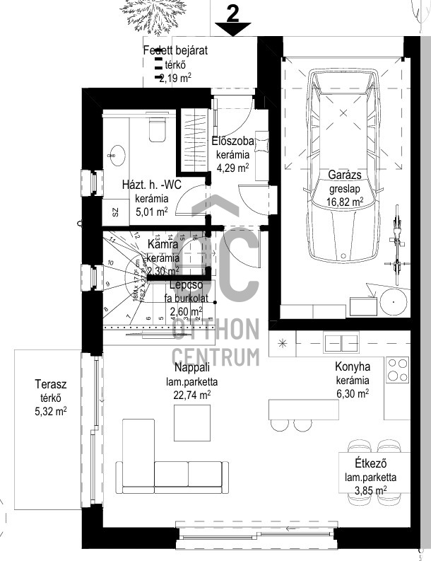
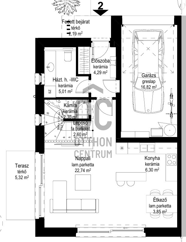
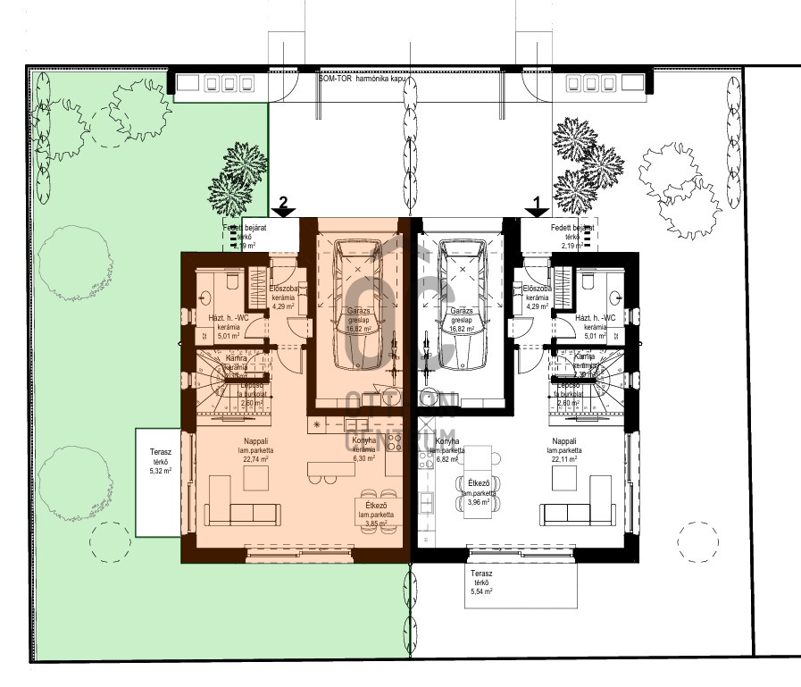
A hasznos alapterület 122 m², két szinten:
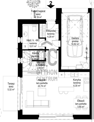
Földszint:
- Tágas, 33 m²-es amerikai konyhás nappali, közvetlen teraszkapcsolattal és kerttel
- Zuhanyzó + WC
- Háztartási helyiség
- Nagyméretű, fedett garázs – akár nagyobb autó számára is ideális
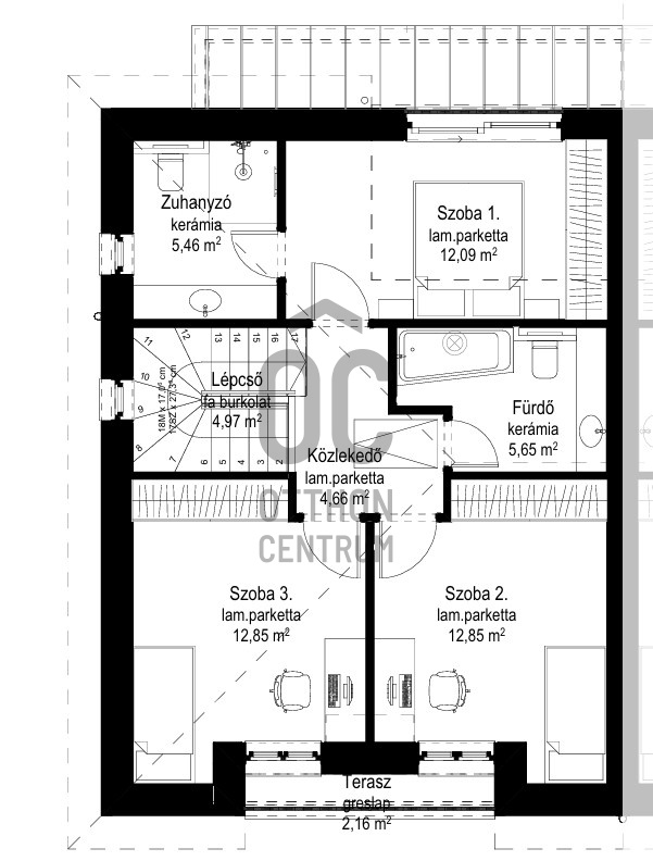
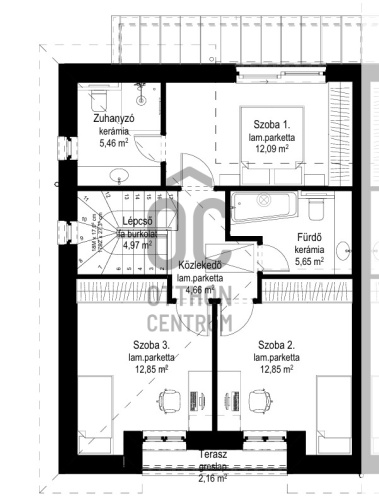
Emelet
- 3 kényelmes hálószoba
- 2 modern fürdőszoba
A házhoz tartozó 231 m²-es privát kert igazi oázis, mely teljes intimitást biztosít, így tökéletes lehet családoknak, pihenéshez vagy akár kertészkedéshez is.
Prémium műszaki tartalom
- 30 cm Porotherm főfalak
- 3 rétegű, hőszigetelt műanyag nyílászárók
- Monolit vasbeton födém
- Terrán Zenit Max Carbon tetőcserép
- 15 cm homlokzati hőszigetelés, korszerű energetikai besorolással
- Hőszivattyús rendszer, mennyezeti fűtés-hűtés
- Minőségi burkolatok, térkövezett udvar
Extrák, amelyek valódi kényelmet adnak
- Okosotthon rendszer
- Elektromos redőnyök
- Kamera- és riasztórendszer előkészítés
- Videókaputelefon
- Elektromos kapu
- Öntözőrendszer
- Elektromos autótöltő kiépítése
- WPC kerítés
-Rejtett- és udvarvilágítás
- Teljes digitális átláthatóság az építkezés során
A PlanRadar rendszernek köszönhetően Ön:
- Valós időben követheti az építkezés minden lépését
- Kéthetente részletes, fotókkal ellátott jelentést kap
- A projekt végén minden dokumentumot digitálisan átvehet egy biztonságos felületen
Finanszírozás
Az ingatlan hitelre is megvásárolható, ügyfeleink számára díjmentes hitelügyintézéssel, minden hazai bank kínálatából.
Állami támogatások is igénybe vehetők!
Várható átadás: 2026. III. negyedév
Ne maradjon le!
Ilyen színvonalú, modern és biztonságos otthon ritkán kerül a piacra. Kiváló választás családoknak, pároknak és mindenkinek, aki igényes, hosszú távon értékálló ingatlant keres.
Forduljon hozzám bizalommal a hét bármely napján!
A csendes mellékutcában elhelyezkedő, prémium műszaki tartalommal rendelkező ikerház minden igényt kielégít – a modern életstílus jegyében.
Kiemelkedő adottságok és átgondolt tervezés
Az ingatlan a legmodernebb műszaki elvárások szerint készül, kiváló minőségű anyagok és prémium gépészeti megoldások alkalmazásával. A telek adottságai maximálisan kihasználásra kerültek, így egy esztétikus, funkcionális és hosszú távon értékálló családi otthon születik.
A hasznos alapterület 122 m², két szinten:
Földszint:
- Tágas, 33 m²-es amerikai konyhás nappali, közvetlen teraszkapcsolattal és kerttel
- Zuhanyzó + WC
- Háztartási helyiség
- Nagyméretű, fedett garázs – akár nagyobb autó számára is ideális
Emelet
- 3 kényelmes hálószoba
- 2 modern fürdőszoba
A házhoz tartozó 231 m²-es privát kert igazi oázis, mely teljes intimitást biztosít, így tökéletes lehet családoknak, pihenéshez vagy akár kertészkedéshez is.
Prémium műszaki tartalom
- 30 cm Porotherm főfalak
- 3 rétegű, hőszigetelt műanyag nyílászárók
- Monolit vasbeton födém
- Terrán Zenit Max Carbon tetőcserép
- 15 cm homlokzati hőszigetelés, korszerű energetikai besorolással
- Hőszivattyús rendszer, mennyezeti fűtés-hűtés
- Minőségi burkolatok, térkövezett udvar
Extrák, amelyek valódi kényelmet adnak
- Okosotthon rendszer
- Elektromos redőnyök
- Kamera- és riasztórendszer előkészítés
- Videókaputelefon
- Elektromos kapu
- Öntözőrendszer
- Elektromos autótöltő kiépítése
- WPC kerítés
-Rejtett- és udvarvilágítás
- Teljes digitális átláthatóság az építkezés során
A PlanRadar rendszernek köszönhetően Ön:
- Valós időben követheti az építkezés minden lépését
- Kéthetente részletes, fotókkal ellátott jelentést kap
- A projekt végén minden dokumentumot digitálisan átvehet egy biztonságos felületen
Finanszírozás
Az ingatlan hitelre is megvásárolható, ügyfeleink számára díjmentes hitelügyintézéssel, minden hazai bank kínálatából.
Állami támogatások is igénybe vehetők!
Várható átadás: 2026. III. negyedév
Ne maradjon le!
Ilyen színvonalú, modern és biztonságos otthon ritkán kerül a piacra. Kiváló választás családoknak, pároknak és mindenkinek, aki igényes, hosszú távon értékálló ingatlant keres.
Forduljon hozzám bizalommal a hét bármely napján!
Regisztrációs szám
H510918
Az ingatlan adatai
Értékesités
eladó
Jogi státusz
új
Jelleg
ház
Építési mód
tégla
Méret
122 m²
Bruttó méret
122 m²
Telek méret
231 m²
Terasz / erkély mérete
7 m²
Kert méret
231 m²
Fűtés
hőszivattyú (levegő-levegő)
Belmagasság
280 cm
Lakáson belüli szintszám
2
Tájolás
Dél-nyugat
Panoráma
városi panoráma, Zöldre néző panoráma
Állapot
Kiváló
Homlokzat állapota
Kiváló
Környék
csendes, jó közlekedés, zöld
Építés éve
2026
Fürdőszobák száma
2
Társaház kert
igen
Garázs
Benne van az árban
Garázs férőhely
1
Víz
Van
Gáz
Utcán
Villany
Van
Csatorna
Van
Helyiségek
nappali
22.11 m²
ebédlő
3.96 m²
konyha
6.82 m²
háztartási helyiség
5.01 m²
előszoba
4.29 m²
kamra
2.3 m²
lépcsőház
2.6 m²
terasz
5.33 m²
garázs
16.82 m²
szoba
12.86 m²
szoba
12.86 m²
szoba
12.09 m²
fürdőszoba-wc
5.65 m²
közlekedő
4.66 m²
lépcsőház
4.97 m²
fürdőszoba-wc
5.46 m²
erkély
2.16 m²
Horváth Eleonóra
Hitelszakértő