277,000,000 Ft
726,000 €
- 550m²
A family house operating as a shop is for sale on Kerepesi Street!
A property serving as a manufacturing company's premises in a family house is up for sale!
The property has its own 1020 m2 plot, which is located on Keresztúri Street!
INVESTMENT OPPORTUNITY! ALSO WITH A SALE-LEASEBACK CONSTRUCTION!
The owner would like to lease the property back with a long-term lease after the sale.
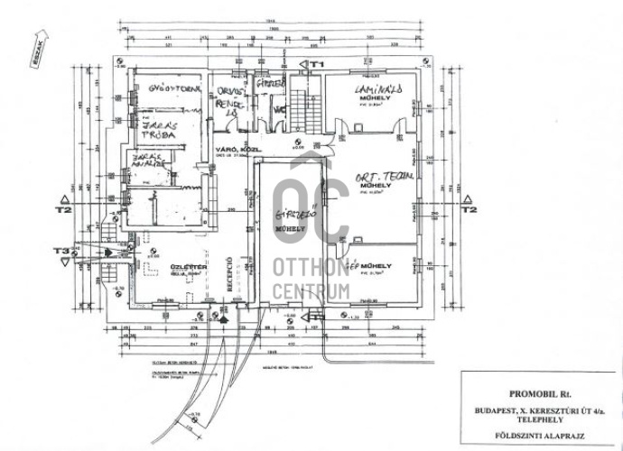
Main features of the property:
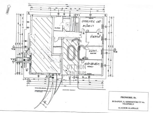
- The building has ground floor, first floor and basement
- Heating is by a circular boiler
- Water, gas and sewerage are connected
- All rooms are heated
- There are 6 air conditioners on the first floor, 4 on the ground floor and 1 in the basement
- The property is equipped with an alarm and camera system
- The property includes 3 wooden houses and 9 metal containers (3 containers are located on the neighboring property, a valid rental contract is included)
- There are 10-12 parking spaces in the yard
- The building is insulated
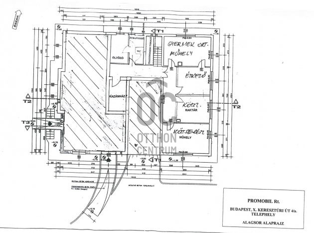
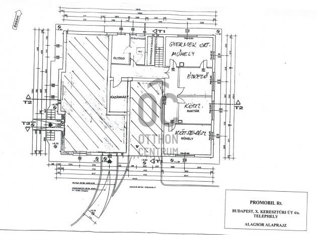
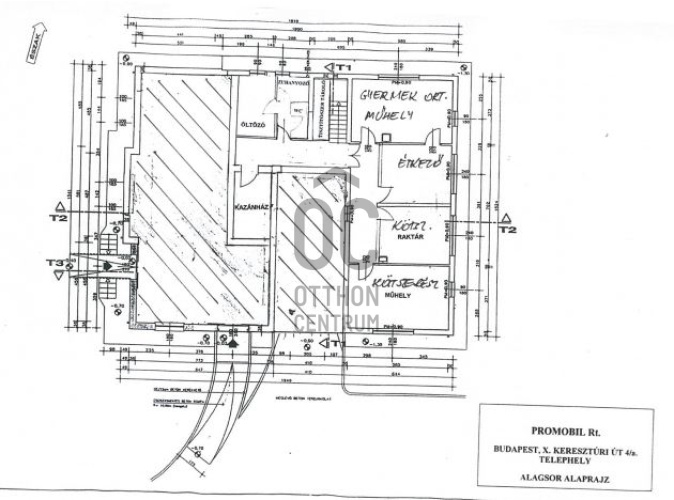
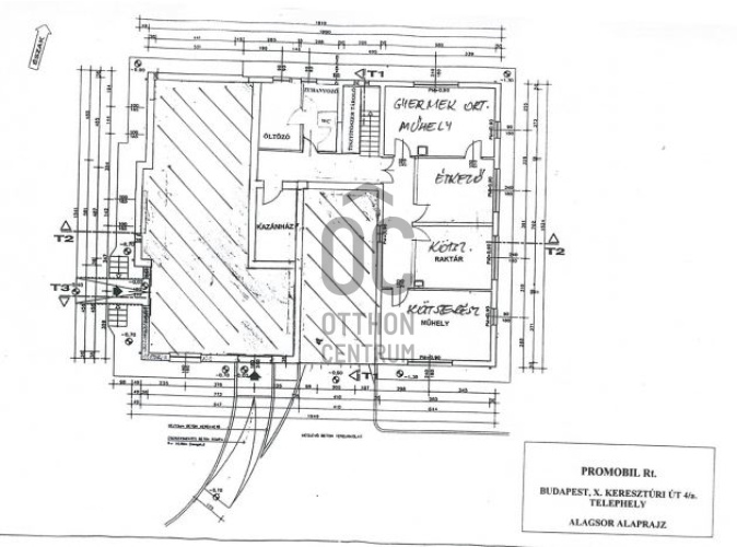
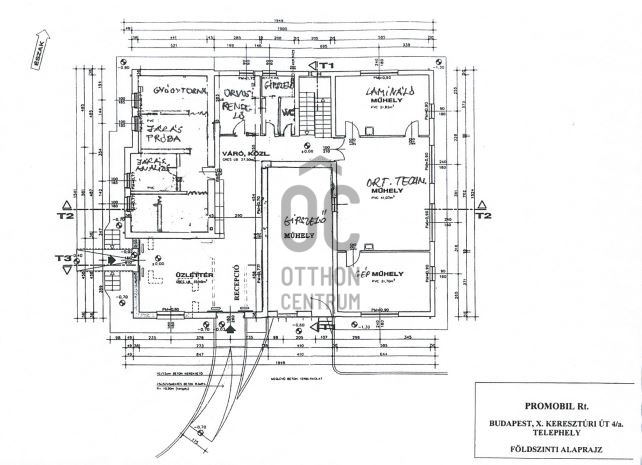
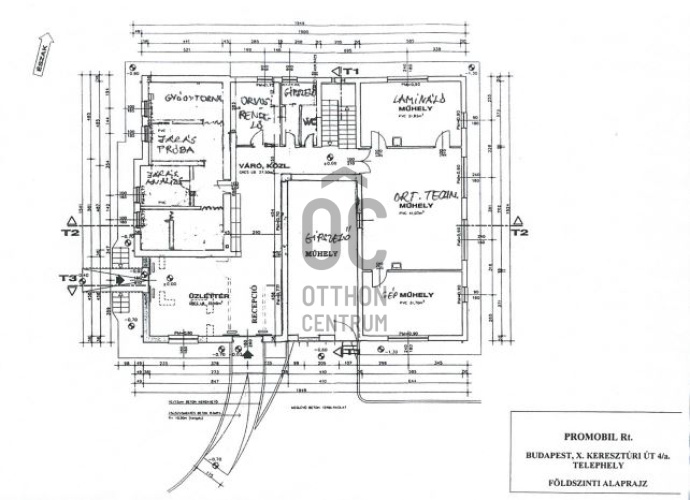
The ground floor rooms (315 cm ceiling height, 255.4 m2):
- lobby/reception 28 m2
- shop 23.08 m2
- doctor's waiting room
- doctor's surgery
- 5 smaller rooms
- 1 restroom
- 4 workshops 89 m2
- corridor
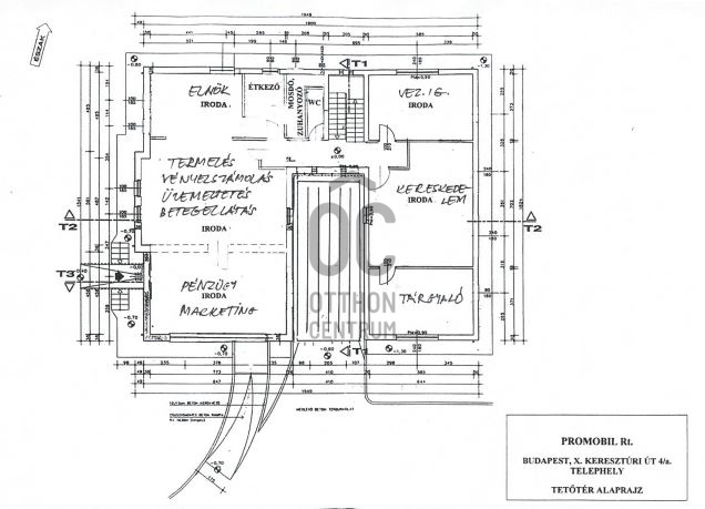
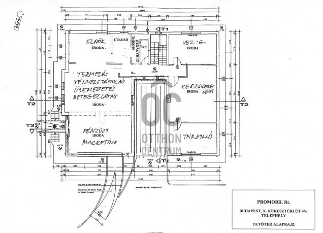
The rooms on the first floor (255 cm ceiling height, 167 m2):
-6 office rooms
-2 restrooms
-1 kitchenette
- corridor
The rooms in the basement (235 cm ceiling height, 128.43 m2):
-2 workshops 45 m2
-1 warehouse 14.46 m2
-1 kitchen 14.46 m2
-1 dressing room 6.8 m2
-1 shower 2.8 m2
-1 restroom 1.4 m2
-boiler room 12.3 m2
- corridor
The property is easily accessible by public transport, car and truck.
The pictures of the production units are understandably not public, but I will send them upon request.
In addition to being a family home, the building can be used as an office, logistics center, hostel, workshop, office building, and offers countless possibilities due to its good transportation and distribution.
Within a 100-meter radius, there are SPAR, Aldi, other shops, and a gas station.
BKK stops nearby:
Bus: 44, 45, 67, 277
HÉV: H8, H9
Night: 908, 908A, 931
The property has its own 1020 m2 plot, which is located on Keresztúri Street!
INVESTMENT OPPORTUNITY! ALSO WITH A SALE-LEASEBACK CONSTRUCTION!
The owner would like to lease the property back with a long-term lease after the sale.
Main features of the property:
- The building has ground floor, first floor and basement
- Heating is by a circular boiler
- Water, gas and sewerage are connected
- All rooms are heated
- There are 6 air conditioners on the first floor, 4 on the ground floor and 1 in the basement
- The property is equipped with an alarm and camera system
- The property includes 3 wooden houses and 9 metal containers (3 containers are located on the neighboring property, a valid rental contract is included)
- There are 10-12 parking spaces in the yard
- The building is insulated
The ground floor rooms (315 cm ceiling height, 255.4 m2):
- lobby/reception 28 m2
- shop 23.08 m2
- doctor's waiting room
- doctor's surgery
- 5 smaller rooms
- 1 restroom
- 4 workshops 89 m2
- corridor
The rooms on the first floor (255 cm ceiling height, 167 m2):
-6 office rooms
-2 restrooms
-1 kitchenette
- corridor
The rooms in the basement (235 cm ceiling height, 128.43 m2):
-2 workshops 45 m2
-1 warehouse 14.46 m2
-1 kitchen 14.46 m2
-1 dressing room 6.8 m2
-1 shower 2.8 m2
-1 restroom 1.4 m2
-boiler room 12.3 m2
- corridor
The property is easily accessible by public transport, car and truck.
The pictures of the production units are understandably not public, but I will send them upon request.
In addition to being a family home, the building can be used as an office, logistics center, hostel, workshop, office building, and offers countless possibilities due to its good transportation and distribution.
Within a 100-meter radius, there are SPAR, Aldi, other shops, and a gas station.
BKK stops nearby:
Bus: 44, 45, 67, 277
HÉV: H8, H9
Night: 908, 908A, 931
Registration Number
UZ019240
Property Details
Sales
for sale
Legal Status
used
Character
commercial
Type of Business Property
entire building
Construction Method
brick
Net Size
550 m²
Plot Size
1,020 m²
Above-Ground Net Size
255 m²
Heating
Gas circulator
Ceiling Height
315 cm
Number of Levels Within the Property
2
Condition
Average
Condition of Facade
Good
Year of Construction
1989
Water
Available
Gas
Available
Electricity
Available
Sewer
Available
Possible Functions
hospitality unit, office, office and showroom or shop, office and warehouse, showroom and service or warehouse, logistics center, guesthouse, hostel
Visibility
Easily visible from busy main road
Accessibility
Entrance from high foot traffic street
Utilization
owner-occupied
Horváth Eleonóra
Credit Expert